Все чаще при строительстве собственного дома хозяева отдают предпочтение проектам, имеющим несколько этажей. Благодаря этому можно значительно увеличить жилую площадь на небольшом участке земли. Чтобы люди могли беспрепятственно подниматься на второй этаж, необходимо наличие лестницы.
Вы можете обратиться за помощью к профессионалам, однако учтите, что они могут не придать значение мелким дефектам при строительстве, которые в последствие могут привести к серьезным поломкам и последующему ремонту. Лестница на второй этаж сделанная самостоятельно, даст вам несколько преимуществ:
- результат будет соответствовать ожиданиям;
- поможет сэкономить финансовые средства и нервы;
- лестница, изготовленная самостоятельно, станет предметам вашей гордости.
Если вы ограничены в денежных средствах на приобретение материалов, можно купить более дешевые аналоги: вместо дерева использовать ДСП, который можно покрыть лаком или краской.
В погоне за экономией можно упустить из виду качество. Хотя дешевая деревянная лестница тоже может прослужить довольно долго, но очень скоро начнет скрипеть. Чтобы не столкнуться с этой неприятностью, лестницу нужно собирать с использованием силиконового герметика, что без предварительной покраски деталей невозможно сделать.
В данной статье мы поговорим о том, как сделать лестницу на второй этаж своими руками из дерева и из металла, а также покажем фото и видео инструкции.
Выбор материала

Для изготовления межэтажной лестницы может использоваться бетон с облицовкой из плитки или мрамора, металл (необходимо наличие сварочного аппарата), а также дерево. Последний вариант самый практичный и удобный. Деревянная конструкция отличается небольшой массой, простотой монтажа и красивым внешним видом.
Конструкция

При наличии помещения с высотой потолков 2,8 м стоит отдать предпочтение прямым конструкциям, либо с поворотом на 25% лестницы. Лестничный марш изготавливается с длиной в 80 см. такой вариант позволяет применять пространство под лестницей для хранения вещей. Нельзя не отметить и минус: на верхнем и нижнем этаже значительно сократиться свободное пространство.
Для экономии драгоценных квадратных метров идеально подойдет винтовой вариант лестницы, но он также не лишен недостатков:
- слишком крутой подъем;
- маленькая ширина лестниц.
Для монтажа винтовой лестницы потребуется 3 м² свободного пространства и много труда.
Возможен еще один вариант устройства лестницы, при котором она располагается вдоль поверхности стены. В этом случае стоит предусмотреть два марша и поворот. Таким образом, вы сделаете ее максимально компактной и комфортной для передвижения.
Монтаж

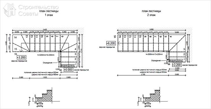
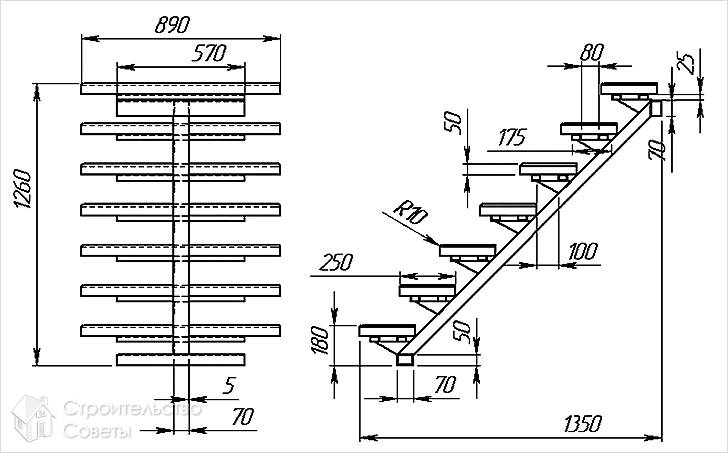
- Расчет габаритов лестницы. Измерьте расстояние между полами первого второго этажей вместе с перекрытием. Таким образом, вы определите высоту конструкции. Ступенька должна иметь высоту 18–20 см. Далее поделив высоту лестницы на высоту ступенек, вы получите общее число ступеней.
- Проекция размеров на поверхность пола. Чтобы спроектировать конструкцию необходимо определить ширину ступенек (примерно 30 см), после чего их количество надо умножить на их ширину. В итоге вы получите проекционный размер.
- Изготовление элементов лестницы. Чтобы сделать косоур вам потребуется брус размером 14×16, ступени – доски 4 см, подступенники – доски 2,5 см. Вы самостоятельно определите длину ступени, помните при этом, что чем она больше, тем лучше.
- Предварительная примерка. Если в ходе предварительной примерки деталей все подошло, обработайте каждый элемент шлифовальной машиной и соберите конструкцию. Чтобы зафиксировать детали лестницы между собой все места соприкосновения их друг с другом промажьте клеем (ПВА или столярный) и дополнительно закрепите шурупами.
- Морилка и лаковое покрытие. Сначала нанесите на поверхности морилку, а дождавшись ее высыхания, покройте несколькими слоями лака.
Дизайн межэтажной конструкции

В качестве дизайнерского решения можно рассмотреть врезные ступеньки, которые вставляются в вырезанные в косоуре пазы:
- Сделайте разметки на косоуре в местах установки ступенек. Используя ножовку и стамеску, вырежьте пазы.
- В центре паза сделай несколько отверстий размером 9 мм.
- Вкрутите в сделанные отверстия турбомуфты.
- Установите ступеньку в паз и закрутите болтами.
Критерии выбора древесины

При покупке струганной древесины необходимо учесть следующие требования:
- на поверхности не должно быть темных пятен;
- недопустимо наличие трещин, сколов, шероховатостей и иных дефектов.
Сучки (диаметр до 1 см) могут присутствовать лишь при условии того, что из материала будут изготовлены ступени или подступенники. Также обратите внимание на влажность, большая масса доски говорит о том, что от приобретения стоит отказаться.
При изготовлении конструкции без наличия опыта, вы можете столкнуться с определенными трудностями, но ваше желание и стремление поможет достичь желаемого результата.
Из дерева

Теперь предлагаем вам ознакомиться с технологией изготовления лестницы из дерева. В первую очередь необходимо сделать чертежи с отдельными деталями конструкции. Для этого возьмите хорошо просушенную древесину и перенесите на нее соответствующие размеры. При этом следует учесть несколько факторов:
- От правильности выпиливания косоуров, полностью будет зависеть прочность и надежность лестницы. Поэтому к их изготовлению необходимо подойти ответственно. Более того, для косоура необходимо подобрать цельную доску, которая не имеет крупных сучков в большом количестве. Толщина доски может быть 45–50 мм.
- Доска для подступеней может иметь толщину больше на 15–20 мм, чем для них отведено на косоуре, а также учитывается толщина подступенника. Сами проступи должны иметь идеально ровную поверхность с аккуратно закругленными краями. Толщина доски может быть в пределах 30–35 мм.
- Если вы хотите сделать закрытую лестницу с подступенниками, то их изготовление также должно быть предельно аккуратным. Ее толщина не должна быть большой, достаточно 15–20 мм. В этом случае основная нагрузка будет идти на косоуры. Сами же подступенники играют роль поддерживания.
- Что касается балясины и поручней, то их рекомендуется приобрести уже готовыми со стационарными креплениями.
Если у вас дома есть маленькие дети, то на каждую ступеньку, в целях безопасности, установите по 2 балясины. Во всех других случаях можно установить по одной.
Монтажные работы

Когда все заготовки конструкции готовы, можно приступать к самому ответственному этапу работ – монтажу лестницы. Вся последующая работа выглядит так:
- На выбранном месте монтируются косоуры. Для этого на полу закрепляете опорный брус, именно на него и будет крепиться косоур. Вверху крепление осуществляется в вырезанный паз в балке. В некоторых случаях для крепления применяется металлическая опора. В таком случае для крепежа используется анкерный болт. В процессе установки косоура обязательно проверяйте все по уровню или отвесу.
- Прежде чем класть полотно проступей, следует прикрутить подступенники.

- После этого на косоуры и сверху подступенников саморезами фиксируются проступи по направлению снизу-вверх.
- После этого осуществляется установка балясин.

Так, сверху лестницы и внизу монтируете опорные стоки. Они будут служить границей поручней, а также поддерживать перила.
Помимо этого, опорные стойки служат в качестве декоративности. Поэтому нередко их изготавливают с применением резки по дереву.

Балясины, в свою очередь, могут иметь разную форму, размеры и методы крепления. Некоторые, например, просто прикручиваются саморезами, другие монтируются в заранее высверленные отверстия. Но в любом случае место крепления необходимо закрыть декоративной заглушкой. Дальнейшая работа выглядит следующим образом:
- Сверху установленных балясин крепите перила на крайние опорные стойки. Дополнительно можно установить 1 или 2 дополнительные опорные стойки посередине.
- При использовании двух, трех или более опорных стоек, вместо балясин между стойками можно установить несколько досок параллельно наклону лестницы.
- На следующем этапе можно начинать производить шлифовку при помощи наждака или шлифмашинки. После этого наносится лакокрасочное покрытие.

Первый слой выступает в роли антисептика от гниения и появления плесени/грибка. Конструкция должна просохнуть, после чего можно приступать к основной покраске.
Лестница покрывается лаком на водной основе, горячим воском или краской. Также можно покрыть древесину морилкой, что слегка затемнит конструкцию. Все зависит от вашего желания.
Таким образом, деревянная лестница готова к эксплуатации.
Из металла

Лестница, изготовленная из металла, требует больших трудозатрат, плюс ко всему далеко не каждый владеет навыками работы со сварочным аппаратом. И все же если вы готовы выполнить работы такого плана, то вам необходимо подготовить такой набор инструмента:
- Сварочный аппарат и электроды для постоянного тока Ø3,2 и 1,6 мм.
- Защитная маска сварщика.
- Рукавицы.
- Болгарка и отрезные диски 125×1,6 мм.
- Шлифовальный диск 125 мм.
- Дрель и комплект сверл по металлу.
- Металлический стол.
- Струбцина, которую можно регулировать на высоте от 0 до 800 мм.
- Тиски.
- Карандаш.
- Угольник.
- Рулетка.
- Краска по металлу.
- Уайт-спирит.
- Грунтовка.
При наличии всего этого, а также подходящего материала можно приступать к монтажным работам. Что касается подборки материала, то это можно сделать согласно выполненному чертежу. Предлагаем вам ознакомиться с принципом изготовления металлической лестницы на двух косоурах.
Стоит сразу заметить, что весь процесс состоит из следующих поэтапных действий:
- Изготовление заготовок.
- Изготовление кобылок, т.е. узлов крепления ступенек.
- Сварка опорного уголка.
- Установка косоура.
- Приваривание ступенек и перил.
- Шлифовка и грунтовка/покраска.
Пошаговая инструкция

Вся работа должна выполняться не спеша, строго придерживаясь всех размеров чертежа. В противном случае любой небольшой перекос будет проблематично исправить, более того, он испортит внешний вид готовой конструкции. Итак, работы проводятся следующим образом:
- Из уголков необходимо сделать крепления для ступенек (кобылки). По соотношению друг к другу они должны быть зеркальными.
- Сделать кобылки можно из уголка. Для этого вырежьте выборки и состыкуйте уголки между собой. В результате должны получиться Г-образные заготовки с полками вниз и внутрь. В зависимости от количества ступеней изготавливаете парное количество кобылок. Одна из них будет левой, друга правой.
- Между каждой парой уголка привариваете кронштейны для крепления ступени и поперечины. Поперечина аналогично изготавливается из уголка.
- Для увеличения прочности можно установить снизу ступени небольшие косынки по направлению к косоуру.
- Теперь возьмите квадратную профильную трубу и выполните на ней разметку, вернее, на ее ребре. По ней вы сможете приварить кобылки к косоуру. Точно такую же разметку переносите на другой косоур. В результате получится достичь геометрии всей конструкции.
Если металлическая лестница имеет ширину больше 1,2 м, то потребуется установить дополнительный косоур.

Дальше необходимо произвести крепление косоура. Внизу он приваривается к опорной платформе, а вверху закрепляется к плите перекрытия или к стене анкерами. В каждом отдельном случае, метод крепления может отличаться. Поэтому ориентируйтесь от особенностей вашего проема. Во время этого процесса, важно придерживаться уровня. Более того, два косоура должны быть строго на одном уровне. В заключение остается приварить ступеньки к кобылкам. Как вариант можно установить деревянные ступеньки на кобылки. Но для этого необходимо использовать болты крепления.
Самая верхняя ступенька должна быть установлена максимально близко к стене (в том случае если косоуры закреплены анкерами к стене). Далее привариваете ограждение. При этом устанавливайте его сбоку, чтобы не уменьшать ширину ступенек.
При обустройстве перил можно использовать ковку или приобрести заготовленные элементы. Здесь опять же, все зависит от вашего личного вкуса и видения конечного результата.

Когда все сварочные работы завершены, пришло время шлифовки всех сварочных стыков. Также необходимо устранить все заусеницы и зазубрины. Используя металлическую щетку, сметите все частицы. После этого осуществляется грунтовка поверхности лестницы и окраска в нужный цвет.
Если ступеньки будут деревянные, то их установка выполняется после того, как краска высохла.
В завершение можно произвести декорирование лестницы. Например, выполнить обшивку ступеней с нижний стороны деревом. Также можно выполнить ограждения из нержавеющей стали. Ступеньки выложить керамической плиткой. За счет этого, небрежная, казалось бы, и громоздкая конструкция приобретет красивые очертания и будет отличным дополнением интерьера дома.
Хотя может показаться что весь этот процесс не представляет никаких сложностей, работа с металлом очень утомительна. В отличие от работы с деревом, когда исправить дефекты при недочетах легко, с металлом гораздо проблематичней. Однако срок эксплуатации всей конструкции значительно превышает ее аналог из дерева.
Винтовая

Если говорить за привлекательность и яркий элемент интерьера, то конкурентов винтовой лестнице вряд ли можно найти. При правильном сооружении она прослужит долгие годы. Изготавливать ее можно как из дерева, так и из металла с элементами ковки. Можно выделить 4 основных типа винтовых лестниц:
- Конструкция с клинообразными ступеньками, которые узкой стороной опираются на опорную центральную колонну, а широкой стороной на стену или изготовленный каркас. В таком случае сооружаются спиральные тетивы на косоурах.
- Отдельно стоящая конструкция, удаленная от стен с консольно укрепленными ступенями на монолитном столбе, размещенном по центру.
- Конструкция без центрального опорного столба. Опорой для ступенек служат изогнутые тетивы или косоуры, которые плавно переходят в перила. Этот вариант очень красивый и изысканный. Однако в изготовлении очень сложный.
- Конструкция с центральным опорным стержнем (в качестве опоры может выступать асбестоцементная или стальная труба Ø50 мм). Этот тип лестницы наиболее распространенный.
Проектирование и расчет

Как показывает практика, максимально удобные винтовые лестницы с пролетом шириной в 0,8–0,9 м. В результате диаметр всей лестничной конструкции будет доходить до 2 м, это с учетом центральной опорной стойки и перил. Если говорить за форму лестницы, то она может быть круглой, квадратной, прямоугольной или овальной.
Если интенсивность движения в вашем доме небольшая, то общий диаметр лестницы достаточно сделать до 1,5 м. В таком случае проступи будут иметь ширину до 0,6 м.
Также необходимо продумать и эргономичность винтовой лестницы. Принцип размера и высоты ступеней такой же, как и на обычных прямых лестницах, выше мы уже говорили о таких измерениях. Но есть некоторые особенности, а именно комфортная высота подъема для человека. Для примера, предлагаем вам рассмотреть вариант винтовой лестницы, высотой 3 м и шириной марша 0,8 м.

Расчеты представлены ниже:
- Общий диаметр лестницы при таких размерах равен двойной ширине марша, а толщина опорной стойки 20 см. В итоге получаем следующее – D = 0,8 × 2 + 0,20 = 1,8 м.
- Радиус подъема равняется половине ширины марша лестницы и опоры: Rn = 0,4 + 0,1 = 0,5 см.
- Теперь разделив длину траектории передвижения на глубину проступи, можно определить количество ступеней в одном витке: L = 2 π : 200 = 2 × 3,14 × 500 : 200 = 17,2. В результате в одном витке лестничного марша может быть 17 ступенек.
- Также необходимо рассчитать эргономичную высоту ступени. Делать это нужно из того учета, чтобы человек во весь рост мог свободно передвигаться. Возьмем для примера рост в 1,8 м, к этому значению добавляем оперативные 20 и делим на количество ступенек, находящихся в одном витке. В итоге получается так: h = 2000 : 17 = 120 мм.
Если винтовая лестница имеет высоту 3 м, то для определения количества ступеней выполняете следующие действия n = 3000 : 120 = 25. В результате получается 25 ступеней, высотой в 12 см.

Чтобы винтовая лестница было долговечной и удобной в эксплуатации, важно соблюдать следующие правила:
- На винтовой лестнице лучше не устанавливать подступенки. Это увеличит безопасность конструкции, а нога будет хорошо упираться на ступень и не соскальзывать со ступеньки в узком месте.
- Если высота прохода равна 2 м, то даже высокий человек сможет комфортно передвигаться по лестнице.
- Для установки опорной стойки выберите место, которое будет удерживать вес всей конструкции и 2–3 людей.
Изготовление ступенек

Для ступеней лучше всего выбрать прочную породу дерева, например, дуб или бук. Хотя намного проще купить ступеньки готовые. Например, приобретаете ступеньку прямоугольной формы, и вырезаете из нее необходимую конфигурацию. Толщина изделия может быть в 40 мм или 30 мм. Если одну ступеньку разделить по диагонали, то в результате получится сразу две ступеньки. Края заготовки необходимо закруглить и отшлифовать шлифмашинкой. Потом можно покрыть их лаком или покрасить. На ступеньку следует закрепить специальную втулку, которая будет удерживать ее на опорной стойке.
Что касается балясин, то их можно сделать из дерева или металла. Также можно дополнить конструкцию лестницы элементами ковки.
Сборка

В первую очередь на опорную стойку одеваете ступени. После этого стойка монтируется в выбранное вами место и закрепляется к полу и потолку.
Предварительно продумайте метод крепления стойки к полу и потолку.
При монтаже ступеней следите за тем, чтобы они перекрывали друг друга на 50–60 мм. Фиксировать их следует больцами. Широкая сторона ступени фиксируется балясинами, а к ним перила. Следуя такой технологии, вам получиться выполнить работу качественно.
Итак, изготовление винтовой лестницы требует особых навыков в строительстве. Здесь очень важно произвести все расчеты и следовать изготовленному чертежу.
Хотим предложить вам ознакомиться с рядом статей, посвященных изготовлению различных лестниц:
- Модульная лестница своими руками.
- Лестница на мансарду своими руками.
- Хотите украсить лестницу? Подумайте о перилах!
- Забежная лестница своими руками.
- Лестница из профильной трубы своими руками.
Фото














Схемы

















Видео
Предлагаем вашему вниманию видеофильм, главной героиней которого является деревянная лестница.
