Любому владельцу загородного дома или коттеджа нет необходимости объяснять, что представляет собой чердак. Зачастую планировка внутреннего пространства не позволяет оборудовать стационарную лестницу для подъема в названное помещение. Это обстоятельство обусловлено редким посещением, кражей квадратуры и загромождением интерьера. Безусловно, многие скажут, что неплохо справляются стремянкой, однако регулярные походы за этим приспособлением, а также его шаткость, заставляют многих хозяев задуматься над возведением компактной лестничной конструкции. Для решения поставленной задачи необходимо разобраться в многообразии типов названного элемента и выяснить, как сделать лестницу на чердак, не прибегая к помощи специалистов и не изводя огромное количество средств.
Общие правила возведения чердачных лестниц

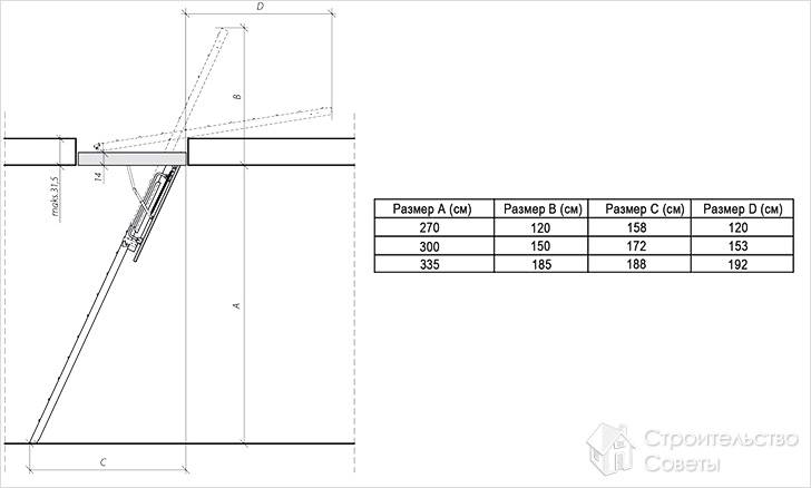
При обустройстве конструкций такого типа важно знать ряд основных рекомендаций и советов профессионалов, которые впоследствии помогут быстро и качественно выполнить работу по сборке, а также обеспечить надежное функционирование в течение значительного периода эксплуатации. Главные из них:
- ширина лестницы не более 65 см;
- высота не более 3 м;
- оптимальное число ступенек – до 15 шт.;
- расстояние между ступенями не более 19 см;
- толщина ступени от 2 до 2,2 см;
- классический угол наклона от 60 до 75°;
- конструкция изготавливается с запасом на больший вес;
- положение ступенек в момент открытия должно быть строго параллельно полу;
- стандартные габариты люка – 120×60 или 120×70 см.
Соблюдение всех перечисленных требований к обустройству лестницы в мансардное помещение, позволит выполнить работу с надлежащим качеством и упором на долговечность функционирования, а также исключит чрезмерные потери тепла в зимние периоды времени.
Разнообразие типов

Оптимальным решением при обустройстве исследуемой конструкции, позволяющим учесть все бытовые аспекты, является изготовление складной лестницы. Этот вид может возводиться как в наружном исполнение, так и во внутреннем. Единственное принципиальное отличие заключается в том, что последний вариант более комфортный в эксплуатации, поскольку исключена необходимость выхода на улицу, которая остро дает о себе знать в холодное время года. Вдобавок к этому, во внутреннем варианте она защищена от воздействий со стороны внешних факторов и является некой прокладкой между холодными потоками воздушных масс чердака и прилегающей комнаты.
В ассортиментах современных магазинов представлено множество вариантов исполнения лестницы, однако целесообразнее выделить наиболее распространенные типы:
- ножничный – представляет собой лестницу, выполненную из металла и представляющую собой в сложенном виде некое подобие гармони;
- складной (выдвижной) – включает в себя несколько выдвижных секций, которые по мере открытия складываются в цельную конструкцию благодаря шарнирным механизмам и петлям;
- телескопический – состоит из нескольких лестничных пролетов, которые в момент сборки укладываются один на другой (в качестве первоосновы такой конструкции обычно используется алюминий).
Необходимые инструменты и расходные материалы

Изготовление складной лестницы на чердак своими руками – мероприятие простое и не требующее глубоких знаний в области строительства, поэтому справиться с этой задачей можно без особого труда.
Перед началом любой деятельности следует подготовить инструментарий и обзавестись материалом. Набор инструментов не предусматривает наличия дорогостоящего оборудования и включает в себя привычный для каждого человека список подручных средств:
- пила или электролобзик;
- дрель или шуруповерт с набором бит;
- рулетка;
- саморезы по дереву;
- анкера, уголки и навесные крючки;
- цельная конструкция лестницы с запасом длины боковых оснований на 20–25 см;
- 4–6 петель карточного типа;
- брус с толщиной 3–4 см.
Варианты монтажа конструкции

Разнообразие этого элемента позволяет владельцу жилья не сильно привязываться к традиционным способам и подобрать оптимальный для себя тип в зависимости от доступной квадратуры, интерьера и других важных характеристик. Однако при небольшом строительном опыте самостоятельно изготавливать лестничную конструкцию для чердака целесообразнее проводить простыми доступными способами, которые представлены навесным и складным видами.
Навесной вид

Названный вид лестницы с легкостью можно изготовить за 3–4 часа. Для его изготовления достаточно взять два бруса сечением 50×50 и длиной от 70 до 100 см. Один из брусков прикрепляем к стене, непосредственно под оборудованным люком с помощью дюбель-гвоздей или саморезов, а второй – на нижних точках опорах лестницы. Далее от верхнего края подготовленной деревянной лестницы отмеряем 2/3 и делаем распил. Затем эти составные части и верхушку с верхним опорным брусом скрепляем при помощи петель. Конструкция готова, остается только в месте складывания нижней секции оборудовать в стене крючок для того, чтобы лестница была надежно зафиксирована на стене.
Нелишним мероприятием будет осуществить усиление верхней опорной перегородки стальными уголками или анкерами, поскольку большая часть нагрузки будет приходиться именно на этот элемент.
Складной вид

Обустраивая складную лестницу, в качестве основы можно выбрать классическую деревянную лестницу, распиленную на несколько составных частей. Для этого потребуется взять 2 бруска с длиной, обеспечивающей проход в чердачный люк, и закрепить их на верхнем и нижнем краях заготовленной конструкции соответственно посредством петель и гвоздей. Далее надлежит отмерить сверху вниз по 1/3 от общей длины и сделать распилы. Составные части также скрепляются посредством карточных петель.
Для того чтобы избежать самопроизвольного раскрывания получившейся лестницы, следует оборудовать брусок, расположенный на верхнем крае конструкции, крючком.
Перед осуществлением фиксации петельных приспособлений дополнительно проверьте правильность раскрывания всех составных частей. Нелишним будет установить с обратной стороны лестницы лист фанеры, таким образом, чтобы при закрытии лестница полностью складывалась в промежуток между люком и общей поверхностью потолка.
Фото складной деревянной конструкции
На фотографиях представлена последовательность изготовления складной лестницы для чердака:






В заключение хотелось бы отметить, что самостоятельное обустройство вспомогательных конструкций испокон веков было предметом внимания большинства хозяев частных домов. Придерживаясь общих правил строительства и следуя представленным простым рекомендациям, без труда можно выполнить прекрасную лестницу на чердак, не затратив на это много средств.
Видео
В предоставленном видеоамтериале, состоящем из двух частей, подробно рассказывается об изготовлении чердачной лестницы:
Фото
На фотографиях представлены различные варианты чердачных лестниц:









Схемы
Если вы решите сделать лестницу самостоятельно, то ниже приводится ряд схем, которые можно взять за основу своей конструкции:









