Пожарная опасность веществ и материалов. Материалы, вещества и средства огнезащиты. Идентификация методами термического анализа
На нашем сайте можно бесплатно скачать Руководящий документ ГОСТ Р 53293-2009 в удобном формате. Узнать актуальный статус документа «Пожарная опасность веществ и материалов. Материалы, вещества и средства огнезащиты. Идентификация методами термического анализа» на 2016 год.
Скрыть дополнительную информацию
Страница 1

Страница 2

Страница 3

Страница 4

Страница 5

Страница 6

Страница 7

Страница 8

Страница 9

Страница 10

Страница 11

Страница 12

Страница 13

Страница 14

Страница 15

Страница 16

Страница 17

Страница 18

Страница 19

Страница 20

Страница 21

Страница 22

Страница 23

Страница 24
ФЕДЕРАЛЬНОЕ АГЕНТСТВО ПО ТЕХНИЧЕСКОМУ РЕГУЛИРОВАНИЮ И МЕТРОЛОГИИ
НАЦИОНАЛЬНЫМ
ГОСТ Р 532932009
СТАНДАРТ
РОССИЙСКОЙ
ФЕДЕРАЦИИ
Пожарная опасность веществ и материалов
МАТЕРИАЛЫ, ВЕЩЕСТВА И СРЕДСТВА ОГНЕЗАЩИТЫ
Идентификация методами термического анализа
Издание официальное
Москва
Стандартинформ
2009
Предисловие
Цели и принципы стандартизации в Российской Федерации установлены Федеральным законом от 27 декабря 2002 г. № 184-ФЗ «О техническом регулировании», а правила применения национальных стандартов Российской Федерации — ГОСТ Р 1.0-2004 «Стандартизация в Российской Федерации. Основные положения»
Сведения о стандарте
1 РАЗРАБОТАН ФГУ ВНИИПО МЧС России
2 ВНЕСЕН Техническим комитетом по стандартизации ТК 274 «Пожарная безопасность»
3 УТВЕРЖДЕН И ВВЕДЕН В ДЕЙСТВИЕ Приказом Федерального агентства по техническому регулированию и метрологии от 18 февраля 2009 г. № 69-ст
4 ВВЕДЕН ВПЕРВЫЕ
Информация об изменениях к настоящему стандарту публикуется в ежегодно издаваемом информационном указателе «Национальные стандарты», а текст изменений и поправок — в ежемесячно издаваемых информационных указателях «Национальные стандарты». В случае пересмотра (замены) или отмены настоящего стандарта соответствующее уведомление будет опубликовано в ежемесячно издаваемом информационном указателе «Национальные стандарты». Соответствующая информация, уведомление и тексты размещаются также в информационной системе общего пользования — на официальном сайте Федерального агентства по техническому регулированию и метрологии в сети Интернет
© Стандартинформ, 2009
Настоящий стандарт не может быть полностью или частично воспроизведен, тиражирован и распространен в качестве официального издания без разрешения Федерального агентства по техническому регулированию и метрологии
Содержание
1 Область применения …………………………………………………………………………………………………………….. 1
2 Нормативные ссылки……………………………………………………………………………………………………………. 1
3 Термины и определения ……………………………………………………………………………………………………….. 2
4 Методы идентификации ………………………………………………………………………………………………………… 2
5 Подготовка к испытаниям и их проведение ……………………………………………………………………………. 3
6 Обработка результатов испытаний………………………………………………………………………………………… 5
7 Установление идентичности образцов …………………………………………………………………………………… 6
Приложение А (обязательное) Протоколы результатов
термического анализа образцов ………………………………………………………………………… 9
Приложение Б (обязательное) Требования к приборам,
применяемым для проведения идентификации …………………………………………………13
Приложение В (рекомендуемое) Схемы определения характеристик
термического анализа ………………………………………………………………………………………14
Библиография ………………………………………………………………………………………………………………………… 18
НАЦИОНАЛЬНЫЙ СТАНДАРТ РОССИЙСКОЙ ФЕДЕРАЦИИ
Пожарная опасность веществ и материалов
МАТЕРИАЛЫ, ВЕЩЕСТВА И СРЕДСТВА ОГНЕЗАЩИТЫ
Идентификация методами термического анализа
Fire hazard of substances and materials Мaterials, substance and fire protective means Identification by thermal analysis methods
Дата введения — 2010—01—01 с правом досрочного применения
1 Область применения
Настоящий стандарт является нормативным документом по пожарной безопасности в области стандартизации и распространяется на вещества, материалы, применяемые в строительстве, энергетике, текстильные материалы (далее по тексту — вещества (материалы)), а также на средства огнезащиты.
Стандарт устанавливает порядок и методы проведения термического анализа и последующей аналитической идентификации веществ (материалов) и средств огнезащиты в целях выявления соответствия определенным требованиям.
Стандарт предназначен для применения при испытаниях веществ (материалов) на пожарную опасность, определении огнезащитных свойств составов и пропиток, установлении соответствия и инспекционном контроле продукции, изготавливаемой предприятиями, юридическими и физическими лицами независимо от форм собственности и ведомственной подчиненности, а также продукции, произведенной за рубежом и ввезенной в Российскую Федерацию.
Стандарт может быть использован при экспертизе пожаров и других видах экспертной оценки.
2 Нормативные ссылки
В настоящем стандарте использованы нормативные ссылки на следующие стандарты:
ГОСТ 9.715-86 Единая система защиты от коррозии и старения. Материалы полимерные. Методы испытаний на стойкость к воздействию температуры
ГОСТ 9980.2-86 Материалы лакокрасочные. Отбор проб для испытаний
ГОСТ 18276.0-88 Покрытия и изделия ковровые машинного способа производства. Метод отбора проб
ГОСТ 29127-91 (ИСО 7111—87) Пластмассы. Термогравиметрический анализ полимеров. Метод сканирования по температуре
ГОСТ Р ИСО 5725-2002 Точность (правильность и прецизионность) методов и результатов измерений. Часть 1. Основные положения и определения
ГОСТ Р 52361-2005 Контроль объекта аналитический. Термины и определения
Примечание — При пользовании настоящим стандартом целесообразно проверить действие ссылочных стандартов в информационной системе общего пользования — на официальном сайте Федерального агентства по техническому регулированию и метрологии в сети Интернет или по ежегодно издаваемому информационному указателю «Национальные стандарты», который опубликован по состоянию на 1 января текущего года, и по соответствующим ежемесячно издаваемым информационным указателям, опубликованным в текущем году. Если ссылочный стандарт заменен (изменен), то при пользовании настоящим стандартом следует руководствоваться заменяющим (измененным) стандартом. Если ссылочный стандарт отменен без замены, то положение, в котором дана ссылка на него, применяется в части, не затрагивающей эту ссылку.
Издание официальное
3 Термины и определения
В настоящем стандарте применены следующие термины с соответствующими определениями:
3.1 идентификация продукции: Установление соответствия конкретной продукции образцу и (или) ее описанию.
[ГОСТ Р 51293-99, раздел 2]
3.2 аналитическая идентификация: Отнесение объекта аналитического контроля или его компонентов к конкретному веществу, материалу, классу веществ или материалов.
[ГОСТ Р 52361-2005, раздел 2, пункт 39]
3.3 аналитический контроль: По ГОСТ Р 52361.
3.4 проба вещества (материала): Часть вещества (материала) объекта аналитического контроля, отобранная для анализа и/или исследования его структуры, и/или определения свойств, отражающая его химический состав и/или структуру, и/или свойства.
[ГОСТ Р 52361-2005, раздел 2, пункт 8]
3.5 кривая нагревания: Запись температуры вещества (образца), помещенного в среду, нагреваемую с регулируемой скоростью, в зависимости от времени.
3.6 термический анализ; ТА: Группа методов анализа вещества (материала), объединяющая термогравиметрию, дифференциально-термический анализ, дифференциально-сканирующую калориметрию и ряд других методов.
3.7 термогравиметрия; ТГ: Метод термического анализа, при котором регистрируется изменение массы образца в зависимости от температуры или времени при нагревании в заданной среде с регулируемой скоростью.
3.8 термогравиметрия по производной: Метод, позволяющий получить первую или вторую производную термогравиметрической кривой по времени или температуре.
3.9 дифференциально-термический анализ; ДТА: Метод, позволяющий регистрировать разность температур исследуемого вещества и вещества, используемого в качестве эталона, в зависимости от температуры или времени.
3.10 дифференциально-сканирующая калориметрия; ДСК: Метод, позволяющий регистрировать энергию, необходимую для выравнивания температур исследуемого вещества и вещества, используемого в качестве эталона, в зависимости от температуры или времени.
3.11 степень превращения ю: Количество прореагировавшего вещества; применительно к ТГ — величина, связанная с начальным т0, конечным тк значениями массы образца и его массой в данный момент времени тТ соотношением
„ т — т
га =-.
т0 — тк
Примечание — га — безразмерная величина, меняется от 0 до 1.
3.12 экстраполированная точка начала или окончания процесса: Точка пересечения касательной, проведенной в точке наибольшего наклона, с экстраполированной базовой линией.
3.13 температура начала разложения: По ГОСТ 29127.
3.14 значимые идентификационные характеристики термического анализа (критерии идентификации): Характеристики термоаналитических кривых, по которым устанавливается идентичность веществ (материалов) и средств огнезащиты.
3.15 качественные идентификационные характеристики термического анализа: Характеристики ТА-кривых, которые дополняют информацию о процессе разложения.
3.16 холостой опыт: Проведение процедуры анализа вещества, материала объекта аналитического контроля без аналитической пробы или с холостой пробой.
[ГОСТ 52361-2005, раздел 2, пункт 31]_
4 Методы идентификации
4.1 Идентификация проводится с использованием:
— технической документации;
— визуального метода;
— инструментального метода.
4.2 Идентификация с использованием технической документации проводится на основании представленных сопроводительных документов. Сопроводительные документы должны содержать наименование вещества (материала), данные об изготовителе, показатели назначения и другие основные показатели, принадлежность к определенной партии и иные характеристики.
4.3 Визуальный метод основан на восприятии внешнего вида объекта с помощью зрения. Внешний вид является комплексным показателем, который включает в себя форму, цвет (окраску), состояние поверхности, целостность.
4.4 В качестве инструментального метода идентификации используется термический анализ, включающий в себя методы:
— термогравиметрический (ТГ);
— термогравиметрический по производной (ДТГ);
— дифференциально-термический анализ (ДТА) или дифференциально-сканирующую калориметрию (ДСК).
4.5 Идентификация с применением методов термического анализа проводится в два этапа:
— первый этап — получение идентификационных термоаналитических характеристик в результате проведения испытаний с использованием статистических методов обработки и вычисления средних величин и дисперсий;
— второй этап — установление идентичности (тождественности) испытываемого объекта идентификатору на основе сравнения дисперсий и средних величин значимых характеристик термического анализа с использованием статистических критериев: Фишера (F) и ^-критерия.
5. Подготовка к испытаниям и их проведение
5.1 Образцы для проведения испытаний отбираются согласно соответствующим стандартам или техническим условиям (например, для лакокрасочных материалов — по ГОСТ 9980.2, для ковровых покрытий и изделий — по ГОСТ 18276.0).
Примечание — Погрешность отбора проб вещества (материала) или средства огнезащиты включает в себя (по ГОСТ Р 52361): погрешность, обусловленную неоднородностью объекта идентификации; погрешность результатов сопутствующих измерений; погрешность, обусловленную изменением состава и/или структуры, и/или свойств пробы в процессе отбора проб и др.
5.2 Приготовление навесок из образцов объектов непосредственно для испытаний проводится с учетом физических свойств веществ (материалов): теплопроводности, теплоемкости, плотности упаковки частиц образца, размеров включенных частиц и т. п.
Примечания
1 Если образец представляет собой гетерогенную смесь разнородных материалов, компоненты которых распределены во всем объеме случайно, то приготовление навески для испытаний проводят, исходя из опыта сохранения представительности, которая в процессе получения идентификационных характеристик оценивается статистически по нескольким параллельным испытаниям.
2 При приготовлении навески образца указанных выше материалов проводят усреднение пробы, т. е. зернистость и объем ее уменьшают размельчением и последующим делением общего объема пробы на части.
3 Для материалов, состоящих из нескольких частей, например ковровых покрытий или многослойных материалов, используют метод стратификации, т. е. разделение продуктов на однородные части и последующее испытание каждой с проведением параллельных испытаний по ГОСТ Р 52361.
5.3 Масса, форма и размер навески образцов для испытаний выбираются в зависимости от типа используемого прибора, при этом указанные характеристики образцов фиксируются в протоколе в соответствии с приложением А.
5.4 Рекомендуемые характеристики навесок для некоторых видов веществ (материалов):
— однородные композиционные вещества (материалы) и огнезащитные составы — масса от 1 до 20 мг, толщина от 0,2 до 2 мм, форма — пластина, диск, кольцо;
— ворс ковровых покрытий, нити, волокна — масса от 1 до 20 мг, при этом рекомендуется использование специальных капсул и других приспособлений для удерживания навесок образцов от расползания;
* Идентификатор — объект, впервые прошедший термоаналитические испытания и получивший идентификационные характеристики (опорное значение по ГОСТ Р ИСО 5725, часть 1, пункт 3.5).
— вспучивающиеся огнезащитные покрытия — в форме диска (пластины, кольца) толщиной от 0,2 до 1 мм и массой от 3 до 20 мг, при этом необходимо учитывать увеличение объема образца во время испытаний и не допускать перелива образца из тигля;
— древесина сосны, обработанная пропиточным составом, — в форме пластины, диска, мелкой стружки, слой с поверхности толщиной от 0,5 до 1 мм.
5.5 Перед испытаниями проводят калибровку прибора на стандартных образцах, прилагаемых к данному типу приборов, в соответствии со стандартами [1—6].
Примечание — Требования к приборам термического анализа — в соответствии с приложением Б.
5.6 Стандартные образцы выбираются для каждого метода термического анализа с учетом рекомендаций ГОСТ 9.715, ИСО 11357 [1] и ИСО 11358 [2].
5.7 Погрешность результатов калибровки должна соответствовать параметрам, указанным в инструкции для конкретного типа прибора термического анализа.
5.8 Перед испытаниями должны быть изучены возможные источники систематических погрешностей и учтено их влияние (например, дрейф базисной линии во времени при проведении холостого опыта).
Для этого проводят предварительные испытания и определяют их оптимальные условия: скорость нагревания, массу и форму навески, с учетом приведенных выше рекомендаций. При этом в параллельных испытаниях следует учесть факторы, влияющие на характер термоаналитических кривых (например, вспучивание, расслоение или резкое изменение размеров навески образца в процессе нагревания и т. п.).
5.9 Нагревание образца проводится в динамической окислительной (воздух) или инертной (для коксующихся материалов и средств огнезащиты на органической основе) атмосфере газа. В необходимых случаях, когда требуется повысить сходимость данных, используется переменная динамическая инертная атмосфера газа (азот, аргон) со сменой ее при определенной температуре на окислительную. Смена атмосферы в процессе нагревания проводится также в целях определения коксового и зольного остатков вещества.
Примечания
1 Испытания образцов веществ (материалов), разлагающихся с высокими скоростями потери массы (например, полипропилен, полистирол, полиэтилен и т. п.), проводятся в инертной атмосфере.
2 Температура смены атмосферы определяется для каждого материала индивидуально.
3 Скорость газа во время испытаний от 50 до 100 см3/мин.
4 Требования к газу по ГОСТ 29127 (например, азот особой чистоты — по ГОСТ 9293 с изм. 1, 2, 3).
5.10 Количество проводимых параллельных испытаний и используемые методы термического анализа определяются с учетом специфики исследуемого объекта (состава, однородности и т. п.).
5.11 Рекомендуемое количество параллельных испытаний n от трех до пяти, но не менее трех.
Примечание — В особых случаях допускается проведение двух параллельных испытаний. Особым случаем считают многократные параллельные испытания одних и тех же или однотипных образцов, для которых методически определены форма, масса навески, погрешность, зависящие от структуры образца и других параметров.
5.12 Рекомендуемые основные условия проведения весовых испытаний:
— начальная температура — от 25 °С до 30 °С или температура окружающей среды;
— скорость нагревания — 5, 10, 20 °С/мин;
— атмосфера — инертный газ или воздух с расходом от 50 до 150 мл/мин (рекомендуемая температура переключения газа для полимерных материалов от 500 °С до 650 °С, для огнезащитных красок и термостойких материалов от 750 °С до 850 °С);
— конечная температура — по окончании процесса деструкции (для большинства объектов идентификации не превышает диапазон от 900 °С до 1000 °С).
Примечание — Для получения качественных идентификационных характеристик допускается проведение испытаний в атмосфере воздуха.
5.13 Характеристики термического анализа
5.13.1 Все характеристики ТА, полученные в результате испытаний, разделяют на значимые и качественные.
5.13.2 Значимые идентификационные характеристики ТА:
а) значения температуры, °С, при фиксированных потерях массы (например, 5, 10, 20, 30, 50 %), которые определяются по ТГ-кривым, приведенным на рисунке В.1 (приложение В), для веществ (материалов) и огнезащитных покрытий на полимерной основе.
При определении значений температуры диапазон суммарной потери массы материала разбивается не менее чем на четыре значения. Например, для материалов с потерей массы, не превышающей 10 %, фиксируются температуры при 1, 2, 3, 4, 5 %.
б) потеря массы Ат, %, при фиксированных значениях температуры (например 100, 150, 200, 250, 300 °С и т. д.), определяемая по ТГ-кривым, приведенным на рисунке В.2 (приложение В);
в) значения температуры при максимумах скорости потери массы, определяемые по ДТГ-кривым (см. рисунок В.3 приложения В);
г) скорость потери массы, %/мин, или амплитуда максимумов (ДТГ-максимум), определяемые по ДТГ-кривым, приведенным на рисунке В.3 (приложение В);
д) коксовый остаток, %, который определяется по окончании процесса пиролиза в инертной атмосфере или при фиксированной температуре по ТГ-кривым, приведенным на рисунке В.4 (приложение В);
е) зольный остаток, %, который определяется по окончании процесса термоокисления при фиксированной температуре по ТГ-кривым, приведенным на рисунке В.4 (приложение В);
ж) значения температуры плавления и соответствующие им тепловые эффекты, Дж/г, определяемые по ДСК (ДТА)-кривым (см. рисунок В.5 приложения В).
5.13.3 Качественные характеристики ТА:
а) интервалы температур, внутри которых происходят процессы деструкции по ТГ- и ДТГ-кривым, или тепловых эффектов по ДТА (ДСК)-кривым;
б) экстраполированные значения температуры начала и окончания протекания термоаналитических эффектов (см. рисунок В.3 приложения В);
в) тепловые эффекты в абсолютных единицах, Дж/г, по ДСК-кривым или в относительных единицах, °Смин/мг, по ДТА-кривым.
6 Обработка результатов испытаний
6.1 В результате термоаналитических испытаний получают соответствующие графические зависимости, которые обрабатываются по схемам, приведенным на рисунках В.1—В.6 (см. приложение В). При этом характеристики ТА, определяемые по а), б) и г) 5.13.2 рекомендуется приводить к безразмерному виду с использованием степени превращения ы, которая изменяется в пределах 0 < a < 1 (см. рисунок В.6 приложения В), и скорости превращения (см. рисунок А 2.1 приложения А)
(1)
Обработка графических зависимостей проводится с использованием соответствующего программного обеспечения приборов термического анализа.
6.2 В результате обработки графических зависимостей для каждой нормированной точки и нескольких параллельных испытаний определяют:
— среднее арифметическое X по формуле
X = (Xi + х2 + x3 + … + xn )
(2)
n
где x1, x2, x3… xn — оценка значимой характеристики термического анализа;
— отклонения d от среднего арифметического значения по формулам:
di — xi — X, d2 — x2 — X, d3 — x3 — X… dn — xn — X; (3)
— квадраты этих отклонений по формулам:
di2 — (xi — X)2, d 2 — (x 2 — X)2 … d2n — (xn — X)2; (4)
— среднеквадратическое отклонение повторяемости (сходимости) результатов измерений S для каждой точки по формуле
S — (di + d2 + d33 + ••• + d1 (5)
V (n — i) ‘
6.3 Результаты обработки заносят в протокол испытаний, в котором указывают дату и время испытаний, приводят информацию о материале, заказчике (производителе) и другие сведения в соответствии с приложением А.
7. Установление идентичности образцов
7.1 Идентификация двух испытанных объектов (идентификатора и поступившего повторно на испытания объекта) проводится на основе сравнения следующих критериев идентификации:
— количества ДТГ-максимумов на соответствующих кривых;
— всех значимых характеристик, определенных в разделе 6.
7.2 В этих целях повторно поступивший материал проходит испытания и проводится обработка результатов согласно разделам 5, 6 настоящего стандарта.
7.3 Результаты испытаний сравниваются с аналогичными результатами, полученными для идентификатора. Сравнению подлежат характеристики ТА, полученные на приборах одного класса и при одинаковых условиях эксперимента: массе, форме и размере образцов; форме, размере и материале тигля; виде газа динамической атмосферы и расходе газа; скорости нагревания и др.
7.4 Сравнение результатов проводится по следующей схеме:
7.4.1 Вычисляются дисперсии а для каждой значимой точки по формуле
а = S2. (6)
7.4.2 Выясняется причастность сравниваемых дисперсий одной и той же генеральной совокупности (проверка нуль-гипотезы, т. е. oi = о2) на основании сравнения критериев Фишера
(F-критерий — экспериментального F^cn и теоретического FTeop с использованием следующего неравенства:
^эксп < FTeop? (7)
2
где F^n = S2(/i);
S2( /2)
S2, S2 — дисперсии нормированных точек идентификатора и идентифицируемого (повторно поступившего на испытания) материала; при этом в числитель всегда ставится
f п2 \
S
большая дисперсия, т. е. Si2 > S;
~J2 > i V S 2 J
FTeop выбирается по таблице 1 в зависимости от уровня значимости а = i — Р и числа степеней свободы/ и/2 (/i = ni — i для числителя и/2 = n2 — i для знаменателя);
P — доверительная вероятность (рекомендуется принимать равной 0,95 в соответствии с таблицей 1).
|
Таблица 1 — /-критерий в зависимости от числа степеней свободыf и f2 (при вероятности 0,95) |
|||||||||||||||||||||||||||||||||||||||||||||||||
|
7.5 Если для каждой значимой характеристики неравенство (7) выполняется, то нуль-гипотеза подтверждается. В этом случае случайные ошибки обеих серий испытаний близки по величине и не вызваны влиянием на них состава материалов. В противном случае (/эксп > /теор) делается вывод о том, что материалы не идентичны, проводятся уточняющие расчеты или дополнительные испытания для выявления причин обнаруженных отклонений.
7.6 В случае выполнения неравенства (7) для каждой значимой характеристики проводится сравнение двух средних с помощью f-критериев (/эксп и /теор) в следующем порядке:
— для каждой значимой точки определяется усредненная дисперсия по формуле
S2 = [(n1 — 1)S12 + (n2 — 1)S2 ] (8)
СР (П + П2-1) ’
где п1 — количество испытаний идентификатора;
п2 — количество испытаний сравниваемого материала;
— вычисляется /эксп по формуле
(X1 — X 2) П1 • П2 (9)
^эксп
7.6.1 Если найденное значение /эксп по абсолютной величине окажется меньше #теор:
^эксп < ^геор, (10)
где /теор определяется по таблице 2 при заданных уровне значимости (а = 1 — Р = 0,05) и числе степеней свободы объединенной выборки f = п + П2 — 2), то нуль-гипотеза принимается и сравнение средних для каждой нормированной характеристики не дает значимого расхождения.
7.6.2 Если при соответствующих значениях а и f (см. таблицу 2) найденное значение /эксп по абсолютной величине окажется больше /теор (/эксп > /теор), то нуль-гипотеза отвергается и значения средних для каждой характеристики ТА имеют значимые расхождения. Выясняются причины полученных расхождений.
|
Таблица 2 — t-критерий в зависимости от вероятности и числа степеней свободы |
|||||||||||||||||||||||||||||||||||||||||||||||||
|
|||||||||||||||||||||||||||||||||||||||||||||||||
7.7 Сравниваемые образцы материалов считаются идентичными по результатам термического анализа на основании следующих заключений:
— совпадает количество основных (значимых) ДТГ-максимумов;
— значимые характеристики ТА удовлетворяют неравенствам (7) и (10) (см. 7.4—7.6).
7.8 На основании проведенных испытаний составляется протокол в соответствии с приложением А.
7.9 Протокол испытаний должен содержать:
а) параметры проведения съемки, которые включают в себя:
— тип используемого прибора;
— тип устройства для измерения температуры;
— массу образца;
— форму и размер образца;
— скорость нагревания;
— вид и расход газа используемой динамической атмосферы;
— тип тигля и дополнительного контейнера для образца;
— для автоматизированных приборов — скорость съема информации;
б) информацию об образце материала (ГОСТ, ТУ и т. п.);
в) номер аттестата на термоаналитическое оборудование и срок его действия;
г) результаты расчетов характеристик в соответствии с разделом 6.
7.10 Отчет о проведении идентификации должен содержать результаты и выводы по использованным методам идентификации (см. 4.2—4.4).
7.11. При положительном результате испытаний в выводах указывается, что материалы являются идентичными.
7.12 При отрицательном результате испытаний и невыполнении требования 7.6.1 в отчете приводятся соответствующие выводы, на основе которых проводятся корректирующие мероприятия.
7.13 Отчет заверяется подписями исполнителей, выполнивших работу по идентификации.
Протоколы результатов термического анализа образцов
Образец протокола А.1
ПРОТОКОЛ №_от «_»_20_г
результатов термического анализа материалов
А.1.1 Изготовитель _
А.1.2 Наименование материала (ТУ, ГОСТ)_
А.1.3 Дата поступления образца на испытания _
А.1.4 Дата проведения испытаний_
А.1.5 Аппаратура термического анализа_
А.1.6 Аттестат №_действителен до «_»_20_г
А.1.7 Условия проведения испытаний: таблица А.1.1
|
Таблица А.1.1 |
|||||||||||||||||||||||||||||
|
|||||||||||||||||||||||||||||
|
А.1.8 Результаты испытаний: таблица А.1.2, рисунок А.1.1 (наименование файлов данных) |
|||||||||||||||||||||||||||||
|
Таблица А.1.2 |
|||||||||||||||||||||||||||||||||||||||||||||||||||||||||||||||||||||||||||||||||||||||||||||||||||||||||||||||||||||||||||||||||||||||||||||||||||||||||||||||||||||||||||||||||||||||||||||||||||||||||||||||||||||||||||||||
|
|||||||||||||||||||||||||||||||||||||||||||||||||||||||||||||||||||||||||||||||||||||||||||||||||||||||||||||||||||||||||||||||||||||||||||||||||||||||||||||||||||||||||||||||||||||||||||||||||||||||||||||||||||||||||||||||
|
Исполнитель /Ф.И.О./ Начальник /Ф.И.О./ |
|||||||||||||||||||||||||||||||||||||||||||||||||||||||||||||||||||||||||||||||||||||||||||||||||||||||||||||||||||||||||||||||||||||||||||||||||||||||||||||||||||||||||||||||||||||||||||||||||||||||||||||||||||||||||||||||
т, %/мин
8
|
800 600 400 |
4
200
0
X, мин
1 — ТГ-кривая (потеря массы); 2 — ДТГ-кривая (скорость потери массы);
3 — температура (скорость нагревания — 20 °С/мин)
Рисунок А.1.1 — Характерные термоаналитические кривые образца материала
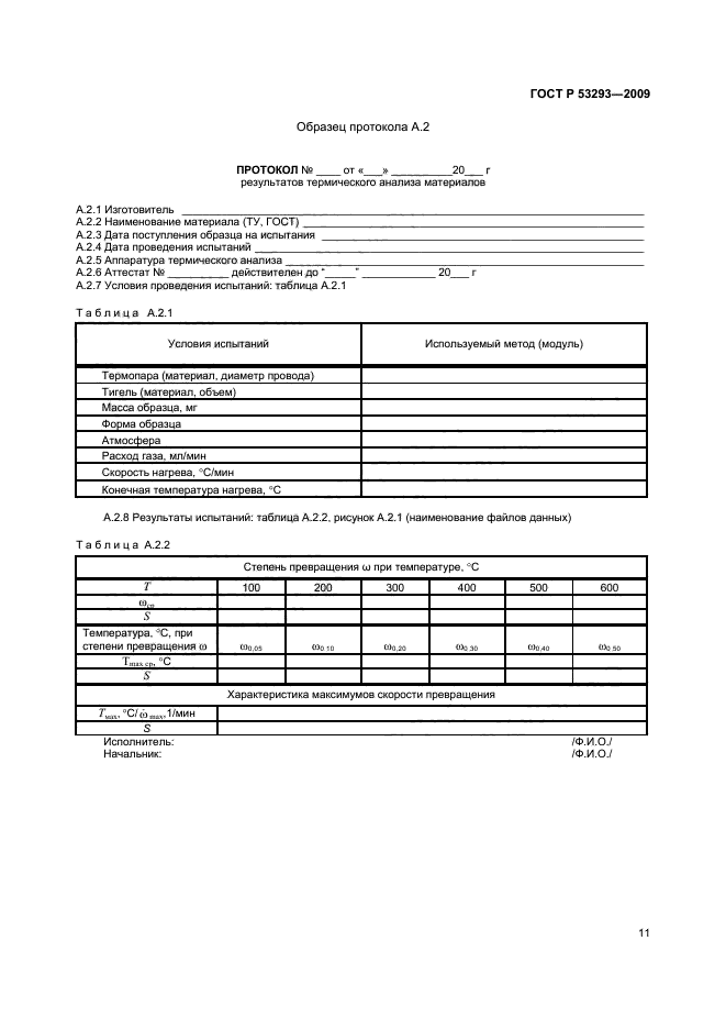
Образец протокола А.2
ПРОТОКОЛ №_от «_»_20_г
результатов термического анализа материалов
А.2.1 Изготовитель _
А.2.2 Наименование материала (ТУ, ГОСТ)_
А.2.3 Дата поступления образца на испытания _
А.2.4 Дата проведения испытаний_
А.2.5 Аппаратура термического анализа_
|
||||||||||||||||||||
|
А.2.8 Результаты испытаний: таблица А.2.2, рисунок А.2.1 (наименование файлов данных) |
|
Таблица А.2.2 |
|||||||||||||||||||||||||||||
| |||||||||||||||||||||||||||||

