Для собаки, живущей на улице, ее дом – будка, просто необходимое сооружение для комфортного пребывания, ее личное место, где она отдыхает, укрывается от жары в летний зной, прячется от дождя и снега, греется в лютые морозы. Постоянное пребывание на улице для многих, особенно породистых собак является необходимым условием их закалки, хорошей шерсти, гарантирует им необходимую выносливость. Кроме этого, именно качественная и надежно обустроенная будка поможет собаке выполнять свои защитные функции.
В этой статье мы поговорим о том, как сделать будку для собаки своими руками, продемонстрируем размеры, чертежи и схемы, а также фото и видео инструкции.
Выбор месторасположения конуры

Чтобы будка служила долго и эффективно, необходимо грамотно подобрать наиболее подходящее место для ее расположения, ведь вся территория должна быть под наблюдением у четвероногого друга. Место для строительства будки должно освещаться естественным солнечным светом, не подтапливаться водой во время дождей, и не располагаться на розе ветров, на сквозняке. Рядом с конурой должен быть обязательно источник тени, чтобы животное могло спрятаться в ней в жаркий день.
Если тени нет, то необходимо заранее продумать сооружение навеса или полноценного вольера. Ни в коем случае располагают будку для собаки около помещений с другими видами домашними животными. Это может плохо отразиться на здоровье и психике собаки.
Планировка

Климатические условия наших регионов в первую очередь при проектировании будок ставят условия надежного утепления конструкции. Однако при комплектации конструкции необходимо планировать использовать максимального количества натуральных, экологически безопасных, долговечных материалов. Далее определяемся с размерами конструкции.
Существуют стандартные размеры будок:
- Для больших собак: 1,40 м. * 1,00 м. * 1,00 м.
- Для средних собак: 1,20 м. * 0,80 м. * 0,80 м.
- Для маленьких собак: 0,70 м. * 0,50 м. * 0,60 м.
Однако для своего четвероногого друга можно внести в эти размеры необходимые коррективы. Следует помнить, что размеры будки имеют большое значение, так как она должна быть достаточна только для того, чтобы животное могло в нее войти, свободно развернуться и лечь. В такой конструкции будет сохраняться достаточно тепла, чем в слишком просторной конуре. Поэтому лучше конструировать будку индивидуально под свою собаку.
Размеры

Планируя соорудить будку, следует тщательно продумать ее размеры. Это правило касается любого строения, которое мы хотим сделать. При этом не рекомендуется ориентироваться по размерам, предоставленным на чертежах иначе будка будет неподходящим местом для отдыха собаки.
Итак, планируя соорудить будку, следует отталкиваться от следующих параметров:
- Высота. Высота будки в холке должна быть на 10–15 см больше роста собаки. Каждая порода имеет примерно одинаковые габариты, поэтому если у вас щенок, то можно сразу строить полноразмерную будку.
- Длина. По-другому этот параметр также можно назвать – глубина. Она должна быть на 5–10 см больше длины питомца.
- Ширина. По ширине будка должна быть больше на 5–10 см роста собаки.

Что касается ширины лазка в будку, то оптимальной считается на 10 см больше собаки, а высота больше ширины на 1,5 раза.
Если у вас овчарка, то габариты будки будут следующие: 135×100×95 см, а с лазком 40×60 см.
Если придерживаться таких параметров, то собака будет место где развернуться после захода в свое жилище, а во время отдыха ее ничто не будет стеснять. С экономичной стороны, двухскатная крыша эффективней, чем односкатная. Так как два ската обеспечат меньшую площадь обогрева будки.
Необходимые материалы

- Брус деревянный 100х100 и 100х50
- Бруски 40х40
- Деревянная вагонка для внутренней отделки
- Половая доска
- Влагостойкая фанера
- Галтель
- Декоративные рейки
- Гвозди оцинкованные
- Битумная черепица и рубероид
- Пергамин
- Для утепления минеральная вата и пинотекс (pinotex)
- Пропитка для дерева (качественный антисептик)
Пиломатериалы приобретаются с показателем влажности 9%, рекомендуются хвойные породы, без выпавших сучков, трещин и тупого обзола.
Технология строительства

Делаем днище и каркас

Пол в будке должен быть теплым и, желательно, двойным. Его делают из брусков 40Х40 и половой доски. На готовое основание из бруса делают каркас равный высоте конструкции. Потом организовывают входную зону. К каркасу крепят промежуточные стойки, которые равны по длине внутренним размерам высоты конуры (они будут служить опорой для крышки-потолка). Изнутри конструкция обшивается деревянной вагонкой. Снаружи рекомендуется сооружение отделывать пластиковой вагонкой для долговечности эксплуатации и простотой ухода. Но делается это после утепления будки.
Обустраиваем крышку-потолок

Для конструкции будки крышку-потолок делают съемной, так как внутри конуры периодически нужно делать тщательную уборку и обязательно ежеквартально проводить капитальную дезинфекцию от паразитов специальными средствами.
Потолок делается теплым. Если будка для собаки большая, то в середину врезают промежуточные брусочки, чтобы потом фанера не провисала. Готовую конструкцию устилают пергамином (пароизоляцией) и внутрь укладывают минеральную вату для качественного утепления. Сверху теплоизоляцию зашивают вторым листом фанеры. Можно для удобства предусмотреть на крыше ручки. Сверху влагостойкой настилают финишное кровельное покрытие, можно из любой оставшейся кровельного материала, главное, чтобы он сочетался по стилю со архитектурным ансамблем всего участка.
Гидроизоляция конструкции

Древесина обрабатывается специальным составом для предотвращения появления плесени и повышения ее долговечности. Пропитывать необходимо всю будку: внутреннее пространство, дно, примыкания и стыки.
Потом с помощью степлера к днищу крепят рубероид и прибивают два бруска 100х50. Это позволяет дну отлично вентилироваться и дополнительно утепляет конуру.
Утепляем полы и стены

Дно будки устилают пергамином, закрепляют его скобами с помощью степлера. Укладывают утеплитель и еще раз дополнительно укрывают пергамином. Это необходимо, чтобы минеральная вата и ее микро-частички из стекла не проникали наружу и не причиняли вреда здоровью питомца.
Если строится будка для собаки из дерева больших размеров, то к дну дополнительно прибивают брусочки-лаги, чтобы чистовое покрытие пола не «гуляло» под весом собаки. Прибивают чистовой пол. Также утепляются стены конуры снаружи, а потом обшиваются пластиковой вагонкой или любым другим доступным материалом. На пол можно уложить и прибить листы фанеры, чтобы у собаки когти не застревали в щелях.
В конце делается порожек и оформляется обрамление лаза, и будка для домашнего питомца готова.
Видео
В предоставленных видеоматериалах, рассказывается о сборке простой и утепленной будки для собаки:
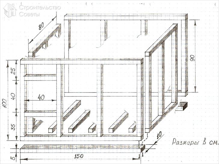
Чертежи
Теперь предлагаем вам ознакомиться с пошаговой инструкций по сборке будки для собаки в чертежах:










Фото
На предоставленных фотографиях, вы сможете увидеть немало оригинальных идей для изготовления будки для собаки:













Схемы
Ниже приводятся схемы, отталкиваясь от которых, вам получиться сделать все работы самостоятельно:







