Находясь в том или ином помещении, мало кто задумывается о том, что все это время происходят работы важных коммуникаций. Например, работа системы вентиляции незаметна, но без нее сразу будет чувствоваться дискомфорт. Если она засорится, то недостаток свежего воздуха будет заставлять действовать, а именно искать причину проблемы. Отсюда становится очевидным, установка приточно-вытяжной вентиляции является необходимостью. Что же представляет собой это устройство?
Приточно-вытяжная вентиляция в своей системе имеет большое количество труб, за счет которых происходит воздухообмен. Также система оснащена нагревательным или охладительным прибором, а также устройством по обеззараживанию. Сегодня можно найти немало укомплектованных систем вентиляции, однако, при желании сэкономить можно по отдельности купить необходимые детали и сделать ее своими руками.
Как работает

Принцип работы этой системы очень прост. В помещении монтируются вентиляционные отверстия, посредством которых происходит воздухообмен. С внешней стороны устанавливается так называемый конвектор, который содействует поглощению свежего воздуха, а также выпускает его обратно. В зависимости от функционала прибора он может дополнительно обеззараживать, нагревать или охлаждать воздух в помещении.
Процесс обеззараживания возможен за счет установленных фильтров в аппарате. Дополнительно некоторые модели конвекторов оснащаются ультрафиолетовыми лампами. Фильтры располагаются во входной части агрегата, а изготавливаются они из сантонина или поролона.
Когда в помещение попадает свежий воздух, образовывается давление. За счет него отработанный воздух выходит через выходной воздуховод.
Естественная вентиляция

В квартире приточно-вытяжная вентиляция, в зависимости от ее вида, работает по двум принципам. Имеется естественная и принудительная вентиляция. Что касается естественной вентиляции, то она никак не может работать на очистку и обеззараживание воздуха. Принцип работы такой системы основывается на физических законах. Давление воздуха снаружи квартиры, ясное дело, отличается от давления внутри. Смена воздуха осуществляется как раз-таки за счет разницы давления.
Чтобы улучшить качество воздухообмена, приточное отверстие можно расположить на северной стороне, где намного ветреней. Что касается монтажа воздуховода, то он устанавливается на южной стороне под крышей. В таком случае снижается риск обратной тяги.
Однако такая вентиляция имеет низкий уровень производительности, поэтому сегодня в домах ее редко используют. Такой тип вентиляции можно встретить в домах, которые строились в прошлом веке. В них приток свежего воздуха происходит внизу дома, а отток вверху. Как следствие последние этажи практически не получают свежего воздуха.
Принудительная вентиляция

Совсем другая ситуация касается принудительной вентиляции. Этот тип вентиляции используется в самых разных производственных помещениях, в офисах, жилых постройках и т.п. Монтаж такой системы можно выполнить самостоятельно, хотя сразу стоит отметить, что это не совсем простая задача. Но несмотря на затраченные усилия, произведя ее монтаж, вы сразу решаете несколько задач:
- Постоянный приток свежего воздуха в нужном объеме. Люди, имея постоянный свежий воздух, реже сталкиваются с проблемами со здоровьем.
- При изготовлении системы используются безвредные материалы, за счет чего в процессе работы вентиляция не источает никаких вредных веществ.
- Имеющийся в комплекте конвектор содействует постоянной очистке воздуха. Как следствие, пыль, грязь и другие вредные вещества не попадут в дыхательные пути человека.
- Дополнительно можно увлажнять или осушать воздух за счет дополнительно установленных приборов.
Именно такую систему вентиляции часто используют в подвалах, где из-за низкой точки не всегда возможно соорудить естественную вентиляцию. В таком случае принудительная система гораздо эффективней.
Монтажные работы

Сегодня большой популярностью пользуется система вентиляции с рекуперацией. Благодаря этому можно экономить средства на газе и электричестве. Как это возможно? При выходе отработанный воздух успевает нагреть поступающий воздух. При этом процессе два потока не соприкасаются. Вентиляция, работающая по такому принципу, имеет КПД до 98%. Именно установку такой системы мы сейчас и рассмотрим:
- В самом начале необходимо произвести расчет необходимого воздухообмена для выбранного помещения.
- Далее составляете схему планируемой вентиляции на плане помещения.
- Также определитесь с местом монтажа оборудования, например, это может быть чердак.
- На плане следует изобразить места установки воздухозабора и воздухоотдачи.
- Следующим этапом будет изготовление отверстий для труб вентиляции в стенах.
- Патрубок, который устанавливается в простенок, должен иметь обратный клапан. Благодаря этому сокращается шанс попадания мусора.
- Учтите тот факт, что установка вентиляционного оборудования должна быть произведена так, чтобы ее было легко обслуживать.
- Для стыковки воздуховодов используются специальные хомуты. Также следует утеплить воздуховоды, в противном случае эффективность системы значительно снизится.
- Сами же воздуховоды закрепляются к потолку специальными креплениями и хомутами.
- К патрубку, который был установлен в стену, подсоединяется один конец воздуховода. Соединяется он также хомутом.
- На следующем этапе происходит проводка приточных каналов.
- Монтаж приточного патрубка осуществляется по тому же принципу, что и воздухозаборный. При этом следует строго соблюдать правильность его установки.
- Вытяжные каналы так же оборудуются, как и приточные. Очень хорошо, если они располагаются в противоположных углах помещения.
- Когда все заготовки установлены, происходит проверка системы и ее запуск.
- В самом конце монтируются решетки на отдушины и система управления.
Так, теперь вы знаете, как сделать приточно-вытяжную вентиляцию самостоятельно. Следуя простым советам и изложенному плану, у вас все получится. Поделитесь своим опытом, если вы уже провели у себя в помещении такие работы.
Видео
Ознакомьтесь с особенностью работы и установки приточно-вытяжной вентиляции в этом видеоматериале:
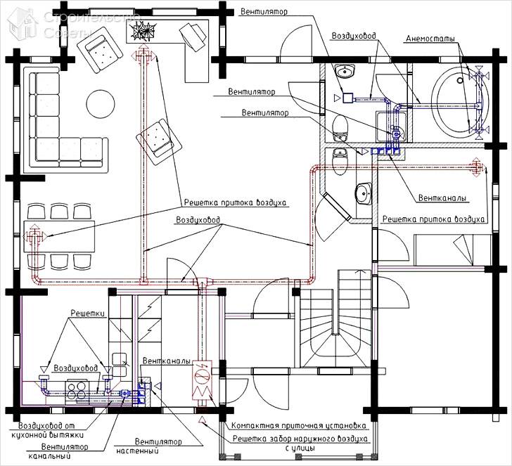
Схемы
На схемах можно рассмотреть особенности работы приточно-вытяжной вентиляции:






