Если вы желаете обустроить ребенку место для игр, то это не значит, что нужно покупать дорогие детские площадки с качелями, горками и переходами. Маленьким детям для проведения досуга достаточно простой песочницы, в которой они смогут освоить мастерство изготовления куличиков, а со временем и песочных замков. В отличие от громоздких площадок, конструкция песочницы очень проста. А это означает, что вы сможете смастерить ее самостоятельно. В статье мы расскажем как сделать детскую песочницу своими руками, продемонстрируем схемы, чертежи, а также фото и видео инструкции.
Поиски подходящего места

Во время игр в песочнице каждый малыш будет развивать свои творческие способности, мелкую моторику, глазомер, терпение и уравновешенность. Чтобы игровой объект был возведен по всем правилам и был безопасным необходимо руководствоваться нормами ее размещения:
- Доступность и просмотр. Независимо от того где играет ребенок, его должно быть хорошо видно, поэтому детская песочница хорошо должна просматриваться и на пути к ней не нужно устанавливать преград.
- Гигиена. Чтобы уменьшить вероятность получения инфекции через песок, стоит выбрать место вдали от деревьев.
- Солнце. Несомненно, солнечный свет полезен для кожи детей, но чрезмерное количество может навредить, поэтому необходимо предусмотреть защиту.
- Размер песочницы должен быть рассчитан как минимум на 3 ребенка.
При соблюдении этих несложных рекомендаций можно сделать качественную песочницу, в которой игра будет абсолютно безопасная.
По мнению психологов, песок положительно влияет на психику человека. Он поглощает всю негативную энергию и, таким образом, стабилизирует нервную систему.
Разрабатываем схему и дизайн

После того как место было подобрано, можно приступать к разработке и составлению чертежа на бумаге. В первую очередь стоит определиться с ее размерами. Так как стандартов и каких-либо ограничений нет, родители имеют право самостоятельно выбирать габариты. Чаще всего песочницы имеют стандартную квадратную или прямоугольную форму, размеры которых будут зависеть от длины приобретенных досок. Например, при длине доски 4 м, высота песочницы должна составлять 25 см.
Оптимальным размером толщины доски считается 32 мм, так как это стандарт, который применяется для большинства видом строительных работ. Такая доска будет не только надежной и прочной, но и снизится вероятность растрескивания, а, значит, конструкция прослужит не один год. Составляя чертеж конструкции важно указать и толщину песочного слоя, который должен быть не менее 15-20 см.

Кроме подготовки основного материала, досок, в количестве 4-8 штук (в зависимости от высоты бортиков) и 4 брусков, необходимо подобрать следующий инструмент:
- карандаш;
- рулетка;
- лопата;
- ножовка;
- отвертки или шуруповерт;
- крепежные элементы;
- дверные петли (если песочница будет с крышкой);
- наждачная бумага;
- краски;
- кисточки.
Практичнее выбирать деревянные доски длиной от 2 до 6 м. При помощи дверной петли можно закрепить крышку для песочницы.
Подготавливаем место

Подготовить основание под детскую песочницу очень важно. Этот этап можно пропустить, но в этом случае песок будет постоянно контактировать с грунтом, а, значит, он быстрее загрязнится. Чтобы упростить уход за игровой зоной необходимо тщательно подготовить место, что сведет к минимуму контакт чистого песка и грунта.
Рассмотрим на примере сооружения детской песочницы размером 2×2 м. В ней смогут комфортно разместиться 2-3 ребенка. По предварительным расчетам при помощи веревки и колышков очерчиваем периметр. Выкапываем яму, глубиной 20-25 см. Как и в случае с фундаментом для большей надежности основанию нужна подушка, в нашем случае это 5 см песка. Его необходимо равномерно распределить по всему периметру и уложить основу.

За основу можно взять один из двух материалов:
- геотекстиль;
- агроволокно.
Оба материала не задерживают влагу, поэтому дождевая и талая вода будут без преград уходить в грунт. Но, при этом эта прослойка не подпустит к песку насекомых и червей.
На дно рекомендуется стелить обычную полиэтиленовую пленку, предварительно проделав в ней дырки для дренажа.
Соединение стенок

Закрепить доски между собой, можно в несколько способов. Самым простым и распространенным вариантом является скрепление деталей при помощи длинных гвоздей, которые забиваются молотком. Стоит отметить, что такая конструкция просуществует недолго, поэтому специалисты рекомендуют использовать более сложную, но практичную технологию.
Так, все элементы, бруски и доски, необходимо прежде обработать антисептиками, которые предохраняют их от быстрого разрушения и размокания. К брускам, размером 45×5×5 см, необходимо при помощи гвоздей (саморезов) или специальных уголков закрепить доски.
Когда конструкция будет полностью собранна, можно приступать к удалению неровностей и углов при помощи наждачной бумаги. После этого, влажной тряпкой протирают пыль и грунтуют. Это позволит слою лакокрасочного материала равномерно распределиться по поверхности, не образовывая потеков. Цвет песочницы может быть любым. Если есть свободное время и желание, можно нанести какой-то узор или рисунок. Готовый каркас забивают в грунт на глубину 15 см.
Конструкция песочницы может иметь бортики, на которых детям будет удобно сидеть и играть. Для этого также используют доски, которые крепят саморезами и укрепляют уголками.
Заполнение конструкции песком

Специалисты рекомендуют использовать для игровых площадок речной песок, так как он в несколько раз чище и процент посторонних примесей достаточно низок. Хорошей альтернативой послужит кварцевый песок, но его цена будет значительно выше.
Стоит отметить, что в магазинах можно найти специальный песок, который предусмотрен для организации детских игр. Из-за высокого содержания глины лепить фигуры и строить замки будет удобнее. В такую продукцию производители добавляют специальные отдушки, которые будут отпугивать:
- насекомых;
- собак;
- кошек.
Засыпают песок не доходя до краев песочницы примерно на 5 см. После этого можно сдавать песочницу в эксплуатацию детям.
Независимо от типа песка его необходимо просеивать, так как в процессе хранения и транспортирования в него могли попасть насекомые или посторонние предметы.
Детские песочницы с крышками

Дополнительной защитой от животных и крупного мусора для песочницы послужит крышка. Можно накрывать ее полиэтиленовой пленкой или старым покрывалом, но срок их эксплуатации будет небольшим. Практичнее будет смастерить специальную крышку. Она может быть выполнена в самых разных вариантах:
- съемная;
- одностворчатая;
- двустворчатая;
- крышка-трансформер.
Последний вариант считается самым лучшим, так как при раскрытии песочницы крышка будет трансформироваться в лавочки, на которых дети смогут сидеть. Закрепляют крышки к конструкции песочницы при помощи обычных дверных петель. Для удобства можно прикрутить к створкам ручки. Чтобы сделать такую конструкцию между досками фиксируют петли, которые и будут формировать скамейку при открытии песочницы.
Как видите, при выборе песочницы с крышкой можно получить множество преимуществ. Простые и легкие конструкции сможет открывать сам малыш, поэтому родителям не придется беспокоиться.
Крышка для песочницы выполняет одновременно несколько функций: защитную, практичную и декоративную.
Пошаговая инструкция

Наличие крышки на детской песочнице имеет большое количество преимуществ. Например, она защищает конструкцию:
- от посягательств кошек и собак сходить в туалет;
- от мусора, гнилых плодов и веток;
- от чрезмерного промокания при дожде;
- от разбрасывания песка по всей детской площадке.
В большинстве случаев сделать крышку не составляет особых трудностей. Достаточно сбить щит из досок. Но на практике такая крышка окажется достаточно громоздкой и тяжелой, что даже не каждый ребенок сможет ее поднять. По этой причине стоит рассмотреть облегченный вариант изготовления крышки-трансформер. Хотя на ее изготовление потребуется больше времени в целом результат будет намного лучше.
Инструмент и материал

Для начала мы рекомендуем подготовить все необходимые инструменты и материалы:
- Доски для сооружения каркаса размером 1,5×1,5 м в двух экземплярах. Доска должна иметь такие габариты 32×120×6000 мм.
- Доски 2 штуки 20×120×6000 мм.
- Брус 2 штуки 50×50×1000 мм. Они будут нужны для скрепления спинки и корпуса крышки.
- Агроволокно цельным куском 1,6×1,6 м.
- Петли дверные 8 штук.
Что касается инструментов, то приготовьте следующее:
- Скобы для степлера.
- Саморезы.
- Пропитка для дерева.
- Морилка.
- Лак.
- Электролобзик или пила.
- Шуруповерт.
- Степлер.
- Рубанок или шлифовальный круг.
- Рулетка.
Строительство крышки

Начинать следует с изготовления каркаса. Доски распиливаете на нужный размер.
Если доска имеет 6 м в длину, то распиливаете ее на 4 равных отрезка. В результате получается безотходное производство.
Все заготовки рекомендуется хорошо отшлифовать и предварительно обстругать. В результате должна получиться ровная и гладкая поверхность. В противном случае детишки могут пораниться или занести занозы. Также все заготовки следует обработать специальным раствором, предотвращающим от гниения и грибка. Далее, берете брус и распиливаете его на 4 отрезка по 25 см. Брус следует подвергнуть такой же обработке, что и доски.

При помощи бруса скрепляете доски в углах, а перед этим собираете двух-ярусный корпус из 8 досок. Шляпки саморезов или если вы используете гвозди, необходимо хорошо «утопить» в заготовку. Чтобы песок не просыпался в щели между досками, приклейте самоклеящийся уплотнитель. Если каркас имеет точные размеры, то можно приступать к изготовлению крышки-трансформера.
По желанию можно расположить две лавочки друг напротив друга или с одной стороны столик.
Рассмотрим вариант изготовления крышки со столиком. Для этого прикрепляете первую доску к песочнице саморезами, а вторую к первой при помощи петель. Достаточно 2 петли. Таким образом, можно регулировать размер столика, делая его шире и наоборот.
Чтобы сделать лавочку, возьмите 6 равных досок. Два будут использованы для сиденья, 2 для спинки и оставшиеся 2 для крепления к каркасу. Ниже на схеме видно, как это выглядит:

К наружной стороне крышки прикручиваете петли. Они необходимы для того, чтобы при открывании вверх планки отгибались. Для фиксации спинки также используете и брус, который ранее был тщательно обработан. Его длина должна быть достаточной, чтобы при открытом состоянии обеспечивалась хорошая устойчивость и достаточный упор.
Если песочницей пользуются часто, то вместо саморезов для крепления можно использовать болты. Саморезы могут начать вываливаться.

В заключение ко дну фиксируется агроволокно при помощи степлера. Вот по такой простой схеме можно самостоятельно сделать песочницу с крышкой.
Несколько идей и советов

Детская песочница из дерева – это классический вариант, но стоит отметить, что он не единственный. Фото, которые вы можете посмотреть в конце статьи помогут вам определиться с выбором. Вы сможете рассмотреть все детали и основные элементы конструкций.
Форма песочницы необязательно должна быть квадратной. Распространены и другие варианты:
- круг (из автомобильных шин);
- шестиугольник (из бревен);
- овал (из пластика);
- лабиринт (из нескольких типов пиломатериалов).
Также не стоит отдавать предпочтение только одному цвету, используйте все цвета радуги, и малыш будет в восторге от такой игровой площадки.
Для организации песочницы в форме лабиринта потребуется больше места, но при этом она не будет иметь четких форм и геометрической точности.
Изготовить детскую песочницу для своего ребенка очень просто при этом финансовые затраты будут небольшими. Важно правильно подобрать материал, сделать его безопасным, а также подготовить место. Достаточно потратить всего несколько часов и площадка будет полностью готова к детским играм. Увлеченный игрой малыш сможет проводить в ней полдня без перерыва, а, значит, у родителей появится свободное время.
Видео
Просмотрев это видео, вы узнаете о простых методах организации песочницы для детских игр:
Фото
На предоставленных фотографиях, вы сможете увидеть немало интересных идей по созданию песочницы:














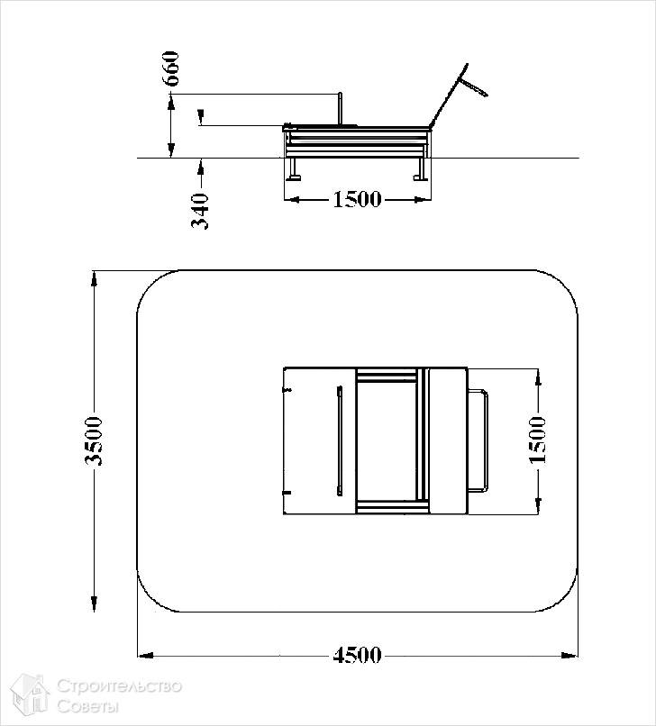
Чертежи
Ниже приводятся различные чертежи, которые можно взять за основу для изготовления детской песочницы:








