Детали профильные из древесины и древесных материалов для строительства. Технические условия
На нашем сайте можно бесплатно скачать ГОСТ 8242-88 (1996) в удобном формате. Узнать актуальный статус ГОСТА «Детали профильные из древесины и древесных материалов для строительства. Технические условия» на 2016 год.
Скрыть дополнительную информацию

Страница 1

Страница 2

Страница 3

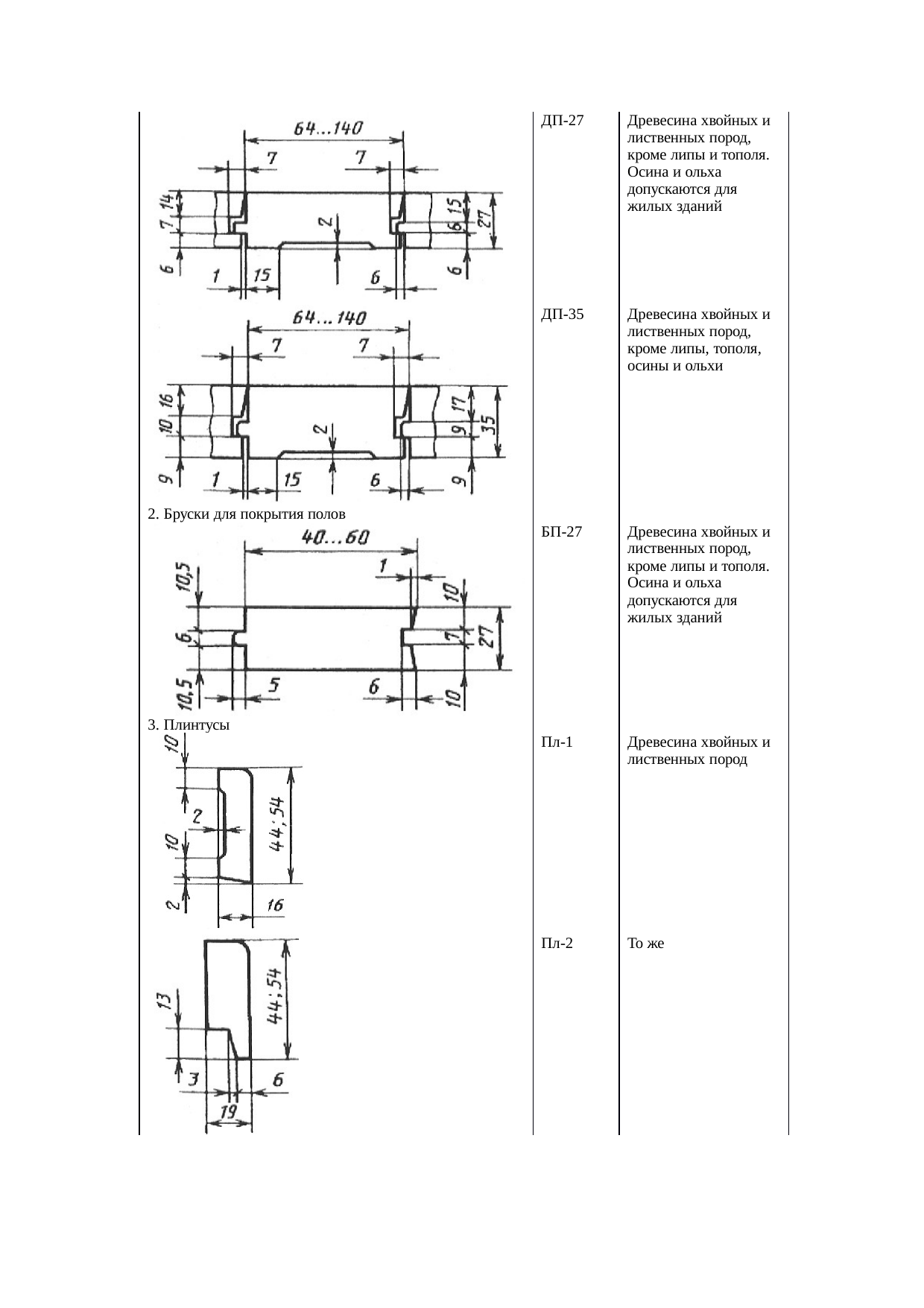
Страница 4

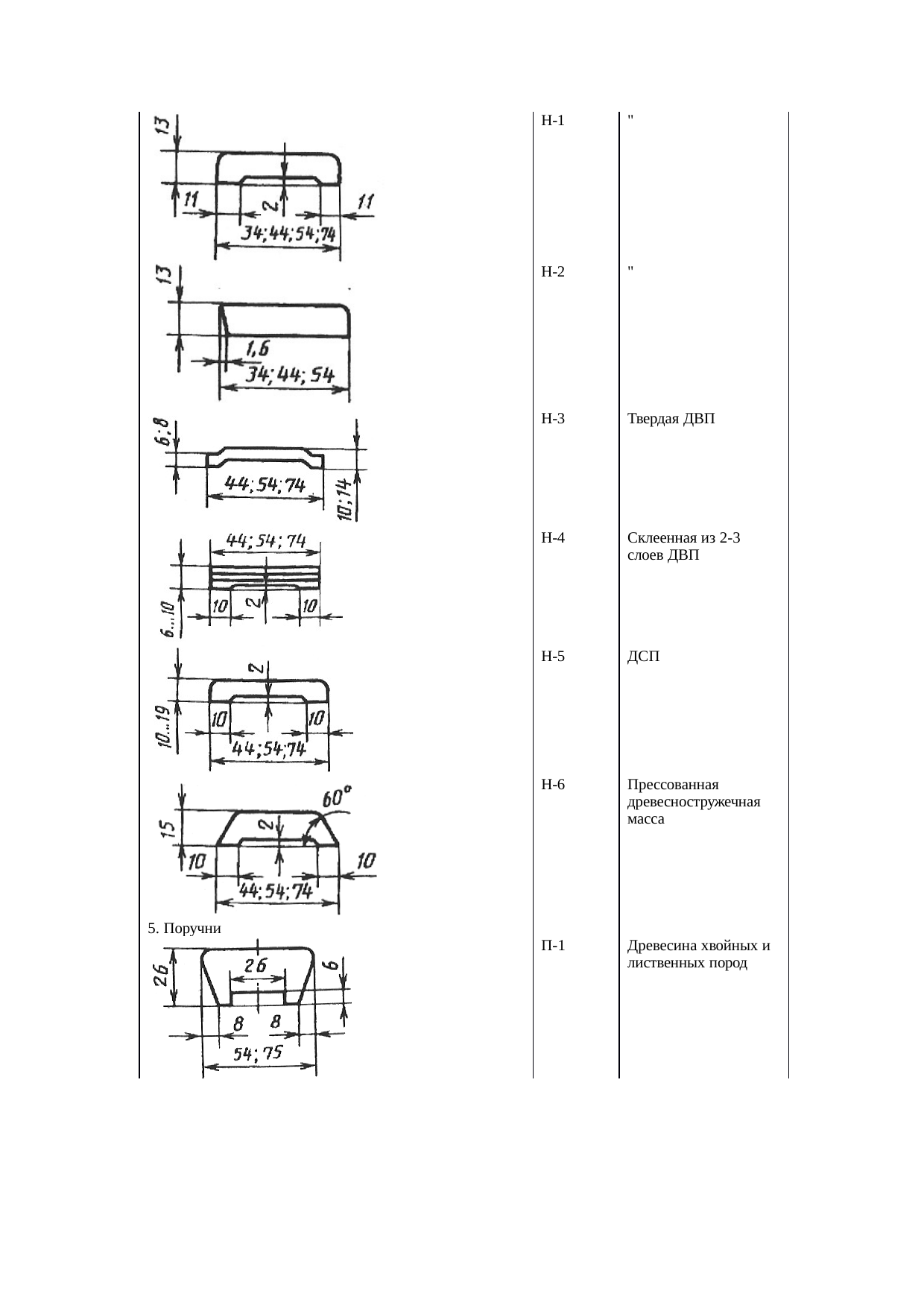
Страница 5

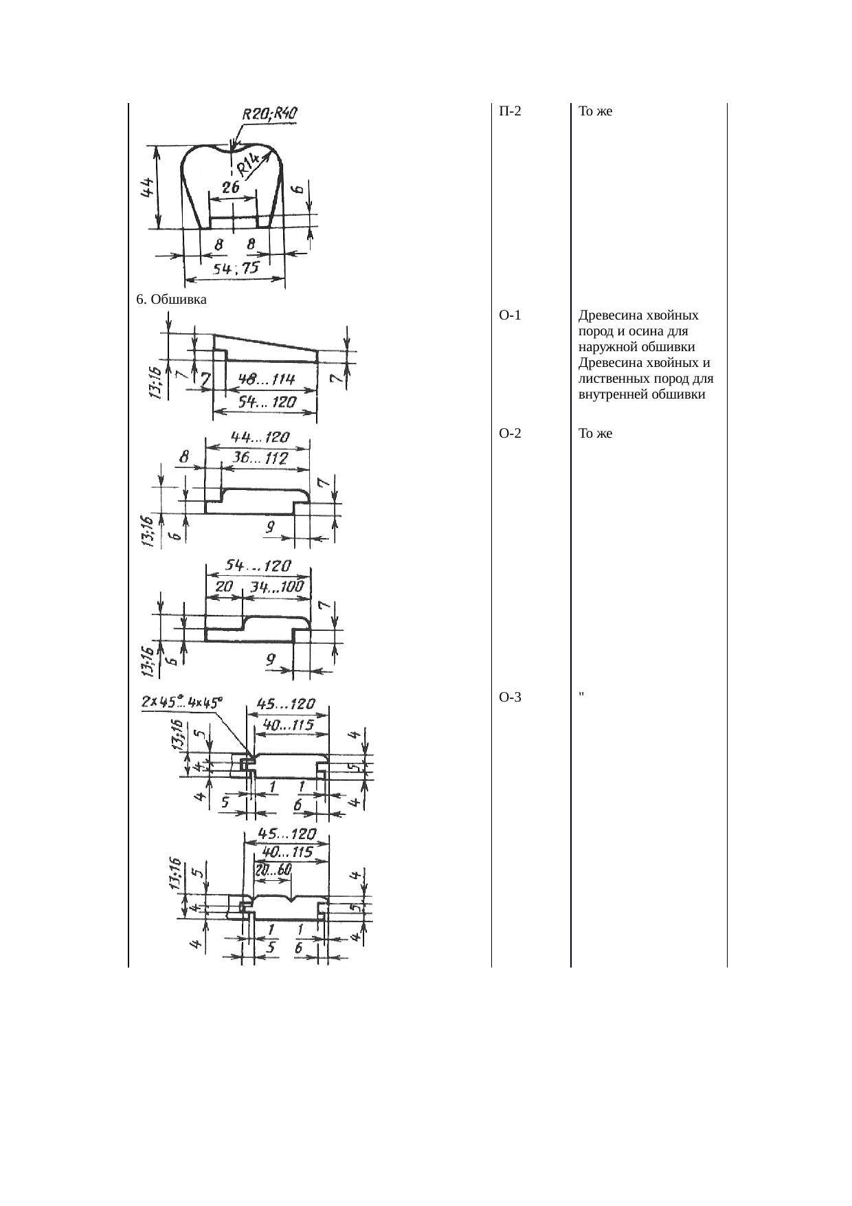
Страница 6

Страница 7

Страница 8

Страница 9

Страница 10

Страница 11

Страница 12
