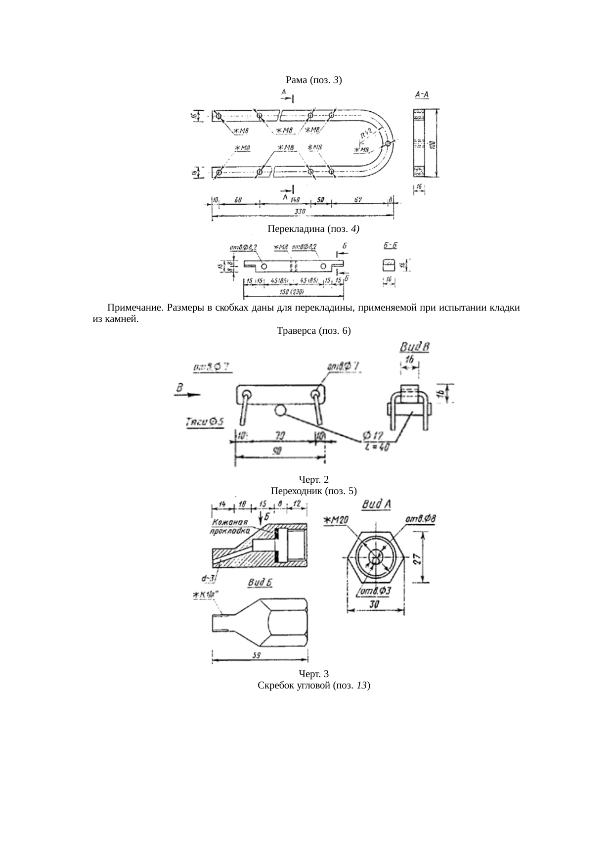
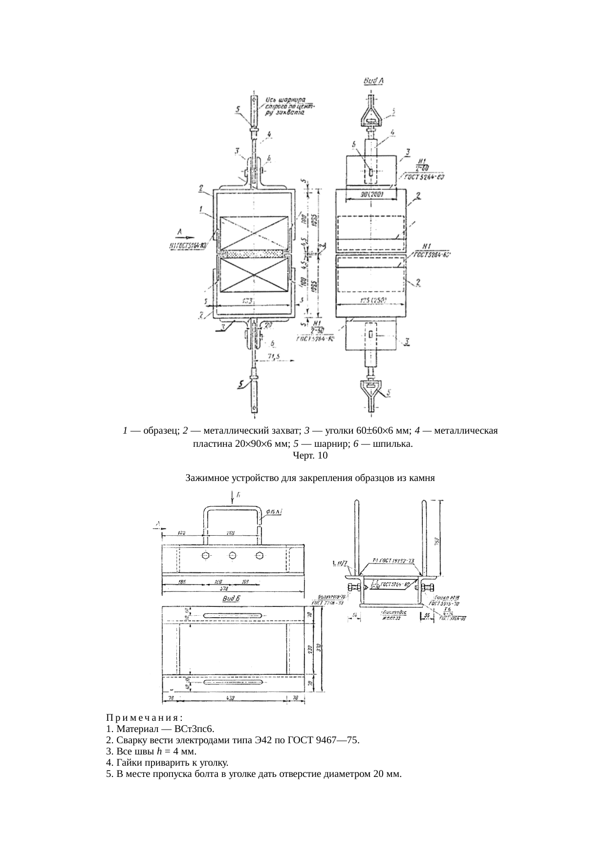
Конструкции каменные. Метод определения прочности сцепления в каменной кладке
На нашем сайте можно бесплатно скачать ГОСТ 24992-81 в удобном формате. Узнать актуальный статус ГОСТА «Конструкции каменные. Метод определения прочности сцепления в каменной кладке» на 2016 год.
Скрыть дополнительную информацию

Страница 1

Страница 2

Страница 3

Страница 4

Страница 5

Страница 6

Страница 7

Страница 8

Страница 9

Страница 10

Страница 11
