Защитные сооружения гражданской обороны в подземных горных выработках
Заменяет

Страница 1

Страница 2

Страница 3

Страница 4

Страница 5

Страница 6

Страница 7

Страница 8

Страница 9

Страница 10

Страница 11

Страница 12

Страница 13

Страница 14

Страница 15

Страница 16

Страница 17

Страница 18

Страница 19

Страница 20

Страница 21

Страница 22

Страница 23

Страница 24

Страница 25

Страница 26

Страница 27

Страница 28

Страница 29

Страница 30
СТРОИТЕЛЬНЫЕ НОРМЫ И ПРАВИЛА
ЗАЩИТНЫЕ СООРУЖЕНИЯ
ГРАЖДАНСКОЙ ОБОРОНЫ
В ПОДЗЕМНЫХ
ГОРНЫХ ВЫРАБОТКАХ
СНиП 2.01.54-84
Москва 2001
РАЗРАБОТАНЫ ЦНИИпромзданий Госстроя СССР (руководитель темы — И.П. Романов), Центрогипрошахтом Минуглепрома СССР (руководитель темы — канд. техн. наук В.Н. Пуголовкин), МакНИИ Минуглепрома СССР (руководитель темы — канд. техн. наук К.К. Бусыгин), ВНИМИ Минуглепрома СССР (руководитель темы — канд. техн. наук В.В. Райский), ЛенНИИРГ Минздрава РСФСР (руководитель темы — д-р мед. наук А.Н. Коржавин) и войсковой частью 52609 (руководитель темы — д-р техн. наук М.П. Цивилев, канд. техн. наук В.Г. Фоменко) с участием ВНИИГД Минуглепрома СССР, ВНИИГ Минудобрений, МолдНИИстромпроекта Минстройматериалов Молдавской ССР, Военно-инженерной академии им. В.В. Куйбышева и войсковой части 12093.
ВНЕСЕНЫ ЦНИИпромзданий Госстроя СССР.
ПОДГОТОВЛЕНЫ К УТВЕРЖДЕНИЮ Главтехнормированием Госстроя СССР (В.П. Бовбель).
С введением в действие СНиП 2.01.54-84 «Защитные сооружения гражданской обороны в подземных горных выработках» утрачивают силу «Указания по проектированию противорадиационных укрытий, размещаемых в горных выработках» (СН 439-72) и «Указания по проектированию убежищ, размещаемых в горных выработках» (СН 453-73).
|
Государственный комитет СССР по делам строительства (Госстрой СССР) |
Строительные нормы и правила |
СНиП 2.01.54-84 |
|
Защитные сооружения гражданской обороны в подземных горных выработках |
Взамен СН 439-72 и СН 453-73 |
|
Внесены ЦНИИпромзданий Госстроя СССР |
Утверждены постановлением Государственного комитета СССР по делам строительства от 29 декабря 1984 г. № 236 |
Срок введения в действие 1 октября 1985 г. |
Настоящие нормы распространяются на проектирование вновь строящихся и реконструируемых защитных сооружений гражданской обороны (убежищ и противорадиационных укрытий), размещаемых в подземных горных выработках, включая зоны вечной мерзлоты, и предназначаемых для защиты в военное время рабочих и служащих работающих смен рудников, шахт и других объектов, а также населения от воздействия оружия массового поражения.
1. ОБЩИЕ ПОЛОЖЕНИЯ
1.1. При проектировании защитных сооружений гражданской обороны в подземных горных выработках кроме требований настоящих норм следует соблюдать требования других нормативных документов, утвержденных или согласованных Госстроем СССР, а также правил безопасности для предприятий соответствующих отраслей промышленности.
Примечание. Защитные сооружения гражданской обороны в дальнейшем именуются «защитные сооружения», подземные горные выработки — «выработки».
1.2. Защитные сооружения не должны нарушать производственную деятельность объекта в мирное время.
1.3. В системе выработок объекта следует предусматривать, как правило, одно защитное сооружение, обеспечивающее возможность занятия его укрываемыми в возможно короткое время.
В тех случаях, когда горно-технические условия выработок не позволяют обеспечить сбор всех укрываемых в одном защитном сооружении, допускается при технико-экономическом обосновании предусматривать на одном объекте два защитных сооружения и более с учетом конкретных условий.
1.4. Защитные сооружения следует размещать в протяженных выработках (квершлагах, штреках, штольнях, наклонных стволах, выработках околоствольных дворов).
На предприятиях по добыче строительных материалов, каменной и калийной солей под защитные сооружения допускается использовать также устойчивые камеры. Высота приспосабливаемых для этой цели камер с незакрепленными потолочинами должна быть не более 6 м.
Минимальные размеры выработок, используемых для размещения укрываемых, должны быть по высоте 1,8 м и по ширине — 2 м, угол наклона — не более 18°.
1.5. Под защитные сооружения следует приспосабливать, как правило, выработки, которые в условиях естественной вентиляции проветриваются свежим воздухом при неизменном направлении действия естественной тяги в течение года.
Для размещения укрываемых необходимо использовать выработки с температурой воздуха при нормальной (промышленной) вентиляции не выше 27 °С.
1.6. Приспосабливаемые под защитные сооружения выработки и пути эвакуации укрываемых на поверхность не должны подвергаться затоплению шахтными и поверхностными водами и загазованности вредными газами в течение установленного срока использования этих выработок.
1.7. Защитные сооружения должны быть связаны подходными выработками не менее чем с двумя выходами на поверхность.
При проектировании убежищ с учетом расположения выходов на поверхность, согласно обязательному приложению 1*, один из выходов должен быть оборудован как аварийный.
Противорадиационные укрытия допускается размещать в выработках с одним выходом на поверхность при условии обеспечения защитного сооружения принудительной вентиляцией.
* Обязательное приложение 1 рассылается министерствами и ведомствами.
1.8. Состав и численность укрываемых определяются в задании на проектирование защитных сооружений с учетом конкретных условий сбора укрываемых в приспосабливаемых выработках.
1.9. В защитных сооружениях следует предусматривать защиту рабочих и служащих подземных смен, а при наличии штолен и стволов с углом наклона не более 30°, кроме того, — рабочих и служащих, работающих на поверхности, и населения.
В необходимых случаях с учетом радиуса сбора укрываемых, работающих на поверхности, в подходных к убежищам штольнях и наклонных стволах следует предусматривать устройство отделенных от убежищ защищенных входов.
1.10. При соответствующем обосновании для спуска укрываемых с поверхности в приспосабливаемые под защитные сооружения выработки могут быть использованы оборудованные лестничным отделением стволы (шурфы) с углом наклона более 30° при их глубине (длине спуска), как правило, не более 100 м.
В проектах убежищ в этом случае необходимо предусматривать строительство на поверхности защищенного сооружения — накопителя укрываемых в соответствии с требованиями п. 2.12.
Целесообразность проектирования убежища с накопителем для защиты рабочих и служащих подземной смены и работающих на поверхности следует определять в результате технико-экономического сравнения этого варианта с вариантом, предусматривающим строительство убежищ в выработках и на поверхности для защиты тех же рабочих и служащих.
1.11. Радиус и время сбора укрываемых в защитных сооружениях следует принимать согласно обязательному приложению 1.
1.12. Пропускную способность подходных выработок на 1 м ширины оборудованного для передвижения людей прохода следует принимать равной: 80 чел/мин для выработок с уклоном до 7°, 60 — свыше 7 до 15° и 40 чел/мин для выработок с уклоном свыше 15 до 30°.
Использование механических подъемов допускается только для заполнения противорадиационных укрытий на объектах с устойчивым электроснабжением в военное время.
1.13. Сроки перевода приспосабливаемых выработок на режим защитного сооружения и расчетную продолжительность пребывания укрываемых в защитных сооружениях следует принимать в соответствии с требованиями СНиП II-11-77.
1.14. Защитные сооружения, в том числе на вновь строящихся и реконструируемых объектах, следует проектировать по специальному заданию.
Состав задания на проектирование, стадийность проектирования, разработку и оформление проектов защитных сооружений необходимо принимать в соответствии с требованиями нормативных документов по разработке проектов и смет для промышленного строительства с учетом указаний обязательного приложения 1.
Дополнительно в задании следует указывать класс защитного сооружения (для убежищ), численность и состав укрываемых, численность работающих на пункте управления объекта в случае размещения его в данном защитном сооружении, сведения о вторичных факторах поражения и другие необходимые данные.
Класс убежища следует принимать в соответствии с требованиями СНиП II-11-77.
К заданию на проектирование защитных сооружений следует прилагать акты замеров параметров естественной тяги и газового состава воздуха в выработках в летнее и зимнее время года и материалы предварительного обследования приспосабливаемых выработок и выходов на поверхность.
1.15. Сметную стоимость строительства защитных сооружений на вновь строящихся и реконструируемых объектах определяют по локальной смете. Затраты на строительство защитных сооружений следует включать в объектные сметы на строительство соответствующих выработок и сооружений.
2. ОБЪЕМНО ПЛАНИРОВОЧНЫЕ И КОНСТРУКТИВНЫЕ РЕШЕНИЯ
2.1. В защитных сооружениях следует предусматривать площади для размещения укрываемых емкостей для хранения запасов питьевой воды, склада продовольствия, оборудования санитарных узлов, медицинских пунктов (санитарных постов). В необходимых случаях следует предусматривать площади для размещения пункта управления объекта, вентиляционного оборудования и защищенного автономного источника электроснабжения.
2.2. Норму площади пола выработки для размещения укрываемых следует принимать равной: для детей до 11 лет, кормящих и беременных женщин и престарелых — 1 м2 на 1 чел., для остальных укрываемых — 0,6 м2 на 1 чел.
В убежищах нормы размещения укрываемых следует проверять по тепловым условиям согласно табл. 1.
Таблица 1
|
Температура воздуха в приспосабливаемой выработке в летнее время года при нормальной (промышленной) вентиляции tв,°c |
Минимальная площадь внутренней поверхности выработки в расчете на одного укрываемого, м2 |
|
До 21 |
1,5 |
|
Св. 21 до 25 |
2,0 |
|
» 25 » 27 |
2,5 |
|
Примечание. Температура воздуха tв в пройденных выработках замеряется в натурных условиях, в проектируемых определяется расчетом. |
|
2.3. В убежищах на объектах, подверженных опасному воздействию сильнодействующих ядовитых веществ (СДЯВ), а также загазованности окисью углерода и углекислым газом при пожарах на поверхности, внутренний объем приспосабливаемых выработок должен быть из расчета 5 м3 на одного укрываемого. В этом случае внутренний объем каждой примыкающей к убежищу выработки (м3), в которую воздух под действием естественной тяги вытекает из убежища, до ближайшего узла вентиляционной сети должен быть равным не менее (mп, mв — число примыкающих к убежищу выработок, соответственно с поступающей в убежище и вытекающей из него струей воздуха при естественной вентиляции).
Перечень объектов, которые могут быть подвержены опасному воздействию СДЯВ, устанавливается министерствами и ведомствами. Ожидаемую и допустимую концентрации окиси углерода и углекислого газа в районе воздухоподающих стволов и штолен следует определять в соответствии с требованиями СНиП II-11-77.
2.4. В защитных сооружениях следует предусматривать 100 %-ное обеспечение местами для лежания детей до 11 лет, кормящих и беременных женщин и престарелых. Для остальных укрываемых следует предусматривать 75 % мест для сидения и 25 % — для лежания.
Места для сидения и лежания следует оборудовать в соответствии с требованиями СНиП II-11-77.
В зонах вечной мерзлоты места для размещения укрываемых должны отстоять от стенок выработок не менее чем на 0,7 м.
2.5. Выработки, предназначаемые для передвижения укрываемых пешком, должны быть оборудованы: при углах наклона от 7 до 15° — перилами, свыше 15 до 30° — сходнями со ступеньками и перилами, свыше 30 до 45° — лестницами с перилами, свыше 45° — лестничными отделениями.
2.6. Площадь склада продовольствия следует принимать в соответствии с требованиями СНиП II-11-77.
2.7. Санитарные узлы следует проектировать раздельными для мужчин и женщин из расчета одно очко на 75 человек и один умывальник на 200 человек, но не менее одного на санитарный узел.
Размещение санитарных узлов следует предусматривать со стороны исходящей из защитного сооружения струи воздуха.
2.8. В защитных сооружениях следует предусматривать санитарные посты из расчета один санитарный пост площадью 2 м2 на каждые 500 укрываемых, но не менее одного на защитное сооружение.
При численности укрываемых свыше 1000 человек в защитном сооружении кроме санитарных постов необходимо предусматривать медицинский пункт с изолятором общей площадью до 25 м2.
2.9. Пункт управления объекта в подземном защитном сооружении следует проектировать в соответствии с требованиями СНиП II-11-77. При этом общую площадь рабочей комнаты и комнаты связи допускается увеличивать до 30 м2.
2.10. Вентиляционное оборудование следует размещать вблизи входов в защитные сооружения, (тамбуров) на свободных от технологического оборудования площадях выработок. При необходимости для этой цели допускается предусматривать расширение выработок или сооружение специальных, как правило, тупиковых выработок (камер).
2.11. Автономные источники электроснабжения защитных сооружений (дизельные электростанции, аккумуляторные батареи) следует размещать вблизи защитного сооружения в выработках, проветриваемых исходящей из него или обособленной струей воздуха, или в пределах защитного сооружения на исходящей воздушной струе вне помещений для укрываемых.
Допускается при соответствующем обосновании использовать автономные источники электроснабжения, устанавливаемые в убежищах на поверхности.
2.12. Накопитель укрываемых должен соединяться с используемым для спуска в убежище стволом галереей длиной 2 — 3 м и сечением 1,2´2 м.
Площадь накопителя, включая соединительную галерею, следует принимать из расчета кратковременного размещения укрываемых работающей на поверхности смены по норме 0,15 м2 на человека.
Вход в накопитель следует оборудовать тамбуром-шлюзом. Площадь тамбура-шлюза и ширину дверей в нем следует принимать в соответствии с требованиями СНиП II-11-77, предъявляемыми к тамбурам-шлюзам убежищ гражданской обороны.
Для спуска укрываемых могут быть использованы технологические стволы небольшого сечения (до 7 м2) или специально пробуренные шурфы диаметром не менее 1,2 м.
Накопитель и ствол (шурф) должны быть защищены от воздействия поражающих факторов ядерного оружия в соответствии со степенью защиты убежища.
2.13. Места для хранения зараженной одежды следует предусматривать перед входами в защитные сооружения.
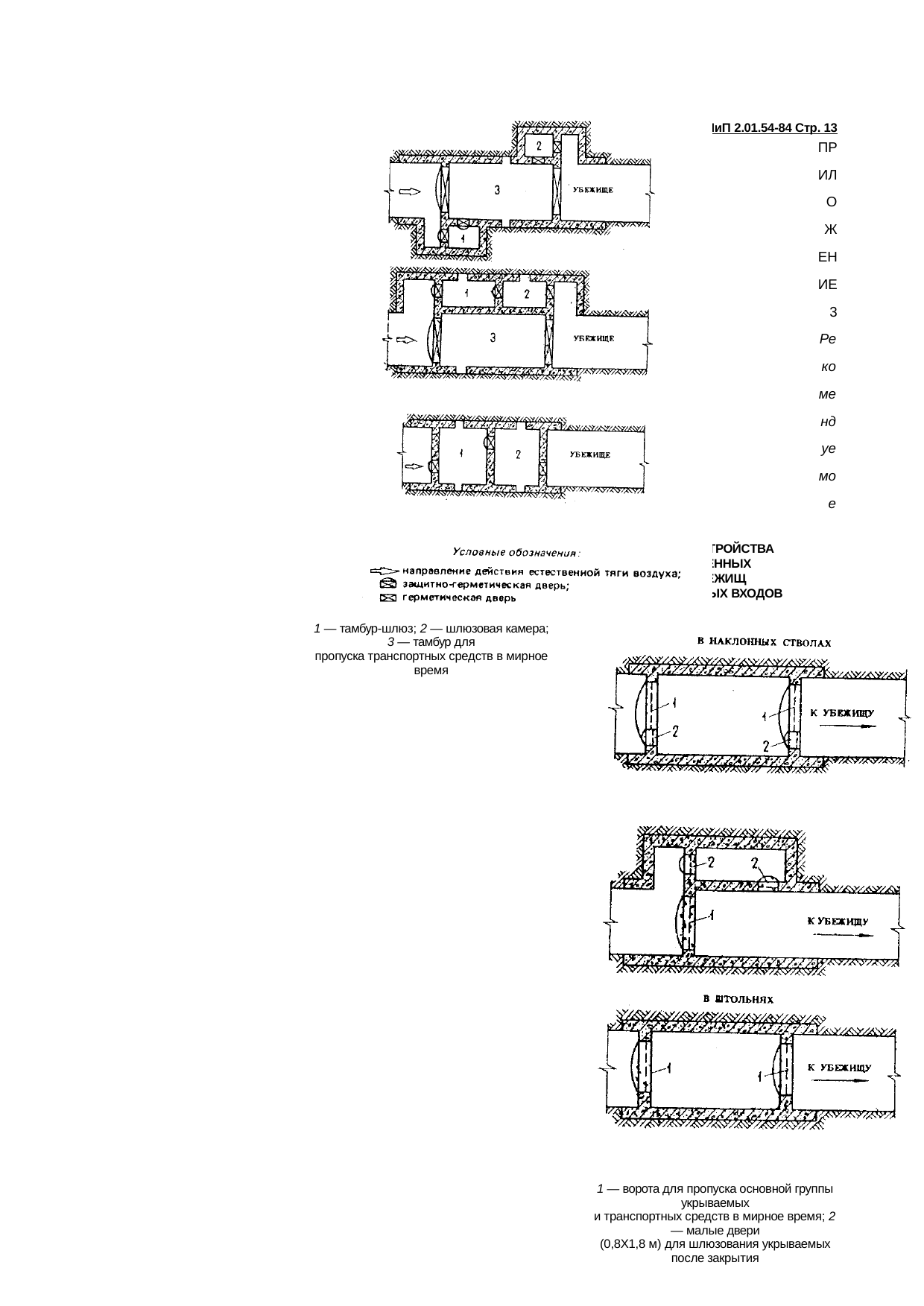
ЗАЩИЩЕННЫЕ ВХОДЫ В УБЕЖИЩА
2.14. Количество входов в убежище, их расположение и конструктивные решения следует определять в проектах с учетом схемы используемых выработок, численности и размещения укрываемых параметров ударной волны затекания и характера действия естественной тяги воздуха в выработках. При размещении убежищ в протяженных выработках следует предусматривать, как правило, два входа с противоположных сторон используемой выработки.
Пропуск укрываемых в убежище в условиях зараженной атмосферы следует предусматривать, как правило, из выработок с исходящей из убежища струей воздуха.
2.14.1. Входы, размещаемые в выработках с исходящей из убежища струей воздуха, следует оборудовать однокамерным тамбуром-шлюзом при давлении во фронте ударной волны затекания более 0,01 МПа (0,1 кгс/см2) и одной герметической перемычкой с дверью при давлении во фронте ударной волны затекания, равном и менее 0,01 МПа (0,1 кгс/см2).
2.14.2. Входы, размещаемые в выработках, из которых в условиях естественной вентиляции по данным замеров воздух поступает в убежище, следует оборудовать однокамерным тамбуром-шлюзом независимо от величины давления во фронте ударной волны затекания, а в случае необходимости использования этих выработок для пропуска укрываемых в убежище в условиях зараженной атмосферы в них следует оборудовать входы с двойным шлюзованием, состоящие из последовательно расположенных тамбура-шлюза и шлюзовой камеры.
Во входах с двойным шлюзованием в случае их размещения в выработке, из которой осуществляется забор воздуха фильтровентиляционным агрегатом, тамбур-шлюз должен быть вентилируемым.
Схемы устройства входов с двойным шлюзованием приведены в рекомендуемом приложении 2.
2.14.3. В примыкающих к убежищам неподходных выработках, имеющих связь с поверхностью, необходимо предусматривать устройство тамбура или одной перемычки.
Устройство тамбура следует предусматривать в выработках, из которых воздух под действием естественной тяги поступает в убежище, устройство одной перемычки — в выработках, куда воздух под действием естественной тяги вытекает из убежища.
При устройстве тамбура из глухих перемычек внутренняя перемычка должна быть оборудована герметическим ставнем размером 0,7´0,7 м.
2.15. Площадь вентилируемого тамбура-шлюза и площадь примыкающей к нему шлюзовой камеры следует принимать из расчета 1 м2 на каждые 25 человек, пропускаемых в убежище в условиях зараженной атмосферы.
Ширина всех тамбуров-шлюзов, шлюзовых камер и тамбуров должна быть не менее чем на 0,6 м больше ширины дверного полотна.
2.16. Ширину дверей во входах, устраиваемых в штольнях и наклонных стволах и используемых для пропуска укрываемых с поверхности, следует определять в зависимости от численности укрываемых, приходящихся на вход, в соответствии с требованиями СНиП II-11-77.
Ширина дверей во входах в убежище должна быть не менее 0,8 м.
2.17. При давлении во фронте ударной волны затекания свыше 0,01 МПа (0,1 кгс/см2) обе перемычки в тамбурах-шлюзах, наружные перемычки в тамбурах, одиночные перемычки и двери должны быть защитно-герметическими, остальные перемычки и двери — герметическими.
При давлении во фронте ударной волны затекания, равном и менее 0,01 МПа (0,1 кгс/см2), все перемычки и двери должны быть герметическими.
2.18. В отделенных от убежищ защищенных входах, размещаемых в наклонных стволах и штольнях, следует предусматривать установку защитных перемычек и дверей, допускающих проскок ударной волны величиной не более 0,01 МПа (0,1 кгс/см2).
Возможные схемы устройства отделенных от убежищ защищенных входов приведены в рекомендуемом приложении 3.
2.19. Входы, устраиваемые в штольнях и наклонных стволах, следует размещать, как правило, на участке скальных или полускальных пород с таким условием, чтобы толщина пород над перекрытием входа была равной не менее чем двум пролетам выработки.
КОНСТРУКТИВНЫЕ РЕШЕНИЯ
2.20. Выработки, приспосабливаемые под убежища, а также аварийные выходы на поверхность должны быть устойчивыми при совместном воздействии на них сейсмовзрывных волн и статических нагрузок от горного давления. При необходимости следует предусматривать дополнительное крепление выработок.
Не допускается использовать под убежища незакрепленные выработки, пройденные в породах с четко выраженной слоистостью, а также незакрепленные выработки, пройденные буровзрывным способом.
Выработки, приспосабливаемые под противорадиационные укрытия, должны быть устойчивыми от воздействия горного давления.
2.21. Конструкции лестничных отделений в стволах (шурфах), которые предусматривается использовать в качестве аварийных выходов из убежищ на поверхность, следует проверять на устойчивость от воздействия ударной волны затекания и в необходимых случаях усиливать.
В случае расположения лестничных отделений вблизи (до 5 м) стен капитальных надшахтных зданий лестницы и полки должны быть защищены от разрушения обломками стеновых ограждений путем установки защитных перекрытий — балок, рассчитанных также на воздействие ударной волны затекания.
2.22. Конструкции перемычек и дверей, устанавливаемых при входах в убежища и в примыкающих к ним выработках должны обеспечивать аэродинамическое сопротивление не менее 1000 даПа × с2/м6 (1000 киломюргов).
2.23. Строительство наружных перемычек в тамбурах-шлюзах и тамбурах, где требуется поддерживать подпор воздуха, следует предусматривать с применением тампонажа закрепного пространства, а в трещиноватых породах, кроме того, — тампонажа вмещающих пород в плоскости перемычек на глубину 2 м в слаботрещиноватых и до 4 м в сильнотрещиноватых породах.
Разделку врубов для перемычек следует предусматривать, как правило, механическим способом. При необходимости буровзрывных работ следует максимально ограничивать мощность зарядов.
2.24. При размещении убежищ в выработках, пройденных в породах с постоянным деформированием (пучением), следует предусматривать мероприятия по охране перемычек и дверей от влияния горного давления (увеличение несущей способности перемычек, сооружение перемычек, опирающихся на тюбинговую крепь, устройство обратного свода, податливых элементов и другие мероприятия с учетом конкретных условий).
2.25. В монолитных крепях тамбуров-шлюзов и тамбуров, где требуется поддерживать подпор воздуха, следует предусматривать разрывы шириной 0,5 м по контуру выработки для обеспечения поддержания подпора воздуха в закрепном пространстве. При необходимости на участках разрыва в монолитных крепях следует устанавливать рамные металлические или железобетонные крепи.
2.26. В противорадиационных укрытиях размещение укрываемых следует предусматривать на удалении от входов с поверхности, равном не менее , м (S — площадь поперечного сечения выходящей на поверхность выработки, м2).
В зонах возможных слабых разрушений вентиляционное оборудование должно быть рассчитано на давление ударной волны затекания, величину которого на поверхности следует принимать в соответствии с требованиями СНиП II-11-77.
Специальные противорадиационные и противоударные устройства для защиты укрываемых в противорадиационных укрытиях, в том числе в зонах возможных слабых разрушений, не предусматриваются.
3. РАСЧЕТ ЗАЩИТНЫХ КОНСТРУКЦИЙ И КОНСТРУКТИВНЫХ ЭЛЕМЕНТОВ ВЫРАБОТОК
ОСНОВНЫЕ РАСЧЕТНЫЕ ПОЛОЖЕНИЯ
3.1. Защитные конструкции (перемычки, двери, ставни, расширительные камеры) следует рассчитывать на нагрузки от воздействия ударной волны затекания. Перемычки, кроме того, должны быть рассчитаны на нагрузки от горного давления.
3.2. Расчет защитных конструкций следует производить по предельному состоянию первой группы.
Конструкции защитных перемычек следует рассчитывать с учетом упругопластических деформаций; защитно-герметические и герметические перемычки и двери, а также ставни и расширительные камеры следует рассчитывать в упругой стадии.
Коэффициент перегрузки к эквивалентным статическим нагрузкам следует принимать равным единице, а к остальным нагрузкам — в соответствии с требованиями СНиП II-94-80.
3.3. Внутренние усилия в элементах защитных конструкций (изгибающие моменты, продольные и поперечные силы) следует определять по правилам строительной механики.
3.4. Расчет устойчивости незакрепленных выработок, приспосабливаемых под защитные сооружения, следует выполнять по предельному состоянию первой группы.
В этих выработках расчету на устойчивость подлежат следующие конструктивные элементы:
породы на контуре протяженных выработок;
потолочины в камерных выработках;
междукамерные целики.
Закрепленные выработки в убежищах на первом этапе следует рассчитывать как незакрепленные. В тех случаях, когда породы на контуре этих выработок оказываются неустойчивыми, производят расчеты устойчивости крепи на нагрузки от действия вывала породы. Крепи, плотно связанные с породой (прибетонированные), следует рассчитывать, кроме того, на нагрузки от действия сейсмовзрывных волн.
В противорадиационных укрытиях устойчивость выработок, закрепленных монолитными, рамными и анкерными крепями, следует устанавливать путем их обследования и проверки сохранности крепи.
3.5. Статические нагрузки и усилия в крепи от горного давления следует определять в соответствии с требованиями СНиП II-94-80. Методика определения внутренних усилий в крепи от действия сейсмовзрывных волн приведена в рекомендуемом приложении 7.
3.6. Расчетные динамические сопротивления материалов при расчете защитных конструкций и крепи следует принимать в соответствии с требованиями СНиП II-11-77.
НАГРУЗКИ ОТ УДАРНОЙ ВОЛНЫ ЗАТЕКАНИЯ
3.7. Давление во фронте ударной волны, затекающей в выработки с поверхности, а также за местными сопротивлениями выработок (изменение конфигурации выработки в виде поворота, пересечения, расширения или сужения, частичного заполнения сечения оборудованием и т.п.) DPзат, МПа (кгс/см2), следует определять по формуле
DPзат = KзатDРпр, (1)
где Kзат — коэффициент затекания, принимаемый по обязательному приложению 4;
DРпр — давление во фронте проходящей ударной волны перед местным сопротивлением, МПа (кгс/см2).
3.8. Давление во фронте ударной волны в конце прямолинейного участка выработки длиной х, равной или больше 10d, и диаметром, равным или меньше 8 м, DРпр(х) МПа (кгс/см2), следует определять по формуле
(2)
где jx — коэффициент, учитывающий одномерное расширение ударной волны, принимаемый по обязательному приложению 1;
е — основание натуральных логарифмов;
Kз — коэффициент затухания, принимаемый по табл. 2;
х — длина участка выработки, м;
Rг — гидравлический радиус выработки, равный отношению площади поперечного сечения к периметру выработки, м;
d — эквивалентный диаметр выработки, равный отношению учетверенной площади поперечного сечения к периметру выработки, м.
Таблица 2
|
Коэффициент аэродинамического сопротивления выработки d, даПа × с2/м2 (кг × с2/м4) |
Kз |
|
От 1 × 10-4 до 4 × 10-4 |
0,0005 |
|
Св. 4 × 10-4 » 8 × 10-4 |
0,001 |
|
» 8 × 10-4 » 20 × 10-4 |
0,002 |
|
» 20 × 10-4 » 35 × 10-4 |
0,003 |
|
» 35 × 10-4 » 50 × 10-4 |
0,004 |
3.9. Динамическую нагрузку на преграду (перемычку) следует принимать равной:
давлению во фронте проходящей ударной волны при расположении преграды параллельно направлению распространения ударной волны;
давлению отражения ударной волны при расположении преграды перпендикулярно направлению распространения ударной волны.
Давление отражения ударной волны DPотр определяется по формулам:
(3)
(3а)
где DРпр(х) — давление во фронте проходящей ударной волны затекания в месте установки преграды, МПа (кгс/см2).
3.10. Эквивалентную статическую нагрузку Рэкв, МПа (кгс/см2), от ударной волны затекания на элементы защитных конструкций следует определять по формуле
Рэкв = DРтахKд, (4)
где DРтах — максимальное давление ударной волны (динамическая нагрузка) на рассчитываемый элемент, МПа (кгс/см2), определяемое согласно пп. 3.7 — 3.9;
Kд — коэффициент динамичности, принимаемый равным: 1,3 — при расчете конструкций в стадии упругопластических деформаций; 1,8 — при расчете конструкций в упругой стадии.
3.11. Максимальную смещающую силу Рсм от действия ударной волны затекания на конструктивные элементы лестничных отделений и армировки в стволах следует определять по формулам:
Рсм = СхDРскSм (MH); (5)
Рсм = 104СхDРскSм (кгс), (5а)
где Сх — коэффициент лобового сопротивления элемента, принимаемый по СНиП II-11-77;
Sм — наибольшая площадь сечения элемента плоскостью, перпендикулярной направлению распространения ударной волны затекания (миделево сечение), м2;
DРск — скоростной напор, определяемый по формулам:
(6)
(6а)
РАСЧЕТ УСТОЙЧИВОСТИ ПОРОД НА КОНТУРЕ ПРОТЯЖЕННЫХ ВЫРАБОТОК
3.12. Устойчивость пород на контуре протяженных выработок, приспосабливаемых под убежища, следует определять из выражений:
(7)
(8)
где sв — давление, определяемое по обязательному приложению 1, МПа (кгс/см2);
scz, scx — давления, МПа (кгс/см2), определяемые по формулам:
scz = AUcz; (9)
scx = AUcx, (10)
где А — акустическое сопротивление пород, определяемое по табл. 3, МПа × с/м (кгс × с/см3);
Ucz, Ucx — соответственно вертикальная и горизонтальная составляющие массовой скорости, принимаемые по обязательному приложению 1;
a — угол наклона выработки к горизонту, град;
x — коэффициент бокового давления пород, определяемый по формуле
(11)
где n — коэффициент Пуассона, определяемый по данным экспериментальных измерений;
Kp, Kq — коэффициенты концентрации тангенциальных напряжений на контуре выработок соответственно от вертикальных и горизонтальных нагрузок, принимаемые по обязательному приложению 5;
Kу — коэффициент динамического упрочнения пород, принимаемый равным: 1,0 — для соляных пород, гипсов и пильных известняков; 1,3 и 1,5 — для других пород в условиях действия соответственно сжимающих и растягивающих напряжений;
s0 — вертикальное давление толщи пород, определяемое по формулам:
s0 = 10-3gHр (МПа); (12)
s0 = 10-4gHр (кгс/см2), (12а)
где g — средняя величина удельного веса толщи пород над выработкой, кН/м3 (кгс/м3);
Hр — расчетная глубина расположения выработки, м, принимаемая в соответствии с требованиями СНиП II-94-80;
— расчетное сопротивление породы сжатию или растяжению, МПа (кгс/см2), определяемое по п. 3.13. Положительный знак левой части формул (7) и (8) указывает на наличие сжимающих напряжений, отрицательный — на наличие растягивающих напряжений.
Таблица 3
|
Горные породы |
Расчетное сопротивление пород (массива) сжатию |
Акустическое сопротивление пород А |
||
|
МПа |
кгс/см2 |
МПа × с/м |
кгс × с/см3 |
|
|
Гипсы и соляные породы |
10 |
100 |
8
| |






