Учреждения массового отдыха. Базы отдыха трудящихся
На нашем сайте можно бесплатно скачать Руководящий документ НП 6.6-80 в удобном формате. Узнать актуальный статус документа «Учреждения массового отдыха. Базы отдыха трудящихся» на 2016 год.
Скрыть дополнительную информацию
Страница 1

Страница 2

Страница 3

Страница 4

Страница 5

Страница 6

Страница 7

Страница 8

Страница 9

Страница 10

Страница 11

Страница 12

Страница 13

Страница 14

Страница 15

Страница 16

Страница 17

Страница 18

Страница 19

Страница 20

Страница 21

Страница 22

Страница 23

Страница 24

Страница 25

Страница 26

Страница 27

Страница 28

Страница 29

Страница 30

Страница 31

Страница 32

Страница 33

Страница 34

Страница 35

Страница 36

Страница 37

Страница 38

Страница 39

Страница 40

Страница 41

Страница 42

Страница 43

Страница 44

Страница 45

Страница 46

Страница 47

Страница 48

Страница 49

Страница 50

Страница 51

Страница 52

Страница 53

Страница 54

Страница 55

Страница 56

Страница 57

Страница 58

Страница 59

Страница 60

Страница 61

Страница 62

Страница 63

Страница 64

Страница 65

Страница 66

Страница 67

Страница 68

Страница 69

Страница 70

Страница 71

Страница 72

Страница 73
НОРМАЛИ
ПЛАНИРОВОЧНЫХ
ЭЛЕМЕНТОВ
жилых
И ОБЩЕСТВЕННЫХ ЗДАНИЙ
ВЫПУСК
гаи 6 6 -80
БАЗЫ ОТДЫХА ТРУДЯЩИХСЯ
УЧРЕЖДЕНИЯ
МАССОВОГО
ОТДЫХА
ГОСУДАРСТВЕННЫЙ
КОМИТЕТ
ПО ГРАЖДАНСКОМУ СТРОИТЕЛЬСТВУ И АРХИТЕКТУРЕ ПРИ ГОССТРОЕ СССР ЦЕНТРАЛЬНЫЙ
НАУЧНО-ИССЛЕДОВАТЕЛЬСКИП
и проектный институт типового
И ЭКСПЕРИМЕНТАЛЬНОГО ПРОЕКТИРОВАНИЯ КУРОРТНЫХ. ОЗДОРОВИТЕЛЬНЫХ. ТУРИСТСКИХ ЗДАНИИ И КОМПЛЕКСОВ
НОРМАЛИ
ПЛАНИРОВОЧНЫХ ЭЛЕМЕНТОВ ЖИЛЫХ И ОБЩЕСТВЕННЫХ ЗДАНИЙ
УЧРЕЖДЕНИЯ МАССОВОГО ОТДЫХА
Выпуск НП 6.6-80
БАЗЫ ОТДЫХА ТРУДЯЩИХСЯ
МОСКВА
СТРОИИЗДАТ 1983
УДК ?2в.М.вЩ08|.74)
Нормали планировочных элементов жилых и общественных зданий: Учреждения массового отдыха. Вып. НП 6.6-80. Базы отдыха трудящихся/Гос. ком. по гражд. стр-ву и архитектуре при Госстрое СССР. Центр, н.-и. н проект, ин-т тип. и эксперим. проектирования курорт., оздоровит., турист, зданий и комплексов. — М.: Стройиздат, 1Й83.-72 с., ил.
Даны рекомендации по планировочным параметрам помещений, исходя из оптимальных конструктивно-планировочных модулей н решений интерьеров на основе унифицированной номенклатуры мебели с учетом требований, предъявляемых к основным помещениям баз отдыха (архитектурно-планировочных, функциональных, санитарно-гигиенических); установлен оптимальный набор типов помещений в зависимости от их вместимости н возрастного контингента отдыхающих.
Для архитекторов и инженерно-технических работников проектных организаций.
Рекомендовано к изданию научно-методической секцией научно-технического совета ЦНИИЭП курортио-туристских зданий и комплексов.
Серия нормалей планировочных элементов жилых и общественных зданий разрабатывается в развитие норм проектирования в соответствии со СНиП. Ведущие организации по
Разработке темы —ЦНИИЭП жилища и ЦНИИЭП учебных зданий. В работе над серией нормалей принимают участие: ЦНИИЭП зрелищных, спортивных и административных зданий и сооружений, ЦНИИЭП торгово-бытовых зданий и туристских комплексов, ЦНИИЭП курортно-туристских зданий и комплексов, ЦНИИЭПграждансельстрой, Киев-ЗНИИЭП, ТбнлЗНИИЭП, Гипронниздрав, МНИИТЭП, ГлавАПУ Москвы.
Методическое руководство авторским коллективом по разработке серии нормалей и общее редактирование осуществляет руководитель сектора нормализации планировочных элементов и оборудования ЦНИИЭП жилища канд. архит. Е. С. Раева.
Выпуск НП 6.6-80 «Базы отдыха трудящихся» разработан ЦНИИЭП курортно-туристских зданий и комплексов (отдел учреждений отдыха, отдел интерьера и технический отдел) совместно с КневЗНИИЭП (отдел архитектуры общественных зданий). Руководи
тель темы «Базы отдыха трудящихся» — архит. Ю. П. Кривцов.
Авторы листов: 1, 10—21; 25—27, 31—35, 37—39—архит. Ю. П. Кривцов; 2—3, 6—9, 31—32, 36, 57—59— канд. архит. В. И. Делле; 23, 41, 43, 47—архит. Т. В. Михеева; 5, 40. 42, 44—46, 60—64— архит. Г. В. Силуанова; 21 — 22, 24—30— архит. Р. А. Раковнцан; 48—50— инж. Б. С. Черннкин. Соавторы листов: 31 — 35, 37—39— архит. О. Г. Мухина; 10—20, 25— архитекторы О. Н. Горбунова, В. М. Юш-ко.
Графическое оформление архитекторов
О. Н. Горбуновой, О. Г. Мухиной, В. М. Юшко, В. А. Голубева, В. В. Чичинадзе, инженеров В. П. Коротковой, Е. А. Сафроновой.
Нормали одобрены научно-методической секцией научно-технического совета ЦНИИЭП курортно-туристских зданий и комплексов 3.XI1.1980 г. (протокол № 29) и Госграждан-строем 22.VI 11.1980 г. (приказ № 227).
Отзывы и замечания по нормалям, а также предложения о дальнейшей работе по нормализации планировочных элементов зданий просьба направлять по адресу: 125080, Волоколамское ш., 1, ЦНИИЭП курортно-туристских зданий и комплексов.
н ««7030002-шИк ,м„.
047(00—М
© Стройиздат, 1983
ВВЕДЕНИЕ
Цель разработки нормалей — внедрение в проектирование и строительство прогрессивных функциональных н технических решений, а также совершенствование процесса проектирования. Нормали являются частью общей системы типизации, унификации и стандартизации в жилищно-гражданском строительстве. Они содержат исходные нормативы, справочные данные, а также конкретные рекомендации, подготовленные на основе действующих СНиП. Нормали издаются отдельными выпусками по видам и типам зданий или по основным группам помещений отдельных типов зданий.
Публикуемая Стройиздатом серия нормалей основных планировочных элементов состоит из следующих разделов:
1. Жилые здания.
2. Здания учебно-воспитательного назначения.
3. Торговые здания и предприятия общественного питания.
4. Предприятия хозяйственно-бытового и коммунального обслуживания.
5. Здания зрелищного, культурно-просветительного назначения и спортивные сооружения.
6. Здания лечебно-оздоровительного назначения и массового отдыха.
7. Здания научно-исследовательских институтов, проектных организаций, административные здания.
8. Здания санитарно-курортного назначения.
9. Функциональные объемно-планировочные элементы жилых и общественных зданий.
При разработке нормалей за основу приняты действующие нормативные документы, требования и условия, которые определяют объемно-планировочные решения и параметры нормализуемых помещений, элементов и оборудования:
нормы проектирования отдельных видов жилых и общественных зданий в соответствии с главами СНиП;
санитарные и противопожарные нормы проектирования здания (СНиП и СН);
государственные стандарты на мебель к оборудование;
единая модульная система в строительстве (ЕМС);
правила техники безопасности, относящиеся к оборудованию зданий;
каталог унифицированных строительных
элементов для жилых и общественных зданий при обычных условиях строительства;
действующие каталоги и рекомендации по типам и габаритам технологического, санитарно-технического и электротехнического оборудования, встроенной и передвижной мебели.
В соответствии с функциональным назначением данного помещения предусматриваются три степени нормализации планировочных элементов жилых и общественных зданий.
Первая степень нормализации объемно-планировочных элементов применяется для помещений со строго определенным технологическим процессом, с применением стационарного оборудования, для чего должен быть установлен оптимальный вариант планировки. В этом случае нормализуется все помещение в целом (оборудование, мебель, основные функциональные зоны и планировочное решение). Например, санитарные узлы в жилых домах, школьные классы, спортзалы, больничные палаты, операционные.
Вторая степень нормализации распространяется на помещение с функциональным и технологическим процессом, допускающим варианты планировки и соответственно различные габариты помещений. При этом нормализуются функциональные зоны и даются различные примеры планировки помещений. Например, комнаты и кухни в жилых домах, зрительные залы, лечебные кабинеты в больницах и т. п.
Третья степень нормализации объемнопланировочных элементов относится к помещениям, в которых функциональный процесс не имеет строгой определенности. Нормируется только площадь помещения. Здесь целесообразна нормализация оборудования и мебели. а также варианты планировки помещений. Например, фойе в клубах и кинотеатрах, помещения для дневного пребывания больных в больнице, гостиные и поэтажные холлы в гостиницах.
Состав нормалей в зависимости от степени нормализации помещений может быть полным и неполным. В полный состав нормалей объемно-планировочного элемента входят:
схема функциональной взаимосвязи основных групп помещений (в соответствии с общей объемно-планировочной структурой зданий);
антропометрические и эргономические данные;
номенклатура мебели и оборудования (с ссылками на соответствующие ГОСТы, ТУ и каталоги);
1*
3
типы и габариты мебели (передвижной и встроенной) и оборудования (технологического, санитарно-технического, электротехнического и др.) со схематическими чертежами и разрезами;
основные функциональные зоны (планы, разрезы или развертки) с размещением мебели и оборудования;
планировочные схемы помещения (применительно к основным конструктивным системам и унифицированным модульным параметрам);
схемы расположения элементов; инженерное оборудование помещений; требования к отделке помещений; примеры планировок групп помещений или фрагментов нх планов.
Нормали НП 6.6-80 «Базы отдыха трудящихся» входят в состав серин нормалей планировочных элементов жилых и общественных зданий. Они разработаны в соответствие со СНнП П-71-79 «Оздоровительные учреждения и учреждения отдыха». При разработке использованы опыт типового и экспериментального проектирования, материалы научно-исследовательских работ и практика эксплуатации зданий баз отдыха. Нормали рассчитаны для применения в строительстве зданий щитовой, каркасно-щитовой и каркасной облегченной конструкций, а также зданий с несущими стенами из кирпича. Планировочные решения в основном учитывают обычные условия строительства в II, III и IV климатических районах и IB климатическом подрайоне СССР.
Нормали являются пособием по проектированию зданий баз отдыха сезонного функционирования и предназначены для использования в типовом и индивидуальном проектировании. Круглогодичные здания баз отдыха следует проектировать по нормам туристских баз круглогодичного функционирования.
На схемах планировки помещений, разработанных применительно к основным конструктивным системам, указаны унифицированные модульные параметры. На чертежах приводятся размеры всех планировочных элементов и их привязки к модульным разбивочным осям. При разработке планировочных схем учтено требование СНиП о применении размеров продольных и поперечных шагов, кратных наиболее крупным из установленных производных модулей 60М и ЗОМ (600 и 300 см), а в некоторых случаях, преимущественно для жилых зданий, также кратных 12М (120 см). Применение модуля 6М (60 см) допускается в пределах до 720 см, а модуля ЗМ (30 см) — до 360 см (при обосновании — до 720 см). Размеры на чертежах планировочных нор
малей даны в см, а на чертежах оборудования — в мм.
Для маркировки разделов серии нормалей приняты следующие буквенные и цифровые обозначения: НП — нормали планировочные; первая цифра — порядковый номер раздела, включающего группы видов зданий, объединяемых по однородным функциональным признакам; вторая цифра — порядковый номер главы, включающей определенный вид зданий; третья цифра — группа основных помещений или сооружений в данном виде; после дефиса указан год утверждения нормалей. Например, в марке НП 6.6-80 цифры означают: 6—нормали основных помещений зданий лечебно-оздоровительного назначения и массового отдыха; 6 — помещения зданий баз отдыха трудящихся; 80—-год утверждения.
Базы отдыха предназначены для длительного и кратковременного отдыха трудящихся предприятий и членов их семей, включая детей.
Выпуск НП 6.6-80 «Базы отдыха» включает восемь разделов.
В разделе I в качестве исходных данных приведены типы баз отдыха по вместимости, схема функциональной взаимосвязи основных групп помещений (лист 1), антропометрические и эргономические данные (листы 2—5). В составе помещений, включенных в нормали, отражена специфика баз отдыха; организация отдыха взрослых и детей, одиночных отдыхающих и семей. Антропометрические и эргономические данные охватывают все возрастные категории отдыхающих на базах отдыха.
В разделе II представлены номенклатура и габариты мебели и оборудования (листы 6—9), содержится необходимый перечень этих предметов для оборудования спальных комнат, а также веранд и подсобных помещений. В связи с меняющимся составом семей повозрастному признаку размер оборудования для спальных помещений принят соответственно антропометрическим данным взрослых.
При определении габаритных схем и примеров планировок с рекомендуемым набором мебели (листы 10—17) принимались во внимание следующие факторы: размещение групп отдыхающих, различных по семейному и возрастному составу (одиночные отдыхающие, семьи без детей и семьи с детьми); разные требования к санитарно-техническому оснащению спальных ячеек (с выносным или с приближенным санитарным узлом); обязательное наличие лоджии или веранды.
В разделе 111 даны номенклатура мебели и оборудования, а также типы и габариты мебели для приемно-вестнбюльной группы помещений. Специфическим для баз отдыха явля-
4
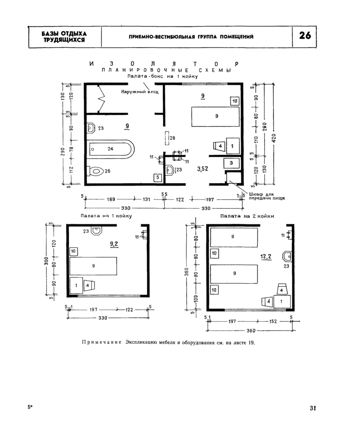
ется включение в приемно-вестибюльную группу пункта проката бытового инвентаря и крупных детских игрушек. При разработке габаритных схем и примеров планировки помещений медпункта и изолятора учитывались следующие факторы: помещения медпункта и изолятора должны иметь раздельные входы, но быть связаны между собой для удобства обслуживания медперсоналом. Кроме того, палаты типа «бокс» должны иметь непосредственный наружный выход.
В разделе IV приведены номенклатура мебели н оборудования, а также типы н габариты мебели (листы 28—30) для помещений культурно-массовой работы. Кружковые помещения разделены на помещения технического творчества со стационарным оборудованием и помещения универсального использования (листы 35—36) для музыкальных занятий, занятий изобразительным искусством и как артистические, для которых рекомендуется складируемая, складная и сборно-разборная мебель и оборудование. Для помещения библиотеки (лист 34) предусмотрено оборудование, рассчитанное на закрытый и частично открытый фонд.
В разделе V номенклатура мебели и оборудования. а также типы и габариты мебели (листы 37—40) отражают специфику игровых помещений для детей и разработаны с учетом особенностей возрастных групп и соответствующих антропометрических и эргономических данных. Предусмотрены игровые помещения на группу из 25—30 детей каждое и комнаты для игр и пионерских занятий с помещением для хранения игр. В базах отдыха
на 500 и 1000 мест игровые помещения дифференцированы по возрастным группам (от 4 до 6 лет и от 7 до 9 лет). В базе отдыха на 250 мест игровое помещение предназначено для совместного использования обеими возрастными группами (листы 41—44).
В разделе VI разработаны помещения питания. Номенклатура оборудования предусматривает особенности работы производственных помещений на сырье. Согласно требованиям СНиП И-71-79 обеденные залы рассчитаны на самообслуживание. В соответствии со спецификой баз отдыха обеденные залы должны быть разделены по назначению: для взрослых отдыхающих и для семей с детьми. В залах для семей с детьми в связи с меняющимся составом отдыхающих по возрастному признаку предусматривается складная мебель для взрослых отдыхающих с возможностью трансформации ее по мере необходимости в соответствии с контингентом отдыхающих в данное время (листы 45—53).
В разделе VII даны номенклатура, типы в габариты оборудования и габаритные схемы санитарно-гигиенических помещений, соответствующие антропометрическим и эргономическим данным для взрослых и детей (листы 54-56).
В разделе VIII (листы 57—65) даны общие рекомендации по отделке жилых помещений, помещений приемно-вестибюльной группы, культурно-массового назначения и игровых для детей, санитарно-гигиенических помещений с учетом функционального назначения каждого из них.
2-180
Раздел I. ИСХОДНЫЕ ДАННЫЕ (листы 1—5)
БАЗЫ ОТДЫХА ТРУДЯЩИХСЯ
ИСХОДНЫЕ ДАННЫЕ
I
Данные нормали распространяются на проектирование баз отдыха летнего функционирования. Базы отдыха круглогодичного действия проектируются по СНиП и нормалям для туристских баз.
По вместимости летние базы отдыха делятся на три типа: на 250, 500 и 1000 мест. Контингент отдыхающих — взрослые и дети в составе семей.
СХЕМА ФУНКЦИОНАЛЬНОЙ ВЗАИМОСВЯЗИ ОСНОВНЫХ ГРУПП ПОМЕЩЕНИЙ
Спортивная
6
Хозяйственная зона
|
БАЗЫ ОТДЫХА |
ИСХОДНЫЕ ДАННЫЕ |
2 |
|
ТРУДЯЩИХСЯ |
АНТРОПОМЕТРИЧЕСКИЕ И ЭРГОНОМИЧЕСКИЕ ДАННЫЕ
Средние размеры человека, см
|
Наименование параметра |
Жен щины |
Муж- |
Наименование параметра |
ami |
муж чины |
|
Положение стон |
Положение сила |
||||
|
Длина тела |
160 |
172 |
Высота верхушечкой |
86 |
90 |
|
Высота линии талии над |
100 |
108 |
точки над сиденьем |
||
|
полом |
Высота глаз иад сидень- |
73 |
77 |
||
|
Высота плеча над полом |
132 |
141 |
ем |
||
|
Высота глаз над полом |
148 |
1М |
Высота плеча иад си- |
67 |
60 |
|
Длина руки |
ТО |
77 |
демьем |
||
|
Длина ноги |
66 |
SO |
Высота лохтя иад сн- |
22 |
23 |
|
Вертикальна* досига- |
209 |
2* |
деиьеы |
||
|
емость руки |
24 |
26 |
|||
|
сиденьем |
|||||
|
Наибольшая ширина таза |
39 |
Э5 |
СПАЛЬНАЯ ЯЧЕЙКА
3 а н я т и
-4 * 650-»- —<*550+- —**G0*“ -ИОО -+-»750-+
йд-лрокод К -* >700 А- -г>600 >—*»450>-
оборудованием
-1350
4-Б00 -+—*1100 >-*1700 —
*600-
Спальное место
Хранение одежды
Лоджия или балкон
>-*850 -4-600-» +— >1000-4 ,
л-*1600 -*
+—*900—1» ■->1000—*
Примечание. Данные приведены по книге «Антропометрический атлас Мето-дичссхне рекомендации* (ВНИИТЭ, М.. 1977).
2*
1900 -*-*• 800 —»♦’ICO-800’f—
БАЗЫ ОТДЫХА ТРУДЯЩИХСЯ
ИСХОДНЫЕ ДАННЫЕ
3
ЭРГОНОМИЧЕСКИЕ ДАННЫЕ
ПРИЕМНО-вЕСТИБЮЛЬНАЯ И КУЛЬТУРНО-МАССОВАЯ ГРУППЫ ПОМЕЩЕНИЙ Функциональная зона на одно рабочее место дежурного администратора, почты-телеграфа
Гос
&
|
к |
1 |
4 |
|
|
•Н)00-4550 |
——?500 J-600-4 |
||
П а
Место для прически и завивки
рикмахерс
Место для сушки вояос
кая
Место
T
О
о
СП
*
о
§
Т
о
о
0
1
8
ВОЛОС
БАЗЫ ОТДЫХА ТРУДЯЩИХСЯ
ИСХОДНЫЕ ДАННЫЕ
4
АНТРОПОМЕТРИЧЕСКИЕ И ЭРГОНОМИЧЕСКИЕ ДАННЫЕ МЕДПУНКТ И ИЗОЛЯТОР Взрослые
X
>-»70 Ч- 80 —f
Дети
>-80 -4-»80->—80 ->
>-80 -+»50ч-80 -4
>-70-4
САНИТАРНЫЙ УЗЕЛ
Взрослые
-450-551—
■110
>-50 -4 >-50 445 4 >-70 4
Примечание. Данные приведены на основании нормалей учреждений массового от дыха: помещений пионерских лагерей (НП 6.4-71) и спальных корпусов круглогодичного действия (НП 63-73).
£
БАЗЫ ОТДЫХА ТРУДЯЩИХСЯ
ИСХОДНЫЕ ДАННЫЕ
АНТРОПОМЕТРИЧЕСКИЕ И ЭРГОНОМИЧЕСКИЕ ДАННЫЕ ИГРОВЫЕ ПОМЕЩЕНИЯ ДЛЯ ДЕТЕЙ Зависимость антропометрии детей 4-1.4лет от возраста и соответствующая высота стола и стула
I-
х”
1
о
чв,ь
;
——о
г» т
11
I
X
7
|
Возраст, лет |
|||||
|
Нашиошмс х^рсииЯ |
4-7 |
6-9 |
С-12 |
9-14 |
11-14 |
|
Групп* рост*, см |
106—119 |
120—130 |
131—145 |
146-100 |
161—173 |
|
Среди «Я рост М{ |
112 |
ГД). С |
138 |
153.7 |
168.8 |
|
М, Высота от пол* до линии глм си- |
ПК |
112 |
128 |
143.6 |
158 |
|
83 |
88 |
98 |
КО |
120 |
|
|
ли Н, Поперечный размер тела на уровне |
» |
32.6 |
35.4 |
39 |
43.2 |
|
локтей В| Расстояние между кончиками падь. |
ice |
123 |
133 |
163 |
169 |
|
цеа рук. нытянутых в стороны ft Передне-задний размер грудной |
1C |
16.6 |
17.3 |
19 |
21.4 |
|
клетки Ву Расстояние между локтями а поло |
48 |
60.6 |
63.6 |
68 |
62 |
|
женин письма В, Высота сиденья стула Н, |
28 |
32 |
36 |
40 |
41 |
|
Высота рабочей плоскости стола Н, |
48 |
М |
60 |
66 |
72 |
Эргономические исходные данные о детях до 7лет (рост до 130 см дан в скобках,) и от 7лет и старше (в см)
450(40»-
460(50)+
460(50) +-+70(60Н
+65(55)-*
>-50 -* +-
—-41000 —-
>-60 >160(150) —
-•*50(40)*— 140(110) -+М(50)>-
+-05(90)-4 У стенда
4-»95(80) 4 +-*95(90) 4
30(25)
+-50
+*80(75) +
Примечание. ________.___„
I’на и гута гигиены детей и подростков.
+-85(80)4
+- Э0 -4 Входная зон*
Раздел II. СПАЛЬНЫЕ ЯЧЕЙКИ (листы 6—17)
БАЗЫ ОТДЫХА ТРУДЯЩИХСЯ
СПАЛЬНЫЕ ЯЧЕЙКИ
6
Мебель я оборудование. Номенклатура
|
.•* п.п. |
Мебель |
ГОСТ |
Р«»меры мебели а плане, мм |
Тип и в местность однокомнатной ячейки |
|||||||||
|
>* И I • -в 8 |
1 >• К U 8 |
О V |
О О |
г? О |
О 7 |
||||||||
|
s |
V |
л |
* |
V |
п |
V |
|||||||
|
1 |
Кровать |
103025.11-71 |
2000 |
800 |
1 |
1.6 |
_ |
2 |
3.2 |
3 |
4.8 |
_ |
|
|
2 |
Тумбы: |
||||||||||||
|
прикроватная |
400 |
400 |
1 |
0.16 |
— |
2 |
0,32 |
3 |
0,48 |
— |
|||
|
навесная |
400 |
300 |
1 |
0,12 |
— |
2 |
0.24 |
— |
3 |
0,36 |
— |
||
|
3 |
Стол |
— |
800 |
600 |
1 |
0,48 |
— |
1 |
0,48 |
— |
1 |
0,48 |
— |
|
4 |
Стул |
13025.7—71 |
400 |
500 |
1 |
0.2 |
— |
2 |
0.4 |
— |
3 |
0.6 |
— |
|
5 |
Банкетка** |
— |
400 |
400 |
1 |
0,16 |
— |
2 |
0,32 |
— |
3 |
0,48 |
_ |
|
6 |
Подставка для чемо- |
— |
700 |
400 |
I |
0.35 |
— |
1 |
0.35 |
1 |
0.35 |
||
|
данов складная |
|||||||||||||
|
7 |
Шкаф для одежды на |
13025.1—71 |
600 |
>550 |
1 |
0,36 |
0.9 |
_ |
— |
_ |
_ |
_ |
__ |
|
1 человека |
13025.2-71 |
||||||||||||
|
8 |
Шкаф для одежды на |
13025.1—71 |
900 |
>550 |
— |
_ |
_ |
1 |
0,54 |
1,36 |
_ |
_ |
— |
|
2 человека |
13025.2-71 |
||||||||||||
|
9 |
Шкаф для одежды на |
13025.1-71 |
1200 |
>550 |
— |
_ |
_ |
— |
_ |
_ |
1 |
0,72 |
1,8 |
|
3 человека |
13025.2-71 |
||||||||||||
|
10 |
Шкаф для бытовых |
13025.4-76 |
600 |
300 |
1 |
0,18 |
0.45 |
1 |
0,36 |
0.9 |
1 |
0.36 |
0,9 |
|
предметов |
>550 |
||||||||||||
|
11 |
Шезлонг-кровать** |
— |
1900 |
700 |
1 |
1,33 |
— |
I |
1,33 |
— |
2 |
2,66 |
— |
|
12 |
Шезлонг |
— |
1300 |
600 |
1 |
0,78 |
— |
2 |
1,56 |
— |
3 |
2,34 |
— |











