Санатории. Помещения спальных корпусов
Действие завершено 01.01.2003
Документ завершил свое действие. Вы можете скачать Руководящий документ НП 6.2-72 в удобном формате.
Скрыть дополнительную информацию
Страница 1

Страница 2

Страница 3

Страница 4

Страница 5

Страница 6

Страница 7

Страница 8

Страница 9

Страница 10

Страница 11

Страница 12

Страница 13

Страница 14

Страница 15

Страница 16

Страница 17

Страница 18

Страница 19

Страница 20

Страница 21

Страница 22

Страница 23

Страница 24

Страница 25

Страница 26

Страница 27

Страница 28

Страница 29

Страница 30

Страница 31

Страница 32

Страница 33

Страница 34

Страница 35

Страница 36

Страница 37

Страница 38

Страница 39

Страница 40
эсуддрственныи комитет по гражданскому строительству и Архитектуре при Госстрое ссср
тема: научные основы архитектурно-планировочных РЕШЕНИЙ санаториев, учреждений отдыха
И ТУРИЗМА
НОРМАЛИ
ОСНОВНЫХ ПЛАНИРОВОЧНЫХ ЭЛЕМЕНТОВ ЖИЛЫХ U ОБЩЕСТВЕННЫХ 3AAHUU
НП 6. 2 — 72
САНАТОРИИ
ПОМЕЩЕНИЯ СПАЛЬНЫХ КОРПУСОВ
РАЗРАБОТАНЫ ЦНИИЭП ЛЕЧЕБНО-КУРОРТНЫХ ЗДАНИЙ ПРИ Л\ЕТОДИЧЕСКОА\ РУКОВОДСТВ1 ЦНИИЭП ЖИЛИЩА И ЦНИИЭП УЧЕБНЫХ ЗДАНИЙ
ОДОБРЕНЫ ГОСГРАЖДАНСТРОЕМ ПРИКАЗ № ОТ 5.1. 1973г.
центрдльный институт типового проектирования москва 1973г.
Издание проектов нормалей планировочных элементов хилых и общественных зданий предназначено для их практического использования и проверки в проектной практике.
Проекты нормалей планировочных элементов жилых и общественных зданий разработаны в соответствии с программой комплексной темы «Основные направления и единая методология типизации, унификации и стандартизации гражданского строительства».
Ведущие организации по разработке темы — ЦНИИЭП жилица (директор института, доктор архитектуры Б.Р.Рубаненко), ЦНИИЭП учебных зданий (директор института, доктор архитектуры Г.А.Градов).
В работе приниыают участие институты — ЦНИИЭП учебных зданий, ЦНИИЭП зрелищных зданий и спортивных сооружений, ЦНИИЭП торговых зданий, ЦНИИЭП лечебно-курортных зданий, КневЗШШЭП, Г.ШРОНИИЗДРАВ, ЦНИИЭП граждансельстрой, ИНИИТЭП ГлавАПУ г.Москвы, MUCH ии.Куйбыпсва. Разработка нормалей помещений спальных корпусов санаториев выполнена ЦНИИЭП лечебно-курортных зданий (директор института, доктор архитектуры А.Т.Полянский, главный инженер института Н.И.Фридбург, заместитель директора института по научной работе И.И.Ионов, заведувций отделом санаторно-курортных учреждений к.а. Я.В.Гусев.
Руководитель темы нормалей «Помещения спальных корпусов санаториев” (НП 6.2-72) арх. ь.в.Хигалов.
Авторский коллектив: к.а. В.И.Делле, к.а. Г.И.Колчанова, арх. С.З.Ххгалов.
Методическое руководство осуществляет отдел стандартизации ЦНИИЭП жилища (руководитель отдела к.а. Д.Б.Хазанов, руководитель сектора нормализации к стандартизации планировочных элементов и оборудования к.а. Е.С.Рпева), сектор унификации ЧПППЭП учебных зданий (руководитель сектора к.а. Н.С.Богданов).
Проект нормалей одобрен НТС ЦНИИЭП лечебно-курортных зданий 14.X.69г., протокол 1е 19, 30.IX.71г., протокол * 12; 17.XI.72г., протокол * 21.
Отзывы и замечания по проекты нормалей, предложения о дальнейшей работе по нормализации планировочных элементов попечений спальных корпусов санаториев просьба направлять по адресу: 1!осква 129090, 2-ой Троицкий пер., дом ба. ЦНИИЭП лечебно-курортных зданий.
Заявки на приобретение выпусков нормалей следует направлять в Центральный чи-т Ti полого проектирования по адресу: Москва 107066, Спартаковская ул., дом 2а, корпус R.
II с.2-72.
— I —
Нормали планировочных злеывнтов санаториев входят в состав серил нормалей элементов планировка в оборудования хилых и общественных зданий.
Целью разработки норыахей явдяетвя внедрение в типовое проектирование к строительство функциональных и технических реоенив в соответствии с действуними нормами проектирования санаториев СНиП П-1. 10-62.
Нормали долины такие слупить основой для уточнения типоразмеров индустриальных строительных изделий, для повывення степени заводской готовности.
Настониее издание ворыадей предназначается для нх практического использования в проектировании санаторно-курортных объектов, при реконструкции существующих санаториев, при выборе мебели и оборудования.
Нормали предусматривает применение для полносборного строительства зданий крупяояа-нальной и каркасной конструкции, а такие зданий с несуциыи стенами из кирпича или блоков. Ори составлении нормалей учтены как действующие каталоги индустриальных строительных изделий, так н перспективные крупнопанельные и каркасно-панельные конструкции, предусмотренные в проекте «Обивго сортамента изделий”.
Планировочные ренения даны двя 1в, 0 и 0 климатических районов.
Разработка нормалей проведена на основе опыта проектирования, материалов научио-ис-следоватеяьских работ и практики эксплуатации зданий.
При разработке норыаявй собдодадись и использовались следующие общие условия в требования:
— табариты человека или группы додай в различных положениях (работа,отдых,сон н т.п.);
— функциональные процессы, связанные с деятельностью человека и пользованием оборудованием;
— требования звукоизоляции;
— технико-экономические показатели;
— каталоги и рекомендации по типам и габаритам самитарно-технического оборудования;
— типы и габариты ыебели (листы 4-13), обеспечивайте Функции ел ьные процессы в ломе-цениях, а такие унификацию элемент* для Заводского изготовления небела.
Рекомендуемые гараонты наборов мебели содержат:
— минимальный набор (вариант I, листы 4,5;, соответствующий сметным нормам затрат и типовым наборам оборудования и предметов внутреннего убранство общественных и административных зданий (той 2 ’’объекты лечвбно-лрофидакгаческого назначения, объекты коммунального назначения». И-1961г.);
— оптимальные наборы ыебели (варианты П, Ь, 13; листы 4,5), наиболее полно отвечайте условиям высокого архитектурно-художественного качества и создания комфортных условий. Ряд наборов такого типа разработав в технической документации: проект ЛенЗН^ЗП «Мебель и оборудование гостиниц», 1966г.; проект 620 3КБ Литовской ССР; проект 178— 182 Дагомысской фабрихи ВЦСПС, 1969г.; каталог мебели в «Номенклатуре мебели спальных корпусов санаториев, д/о и пансионатов» ЦНШП лечебно-курортных здании,”.,1970г;
— рекомендуемые уровни горизонтальных плоскостей отдельных изделии, позволлю..ие провести унификации вертикальных элементов мебели, а также варианты возможней блокировки изделий или объединение их в комбинированные предметы мебели;
— варианты возможной блокировки изделии из унифицированных серий мебели для оборудоаог ния вестибюлей и холлов. Примеры показывают насколько разнообразны могут быть композиционные возможности в расстановке такой мебели;
— варианты встроенных ькафов в раажичьых планировочных условиях и функциоиалв.ше размеры, обуславливающие их внутреннее оборудование.
Нормали планировочных элементов помещенмй спадьнкх корпусов включают:
— номенклатуру и габариты необходимого оборудования и ыебе..а;
— основные планировочные узды с размещением оборудования н мебели;
• габаритные схемы о указанием размеров и нормативных расстояний иевцу предметами;
— примерные плаиировочьие реыения помещений;
— планировки помещений, применительно к основным конструктивном системам и унифицированным модульным параметрам;
— примеры ренений спальных ячеек.
На чертежах указаны основные габаритные размеры. На схимах планировочных узлов в иа общих габаритных схемах указываются дна типа размеров: а) размеры элементов оборудо-
НП 6.2-72
— 2 —
вакия и отдельные твердо установленные пароыетры; б) минимальны разиеры со энакоы «>■ (т.е. более или равно) расстояний нсяду предметами оборудованяя я проходом. Ширина я длгиа поведений на габаритных схемах также является минимальной.
X X X
Схемы планировок основаны на конструктивных решениях с учетом основных комструятвв* них яагов, кратных модулю 30 см. (в соответствии с главой СНиП Я-И. *-62 «Единая «сдульная система. Ссновиые положения проектирования»). На чертежах примеров спальные ячейки представлены в виде секций с показом пролетов и яагов несуних конструкций.
При разработке планировочных схем учтено указание СНиП о предпочтительном применении размеров продольных и поперечных вагов, кратных крупным модулям и мх производным.
Форма построения альбома отвечает задаче постоянного соверяеястаов&ник нормалей и дает возможность периодического пополнения новыми материалами.
При разборе унифицированных планировочных элементов спальных ячеек санаториев учитывались основные требования СНиП.
Исходные величины плоцади хилых комнат приняты: в одноместной — 9,0 кв.м, на I человека (или комната площадью 9,0 кв.м.); в двухместной — 6,0 кв.м, на I человека (или комната плоаадьо 12,0 кв.м.).
Унифицированные рснения планировок санитарных узлов даны в виде рекомендаций для применения в различных конструктивных системах и планировках. В основу реяений санузлов положены три типа наборов оборудования (умывальняк и унитаз; умывальник, унхтаэ , душевой поддон; умывальник, унитаз, ванна).
Исходным принципом при разработке рекомендуемых планировочных реяений жилых комнат спальных ячеек явилась расстановка нормализованных групп мебели и конструктивные параметры поыецений.
Группировка мебели в хилых комнатах разработана на основе габаритов мебели (листы 4-13, 16) и исходных габаритов, где приводятся необходимые проходы между предметами мебели.
Цветовое реяемие спальных комнат содержит основные свето-тсхнкческие показателя, рекомендации по цветовой отделке помеяений, зависящие от параметров комяат. Рекомендации цветового решения охватывают основные элементы оборудования в декоративного убранства в их сочетании.
Плаьировочиыс решения лоджий-балконов основаны на конструктивных размерах элементов и расстановке минимально-необходимого оборудования. Однако, учитывая, что величина выноса лоджии влияет на освещенность и инсоляцию жилой комнаты, выбор лоджии-балкона должен производиться в зависимости от природно-климатических уг.г ий я ориентации помещений. Спальные ячейки в разделе «Примеры архитектурно-планировочных режежий спальных ячеек» (листы 29-33) не являются эталонами, они показывают лияь возможность использования нормализованных групп в различных конкретных ревениях.
Построение примеров спальных ячеек основано на использовании возможных вариантов планировочных реяений в различных конструктивных схемах. Это поможет проектировщиком в определенной конструктивной системе выбрать соотвстствуюцее планировочное решение.
На листе 29 приведены примеры реиення спальных ячеои, основанных на применения продольного шага — 600 см. При выборе этого вага следует учитывать его недостатки применительно к санаторно-курортному строительству: недостаточная вариабельность пря расстановке мебели в жилой комнате, ограниченный выбор планировочных решений санузлов.
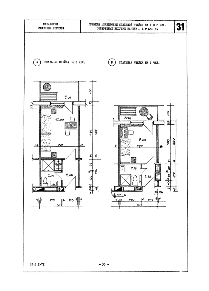
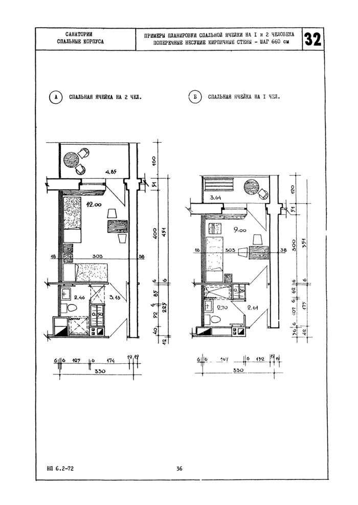
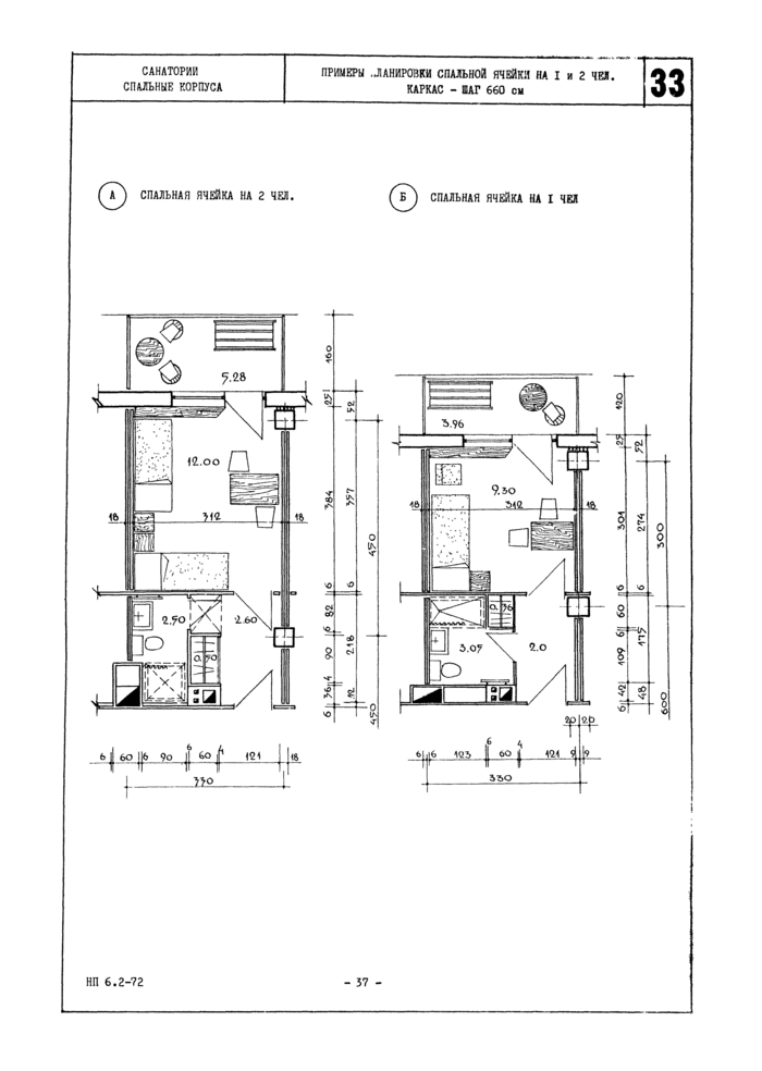
На листах 30-33 приведены примеры планировок спальных ячеек для продольных конструктивных яагов 630 и 660 см.
Все конструктивные варианты каркасной конструкции основаны на применения ригельных каркасов с продольным настилом (пролеты каркаса кратны модулю «1,5» — 3,0; Л,5; 6,0м.
В вариантах кирпичной конструкции в основу положен вариант для средней полосы с толщиной несущих стен 38 см. и наружным ограждением 51 см.
В вариантах с несущими панельными конструкциями принята система с поперечными несущими панелями с приведенной толщиной панелей — 14 см.
НП 6.2-72
— 3 —
ПЕРЕЧЕНЬ листов выпуска НП 6.2-72 «Помещения спальных корпусов санаториев»
Раздел I Исходные данные. Оборудование. Мебель.
Лист I. Схема функциональной взаимосвязи групп помещений
2. Исходные габариты
3. Группировка стационарной мебели и обрудования в вестибюле 4-9. Номенклатура мебели
IO-I2. Типы мебели
13. Типы стационарной меоолм и оборудования для вестибюля
14. Встроенные вка{«. Функциональные размеры
15. Типы встроенных мкафов
16. Группировка ыеболи
17. йилая коината на I и 2 человека. Расстановка ыебели
18. Ходжии-балконы. Приыеры расстановки ыебели
19. Вестибюль и холл. Группировка ыебели
20. Гостиные. Расстановка мебели
21. Гостиные и обслуживающие помещения. Расстановка мебели
22. Санитарный узел. Оборудование
23. Санктарнмй узел. Типы и габариты
24. Блокировка лифтов
25. Рекомендации по цветовому решению 26-28. Приемы цветового решения
Раздел П Приыеры архитектурно-планировочных ремений спальных ячеек.
Лист 29. Приыеры планировки спальной ячейки ua I и 2 человека. Каркас — шаг 600 см.
30. Примеры планировки спальной ячейки на I и 2 человека. Поперечные несущие кирпичные стены — шаг 630 си.
31. Примеры планировки спальной ячейки на I и 2 человека. Поперечные несущие панели — маг 630 см.
32. Примеры планировки спальной ячейки на I и 2 человека. Поперечные несущие кирпичные стены — лаг 660 сы.
33. Прим-ры планировки спальной ячейки на I и 2 человека. Каркас — ваг 660 см.
НП 6.2-72
— 4 —
Ькемк ФУНКЦИОНАЛЬНО! ЗЗШОСВЯЗИ ГРУШ! ПОМЕЩЕНИЙ
1
СХШ ФУНКЦИОНАЛЬНОЙ ВЗАИМОСВЯЗИ ГРУПП ПОМЕЩЕНИЙ САНАТОРИЯ
CXQIA ВЗАИМОСВЯЗИ ФУНКЦИОНАЛЬНЫХ ЗОН И ПОМЕЩЕНИЯ ВЕСТИБЮЛЬНОЙ ГРУППЫ
|
ФУНКЦИИ |
ЗОНЫ И ПОМЕЩЕНИЯ |
ВЗАИМОСВЯЗЬ ЗОН И ПОМЕЩЕНИЙ |
ИСХОДНЫЕ ДАННЫЕ ОБОРУДОВАН И Е /МЕБЕЛЬ
ИСХОДНЫЙ ГАБАРИТЫ
2
СК303Н0Й ПРОХОД
холл
ХИЛАЯ КОМНАТА
РЕГИСТРАТУРА
ВХОД ПОМЕЩЕНИЯ ЧИСТКИ ОДЕХДЫ
НП 6.2-72
ГРУППИРОВКА СТАЦИОНАРНОЙ мебели И ОБОРУДОВАНИЯ В ВЕСТИБЮЛЕ
(7) РАЗМЕРЫ ФУНКЦИОНАЛЬНЫХ ЗОН НА ОДНО РАБОЧЕЕ МЕСТО
>ЛШ MAVWINUAHA Л lUMM М_
Рааывры зоны киосков
Равыеры эож дежурного алию»и-стрвтора, почты, тодвграфа
4__ы$оо_,_wa..,t .то»
♦ ‘ijoo f6oo^ ЫХХ) 2о*уЯ*#
Гг \ БЛОКИРОВКА СЕКЦЕОННОЛ СТАЦИОНАРНОЙ МЕБЕЛИ ИЗ ТИПОВЫХ ЫОК-Ч—У СЕКЦИИ В ЗОНАХ ДЕЖУРНОГО АДМИНИСТРАТОРА, ПОЧТЫ, TEiETPAM
|
о ? |
□ |
|
|
_1 |
4*00
Типовая блок-секция дежурного адыкиистратора, почты, телеграф*
1Уоо f_jfOO i»oo j <1*00 1 >00
НП 6.2-72 — 7 —
|
По |
п° |
|> |
> |
|
САНАТОРИИ СПАЛЬНЫЕ КОРПУСА |
НОМЕНКЛАТУРА МЕБРЛИ |
4 |
|
НОМЕНКЛАТУРА И НАБОРЫ МЛЕЛИ ДЛЯ ОБОРУДОВАНИЯ СПАЛЬНЫХ ЯЧЕЯ |
||
|»/a
ю
и
Наименование
изделий
Стол рабочий
Стол комбинированный
Стол журнальный
Стул или банкетка
Шкаф для платья (встроенный)
Кровать
Диван-кровать
Тумба прикроватная
^Гумба для мОстсль ных принадлежностей
Кресло для отдыха
Подставка для чемодаиов
900
шщ
1900
» 1900
I
№
ШЩ
ТОО-
ъоо
Варианты наборов мебели
Завод изготовитель или проектная организация, разработавшая проект
12
Проект 180 Дагомксская мебельная ф-ка ВЦСПС Шатурский мебельный 4бИН{
комбинат
Проект 0H-I08-OI ВПКТйИ, ЛеаЗНИКЭП, ЭКБ Литовской ССР
Дагомысская мебельная ф-ка ВЦСПС Проект 0H-I05-02 В ГОСТИМ и др.
Проект 181 Дагомыссхая мебельная ф-ка ВЦСПС Проект 0H-I03-O4 ВПКТИМ и др.
Проект 0H-I03-O3
впктим
Проект 178 Дагомысская мебельная ф-ка ВЦСПС Прозкт 299S-08 ЕатурсккЯ мебельный к-т Проект 0И-ЮЗ-05 ВПКТИМ
Проект 467 меб.ф-ки управления делами Совета Министров СССР. КБ ф-ки -Стандарт» М-2$5. ВПКТИМ Проект 011-105-06 Проект ЛенЗНИИЭП 1965г.
Дагомысская мебельная ф-ка НСПС Проект 179 Проект 2999-09 Ватурский мебельный к-т
Предприятия Миндревпрома Латвийской ССР ЭКБ Литовской ССР Проект 620-03а и 632-04 Проект ЛенЗНИИЭП 1966г.
Проект 011-103-07 ВПКТИМ Дагомысская мебельная ф-ка
ВЦСПС
Проект OH-IOS-OI ВПКТИМ Проект 620-12 ЭКБ Литовской ССР
|
I |
2 |
5 |
А |
5 |
6 |
7 |
8 |
9 |
10 |
II |
12 |
|
12 |
Зеркало навесное |
-да*- _ |
I |
I |
Проекты 2780-26, 2752-27 СПКБ Главмебелъпром г.Ленинград |
||||||
|
15 |
Комод или низкий вкаф |
В ттег |
I |
Проект ВШСТаИ нр. БИ-752 |
|||||||
|
IA |
Шезлонг |
я |
Проект С-723ОА Балтийский завод г.Ленинград яр. U-IAA Тюрнский лесокомбинат н др. |
||||||||
|
15 |
Кресло дли отдыха облегченного типа |
05 |
Проекты 1,3-5 118Ш (5.Строгановекое) аН’А’А лесоводства ж механизации лесного хозяйства Ивантеевский лесной селож-ЦВОЬКЫЙ питомник |
||||||||
|
16 |
Вешалка для платы |
еэ it |
Предприятия Глажмебедь-прома |
||||||||
Примечание:
Емкость для постельных принадлежностей может быть реиена в иидс о*дельно! тумбы, либо в виде ялика под спальным местом.
I жариаьт — набор мебели, соответствующий сметным нормам затрат и типовых наборов оборудования и предметов внутреннего убранства общественных в административных зданий (том 2 — объекты лечебно-профмжактичесисго назначения, объекты коммунального назначения, II., 19С1г.)
II ,В, 1У варианты — наборы нсбели наиболее подмо отвечавшие условиям высокого архитектурно-художественного качества и созданы) комфортных условий, соответствует сметным нормам на оборудование номеров гостиниц (том 2 — объекты лечвбно-ирофмлактического ■назначения, объекты коммунального назначения,!., 1961г.)
Более расвиренный ассортимент мебели см. в «Номенклатуре мебели спальных корпусов санаториев, домов отдыха и пансионатов» ЦНТИ по гражданскому строительству и архмтектуро, II., 1970г.
НИ 6.2-72 — 9 —
НОМЕНКЛАТУРА МЕБЕЛИ ДЛЯ ОБОРУДОВАНИЯ ПОМИХЕНИЯ ОБМСТВШВОГО НАЗНАЧЕНИЯ И ПОДСОБНЫХ ПОМЕЩЕНИЯ
* к
п/п
Наименованяо изделий
Функциональные размеры мебели(в плане)
п о
8L
¥
Ijj
в о ж
Проектная организация или предприятие изготовитель
А 5
6 7
10 II
12
17
18
19
20
21
22
23
24
Диван
Кресло
Банкетка
Цветочница
Стол журнальный
Стол регистраторе
Барьер регистратора
Барьер для почты и сберкассы
Киоск для продажи сувениров.газет, аптечных товаров
4600 • «800,
|
1 и- Ь- |
»-4 |
|
Р 1 450! |
— 1 |
|
5 |
|
|
$ 8 |
|
|
4<2оо. «400 |
|
Проект К-5-66 МЭФ «Стандарт»
Эстонской ССР Проект 620-44 ЭКБ Литовской ССР
Дагомысская меб.ф-ка
ВЦСПС
Каунасский меб.к-т Проект 590 Проекты ВШСТИМ
Каунасский меб.к-т Проект 580 ЭКБ Литовской ССР Проекты ВПКТИМ
Проект 580 ЭКБ Литовской ССР. Проект 0X-4I-58 59, МВХПУ (б.Строгановское), Проекты ВШСТИМ
Проект 590 Каунасский меб.к-т, Г.агомысская меб.ф-ка ВЦСПС Проект 580 ЭКБ Литовской ССР, Проекты ВПКТИМ
Проект ЛенЗНИИЭП.
Проект 632-07 ЭКБ Литовской ССР
Мосгипротраяс Проект 93/2 1961г. Проектный институт «моспроект-З»
|
САНАТОРИИ СПАЛЬНЫЕ КОРПУСА |
НОМЕНКЛАТУРА МЕБЕЛИ |
7 |
||||||||||
|
I |_2 |
5 |
4 |
5 |
X |
7 |
8 |
9 |
Ж |
II |
_12_ |
||
26
27
29
30
31
32
33
34
35
36
Веаалка
Барьер гардероба
Тумба для радиоприемника
Блох кухонный
■каф для посуды навесной
Шкаф-стол
Койка с подстольем
Стол рабочий
Диван кровать
Пкаф хозяйственный и для платья
Тумба для постельного бадья
Табурет
Ведро педальное
шшши Ш5Ш
I ООО-<80^
boo- «оо
CZDlf
боо
m]i
600
! ЛХ>
I»°° i
□toe
Проект М-58-5-И «Моспроект-2»
Проект «К-I «Носпроект-2» Проект 536-01 9КБ Литовской ССР
Проект В-21,22,23,24 Деревообрабатываюций комбинат «Вкйснурк»
Блок кухонный тип Б-100, тип A-I20
В
ИНЭП мнлида осграхданстроя
Всесоюзное объединение пСоюэкомплектыобельп набор «Весна»
Проект К-5-66 МЭФ «Стандарт» Эстонской ССР, Проект 633-01 ЭКБ Литовской ССР
Предприятия Главые-бельпр’.иа Минлесдрев-
Жыа СССР, проект
юз-06 ваши
Проект ОН-ЮЗ-ОЗ
Проект 620-ОЗа и
Всесоюзное объединение «Союзкоыплектмеоель»
3-д «Мосавтовтаыл», г.Москва
9 10 II
12
39
АО
AI
*2
АЗ
АА
А5
чв
AV
-н
Стоя для утюжки одежды
Вежалка иаполь-ная
Йжатель настен для предметов починки одеж ли
Подставка для чистки обуви
Кресло парикмахерское
Туалет парикмахерский
Полуавтоматически! аппарат (СМ-1)
Вкаф для инструме! тов, одежды, хала тов
Ларь для грязного белья
Кресло рабочее
-*99-
Dt
4*4
<«х>
ПС
(f
t WO<600|
\щ
^fooi-foooj
!!
С
Проект 655-АЗ 3КБ Литовской ССР Комбинат подсобного производственного трое та «Леиинградодежда* Типовой проект Союз-гипроторга, г.Москва
Местная проммиленность
Индивидуальное изготов’ ленив
Местная промышленность
У чебко-производственны* комбинат УБКО Мосгор-испол’:ома Проект CAFn-I-2-65
У чебко-производствеинмМ комбинат УБКО Мосгор-исполкома Проект САРП-1-2-65
Опытный электромеханический завод, г.Москва
Проект 352, MMCK-I г.Сходня Проект 635-65 3КБ Литовской ССР
Типовой проект 65-027 Комбинат УБКО Мосгор-исполкома
Пооект 5АА-22 ЭКБ Литовской ССР
49 Куяетка смотровая медицинская
50 Тумбочка
51 Веяалка настенная
52 Зеркадо навесное
|
ш |
1 |
|
|
Iff |
|
|
1 |
|
|
I 600] |
at ф
+«к 4^-
ООО |
loo
10111
-12-
Проект М-348 MMCK-I г.Сходня Проект 635-8. 9 3FB Лнтовско! ССР
ТУ 51*»-52
Завод «Медоборудова-ння» г.Одесса
Меотная промывденность
• * —
Полке навесная для туалетных принадлежностей
Казанский завод ■Сантехприбор»
Веяалка для полотенец
h
Wr
Стелла*
Стул
Примечание: НП 6.2-72
Проект 64-023 Гипроторг
МЫСК-1 Г.СХГ’ДНЯ Проект 655-124 ЭКБ Литовской ССР
Количество изделий мебели в поведении должно соответствовать проекту «Сметных норм затрат и типовых наборов оборудования и предметов внутреннего убранства общественных и административных зданий» ЦНИИЭГ. лечебно-курортных зданий. 1970г.
13 —
О
КРОВАТИ
©
ПРИКРОВАТНЫЕ ТУМБОЧКИ
А,Б — тумбочки навесные В — передвижная тумбочка Г — тумбочка о бортом
Высота тумбочки должна соответствовать высоте спквки кровати.
(Т) ДИВАНЫ-КРОВАТИ (Т) ТУМБЫ ДЛЯ ПОСТЕЛЬНЫХ ПРИНАДЛЕЖНОСТЕЙ
Б — диван-кровать с откидной спинкой, на обратной стороне которой разыенается постель
В — диван-кровать с трансформацией спинки, постельные принадлежности размещаются в специальной тумбе
Г — диван-кровать с ёмкостью для хранения постельных принадлежностей
А,Б — тумбы на один комплект постельных принадлежностей
НП 6.2-72
— 14 —
1ЭОО
Г
600-6*0
4
6 — кресло облегченного типа Б — стол комбинированны* (рабочий и туалетны!)
Примечание: Ори блокировке стола рабочего и туалетного с подставкой для чемодана, их вирина монет бить принята 400 мы.
НП 6.2-72 — IS —
ВАРИАНТЫ КОМБИНИРОВАННЫХ ПРЕДМЕТОВ МЕБЕЛИ ИЛИ БЛОКИРОВКИ ОТДЕЛЬНЫХ ИЗДЕЛИЯ (возможна навесная мебель из тех же элементов)
|
72 |
|
Г
У
©
I 8оо-<оо<| 4о<^ ТОО |
t
«I
8
ггх
а птпп ® I Ф I j|
‘ТОО I йоо
K-fri
ГТ“1
Ф
®и
| 600-100^ 700 |
ИУ’1; Г
Ггт?
®
8?
It
‘wi1
У
Н“Н?
® П1Н11 ®J®1 It ® lllllll © и jf
^аоо-«осх| <.оо
ЭКСПЛИКАЦИЯ ЭЛЕМЕНТОВ МЕБЕЛИ
1 Стол рабочий
2 Стол туалетам!
3 Подставка для чемоданов
а Отделение для белья
S Тумба прикроватная
УНИФИКАЦИЯ XH03HUX ВЕРТИКАЛЬНЫХ ЧЛЕНЕНИ* МЕБЕЛИ
700-7СО ООО 4fO *ЪО
24о
о
700-f 20 600 4^0 480
240 О _
кровать, диван-кровать
тумбочка тумба для постельимх
прикроватная принадлежностей
стол комбинированны* (рабочий м туалетный)
стол рсбочяй подставка у чи для чемодана
НП 6.2-72
— 16 —
ТИПЫ СТАЦИОНАРНОЙ МЕБЕЛИ И ОБОРУДОВАНИЯ ДЛЯ ВЕСТИБЮЛЯ
13
©Барьер-блок «Почта-телеграф» (секция на одно рабочее место)
©
Нкаф витринный для сувениров
Икаф витринный для журналов
Вевалка для верхней одежды
Стойка дежурного адммннстра-тораТсекцжя ва одно рабочее место]
Секция барьера
Зеркало ьастезное
Л
Примечание:
I. Стойка дежурного адмжиистратора разработана ВКБ Литовской ССР (индекс ОР-02-46)
2* un^«P^Ja^uU«24Te-T0J,er,>a^» “ проект, разработанный на базе основных типораз-моров стояки дежурного администратора (проектное предложение ЦНИИЭП леч.-кур.эд.)
3. Позиции 2 и 3 — проектное предложение ЦНИИЭП лечебно-курорткых зданий.
НП 6.2-72 — п .
ВСТРОЕННЫЕ ШКАФЫ ФУНКЦИОНАЛЬНЫЕ РАЗМЕРЫ
14
РАЗМЕРЫ НЕОБХОДИМЫХ ОТДЕЛЕНИЯ
для платья
для белья
w
It nt
[ »4СХХ
>моо
X ^
ра.яо ed’i?
i*
4^-
РАЗМЕЦЕНИЕ ОТДЕЛЕНИЯ В ШКАФАХ
>«о*>
=f=*>
АТО
4
*оо
1Ш
РАЗМЕРЫ ВСТРОЕННОГО ВКАФА
|
Показатели |
Ед.изм. |
Спальная ячейка |
|
|
на I чел. |
на 2 чел. |
||
|
плодадь |
М2 |
0,27 — 0,36 |
0,40 — 0,54 |
|
объем |
«5 |
0,8 — 0,9 |
1,5-1,64 |
|
размер по фронту |
см |
50,60 |
90,120 |
|
глубина |
см |
60,45 |
60,45 |
Примечание: Размер в скобках — для вхафов с выдвижной штангой. НП 6.2-72 — 18 —



















