Теплосчетчики. Часть 6. Установка, ввод в эксплуатацию, контроль, техническое обслуживание
Заменяет ГОСТ Р ЕН 1434-6-2006: Установка, ввод в эксплуатацию, контроль, техническое обслуживание ИУС 05-2013
На нашем сайте можно бесплатно скачать ГОСТ Р ЕН 1434-6-2011 в удобном формате. Узнать актуальный статус ГОСТА «Теплосчетчики. Часть 6. Установка, ввод в эксплуатацию, контроль, техническое обслуживание» на 2016 год.
Скрыть дополнительную информацию
Выберите формат отображения документа:

Страница 1

Страница 2

Страница 3

Страница 4

Страница 5

Страница 6

Страница 7

Страница 8

Страница 9

Страница 10

Страница 11

Страница 12

Страница 13

Страница 14

Страница 15

Страница 16

Страница 17

Страница 18

Страница 19

Страница 20
ФЕДЕРАЛЬНОЕ АГЕНТСТВО ПО ТЕХНИЧЕСКОМУ РЕГУЛИРОВАНИЮ И МЕТРОЛОГИИ
НАЦИОНАЛЬНЫЙ
ГОСТ Р ЕН 1434-6-2011
СТАНДАРТ
РОССИЙСКОЙ
ФЕДЕРАЦИИ
ТЕПЛОСЧЕТЧИКИ
Часть 6
Установка, ввод в эксплуатацию, контроль, техническое обслуживание
EN 1434-6:2007
Heat meters — Part 6: Installation, commissioning, operational monitoring and
maintenance
(IDT)
Издание официальное
|
Москва Стамдартинформ 2013 |
3
ГОСТ РЕН 1434-6—2011
Предисловие
Цели и принципы стандартизации в Российской Федерации установлены Федеральным законом от 27 декабря 2002 г. №о184-ФЗ«0 техническом регулировании», а правила применения национальных стандартов Российской Федерации — ГОСТ Р 1.0-2004 «Стандартизация в Российской Федерации. Основные положения»
Сведения о стандарте
1 ПОДГОТОВЛЕН Федеральным бюджетным учреждениемкГосударственный региональный центр стандартизации, метрологии и испытаний в Томской области» (ФБУ«Томский ЦСМ») на основе собственного аутентичного перевода на русский язык европейского регионального стандарта, указанного в пункте 4
2 ВНЕСЕН Управлением метрологии Федерального агентства по техническому регулированию и метрологии
3 УТВЕРЖДЕН И ВВЕДЕН В ДЕЙСТВИЕ Приказом Федерального агентства по техническому регулированию и метрологии от 13 декабря 2011 г. No 1106-ст
4 Настоящий стандарт идентичен европейскому региональному стандарту ЕН 1434-6:2007«Теп-лосчетчики. Часть 6. Установка, ввод в эксплуатацию, контроль, техническое обслуживание» (EN 1434-6:2007«Heat meters —Part 6: Installation, commissioning, operational monitoring and maintenance»).
При применении настоящего стандарта рекомендуется использовать вместо ссылочного европейского регионального стандарта соответствующий ему национальный стандарт Российской Федерации, сведения о котором приведены в допопнительном приложении ДА
5 ВЗАМЕН ГОСТ Р ЕН 1434-6-2006
Информация об изменениях к настоящему стандарту публикуется в ежегодно издаваемом информационном указателе «Национальные стандартым. а текст изменений и поправок — в ежемесячно издаваемом информационном указателе «Национальные стандарты». В случав пересмотра (замены) или отмены настоящего стандарта соответствующее уведомление будет опубликовано в ежемесячно издаваемом информационном указателе «Национальные стандарты». Соответствующая информация, уведомление и тексты размещаются также в информационной системе общего пользования — на официальном сайте Федерального агентства по техническому регулированию и метрологии в сети Интернет
© Стандартинформ. 2013
Настоящий стандарт не может быть полностью или частично воспроизведен, тиражирован и распространен в качестве официального издания без разрешения Федерального агентства по техническому регулированию и метрологии
ГОСТ P EH 1434-6—2011
Содержание
1 Область применения……………………………………..1
2 Нормативные ссылки……………………………………..1
3 Термины и определения……………………………………1
4 Требования
(N (NJ CNJ (NJ -5Г 05
4.1 Требования к конструкции……………………………….
4.2 Требования к установке…………………………………
4.3 Ввод в эксплуатацию теплосчетчиков…………………………..
Приложение А (справочное) Установка теплосчетчика……………………..
Приложение В (справочное) Контроль за работой теплосчетчика и его техническое обслуживание . Приложение С (справочное) Предлагаемый измерительный прибор для проверки размеров гильз
установленных температурных датчиков…………………….11
Приложение ДА (справочное) Сведения о соответствии ссылочного европейского регионального
стандарта ссылочному национальному стандарту Российской Федерации…..12
in
ГОСТ РЕН 1434-6—2011
Введение
к национальным стандартам Российской Федерации ГОСТ Р ЕН 1434-1-2011 — ГОСТ Р ЕН 1434-6-2011 под общим заголовком «Теплосчетчики»
Целью национальных стандартов Российской Федерации под общим заголовком «Теплосчетчики» является прямое применение в Российской Федерации европейского регионального стандарта ЕН 1434 под общим заголовком «Теплосчетчики» как основы для изготовления и поставки объекта стандартизации по договорам (контрактам), в том числе на экспорт.
ГОСТ Р ЕН 1434-1—ГОСТ Р ЕН 1434-6 представляют собой полные идентичные тексты следующих европейских регионапьных стандартов:
ЕН 1434-1:2007 «Теплосчетчики. Часть 1. Общие требования»;
ЕН 1434-2:2007 «Теплосчетчики. Часть 2. Требования к конструкции»;
ЕН 1434-3:2009 «Теплосчетчики. Часть 3. Обмен данными и интерфейсы»;
ЕН 1434-4:2007 «Теплосчетчики. Часть 4. Испытания в целях утверждения типа»;
ЕН 1434-5:2007 «Теплосчетчики. Часть 5. Первичная поверка»;
ЕН 1434-6:2007 «Теплосчетчики. Часть 6. Установка, ввод в эксплуатацию, контроль, техническое обслуживание».
ГОСТ Р ЕН 1434 соответствует международным рекомендациям Международной организации по законодатепьной метропогии (МОЗМ) МР 75:2002 «Счетчики тепла».
При производстве и метрологическом контроле теплосчетчиков в Российской Федерации учитывают следующие допопнительные требования:
— требования безопасности (электробезопасности, пожаробезопасности) теплосчетчиков и требования к питающей сети должны соответствовать нормативным документам, действующим на территории Российской Федерации;
— детали, соприкасающиеся с водой, должны быть выполнены из материалов, допущенных к применению Министерством здравоохранения и социального развития Российской Федерации;
— порядок организации и проведения испытаний в целях утверждения типа и поверки теплосчетчиков должны соответствовать нормативным документам, действующим на территории Российской Федерации.
К терминам и понятиям, применяемым в ГОСТ Р ЕН 1434, адекватным, но отличным по написанию от применяемых в нормативных документах, действующих на территории Российской Федерации, в тексте стандарта в виде сносок даны пояснения.
IV
ГОСТ P EH 1434-6—2011
Введение
к европейскому региональному стандарту ЕН 1434-6:2007 «Теплосчетчики. Часть 6. Установка, ввод в эксплуатацию, контроль, техническое
обслуживание»
Настоящий европейский стандарт разработан Техническим комитетом Европейского комитета по стандартизации СЕН/ТК176 «Теплосчетчики», секретариат которого находится в подчинении Организации по стандартизации Дании (DS).
Настоящий стандарт предназначен для применения в статусе национальных стандартов путем опубликования идентичного текста или признания стандарта до августа 2007 года, а возможно, противопоставления национапьным стандартам до августа 2007 года.
Настоящий стандарт принят взамен ЕН 1434-6:1997.
Европейский стандарт под общим заголовком«Теплосчетчики» включает в себя также следующие части:
Часть 1 — Общие требования
Часть 2 —Требования к конструкции
Часть 3 — Обмен данными и интерфейсы
Часть 4 — Испытания в целях утверждения типа
Часть 5 — Первичная поверка.
В соответствии с внутренними правилами Европейского комитета по стандартизации в области электротехники СЕНЕЛЕК (CENELEC) и Европейского комитета по стандартизации СЕН (CEN) настоящий европейский стандарт должен быть принят в качестве национального стандарта национальными организациями по стандартизации нижеперечисленных стран: Австрии, Бельгии. Болгарии, Кипра. Чехии. Дании. Эстонии. Финляндии. Франции. Германии. Греции, Венгрии. Исландии. Ирландии. Италии. Латвии. Литвы. Люксембурга. Мальты, Нидерландов. Норвегии, Польши. Португалии. Румынии. Словакии. Словении, Испании. Швеции. Швейцарии и Великобритании.
v
ГОСТ Р ЕН 1434-6-2011
НАЦИОНАЛЬНЫЙ СТАНДАРТ РОССИЙСКОЙ ФЕДЕРАЦИИ
ТЕПЛОСЧЕТЧИКИ Часть 6
Установка, ввод в эксплуатацию, контроль, техническое обслуживание
Heat meters. Part 6. Installation, commissioning, operational monitoring, maintenance
Дата введения — 2013—03—01
1 Область применения
Настоящий стандарт устанавливает требования к установке, вводу в эксплуатацию, контролю и техническому обслуживанию и распространяется на теплосчетчики, предназначенные для измерений тепловой энергии, поглощаемой или отдаваемой жидкостью, называемой теплоносящей жидкостью (теплоноситель). Данные теппосчетчики отражают количество тепла в стандартных единицах измерения.
Настоящий стандарт не устанавливает требования электробезопасности.
Настоящий стандарт не устанавпивает требования безопасности, связанные с давлением.
Настоящий стандарт не распространяется на теплосчетчики с датчиками температуры, установленными на поверхности трубопровода.
2 Нормативные ссылки
При использовании настоящего стандарта нижеследующие ссылочные документы являются обязательными. Для датированных ссылок возможно использование только указанного издания. Для неда-тируемых ссылок возможно испопьзование ссылочного документа (включая все существующие поправки) в последнем издании*.
В настоящем стандарте использованы нормативные ссылки на следующие стандарты:
ЕН 1434-1:2007 Теплосчетчики — Часть 1. Общие требования (EN 1434-1:2007, Heat meters — Part 1: General requiremens)
3 Термины и определения
В настоящем стандарте испопьзуются термины, определения и обозначения, описанные в разде-пе 4 ЕН 1434-1. а также нижеследующие:
3.1 отопительная система (heating system): Отопительная установка жилых домов и служебных помещений, включающая в себя теплообменную сеть, теплосчетчик, фитинги и электрооборудование.
Примечание — Как правипо. отопительная система подсоединена к питающей теплосети в двух местах: в начале и в конце отопительной системы.
3.2 питающая теплосеть (heat mains): Трубопроводы теплоснабжающего предприятия, к которым подсоединен попьзоватепь.
• Определения терминов «датированная ссылка на стандарт» и «недатированная ссылка на стандарт» — по РМГ 50—2002.
Издание официальное
1
ГОСТ РЕН 1434-6—2011
3.3 ветки прямого и обратного потоков (flow and return limbs): Трубы, соединяющие отопительную систему, питающую теплосеть.
3.4 первичная сеть (primary circuit): Контур, гидравлически соединенный с питающей теплосетью.
3.5 вторичная сеть (secondary circuit): Контур, гидравлически отделенный от первичной сети.
3.6 компетентная организация (competont authority): Лица или организации, несущие ответственность за теплосчетчик и/или его установку.
4 Требования
4.1 Требования к конструкции
При конструировании отопительной системы необходимо соблюдать инструкции по установке теплосчетчиков. заявленные поставщиком.
Примечание — Для диаметров условного прохода не более DN25 возможно использование коротких датчиков температуры. Для получения наилучшей температурной чувствительности такие датчики следует устанавливать без температурных гильз. Температурные гильзы следует использовать только в случаях, требующих повышенной безопасности,
4.2 Требования к установке
Теплосчетчик должен быть установлен в соответствии с инструкцией поставщика.
Перед установкой теплосчетчика отопительную систему, в которую его включают, необходимо тщательно промыть для устранения загрязнений. Также необходимо очистить фильтры (при наличии).
Теплосчетчик необходимо защитить от риска повреждения ударом и вибрацией, вызванными на месте установки внешними факторами.
Теплосчетчик не следует подвергать излишним механическим воздействиям труб и фитингов.
Участки труб до и после установки теплосчетчика должны быть закреплены надлежащим образом.
Подключение теплосчетчиков, работающих от сети питания переменного тока, следует осуществлять в соответствии с требованиями для электрических приборов.
Источник питания переменного тока должен быть защищен от случайных сбоев. Система защиты сети питания переменного тока должна соответствовать современным научным достижениям, что позволит безопасно отключать теплосчетчик при возникновении проблем с электричеством.
Кабели сигнала не должны быть расположены рядом с другими проводами, такими как кабели переменного тока, кабели низкого напряжения и кабели передачи информации, и должны быть отдельно защищены. Расстояние между этими кабелями должно быть не менее 50 мм.
Кабели переменного тока и кабели внешнего сигнала, длина которых превышает 10 м. должны быть защищены внешней защитой от грозовых перенапряжений при входе кабеля в здание, особенно в местах с частыми грозовыми разрядами.
Каждый кабель сигнала между датчиками температуры и вычислителем должен представлять собой одну целую часть без каких-либо соединений.
Кабели сигнала между составными элементами теплосчетчика должны быть расположены таким образом, чтобы была обеспечена защита от постороннего вмешательства и их разьединения.
Должны быть приняты меры, направленные на предотвращение повреждения теплосчетчика вследствие неблагоприятных гидравлических эффектов (кавитация, перепады напряжения, гидравлический удар).
После завершения установки теплосчетчика представителем компетентной организации должен быть проведен приемочный контроль в соответствии с установленным порядком.
4.3 Ввод в эксплуатацию теплосчетчиков
4.3.1 Общие положения
Ввод в эксплуатацию теплосчетчиков не следует ограничивать компетенцией одного физического лица или одной организации. Должны быть определены конкретные обязанности относительно ввода в эксппуатацию и соблюдены установленные далее требования.
4.3.2 Приемочный контроль
Перед вводом в эксплуатацию необходимо, в первую очередь, определить достоверность данных о теплосчетчике. Это осуществляют сопоставлением фактических и требуемых данных, касающихся типа, размера и способа монтажа, установленных поставщиком теппосчетчика. Кроме того, следует
2
ГОСТ P EH 1434-6—2011
проверить наличие на теплосчетчике маркировки утверждения типа, если это единый теплосчетчик, и наличие маркировки утверждения типа на всех составных элементах комбинированного теплосчетчика, указанных в его свидетельстве об утверждении типа.
4.3.3 Проверка установки теплосчетчиков
Следует проверить следующие положения:
— установлен ли датчик расхода в правильное положение и правильно ли определено направление потока;
— правильно ли датчик температуры вставлен в гильзу (гильзы короче 140 мм должны иметь отметку «ЕН 1434». либо размеры должны быть проверены);
— правильно ли установлены датчики температуры;
— установлен ли теплосчетчик на достаточном расстоянии от источников электромагнитных помех (выключатели, электрические двигатели, люминесцентные лампы);
— выполнено ли, при необходимости, заземление теплосчетчика в установленном порядке;
— правильно ли выполнена установка составных элементов теплосчетчика в соответствии с требованиями по монтажу, установленными поставщиком и изготовителем:
— функционирует ли теплосчетчик надлежащим образом при вводе в эксплуатацию системы отопления.
4.3.4 Безопасность теплосчетчика
После ввода в эксплуатацию защитные устройства теплосчетчика должны быть опломбированы представителями компетентной организации. Если в дальнейшем требуются регулировка теплосчетчика. замена составных элементов, замена батарей и тому подобное, то для этого необходимо будет нарушить одну или несколько пломб.
Опломбирование следует проводить регулярно согласно соответствующим инструкциям.
з
ГОСТ РЕН 1434-6—2011
Приложение А (справочное)
Установка теплосчетчика
А.1 Введение
В настоящем приложении приведены рекомендации по установке теплосчетчиков в отопительную систему, частью которой они являются.
В приложении содержатся указания, относящиеся к качеству теплоносителя, рекомендации, касающиеся поставщиков тепповой энергии, владепьцев зданий и потребителей.
А.2 Критерии выбора теплосчетчиков
Тип. размер, точность и класс по условиям окружающей среды теппосчетчика определяются исходя из условий эксплуатации и окружающей среды, принимая во внимание нижеследующее:
a) давление теплоносителя;
b) физические и химические характеристики теплоносителя;
c) допустимую потерю давления в теплосчетчике;
d) требования точности;
e) диапазоны температуры в ветках прямого и обратного потоков отопительной системы и диапазоны разности температур.
f) ожидаемые минимальное и максимальное значения расхода теплоносителя:
д) требуемую тепловую мощность отопительной системы;
h) тип потока, идущего через теплосчетчик (постоянный, переменный или прерывистый);
О требования к электропитанию теплосчетчика;
I) слециапьные требования к пространству вокруг теплосчетчика, касающиеся удобства считывания показаний. безопасной установки и обслуживания теплосчетчика;
к) требования к соединениям, т. е. фланцам, фитингам, а также к размерам теплосчетчика.
А.З Качество теплоносителя
А.3.1 Общие требования
В большинстве случаев теплосчетчики должны иметь конструкцию, способную противостоять изменениям химического состава, кислотности и содержания щелочи в теплоносителе. Однако присутствие твердых частиц во взвешенном состоянии, их осаждение на рабочие поверхности теплосчетчика или их влияние на движущиеся части механического датчика расхода со временем вызывают ухудшение рабочих характеристик теплосчетчика.
Твердые частицы также могут быть продуктами коррозии материалов, из которых изготовлены трубопроводы и отопительная система. Кроме того, твердые частицы могут появляться в горячей воде внутри самой питающей теплосети в результате воздействия тепловой энергии на химические вещества, содержащиеся в воде.
А.З.2 Качество воды в первичной сети
Как показывает опыт, качество воды в первичных теплосетях является высоким, потому что вода проходит стадию кипячения и подвергается тщательному контролю. Поэтому датчики в первичных сетях, как правило, работают в благоприятной среде.
А.3.3 Качество воды во вторичной сети
Как показывает опыт, теплосчетчики, функционирующие во вторичных питающих теплосетях, более подвержены влиянию качества воды. За качество воды во вторичной сети обычно отвечает владелец здания.
Покупатель теплосчетчика должен получить консультацию у поставщика об особых требованиях к качеству
воды.
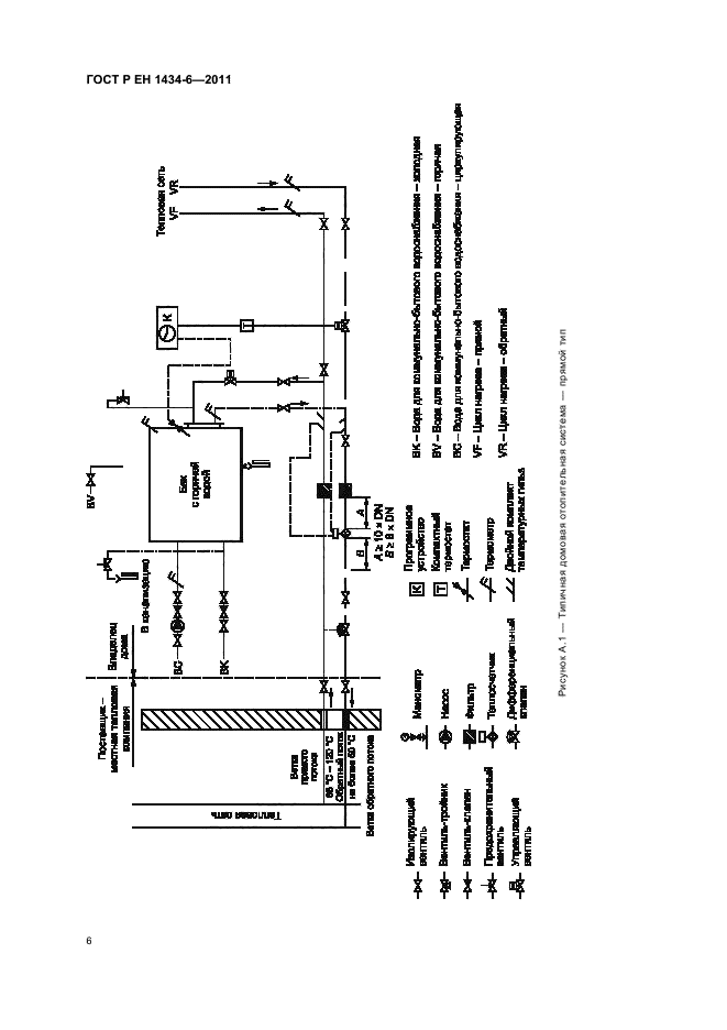
А.4 Построение схемы потоков для теплосчетчика
Построение/изменение схемы потоков должно обеспечивать эффективность работы теплосчетчика. Для этого следует принять во внимание требования к индивидуальной установке.
На рисунках А.1—А.З показаны типовые схемы отопительных сетей.
Рекомендуется также предусмотреть возможность проверки теплосчетчиков на месте, например можно обеспечить наличие двух точек измерений температуры.
Для обеспечения теплового комфорта в жилищах, как правило, используют устройства автоматического управления, позволяющие получить оптимальные энергетические характеристики.
Датчики температуры прямого и обратного потоков устанавливаются в одну и ту же питающую теплосеть. По возможности трубы должны быть одного размера и иметь одинаковый скоростной профиль Оба датчика температуры должны быть установлены аналогичным образом.
Для измерений температуры предпочтительно использование длинных датчиков.
4
ГОСТ P EH 1434-6—2011
При анализе небольших теплосетей необходимо рассматривать следующие аспекты:
— потребление тепловой энергии при выходе за верхний предел значения расхода ,;
— потребление тепловой энергии при выходе за нижний предел значения расхода q-
— данные динамической стабильности.
Как правило, теплосчетчики применяют и испытывают при постоянных условиях в пределах диапазона измерений. заданного поставщиком.
При определении требований к небольшим теплосетям необходимо учитывать вышеизложенные факторы с технической и экономической точек зрения.
Для того чтобы свести к минимуму возникающие при этом проблемы, необходимо предпринять следующее:
— устанавливать ограничители расхода и температуры там. где возможно превышение д.;
— использовать теплосчетчики с большим диапазоном измерений (1:100). если возможны очень низкие значения расхода.
— использовать теплосчетчики с улучшенными характеристиками, если потребление тепловой энергии имеет изменяющийся характер.
В случае если теплосчетчик работает на батарейном питании, необходимо принимать во внимание срок службы батарей.
A.S Дополнительные рекомендации при охлаждении
Из-за температурной зависимости датчик расхода следует устанавливать на высокотемпературной линии для снижения конденсата и для улучшения работы теплосчетчика.
Поскольку в большинстве случаев низкотемпературные теплосчетчики работают с очень низкой разностью температур, необходимо уделить пристальное внимание выбору и установке датчика температуры. Очень важными факторами являются симметричная установка и изоляция датчиков.
Сбалансированная регулировка температурных измерений удельного расхода внутри вычислителя комбини-роввнного теплосчетчика улучшит его работу.
Во избежание скопления конденсата следует установить гильзы с отверстиями в нижней части.
5
|
Июлкфуюсдий вентль -XJ- -Ч#- Вентиль-тройных Ч>4- ВМЛШЪ-СЛЯПП _U<_ Прддодр—пднЛ ■еншпь Й, Управляющий ВвИШЛ!» |
1 Манаштр -®- Нвоое -И- Фильтр -S- jgL/Мхцвеен^шльл гам |
Программное устройство rvj Комгшхтный Ш ттЗршХЦгт -//— Тариостст Тэриснретр // Дкйной юыплигг таигирлурны*гипь& [К] |
вк-ворадоя юшыуняльно-бытсвого шардомбммма—жподнм BV — Вора для дмм}н»пьно-Сьашюп) ■сросикВашия — горим вс — Вод» для иЗм»ун»паК»-РмтанСп> вОдОСнСОфнин — циркул иру1»ц»п VF — Цжл кир—i — прямо* VR-Цщл кжрмн — обршшй |
Рисунок А.1 — Типичная домовая отопительная система — прямой тип
|
ftfljUgminb Твлпонжмп» VF VR |
|
|
Гкхггшнцж- I ммлшя таплоши ! Владелец ксмгшмя доме Вага IM4LIU пстпэш »’С-120’С ООрГпчй iCrtm МО0ПИ№*С Вспхя овршмгп пспсжя |
|
|
*210kDN нормальна аифьтт |
|
f Ми титр
-ф- Насос -В- Окпьтр
-S- TMlKXNVTSkC
Htnnfynnptf
иншдь
Звнтюг^троянш
Вйнппнотн
ПропсхранягегышЯ
интшъ
УГфаягаощий
асжтмль
НМ4
ГОСТ Р ЕН 1434-6-2011
Рисунок А2 — Отопительная система с теплообменником
А ТфИОСтГ Термометр
// Двойно* еСмпгаЖт i4«)f ijffiHHxmnw
НК — Вара для иожгцшьиубытовот аэдотяйтиим-лапэдная BV — Вор* дпя кнаг/нжгшо-Сытакжу ■ореха иймии — щинии ВС — BOft» дли «мму*и1ь«0-Вш<ис*© оДОМвв» mi - цчХугвДОвц*) VF - Цикл нир— - прммвИ
VR—Цикл тр— — рфжтныЯ
ГОСТ РЕН 1434-6—2011
Рисунок АЛ — Отопительная система — прямой тип
8
ГОСТ P EH 1434-6—2011
Приложение В (справочное)
Контроль за работой теплосчетчика и его техническое обслуживание
В.1 Введение
В настоящем приложении даны рекомендации по контролю за работой теплосчетчиков, техническому обслуживанию новых теплосчетчиков и их замене. Настоящее приложение относится к долговечности теплосчетчика, описывает процедуры контроля и включает в себя рекомендуемый список сервисных работ. Эти рекомендации имеют прямое отношение к поставщику тепловой энергии, владельцу здания и потребителю.
В.2 Эксплуатационный срок службы теплосчетчика
Компетентный орган определяет продолжительность времени или процедуру, позволяющую определить срок действия первичного сертификата проверки теплосчетчика. По окончании данного срока теплосчетчик обычно заменяют. Любую проверку теплосчетчика или сервисную работу следует начинать с проверки срока службы, который не должен быть превышен.
В.З Процедуры контроля теплосчетчика
Дпя обеспечения нормальной работы и способа ислопьзования отопительных систем, оснащенных теплосчетчиками. необходимо осуществлять наблюдение за эффективной работой теплосчетчиков. Наблюдение включает в себя инспекционный надзор за каждым теплосчетчиком и проведение процедур контроля внутри организации. целью которых является оценка соответствия показаний энергопотребления теплосчетчиков ожидаемым значениям.
Должна быть возможность квалифицированно подтверждать правильность показаний теплосчетчика без проведения повторной калибровки теплосчетчика на месте или в лаборатории и его демонтажа. Сделать такое заключение поможет знание режима работы теплосчетчика, его предыстории, сезонных колебаний погоды и т. д.
Должны быть разработаны процедуры, позволяющие получить приемлемый баланс между стоимостью контроля и проверок и экономическими последствиями неисправности теплосчетчиков.
Сравнивая данные о метеорологических условиях и потреблении теппоэнергии конкретного теплосчетчика за прошлые годы с климатическими данным за текущий отопительный сезон, можно спрогнозировать потребление тепловой энергии или выявить неверные показания теплосчетчиков.
По очевидным причинам показания теплосчетчиков рекомендуется часто считывать, но это может быть достаточно затратным и неэкономичным. Для больших теплосчетчиков рекомендуется считывать показания не менее четырех раз в год.
В.4 Перечень сервисных работ
В соответствии с руководством по техническому обслуживанию и ремонту необходимо выполнять минимальные требования (также см. рисунок В.1):
— проверить сохранность защитных пломб и отсутствие повреждений на них;
— проверить функционирование теплосчетчика;
— сверить показания энергопотребления теплосчетчиком на месте с дистанционными показаниями, проверить исправность защитной теплопроводки и защитных кодов.
— убедиться, что изолирующие вентили теплосчетчика полностью открыты, что их можно закрыть и они не протекают.
— проверить, нет ли следов протечек теплосчетчика, фитингов и соединений.
— проверить, не проникает ли вода в теплосчетчик, и не заливает ли его;
— убедиться, что кабели теплосчетчика плотно подсоединены, не повреждены и не подвержены влиянию тепла окружающей среды или других факторов;
— проверить заземление там. где необходимо;
— проверить, что крепежные и фиксирующие детали соответствуют теплосчетчику, являются технически целесообразными и находятся в исправном состоянии;
— проверить и. если необходимо, прочистить или звменить фильтрующие элементы;
— убедиться, что температура окружающей среды находится в допустимых пределах, установленных для теплосчетчика;
— записать показания теплосчетчика.
В.5 Замена неисправных теплосчетчиков
Причину выхода из строя теплосчетчика необходимо определять на месте его установки, так как после его демонтажа обнаружить дефект сложнее.
Проверяют следующие параметры:
— имеются ли признаки несанкционированного доступа к теплосчетчику;
9
ГОСТ РЕН 1434-6—2011
— не повреждены ли пломбы.
— правильно ли был установлен теплосчетчик согласно инструкциям поставщика и т.д.
Замену неисправного теплосчетчика на новый или отремонтированный следует выполнять в том же порядке, что и установку нового теплосчетчика, как описано в приложениях А и В.
При выяснении причины неисправности необходимо в любом случае действовать в интересах потребителя и соблюдать конфиденциальность.
|
|
|||||||||||||||||||||||||||||||||||||||||||||||||||||||||||||||||||||
Инструкция:
1 Сразу после демонтажа датчик расхода необходимо закрыть и осторожно поместить в транспортный контейнер.
2 Теплосчетчик не разбирать, не очищать, не подвергать механическим нагрузкам и воздействию холодом.
3 Теплосчетчики настоящий отчет должны быть доставлены в пабораторию в день проведения работ.
Рисунок В.1 — Отчет о техническом обслуживании (пример)
10
ГОСТ P EH 1434-6—2011
Приложение С (справочное)
Предлагаемый измерительный прибор для проверки размеров гильз установленных температурных датчиков
В 4.3.3 отмечено, что для датчиков короче 140 мм необходимо проверить соответствие размеров гильз температурных датчиков размерам используемых датчиков.
Маркировка «ЕН 1434» подтверждает, что минимально допустимый внутренний диаметр соответствует датчику согласно требованиям настоящего стандарта. В случае если маркировка отсутствует, для измерения необходимого внутреннего диаметра следует использовать прибор, представленный на рисунке С.1:
1) один из концов прибора должен быть полностью вставлен в гильзу до упора.
2) недопустимо, чтобы второй конец прибора был также вставлен в гильзу.
ГЧэамфы вмнимюфос
Рисунок С.1 — Предлагаемые размеры измерительного прибора и гильзы
|
1) Соответствует Н11 по ИСО 286-2, значения округлены до двух десятичных разрядов |
11
ГОСТ РЕН 1434-6—2011
Приложение ДА (справочное)
Сведения о соответствии ссылочного европейского регионального стандарта ссылочному национальному стандарту Российской Федерации
|
Таблица ДА.1 |
|||||||||
|
|||||||||
12
ГОСТ P EH 1434-6—2011
УДК 681.125:006.354 ОКС 17.200.10 П15
91.140.10
Ключевые слова: метрология, теплосчетчики, установка, порядок проверки, техническое обслуживание
13
Редактор И.А. Аргунова Технический редактор В.И. Прусакова Корректор Ю.М. Прокофьева Компьютерная верстка В.И. Грищоняо
Сдано в иабор 29.04.2013. Подписало о печать 19.07 2013 Фориат 60×84’/,. Гарнитура Ариап. Усп. печ. п. 2.32.
Уч.-изд. п. 1 .в0. Тира* 108 экз. Зак. 782.
ОГУП «СТАНДАРТИНФОРМ». 123995 Москва. Гранатный пер.. 4 WWW .gostinfo.ru info@gostinfo.ru
Набрано во ФГУП «СТАНДАРТИНФОРМ» на ПЭВМ Отпечатано в филиале ФГУП «СТАНДАРТИНФОРМв — тип. «Московский печатник». 10S062 Москва, Пялин пер.. в.


