Теплосчетчики. Часть 6. Установка, ввод в эксплуатацию, контроль, техническое обслуживание

Страница 1

Страница 2

Страница 3

Страница 4

Страница 5

Страница 6

Страница 7

Страница 8

Страница 9

Страница 10

Страница 11

Страница 12

Страница 13

Страница 14

Страница 15
ФЕДЕРАЛЬНОЕ АГЕНТСТВО ПО ТЕХНИЧЕСКОМУ РЕГУЛИРОВАНИЮ И МЕТРОЛОГИИ
НАЦИОНАЛЬНЫЙ
ГОСТ Р ЕН 1434-6-2006
СТАНДАРТ
РОССИЙСКОЙ
ФЕДЕРАЦИИ
ТЕПЛОСЧЕТЧИКИ
Часть 6
Установка, ввод в эксплуатацию, контроль, техническое обслуживание
EN 1434-6:1997
Heat meters. Part 6: Installation, commissioning, operational monitoring and
maintenance
(IDT)
Издание официальное
5
S
8
\
n
Ш
Стимрпафори
ГОСТ Р ЕН 1434-6-2006
Предисловие
Цели и принципы стандартизации в Российской Федерации установлены Федеральным законом от 27 декабря 2002 г. № 184-ФЗ «О техническом регулировании», а правила применения национальных стандартов Российской Федерации — ГОСТ Р 1.0-2004 «Стандартизация в Российской Федерации. Основные положения»
Сведения о стандарте
1 ПОДГОТОВЛЕН Закрытым акционерным обществом «ИВК-Саяны» (ЗАО «ИВК-Саяны») на основе собственного аутентичного перевода европейского стандарта, указанного в пункте 4
2 ВНЕСЕН Управлением метрологии Федерального агентства по техническому регулированию и метрологии и Техническим комитетом по стандартизации ТК 445 «Метрология энергоэффективной экономики»
3 УТВЕРЖДЕН И ВВЕДЕН В ДЕЙСТВИЕ Приказом Федерального агентства по техническому регулированию и метрологии от 1 сентября 2006 г. No 180-ст
4 Настоящий стандарт идентичен европейскому стандарту ЕН 1434-6:1997 «Теплосчетчики. Часть 6. Установка, ввод в эксплуатацию, контроль, техническое обслуживание» (EN 1434-6:1997 «Warmezahler. Teil 6: Einbau. Inbetriebnahme. Lberwachung und Wartung»).
Европейский стандарт разработан Техническим комитетом СЕН/ТК 176 «Теплосчетчики».
Перевод с немецкого языка (de).
Официальные экземпляры европейского стандарта, на основе которого подготовлен настоящий стандарт, и стандартов, на которые даны ссыпки, имеются во ФГУП «СТАНДАРТИНФОРМ».
При применении настоящего стандарта рекомендуется использовать вместо ссылочных международных (региональных) стандартов соответствующие им национальные стандарты Российской Федерации. сведения о которых приведены в дополнительном приложении С
5 ВВЕДЕН ВПЕРВЫЕ
Информация об изменениях к настоящему стандарту публикуется в ежегодно издаваемом информационном указателе «Национальные стандарты», а текст изменений и поправок — в ежемесячно издаваемых информационных указателях «Национальные стандарты». В случав пересмотра (замены) или отмены настоящего стандарта соответствующее уведомление будет опубликовано в ежемесячно издаваемом информационном указателе «Национальные стандарты». Соответствующая информация, уведомление и тексты размещаются также в информационной системе общего пользования — на официальнаw сайте Федерального агентства по техническому регулированию и метрологии в сети Интернет
© Стандартинформ. 2006
Настоящий стандарт не может быть полностью или частично воспроизведен, тиражирован и распространен в качестве официального издания без разрешения Федерального агентства по техническому регулированию и метрологии
ГОСТ Р ЕН 1434-6-2006
Содержание
Предисловие к европейскому стандарту ЕН 1434-6:1997 «Теплосчетчики. Часть 6. Установка,
ввод в эксплуатацию, контроль, техническое обслуживание»…………………IV
Предисловие к национальным стандартам Российской Федерации ГОСТ Р ЕН 1434-1-2006 —
ГОСТ Р ЕН 1434-6-2006 под общим заголовком ««Теплосчетчики»……………….V
1 Область применения……………………………………..1
2 Нормативные ссылки……………………………………..1
3 Термины и определения……………………………………1
4 Требования………………………………………….2
4.1 Требования к конструкции…………………………………2
4.2 Требования к установке………………………………….2
4.3 Ввод в эксплуатацию теплосчетчиков…………………………..2
4.3.1 Проверка достоверности данных………………………….2
4.3.2 Проверка установки теплосчетчиков…………………………2
4.3.3 Безопасность теплосчетчика…………………………….3
Приложение А (справочное) Установка теплосчетчиков……………………..3
Приложение В (справочное) Контроль за работой теплосчетчика и его техническое обслуживание . 8 Приложение С (справочное) Сведения о соответствии национальных стандартов Российской
Федерации ссылочным международным (региональным) стандартам………10
hi
ГОСТ Р ЕН 1434-6-2006
Предисловие
к европейскому стандарту ЕН 1434-6:1997 «Теплосчетчики. Часть 6. Установка, ввод в эксплуатацию, контроль, техническое обслуживание»
Настоящий европейский стандарт разработан Техническим комитетом Европейского комитета по стандартизации СЕНЯК 176 «Теплосчетчики».
Европейские стандарты под общим заголовком «Теплосчетчики» включают в себя также следующие части:
Часть 1. Общие требования.
Часть 2. Требования к конструкции.
Часть 3. Обмен данными и интерфейсы.
Часть 4. Испытания с целью утверждения типа.
Часть 5. Первичная поверка.
Настоящий европейский стандарт предназначен для применения в статусе национальных стандартов путем опубликования аутентичного текста или признания стандарта до августа 1997 года, а возможно. противопоставления национальным стандартам до августа 1997 года.
Настоящий европейский стандарт принят национальными институтами следующих стран, являющихся членами Европейского комитета по стандартизации СЕН (CEN) и Европейского комитета по стандартизации в области электротехники СЕНЕЛЕК (CENELEC): Бельгии, Дании, Германии, Финляндии. Франции. Греции, Ирландии, Исландии, Италии, Люксембурга, Нидерландов. Норвегии. Австрии. Португалии. Швеции, Швейцарии. Испании и Великобритании.
IV
ГОСТ Р ЕН 1434-6-2006
Предисловие к национальным стандартам Российской Федерации ГОСТ Р ЕН 1434-1-2006 — ГОСТ Р ЕН 1434-6-2006 под общим заголовком «Теплосчетчики»
Целью национальных стандартов Российской Федерации под общим заголовком «Теплосчетчики» является прямое применение в Российской Федерации европейских стандартов ЕН 1434:1997 под общим загоповком «Теплосчетчики» как основы для изготовления и поставки объекта стандартизации по договорам (контрактам) на экспорт.
ГОСТ Р ЕН 1434-1 — ГОСТ Р ЕН 1434-6 представляют собой полные аутентичные тексты следующих европейских стандартов:
ЕН 1434-1:1997 + А 1:2002 «Теплосчетчики. Часть 1. Общие требования»;
ЕН 1434-2:1997 + А1:2002 «Теплосчетчики. Часть 2. Требования к конструкции»;
ЕН 1434-3:1997 «Теплосчетчики. Часть 3. Обмен данными и интерфейсы»;
ЕН 1434-4:1997 «Теплосчетчики. Часть 4. Испытания с целью утверждения типа»;
ЕН 1434-5:1997 «Теппосчетчики. Часть 5. Первичная поверка»;
ЕН 1434-6:1997 «Теплосчетчики. Часть 6. Установка, ввод в эксплуатацию, контропь, техническое обслуживание».
ГОСТ Р ЕН 1434-1 — ГОСТ Р ЕН 1434-6 соответствуют международным рекомендациям Международной организации по законодательной метрологии (МОЗМ) МР 75:2002 «Счетчики теппа».
При производстве и метрологическом контроле теплосчетчиков учитывают следующие дополнительные требования:
— требования безопасности (электробезопасности. пожаробезопасности) теплосчетчиков и требования к питающей сети должны соответствовать нормативным документам, действующим на территории Российской Федерации:
— детали, соприкасающиеся с водой, должны быть выполнены из материалов, допущенных к применению Министерством здравоохранения и социального развития Российской Федерации;
— порядок организации и проведения испытаний с иелью утверждения типа и поверки теплосчетчиков должен соответствовать указанному в нормативных документах, действующих на территории Российской Федерации.
К терминам и понятиям, применяемым в ГОСТ Р ЕН 1434-1 — ГОСТ Р ЕН 1434-6. адекватным (но отличным по написанию) терминам и понятиям, применяемым в нормативных документах, действующих на территории Российской Федерации, даны пояснения в виде сносок.
v
ГОСТ Р ЕН 1434-6-2006
НАЦИОНАЛЬНЫЙ СТАНДАРТ РОССИЙСКОЙ ФЕДЕРАЦИИ
ТЕПЛОСЧЕТЧИКИ Часть 6
Установка, ввод в эксплуатацию, контроль, техническое обслуживание
Heal meters. Part 6. Installation, commissioning, operational monitoring and maintenance
Дата введения — 2007—01—01
1 Область применения
Настоящий стандарт распространяется на одноканальные теплосчетчики, предназначенные для измерений тепловой энергии, которую поглощает или отдает в системах водяного теплоснабжения теплоносящая жидкость (далее — теплоноситель), и устанавливает минимальные требования к документации. конструкции, установке и вводу в эксплуатацию теплосчетчиков, обеспечивающие их надежную эксплуатацию в течение установленного срока.
Настоящий стандарт не устанавливает требования электробезопасности.
2 Нормативные ссылки
Настоящий стандарт содержит датированные и недатированные нормативные ссылки на стандарты*. Нормативные ссылки на стандарты, перечисленные ниже, приведены в соответствующих местах в тексте. В случае датированных ссылок последующие изменения или пересмотр стандартов учитывают в настоящем стандарте только при внесении в него изменений или пересмотре. В случае недатированных ссылок на стандарты применяют их последние издания.
В настоящем стандарте использована нормативная ссылка на следующий стандарт:
ЕН 1434-1:1997 Теплосчетчики. Часть 1. Общие требования
3 Термины и определения
В настоящем стандарте применены термины и обозначения по разделу 4 ЕН 1434-1, а также следующие термины с соответствующими определениями:
3.1 отопительная система (Heizungssystem): Отопительная установка жилого дома, включающая в себя теплообменную сеть, теплосчетчик, фитинги и электрооборудование.
Примечание — Как правило. отопительная система подсоединена к питающей теппосети е двух местах (в начапе и конце отопитепьной системы).
3.2 питающая теплосеть (Warmeverteilungsnetz): Труба поставщика тепловой энергии, к которой подключают пользователя.
3.3 ветки прямого и обратного потоков (Vorlauf- und Riicklaufleitungen): Трубы, соединяющие отопительную систему и питающую теплосеть.
3.4 первичная сеть (Primarkreislauf): Цепь, гидравлически соединенная с питающей теплосетью.
3.5 вторичная сеть (Sekundarkreislauf): Цепь, гидравлически отделенная от первичной сети.
3.6 компетентная организация (verantwortliche Stelle): Организация или лица, имеющие соответствующие полномочия и несущие ответственность за установку, ввод в эксплуатацию, контроль и (или) техническое обслуживание теплосчетчиков.
* Опредепения терминов «датированная ссыпка на стандарт» и инедатированная ссыпка на стандарт» — по РМГ 50—2002
Издание официальное
1
ГОСТ Р ЕН 1434-6-2006
4 Требования
Настоящий раздел устанавливает минимальные требования к конструкции, установке и вводу в эксплуатацию теплосчетчиков.
4.1 Требования к конструкции
Отопительная система должна быть спроектирована таким образом, чтобы были выполнены требования, установленные поставщиком теппосчетчиков.
Примечание — Для диаметров условного прохода не более ON 25 возможно применение коротких датчиков температуры. С целью получить наилучшую температурную чувствительность эти датчики следует устанавливать без температурных гильз. Температурные гильзы следует использовать только в случаях, требующих повышенной надежности.
4.2 Требования к установке
Теплосчетчик должен быть установлен в соответствии с инструкцией поставщика.
Перед установкой теплосчетчика питающая теплосеть, в которую его включают, должна быть тщательно промыта для устранения загрязнений. Фильтры (при наличии) должны быть очищены.
Теплосчетчики необходимо защищать от риска повреждения ударом и вибрацией.
Теплосчетчик не следует подвергать излишним механическим воздействиям со стороны труб и фитингов.
Участки труб до и после установки теплосчетчика должны быть надлежащим образом закреплены.
Подключение теплосчетчиков, работающих от питающей теплосети, следует осуществлять в соответствии с требованиями для электрических приборов.
Источник питающей теплосети должен быть защищен от случайных сбоев. Система защиты должна соответствовать современным научным достижениям, что позволит безопасно отключать теплосчетчик при возникновении проблем с электричеством.
Кабели сигнала не должны быть расположены непосредственно рядом с основными проводами энергоснабжения и должны быть отдельно защищены. Расстояние между кабелями сигнала и проводами энергоснабжения допжно быть не менее 50 мм.
Каждый кабель сигнала между датчиками температуры и вычислителем должен представлять собой одну целую часть и не должен иметь никаких соединений.
Кабели сигнала между составными элементами теплосчетчика должны быть расположены таким образом, чтобы была обеспечена защита от возникновения неисправностей и случайных сбоев.
Должны быть приняты меры, направленные на предотвращение повреждения теплосчетчика вследствие гидравлических эффектов, таких как кавитация, удар.
После завершения установки теплосчетчика представителем независимой организации должен быть проведен приемочный контроль в соответствии с установленным порядком.
4.3 Ввод в эксплуатацию теплосчетчиков
Ввод в эксплуатацию теплосчетчиков не следует ограничивать компетенцией одного физического лица или одной организации. Должны быть определены конкретные обязанности относительно ввода в эксплуатацию и соблюдены установленные далее требования.
4.3.1 Проверка достоверности данных
Перед вводом в эксплуатацию необходимо, в первую очередь, определить достоверность данных о теплосчетчике. Это осуществляют сопоставлением фактических и требуемых данных, касающихся типа и размера, установленных поставщиком теплосчетчика, и распространяющихся на способ установки. Кроме того, следует проверить напичие на теплосчетчике маркировки утверждения типа (если это единый теппосчетчик). Следует также проверить наличие маркировки утверждения типа на составных элементах комбинированного теплосчетчика, указанных в сертификате утверждения его типа.
4.3.2 Проверка установки теплосчетчиков
Следует проверить:
— установлен ли датчик расхода в правильное положение и правильно ли определено направление потока;
— проведена пи установка датчиков температуры в соответствии с установленными требованиями;
— установлен ли теплосчетчик на достаточном расстоянии от источников электромагнитных излучений (выключатели, электрические двигатели, люминесцентные лампы);
— выпопнено ли, при необходимости, заземление теплосчетчика в установленном порядке;
2
ГОСТ Р ЕН 1434-6-2006
— правильно ли проведена установка составных элементов теплосчетчика в соответствии с требованиями поставщика и изготовителя;
— функционирует ли теплосчетчик при вводе в эксплуатацию системы отопления надлежащим образом.
4.3.3 Безопасность теплосчетчика
После ввода в эксплуатацию защитные устройства теплосчетчика должны быть опломбированы представителями компетентной организации. Если в дальнейшем требуются регулировка теплосчетчика, замена составных элементов, замена батарей и т.п.. то для этого необходимо нарушить одну или несколько пломб.
Опломбирование следует проводить регулярно согласно соответствующим инструкциям.
Приложение А (справочное)
Установка теплосчетчиков
А.1 Введение
В настоящем приложении приведены рекомендации по установке теппосчетчиков в отопительную систему, частью которой они являются.
В приложении содержатся указания, относящиеся к качеству теппоноситепя. рекомендации, касающиеся поставщиков тепловой энергии, владельцев зданий и потребителей.
А.2 Критерии выбора теплосчетчиков
Тип. размер, точность и класс по условиям окружающей среды теплосчетчика определяют исходя из условий эксплуатации и окружающей среды, принимая во внимание нижеследующее:
а) давление теплоносителя;
Ь> физические и химические характеристики теплоносителя.
c) допустимую потерю давления в теплосчетчике;
d) требования точности;
e) диапазоны температуры в ветках прямого и обратного потоков и диапазоны разности температур;
f) ожидаемые минимапьное и максимальное значения расхода теплоносителя;
д) требуемую тепловую мощность отопительной системы;
h) тип потока, идущего через теплосчетчик (постоянный, переменный, прерывистый);
I) требования к электропитанию теплосчетчика.
J) специапьные требования к пространству вокруг теплосчетчика, касающиеся простоты считывания показаний, безопасности и обслуживания теплосчетчика.
к) требования к соединениям, т.е. фланцам, фитингам, а также к размерам теплосчетчика.
А.З Качество теплоносителя
А.3.1 Общие требования
Теплосчетчики должны иметь конструкцию, способную противостоять изменениям химического состава, кислотности и содержания щелочи в теплоносителе. Однако присутствие твердых частиц, их осаждение на рабочие поверхности теплосчетчика или их влияние на движущиеся части механического датчика расхода со временем вызывают ухудшение рабочих характеристик датчика.
Твердые частицы также могут быть продуктами коррозии материалов, из которых изготовлены трубопроводы и отопительная система. Кроме того, твердые частицы могут появляться в горячей воде внутри самой питающей теплосети в результате воздействия тепловой энергии на химические вещества, содержащиеся в воде.
А.3.2 Качество воды в первичной сети
Качество воды в первичных питающих теплосетях, как показывает опыт, бывает высоким вследствие того, что вытекающую из котлов воду подвергают строгому контролю. Поэтому датчики в первичных сетях, как правипо. работают в благоприятной среде.
3
ГОСТ Р ЕН 1434-6-2006
А.3.3 Качество воды во вторичной сети
Теплосчетчики, функционирующие во вторичных питающих теплосетях, более подвержены влиянию качества воды. За качество воды во вторичной сети обычно отвечает владелец здания.
Покупатель теплосчетчика должен получить консультацию у поставщика об особых требованиях к качеству
воды.
А.4 Построение схемы потоков для теплосчетчика
Построение схемы потоков должно обеспечивать эффективность работы теплосчетчиков. Следует принять во внимание требования индивидуальной установки.
Типовые схемы отопительных сетей приведены на рисунках А.1 — А.З.
Рекомендуется также предусмотреть возможность проверки теплосчетчиков на месте, например можно обеспечить наличие двух точек измерений температуры.
Для обеспечения теплового комфорта в жилищах обычно используют автоматические контрольные устройства. дающие оптимапьные энергетические характеристики.
Датчики температуры прямого и обратного потоков должны быть встроены в одну и ту же питающую теплосеть. Там. где возможно, трубы должны иметь одинаковый диаметр и одинаковый скоростной профиль. Пара датчиков температуры должна быть установлена аналогичным образом.
Для измерений температуры предпочтительно использование длинных датчиков.
При анализе небольших питающих теплосетей необходимо рассматривать следующие аспекты:
— потребление тепловой энергии при выходе за верхний предел значения потока д»:
— потребление тепловой энергии при уменьшении нижнего предепа значения потока сг,;
— данные динамической стабильности.
Как правило, теплосчетчики применяют и испытывают при постоянных условиях в пределах диапазона измерений. заданного поставщиком.
При определении требований к небольшим питающим теплосетям необходимо учитывать возможные последствия с технической и экономической точек зрения.
Для того чтобы свести к минимуму возникающие при этом проблемы, необходимо предпринять следующее:
— устанавливать ограничители расхода и температуры там. где возможно превышение q,.
• использовать теплосчетчики с большим диапазоном измерений (1 : 100). если возможны очень низкие значения расхода,
— использовать теплосчетчики с улучшенными характеристиками, если потребление тепловой энергии имеет прерывистый характер.
Необходимо принимать во внимание срок службы батарей.
4
|
Теплянн снгь VF VR |
Постниц» I Владелец местмн тчплояи дат
■оыщмя I
|
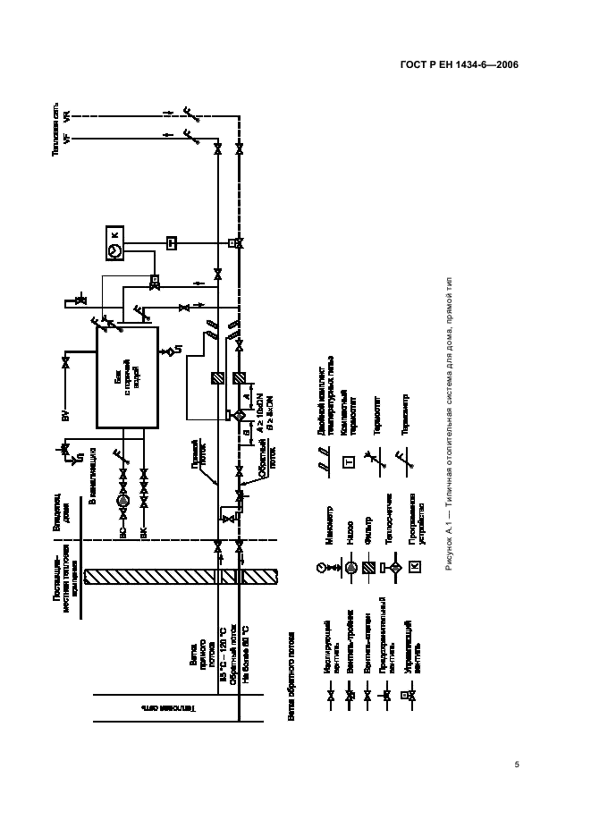
Dm обратного потоса —м— Июлиичшрв вентиль 1 W ‘ ВвИШМроЛ»* ВвНТМГЬ-CnpnVH Прадшфммтал ьиы Я ввкгига. _Ш ЯфмпшщмА мктть Рисуно* А.1 — Типичная отопительная система для дома, прямой тип
Wi
|
^ Манометр HUOO Дк*ш*ижппшсг пнирпхямтт Ксмгмшь* праюатат Тцшоошг ТЬцмшмгф -£Л Ш —,*№ТР 4- ГОСТ Р ЕН 1434-6-2006 Проц ■■■■■■! устройство |
|
JL Прмжртгтваный ^ шпиь МНГШЬ
‘ПИ1ЛОМШЧ« |
Д Д Двйкйвмтпщт -пмвщжтурних гшм -А Тцмняг Ткмомлр Ншве —$илы|> |
Рисуно* А.2 — Отопительная система с тсплообме»*4и*ом
|
BK-МММ |
Твлломм <лп»
VF VR
I
I
4
ACM*
вс—
A
H&- Itauc —gj— Фшыгр
4-
ТЬшпршчк
a
ВчЦВВрИКИЯ IBTDn —ЬЛ— “ИЩИЦ*
мнтъ
—ЭД— ВвкшлмроЯпк
ВйпкмиМн
-L Г*ившр»штмЛ
МКТМП»
_fi_ *чжаг*»сш*Й нтнь
Не
6*<С-120»С
06мте*г«т*
Прядей
мкпнмтапмм
Я ff Дюйноя шшг —“ пшпфатурньа гягъя
’Лцмоогат -А Тсрмсашр
димж
Д>ЫЖ
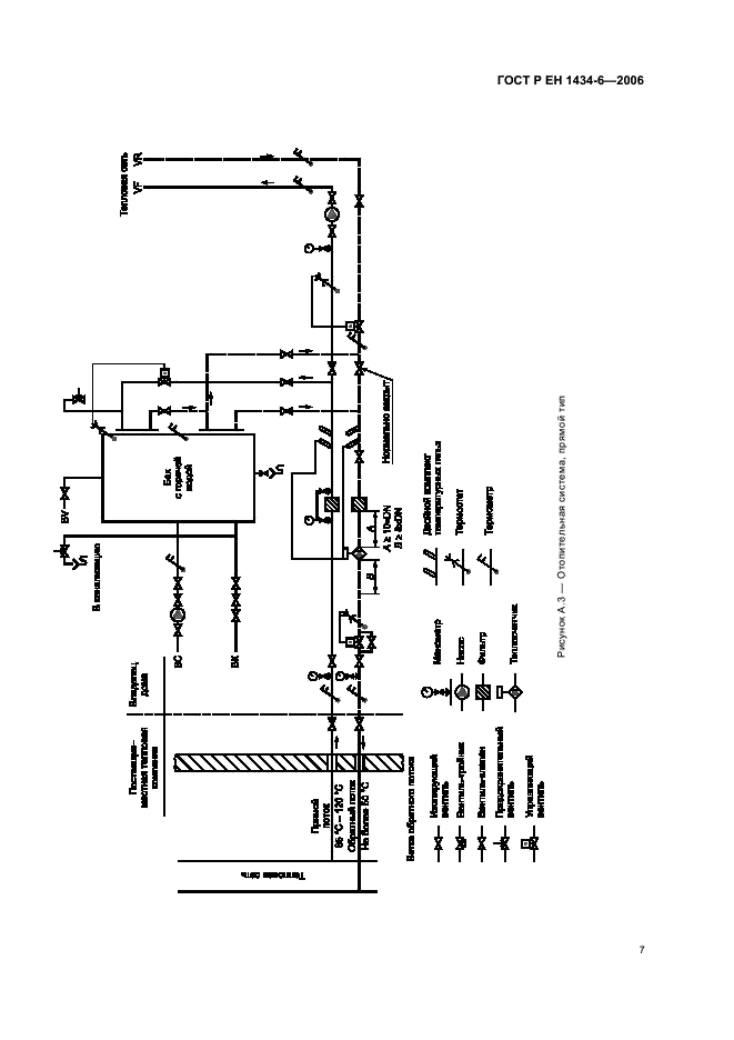
Рисуно* А 3 — Отопительная система, прямой тип
ГОСТ Р ЕН 1434-6-2006
Приложение В (справочное)
Контроль за работой теплосчетчика и его техническое обслуживание
В.1 Введение
В настоящем приложении даны рекомендации по контролю за работой теплосчетчиков и их замене. Приведены процедуры контроля, рекомендуемый список сервисных работ. Эти рекомендации имеют прямое отношение к поставщику тепловой энергии, владельцу здания и потребителю.
8.2 Продолжительность сервисного обслуживания теплосчетчика
Компетентная организация определяет промежуток времени или процедуру, позвопяющую определить срок действия сертификата утверждения типа. По окончании данного срока теппосчетчик обычно заменяют. Любую проверку теплосчетчика или сервисную работу следует начинать с проверки срока службы.
В.З Процедуры контроля теплосчетчиков
Для обеспечения нормальной эксплуатации и экономичности отопительных систем, оснащенных теплосчетчиками. необходимо осуществлять наблюдение за эффективной работой теплосчетчиков. Наблюдение включает в себя инспекционный надзор за каждым теплосчетчиком и проведение контроля, целью которого является оценка соответствия показаний теплосчетчиков ожидаемым значениям.
Допжна быть возможность квалифицированно подтверждать правильность показаний теплосчетчика без проведения повторной калибровки теплосчетчика на месте или в лаборатории. Сделать такое заключение поможет знание режима работы теплосчетчика, его предыстории, сезонных колебаний погоды и т.д.
Допжны быть разработаны процедуры, позволяющие получить приемлемый баланс между стоимостью надзора и экономическими последствиями неисправности теплосчетчиков.
Сравнивая данные о метеорологических (погодных) усповиях и потреблении тепловой энергии за прошлые годы с соответствующими цифрами за текущий сезон, можно прогнозировать потребление тепловой энергии и выявлять неверные показания теплосчетчиков.
По очевидным причинам показания теплосчетчиков желательно считывать почаще, но это может быть невыгодным с экономической точки зрения. Для больших теплосчетчиков рекомендуется считывать показания по крайней мере четыре раза в год.
В.4 Перечень сервисных работ
Необходимо следовать указаниям инструкции по ремонту и техническому обслуживанию и. как минимум, выполнять нижеперечисленные работы (рисунок В.1):
— проверить сохранность пломб и оттисков клейм;
— проверить функционирование теплосчетчика;
— сверить показания на месте с дистанционными показаниями, проверить плотность крепления соединений проводов;
-убедиться, что изолирующие вентили теплосчетчика полностью открыты, что их можно закрыть и они не протекают;
— проверить, нет ли следов протечек теплосчетчика, фитингов и соединений;
-проверить, не заливает ли вода теплосчетчик, не протекает ли вода внутрь;
— убедиться, что кабели теплосчетчика хорошо подсоединены и не повреждены;
— проверить заземление там. где необходимо;
— проверить состояние крепежных деталей теплосчетчика.
— проверить и. если необходимо, прочистить или заменить фильтрующие элементы;
— убедиться, что температура окружающей среды находится в допустимых пределах;
— записать показания теплосчетчика.
В.5 Замена неисправных теплосчетчиков
Причину выхода из строя теплосчетчика необходимо определять на месте, так как после его снятия труднее обнаружить дефект.
Проверяют следующее:
— имеются ли признаки несанкционированного доступа;
— не повреждены ли пломбы и оттиски клейм;
— правильно ли был установлен теплосчетчик согласно инструкциям поставщика и т.д.
Замену неисправного теплосчетчика на новый или отремонтированный следует выполнять в том же порядке, что и установку нового теплосчетчика (приложения А и В).
При выяснении причины неисправности необходимо соблюдать конфиденциальность.
8
ГОСТ Р ЕН 1434-6-2006
9
ГОСТ Р ЕН 1434-6-2006
Приложение С (справочное)
Сведения о соответствии национальных стандартов Российской Федерации ссылочным международным (региональным) стандартам
|
Таблица С.1 |
||||
|
УДК 681.125:006.354 ОКС 17.200.10 П15
Ключевые слова: средство измерений, теплосчетчик, монтаж, содержание в исправности
Редактор Л.В. Афанасенко Технический редактор М.С. Гришанова Корректор В.И. Баренцева Компьютерная верстка В.И. Грищенко
Сдано в набор 21.09.2006. Подписано о печать 09.10.2006. Формат 60×84 /*. Бумага офсетная. Гарнитура Ариап. Печать офсетная. Усп. печ. п. 1.86 Уч.-изд. л. 1.70. Тираж 400 экз Зак. 728. С 3365.
ФГУП «Стандартинформ». 123995 Москва. Гранатный пер.. 4 w wivgostrfo.ru info@goslinfo.ru Набрано во ФГУП аСтандартинформо на ПЭВМ Отпечатано в филиале ФГУП «Стандартинформв — тип. «Московский печатник». 105062 Москва. Лялин пер.. 6

