Кабины железобетонные защитные для взрывоопасных производств. Технические требования и оценка прочности
На нашем сайте можно бесплатно скачать ГОСТ Р 56297-2014 в удобном формате. Узнать актуальный статус ГОСТА «Кабины железобетонные защитные для взрывоопасных производств. Технические требования и оценка прочности» на 2016 год.
Скрыть дополнительную информацию
Выберите формат отображения документа:

Страница 1

Страница 2

Страница 3

Страница 4

Страница 5

Страница 6

Страница 7

Страница 8

Страница 9

Страница 10

Страница 11

Страница 12

Страница 13

Страница 14

Страница 15

Страница 16

Страница 17

Страница 18

Страница 19

Страница 20

Страница 21

Страница 22

Страница 23

Страница 24

Страница 25

Страница 26

Страница 27

Страница 28

Страница 29

Страница 30

Страница 31

Страница 32

Страница 33

Страница 34

Страница 35

Страница 36

Страница 37

Страница 38

Страница 39

Страница 40

Страница 41

Страница 42

Страница 43

Страница 44

Страница 45

Страница 46

Страница 47

Страница 48

Страница 49

Страница 50

Страница 51
ФЕДЕРАЛЬНОЕ АГЕНТСТВО ПО ТЕХНИЧЕСКОМУ РЕГУЛИРОВАНИЮ И МЕТРОЛОГИИ
НАЦИОНАЛЬНЫЙ СТАНДАРТ РОССИЙСКОЙ ФЕДЕРАЦИИ И
ГОСТР
56297—
2014
КАБИНЫ ЖЕЛЕЗОБЕТОННЫЕ ЗАЩИТНЫЕ ДЛЯ ВЗРЫВООПАСНЫХ ПРОИЗВОДСТВ
Технические требования и оценка прочности
Издание официальное
Москва
Стандартинформ
2015
ГОСТ Р 56297-2014
Предисловие
1 РАЗРАБОТАН Открытым акционерным обществом «Красноармейсхий научно исследовательский институт механизации» (ОАО «КНИИМ»)
2 ВНЕСЕН Федеральным агентством по техническому регулированию и метрологии
3 УТВЕРЖДЕН И ВВЕДЕН В ДЕЙСТВИЕ Приказом Федерального агентства по техническому регулированию и метрологии от 11 декабря 2014 г. № 1969-ст с 1 июля 2015 г.
4 ВВЕДЕН ВПЕРВЫЕ
Правила применения настоящего стандарта установлены в ГОСТ Р 1.0-2012 (раздел 8). Информация об изменениях к настоящему стандарту публикуется в ежегодном (по состоянию на 1 января текущего года) информационном указателе «Национальные стандарты», а официальный текст изменений и поправок — в ежемесячном информационном указателе «Националыше стандарты». В случао пересмотра (замены) или отмены настоящего стандарта соответствующее уведомление будет опубликовано в ближайшем выпуске информационного указателя к Национальные стандарты». Соответствующая информация, уведомление и тексты размещаются также в информационной системе общего пользования — на официальном сайте Федерального агентства по техническому регулированию и метрологии в сети Интернет (gost.ru)
© Стандартинформ. 2015
Настоящий стандарт не может быть полностью или частично воспроизведен, тиражирован и распространен в качестве официального издания без разрешения Федерального агентства по техническому регулированию и метрологии
ГОСТ Р 56297-2014
к = 1,862-0,0731-
(13)
Если к сектору примыкают две вышибмые поверхности различной массы, в расчете необходимо использовать коэффициент к, определяемый по формуле (12).
5.3.6 При взрыве в кабине нескольких зарядов ВВ первичный импульс it, действующий на стенку кабины, принимается равным сумме импульсов, действующих от каждого заряда и рассчитывается по формулам 8-11.
Вероятность взрыва нескольких зарядов устанавливается исходя из технологического процесса и принимается меньше или равной единице.
5.3.7 Коэффициент снижения нагрузки к для первичного импульса it вычисляется по 5.3.5 с учетом того, что С*,, равен сумме масс взорвавшихся зарядов.
5.4 Определение вторичного импульса ударной волны
Импульс, воспринимаемый стеной кабины от вторичных волн, определяется по формулам V
при 3 <——<8,3
h
V
при 8,3 <——й 50
IU
При взрыве в кабине нескольких зарядов ВВ и вторичный импульс i2 вычисляются с учетом того, что Смв равен сумме масс взорвавшихся зарядов.
3,75-10’-С 144
2,23-10’ С м
(14)
(15)
8
Содержание
ГОСТ Р 56297-2014
1 Область применения……………… 1
2 Нормативные ссылки………………………………………………………………………………………….1
3 Термины и определения…………………………………………………………………………………….1
4 Технические требования…………………………………………………………… 1
5 Определение нагрузок, действующих на стены кабины
при взрыве заряда ВВ ….. 6
6 Определение допустимых импульсов для
монолитной железобетонной кабины по предельным стадиям…………………………….10
7 Расчет жесткости стен кабины………………………………………………………………………….10
8 Расчет стен кабины с двумя вышибными поверхностями………………………………….13
9 Расчет стен кабины с одной вышибной поверхностью………………………………………23
10 Расчет поперечной перерезывающей силы…………………………………………………….32
11 Оценка прочности элементов кабины………………………………………………………………33
Приложение А (справочное) Пример расчета монолитной
железобетонной кабины с двумя вышибными поверхностями………………………………34
III
ГОСТ Р 56297-2014
НАЦИОНАЛЬНЫЙ СТАНДАРТ РОССИЙСКОЙ ФЕДЕРАЦИИ
КАБИНЫ ЖЕЛЕЗОБЕТОННЫЕ ЗАЩИТНЫЕ ДЛЯ ВЗРЫВООПАСНЫХ ПРОИЗВОДСТВ Технические требования и оценка прочности
Reinforced concrete blast containment chambers for explosives facility sites.
Technical requirements and strength assessment
Дата введения — 2015—07—01
1 Область применения
Стандарт устанавливает метод расчета кабин на импульсное действие ударной волны (УВ) в зависимости от величины, химической природы заряда взрывчатого вещества, находящегося о кабине, и его расположения.
Настоящий стандарт распространяется на монолитные железобетонные кабины, имеющие одну или две вышибные поверхности и предназначенные для локализации взрыва при детонации конденсированных взрывчатых веществ (ВВ) и обеспечения безопасности обслуживающего персонала.
2 Нормативные ссылки
В настоящем стандарте использована нормативная ссылка на следующий свод правил:
СП 63.13330.2012 Бетонные и железобетонные конструкции. Основные положения
Примечание — При пользовании настоящим стандартом целесообразно проверить действие ссылочных стандартов в информационной системе общего пользования — на официальном сайте Федерального агентства по техническому регулированию и метрологии в сети Интернет или по ежегодному информационному указателю «Национальные стандарты», который опубликован по состоянию на 1 января текущего года, и по выпускам ежемесячного информационного указателя «Национальные стандарты» за текущий год Если заменен ссылочный стандарт, на который дана недатированная ссылка, то рекомендуется использовать действующую версию этого стандарта с учетом всех внесенных в данную версию изменений. Если заменен ссылочный стандарт, на который дана датированная ссылка, то рекомендуется использовать версию этого стандарта с указанным выше годом утверждения (принятия). Если после утверждения настоящего стандарта в ссылочный стандарт, на который дана датированная ссыпка, внесено изменение, затрагивающее положение, на которое дана ссылка, то это положение рекомендуется применять без учета данного изменения. Если ссылочный стандарт отменен без замены, то положение, в котором дана ссылка на него, рекомендуется применять в части, не затрагивающей эту ссылку.
3 Термины и определения
В настоящем стандарте применены следующие термины с соответствующими определениями:
3.1 кабина железобетонная монолитная (далее по тексту кабина): Монолитное
железобетонное сооружение, предназначенное для локализации взрыва и обеспечения безопасности обслуживающего персонала.
3.2 вышибная поверхность: Легкосбрасываемая конструкция, заменяющая одну из стен и/или покрытие кабины, и предназначенная для сброса избыточного давления при аварийном взрыве.
3.3 вышибноо окно: Вышибная поверхность, заменяющая одну из стен кабины.
3.4 вышибноо покрытие: Вышибная поверхность, заменяющая покрытие кабины
4 Технические требования
4.1 Требования, предъявляемые к конструкциям монолитных железобетонных кабин
4.1.1 Кабины должны изготовляться в соответствии с требованиями настоящего стандарта по проектной документации, утвержденной в установленном порядке.
4.1.2 Кабина с двумя вышибными поверхностями должна быть прямоугольной, иметь три монолитные железобетонные стены и возводиться на монолитном железобетонном ленточном
Издание официальное
ГОСТ Р 56297-2014
фундаменте. Стены по свободному контуру должны иметь обвязку, а боковые стены должны быть соединены между собой железобетонным ригелем.
Вышибная поверхность в стене должна иметь массу единицы площади до 10 кг/м2, а вышибная поверхность в покрытии — до 150 кг/м’.
4.1.3 Кабина с одной вышибной поверхностью должна быть прямоугольной, состоять из фундаментной плиты, стен и покрытия и иметь одну вышибную поверхность массой единицы площади до 10 кг/м2. Конструктивные элементы кабины должны быть выполнены в виде монолитных железобетонных плит, в месте вышибной поверхности усиленных обвязочными балками.
Фундаментная плита должна быть конструктивно аналогична покрытию.
Кабину, имеющую вышибную поверхность в покрытии, допускается выполнять без фундаментной плиты.
4.1.4 Монолитные железобетонные кабины должны удовлетворять требованиям, изложенным в таблице 1. Элементы кабин приведены на рисунках 1 и 2.
4.1.5 Размеры кабины устанавливаются в зависимости от расположения заряда и технологических требований.
4.1.6 Перед вышибной поверхностью в стене кабин для улавливания обломков от оборудования и осколков самой вышибной поверхности должны быть установлены сборные или монолитные защитные дворики.
4.1.7 Расположение дверей и технологических проемов в кабине определяется технологическим процессом.
4.1.8 Покрытия кабин с загрузками более 3 кг по тротилу не должны быть конструктивно связаны с покрытиями остальной части здания. Допускается опирание конструкций покрытия здания на стены встроенных кабин. Крепление конструкций покрытия и стен кабин осуществляется с помощью гибких связей.
4.1.9 Площадь сечения рабочей продольной арматуры в железобетонных элементах (стены, покрытия, обвязки) не должна превышать 2% от площади расчетного сечения бетона.
4.1.10 Армирование скосов (аутов) для жесткого соединения стен, покрытия и днища принимается конструктивно.
4.1.11 Допускается облицовывать элементы кабины листовой сталью с минимальной толщиной листа 3 мм в целях исключения прорыва продуктов взрыва в соседнее помещение.
Таблица 1- Требования к монолитным железобетонным кабинам
|
Наименование основных показателей |
Буквенное обозначение |
Значение |
|
Размеры стен кабины (в осях), м; |
В. L |
|
|
Высота кабины от нулевой отметки до верхней кромки стены, м; |
Н |
|
|
Толщина стены, м: |
h |
|
|
Глубина фундамента, м; |
н, |
|
|
Расстояния от внутренней поверхности примыкающей стены до технологических проемов и дверей, м. не менее |
Ь |
0,5h |
|
Высота обвязки, м. не более |
~К*Г |
2h |
|
Высота ригеля, м. не более |
hp |
2h |
|
Ширина обвязки, м. не более |
ЬА |
2h |
|
Ширина ригеля, м. не более |
Ьр |
2h |
|
Отношение наибольшего габаритного размера кабины к |
2 |
|
|
наименьшему габаритному размеру, не более |
||
|
Отношение толщины стены кабины к наименьшему размеру стены, не более |
0.2 |
|
|
Масса вышибного покрытия, кг/м*, не более |
G, |
150 |
|
Масса вышибного окна. кг/м’, не более |
g2 |
10 |
|
Соотношение площади вышибных поверхностей ко всей поверхности кабины: с двумя вышибными поверхностями, %. не менее |
30 |
|
|
с одной вышибной поверхностью. %, не менее |
15 |
2
ГОСТ Р 56297-2014
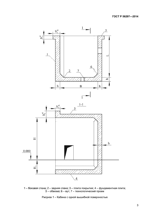
1 — боковая стена; 2 — задняя стена; 3 — плита покрытия; 4 — фундаментная плита; 5 — обвязка; 6 — аут. 7 — технологический проем
3
Рисунок 1 — Кабина с одной вышибной поверхностью
ГОСТ Р 56297-2014
1 — боковая стена; 2 — задняя стена; 3 — обвязка: 4 — вут; 5 — ригель; 6 — технологический проем
4
Рисунок 2 — Кабина с двумя вышибными поверхностями
ГОСТ Р 56297-2014
4.2 Требования, предъявляемые к материалам, используемым при строительстве монолитных железобетонных кабин
4.2.1 Железобетонные элементы защитных кабин необходимо проектировать в соответствии с требованиями СП 63.13330 и приложениями к нему.
4.2.2 Необходимо применять тяжелый бетон плотностью р=2200…2500 кг/м3.
Необходимо использовать бетон:
— класса прочности на сжатие не ниже В15:
— класса прочности на осевое растяжение не ниже Bt0.8:
— марки морозостойкости не ниже F100.
— по водонепроницаемости подземной части кабины класс бетона назначается в зависимости от гидрологических условий площадки строительства.
4.2.3 Допускается для уменьшения количества вторичных осколков добавлять в бетонную смесь отрезки синтетических волокон (нейлон, капрон и т.п.) в количестве до 5% от общей массы или обрезки тонкой стальной проволоки длиной 0.1 м с диаметром не более 1 мм и в количестве от 1 до 5% от общей массы.
4.2.4 Призменная прочность бетона принимается согласно СП 63.13330.
Значения призменной прочности бетона для наиболее часто используемых классов бетона представлены в таблице 2.
Таблица 2 — Призменная прочность бетона Rb
|
Вид сопротивления |
Класс бетона по прочности на сжатие |
||
|
В15 |
В20 |
В25 |
|
|
Сжатие осевое (призменная прочность) Rb. МПа |
8.5 |
11.5 |
14.5 |
4.2.5 Расчетная динамическая призменная прочность бетона (при действии импульсной нагрузки) определяется по формуле
R;«i.2Rb, о)
где Rb — расчетная призменная прочность бетона, определяемая в соответствии с 4.2.4.
4.2.6 Модуль упругости бетона принимается согласно СП 63.13330.
Значения модуля упругости бетона для наиболее часто используемых классов бетона представлены в таблице 3.
Таблица 3 — Значения модуля упругости бетона Е:.
|
Класс бетона по прочности на сжатие |
Модуль упругости Е. — 10″. МПа |
|
В15 |
24 |
|
В20 |
27.5 |
|
В25 |
30 |
4.2.7 Кабина должна армироваться стержневой арматурой классов А240. А400 и А500.
4.2.8 Сопротивление арматуры (предел текучести) определяется согласно таблице 4. 5
Таблица 4 — Сопротивление арматуры (предел текучести) R,
|
Стержневая арматура класса |
Расчетное сопротивление арматуры растяжению и сжатию R,. МПа |
|
А240 |
210 |
|
А400 |
350 |
|
А500 |
435 |
4.2.9 Расчетное сопротивление арматуры при действии импульсной нагрузки определяется по формуле
5
ГОСТ Р 56297-2014
R^I^R, (2)
где R,. — сопротивление арматуры (предел текучести), определяемое в соответствии с 4.2.8.
4.2.10 Величина модуля упругости Еь для всех классов арматуры принимается равной 2.0-105 МПа.
4.2.11 Для закладных деталей и соединительных накладок должна применяться прокатная углеродистая сталь согласно СП 63.13330.
5 Определение нагрузок, действующих на стены кабины при взрыве
заряда ВВ
Методика учитывает возрастание импульса, действующего на стены кабин в результате многократного отражения УВ, и не требует определения эквивалентной статической нагрузки.
5.1 Определение параметров эквивалентного сферического заряда тротила и относительного расстояния
5.1.1 Массу эквивалентного сферического заряда, кг. тротила определяют по формуле
С„ =«С, (3)
где
С — масса используемого заряда ВВ, кг,
а — тротиловый эквивалент, определяемый по действующей нормативной документации для используемого ВВ.
5.1.2 Радиус эквивалентного сферического заряда, м. из тротила с насыпной плотностью определяется по формуле
г0 = 0,062 с“ (4)
5.1.3 Относительное расстояние п от центра заряда до рассматриваемой точки стены вычисляют по формуле
R
0 = -. (5)
ги
где R — расстояние от центра заряда до рассматриваемой точки стены, м.
При этом должно соблюдаться условие
R.^0.34-^7, (6)
где Rmn — минимальное расстояние от поверхности заряда до стены, м.
5.2 Определение полного импульса ударной волны
5.2.1 Для определения нагрузок, действующих на стены кабин, рассчитывается импульс ударной волны, который зависит от массы заряда, его химической природы, объема кабины и относительного расстояния.
5.2.2 Среднее значение полного импульса. Па с, воспринимаемого стеной, рассчитывается с учетом соударения волн в углах кабины и импульса от вторичных волн
6
ГОСТ Р 56297-2014
i =
где
i, — первичный импульс ударной волны. Па с; i2 — вторичный импульс ударной волны. Па с.
(7)
5.3 Определение первичного импульса ударной волны
5.3.1 Для определения величины первичного импульса it. действующего на стену кабины, поверхность стены разбивается на 9 секторов согласно рисунку 3 и импульс рассчитывается для каждого сектора отдельно.
5.3.2 В секторах, где находится трехгранный угол, импульс, действующий при отражении падающей волны, определяется по формуле
7 S п * 90
(8)
5.3.3 В секторах, где находится двугранный угол, импульс, действующий при отражении падающей ударной волны, определяется по формуле 7 S п * 90
4,4М0*
=-т
Л
5.3.4 В секторах, где нет соударения волн (при нормальном отражении падающей волны), импульс определяется по следующим формулам
при 6 S г) S 17
при 17 s г) S 90
2,25-1 (У -ijc
(11)
5.3.5 Для секторов, примыкающих к вышибной поверхности, расчетное значение ii необходимо
V
разделить на коэффициент снижения нагрузки к. который зависит от отношения ——и массы
^ «
вышибной поверхности. Коэффициент снижения нагрузки к применяется при выполнении условия
8.
Если вышибная поверхность имеет массу единицы площади до 10 кг/м2, то к определяется по формуле
к = 2,074-0,091-
(12)
где V — объем кабины, м3.
Если вышибная поверхность имеет массу единицы площади от 10 до 150 кг/м2, то к определяется по формуле
7





