Электроустановки низковольтные. Часть 5-53. Выбор и монтаж электрооборудования. Отделение, коммутация и управление
Заменяет

Страница 1

Страница 2

Страница 3

Страница 4

Страница 5

Страница 6

Страница 7

Страница 8

Страница 9

Страница 10

Страница 11

Страница 12

Страница 13

Страница 14

Страница 15

Страница 16

Страница 17

Страница 18

Страница 19

Страница 20

Страница 21

Страница 22

Страница 23

Страница 24

Страница 25

Страница 26

Страница 27

Страница 28

Страница 29

Страница 30

Страница 31

Страница 32

Страница 33

Страница 34

Страница 35

Страница 36

Страница 37

Страница 38

Страница 39

Страница 40

Страница 41

Страница 42

Страница 43

Страница 44

Страница 45

Страница 46

Страница 47

Страница 48

Страница 49

Страница 50

Страница 51
ФЕДЕРАЛЬНОЕ АГЕНТСТВО ПО ТЕХНИЧЕСКОМУ РЕГУЛИРОВАНИЮ И МЕТРОЛОГИИ
НАЦИОНАЛЬНЫЙ ГосТ Р50571.5.53-2013/ СТАНДАРТ МЭК 60364-5-53:2002
РОССИЙСКОЙ
ФЕДЕРАЦИИ
ЭЛЕКТРОУСТАНОВКИ НИЗКОВОЛЬТНЫЕ.
ЧАСТЬ 5-53. ВЫБОР И МОНТАЖ ЭЛЕКТРООБОРУДОВАНИЯ. О ТДЕЛЕНИЕ, КОММУТАЦИЯ И УПРАВЛЕНИЕ
ЕЕ С 60364-5-53:2002 Low-voltage electrical installations.
Part 5-53: Selection and erection of electrical equipment. Isolation, switching and control
(IDT)
Издание официальное
Москва Стандар тинформ 2013
ГОСТ Р 505715£3 -2013
нейтраль отключать не требуется, если условия электропитания таковы, что нейтральный проводник может считаться надежно связанным с потенциалом земли.
Примечание — Требования к испытанию, позволяющему удостовериться в том что нейтральный проводник надежно связан с потенциалом земли, в настоящее время находятся на стадии рассмотрения
531.2.1.2 Ни один защитный проводник не должен проходить через магнитную цепь устройства защитного отключения, управляемого дифференциальным током.
531.2.1.3 Устройства защитного отключения, управляемые дифференциальным током, должны выбираться, и электрические цепи должны согласовываться таким образом, чтобы какой-либо ток утечки на землю, который может возникнуть в процессе нормальной работы подключенных нагрузок, не вызывал нежелательного срабатывания устройства.
Примечание — УЗО могут срабатывать при любом значении дифференциапь-наг о т ок а, превыш ающ ем 5 0 % н оминального зн ачения.
531.2.1.4 Воздействие составляющих постоянного тока
В настоящее время находится на стадии рассмотрения.
531.2.1.5 Применение устройства защитного отключения, управляемого дифференциальным током, связанного с цепями, не имеющими защитного проводника, если номинальный дифференциальный ток срабатывания не превышает 30 мА, не должно рассматриваться как мера, достаточная для защиты от косвенного прикосновения
531.22 Выбор устройств в соответствии с методом их применения
531.2.2.1 Устройства защитного отключения, управляемые дифференциальным током, могут иметь или не иметь вспомогательный источник питания При этом следует учитывать требования пункта 531.2.2.2.
Примечание — В спомогательным источником питания может быть питающая
сеть.
б
Г ОСТР 50571 ££3-2013
531.2.2.2 Использование устройств защитного отключения, управляемых дифференциальным током, со вспомогательным источником питания, которые не способны автоматически срабатывать в случае отказа в работе вспомогательного источника питания, допускается только при соблюдении одного из двух следующих условий:
— защита при повреждении (от косвенного прикосновения) согласно МЭК 60364-4-41, пункт 413.1 обеспечивается даже в случае отказа в работе вспомогательного источника питания,
— устройства устанавливаются в электроустановках, которые обслуживаются, испытываются и проверяются обученным (ВА4) или квалифицированным (ВА5) персоналом.
531.23 Системы TN
Если в отношении какого-либо оборудования или определенных частей электроустановки одно или более из требований, изложенных в МЭК 60364-4-41, пункт 413.1.3, не могут быть выполнены, то указанные части могут быть защищены при помощи устройства защитного отключения, управляемого дифференциальным током. В этом случае открытые проводящие части не требуется подсоединять к защитному проводнику системы заземления TN, при условии, что они подсоединены к завемпяющеь^ электроду, который обеспечивает сопротивление, соответствующее току срабатывания устройства защитного отключения Цепь, защищенная таким образом, должна рассматриваться как система ТТ и на нее распространяются требования МЭК 60364-4-41, пункт 413.1.4.
Если отдельного заземляющего электрода нет, то открытые проводящие части необходимо подсоединить к защитному проводнику на стороне источника питания устройства защитного отключения.
531.2.4 Системы ТТ
Если электроустановка защищена единственным устройством защитного отключения, управляемым дифференциальным током, то оно должно быть
7
ГОСТ Р 50571 ££3 -2013
расположено на вводе в электроустановку, при условии, что в части электроустановки, расположенной между ее вводом и данным устройством не применяется защита с использованием оборудования класса II или с эквивалентной изоляцией (см. МЭК 60364-4^41, пункт 413.2).
Примечание — Если имеется несколько вводов, данное требование распространяется на каждый из них.
531.25 Системы IT
Если защита обеспечивается устройством защитного отключения управляемым дифференциальным током, и отключение после первого замыкания не предусматривается, то дифференциальный ток, не вызывающий срабатывания устройства, должен быть, равным току, который протекает после первого замыкания на землю.
531.3 Устройства контроля изоляции
Примечание — Устройства контроля изоляции могут функционировать при соответствующем времени срабатывания.
Устройство контроля изоляции, использование которого предусматривается в соответствии с МЭК 60364-4^41, пункт413.1.5.4, представляет собой устройство, непрерывно контролирующее значение сопротивления изоляции электроустановки. Оно предназначено для индикации существенного снижения значения сопротивления изоляции электроустановки, что позволяет обнаружить причину этого снижения до того, как произойдет второе замыкание и, таким образом, избежать отключения электроснабжения.
В соответствии с этим на устройстве контроля изоляции задается значение ниже значения, указанного в МЭК 60346-6-61, пункт 612.3, в зависимости от характеристик электроустановки.
Устройства контроля изоляции должны проектироваться и устанавливаться так, чтобы их уставки можно было изменять только с помощью специального ключа или инструмента
532 Устройства защиты от тепловых воздействий
S
Г ОСТР 50571 ££3-2013
Защита от тепловых воздействий — по МЭК 60364^4^42.
533 Устройств а защиты от сверхтоков
533.1 Общие требования
Защита от сверхтоков — по МЭК 60364-4-43.
533.1.1 Основания предохранителей, в которых используются вворачивающиеся плавкие элементы, должны подсоединяться таким образом, чтобы центральный контакт находился на стороне источника электропитания основания плавкого предохранителя.
533.1.2 Основания предохранителей, в которых используются держатели плавкой вставки, должны быть расположены таким образом, чтобы исключалась возможность создания держателем плавкой вставки контакта между проводящими частями, относящимися к двум близко расположенным основаниям предохранителей.
533.1.3 Предохранители, имеющие плавкие вставки, которые могут легко извлекаться или устанавливаться на место лицами, не прошедшими обучение (ВА4) или не имеющими соответствующей квалификации (ВА5), должны по своему типу удовлетворять требованиям к обеспечению безопасности, изложенным в МЭК 60269-3.
Плавкие предохранители или комбинированные устройства, имеющие плавкие вставки, которые могут извлекаться или устанавливаться на место только лицами, прошедшими обучение (ВА4) или имеющими соответствующую квалификацию (ВА5), должны устанавливаться таким образом, чтобы исключалась возможность непреднамеренного контакта с частями, находящимися под напряжением при извлечении плавких вставок или установке их на место.
533.1.4 Если автоматические выключатели могут эксплуатироваться лицами, не прошедшими обучение (ВА4) или не имеющими соответствующей квалификации (ВА5), то они должны выбираться (проектироваться) и устанавливаться таким образом чтобы изменение уставок или калибровки рас целителей максимального тока возможно было только с использованием
ГОСТ Р 50571 ££3 -2013
специального ключа или инструмента, результат которого наглядно отображается в виде индикации уставок или калибровки.
533.2 Выбор устройств защиты электропроводки от перегрузок
Номинальный ток (или уставка по току) защитного устройства должны выбираться в соответствии с требованиями МЭК 60364^4^43, пункт 433.1.
Примечание-В определенных случаях, во избежание нежелательного срабатывания, следует принимать в расчет пиковые значения токов нагрузок.
Что касается циклической нагрузки, значения /а и/з должны выбираться на основе значений /в и 7z для эквивалентной постоянной тепловой нагрузки,
где /в — расчетный ток нагрузки цепи,
Ь — длительно допустимая нагрузка кабеля по току,
I» — номинальный ток защитного устройства,
L — ток, обеспечивающий срабатывания защитного устройства.
533.3Выбор устройств защиты электропроводок от коротких замыканий
Применяя требования, в отношении коротких замыканий длительностью до 5 сек, изложенные в МЭК 60364-4-43, следует принимать в расчет минимальные и максимальные характеристики короткого замыкания.
Если в стандарте на защитное устройство, указывается как номинальная рабочая отключающая способность при коротком замыкании, так и номинальная предельная отключающая способность при коротком замыкании, то допускается выбирать защитное устройство по предельной отключающей способности при коротком замыкании для максимальных характеристик короткого замыкания. Однако в зависимости от условий эксплуатации может оказаться желательным выбрать защитное устройство по рабочей отключающей способности при коротком замыкании, например, если защитное устройство устанавливается на входе электроустановки.
10
ГОСТ Р 50571553-2013
534 У с тройств а защиты от перенапряжений 534.1 Общие положения
Защита от перенапряжений -по МЭК 60364-4-44.
Требования настоящего пункта устанавливают применение ограничения напряжения для обеспечения согласования изоляции в случаях, указанных в МЭК 60364-444, МЭК 60664-1, МЭК 623054 и МЭК 61643-12 и приводятся требования к выбору и монтажу:
— устройств защиты от перенапряжений (УЗП) электроустановок зданий, обеспечивающих ограничение импульсных перенапряжений атмосферного происхождения, передаваемых по питающей сети и защиту от коммутационных перенапряжений,
— устройств защиты от перенапряжений (УЗП), обеспечивающих защиту от импульсных перенапряжений, возникающих под воздействием прямых ударов молний вблизи от зданий, защищенных системой молниезащиты.
В настоящем пункте не учитываются устройства защиты от перенапряжений, которые могут являться компонентами и входить в состав электроприборов, подключаемых к электроустановке. Наличие таких компонентов и устройств может влиять на функционирование основного устройства защиты от перенапряжений электроустановки и может потребовать дополнительной координации.
Требования настоящего пункта распространяется на силовые цепи переменного тока. Что касается силовых цепей постоянного тока, требования данного пункта могут на них распространяться в той степени, в какой они могут быть полезны. В особых случаях, в соответствии с серией стандартов МЭК 60364, часть 7, может возникать необходимость соблюдения других или дополнительных требований.
11
ГОСТ Р 50571 ££3 -2013
534.2 Выбор и монтаж устройств защиты от п ер ен апр яжений (УЗП) в электроустановках зданий
534.2.1 Использование устройств защиты от перенапряжений (УЗП)
В стандарте МЭК 60364^4^44 приведены требования по защите от перенапряжений атмосферного происхождения (вызываемых непрямыми и удаленными ударами молнии) и коммутационных перенапряжений. Эта защита обеспечивается установкой устройств защиты от перенапряжений, испытанных по классу П и, если необходимо, по классу Ш
Если это требует МЭК 60364-4-44 или другие стандарты по защите от отклонения напряжения в низковольтных системах переменного тока, то устройства защиты от перенапряжений устанавливаются внутри здания у ввода в электроустановку или в главном распределительном щите, ближайшем к вводу в электроустановку.
В стандарте МЭК 62305-4 установлены требования по защите от воздействия прямых ударов молнии вблизи системы электропитания и приведены рекомендации по правильному выбору и применению устройств защиты от перенапряжений в соответствии с зоновой концепцией молниезащиты (LPZ). В зоновой концепции молниезащиты гриведена установка устройств защиты от перенапряжений класса испытаний I, П и Ш.
Если это требуется согласно МЭК 62305-4 или в соответствии с другими стандартами, устройства защиты от перенапряжений устанавливаются на вводе электроустановки.
Для защиты чувствительного оборудования могут потребоваться дополнительные устройства защиты от перенапряжений. Такие устройства должны согласовываться с устройствами, устанавливаемыми у ввода (см. 534.2.3.6).
В том случае, если устройство защиты от перенапряжений является частью стационарной электроустановки, но не устанавливается внутри распре-
12
Г ОСТР 50571 ££3-2013
делительного щита (например, в розетке), на его наличие должна указывать наклейка, которая должна находиться непосредственно в начале соответствующей цепи или как можно ближе к нему.
534.2.2 Подключение устройств защиты от перенапряжений Устройства защиты от перенапряжений, устанавливаемые на вводе или рядом с вводом электроустановки, должны подключаться между следующими точками (см. приложения А, В и С):
a) если есть непосредственное соединение между нейтральным проводником и РЕ (проводником защитного заземления) на вводе или рядом с вводом электроустановки, или если нейтрального проводника нет:
между каждым линейным проводником и основным заземляющим зажимом или основным защитным проводником, в зависимости от того, какой путь короче;
Примечание — Сопротивление, через которое нейтраль подсоединяется к РЕ проводнику (защити ому заземлению) в системах IT не рассматривается как соединение.
b) если нет прямого соединения между нейтральным проводником и РЕ на вводе или рядом с вводом электроустановки, то либо:
— между каждым линейным проводником и основным заземляющим зажимом или основным защитным проводником, и между нейтральным проводником и основным заземляющим зажимом или защитным проводником, в зависимости от того, какой путь окажется короче — тип подключения 1,
либо
— между каждым линейным проводником и нейтральным проводником и между нейтральным проводником и основным заземляющим зажимом или защитным проводником, в зависимости от того, какой путь окажется короче — тип подключения 2.
Примечание — Если линейный проводник заземлен, то он считается эквивалентным нейтральному провод нику, в том что касается применения данного пункта.
13
ГОСТ Р 50571 ££3 -2013
Устройства защиты от перенапряжений, размещаемые на вводе или у ввода электроустановки, обычно устанавливаются как это показано в приложениях А — С и в соответствии с таблицей 53В:
Т а б л и ц а 53В — Подключение ус тройств защиты от перенапряжений (УЗП) в зависимости от конфигурации системы
|
Подхг.ю чекие УЗП межзу |
Конфигурация сметехи на месте усмнохкх УЗП |
|||||||
|
тт |
me |
TM-S |
ГГ с рл: ггргдг r.xier.i мой кейтрлг.ио |
ГГ 6*5 рж-преде- Шв’ЛЮХ мейтрмгк |
||||
|
УсТ*ЯО*Ю1 по |
Устамола по |
Уеглмо**» по |
||||||
|
паута- uao*cKHil |
iwymn- »лочн<«2 |
■new та- ьлочвв* 1 |
вот/юд-изо *«0*2 |
паута- xno*eKMtl |
iwymn-ото**»аж 2 |
|||
|
гсаж хмскфииаос |
♦ |
• |
nfn |
* |
• |
* |
• |
♦ |
|
хфсяссзоохж |
||||||||
|
ULC1ZX X мне мшж пр> |
||||||||
|
icacac кпрокдаоохжРЕ |
• |
н/п |
п/п |
• |
♦ |
• |
♦ |
• |
|
>скф**ишхпро1са>а* |
||||||||
|
иж КПрСШОЗЕЮОХЖ РЕ |
• |
0 |
к’п |
• |
• |
• |
• |
♦ |
|
>а*тагк»мсойар<про- |
||||||||
|
|сщж кгфзющаохзк |
14п |
л/а |
• |
14п |
♦ |
♦ |
♦ |
♦ |
|
жн |
||||||||
|
яжемаоскпрсяодаэж |
♦ |
* |
* |
♦ |
♦ |
♦ |
♦ |
♦ |
|
• — обяапвям трвбомю* |
||||||||
|
vln -не прю»ен«тсл |
||||||||
|
♦ — допог.юггеях ко (по хибору) |
||||||||
534.2.3 Выбор устройств з ащиты от перенапряжений (УЗП)
Устройства защиты от перенапряжений (УЗП) должны соответствовать требованиям МЭК 61643-1. Дополнительная информация относительно их выбора и применения указана в МЭК 61643-12.
534.2.3.1 Выбор в зависимости от уровня защиты (С/р)
Если это требуется согласно МЭК 60364-4^44 (раздел 443), то в зависимости от уровня защиты Up устройства защиты от перенапряжений следует
14
Г ОСТР 50571 ££3-2013
выбирать в соответствии со значениями импульсного выдерживаемого напряжения категории П, которые указаны в МЭК 60364-4-44, таблица 44В.
Если согласно МЭК 62305-4 требуется использование устройств защиты от перенапряжений для обеспечения защиты от перенапряжений, вызываемых прямым ударом молнии, то уровень защиты таких устройств также должен подбираться в соответствии со значениями импульсного выдерживаемого напряжения категории П, указанными в МЭК 60364-4^44, таблица 44В.
Например, в установках 220/380 В уровень защиты Up не должен превышать 2,5 кВ.
Если согласно требованиям 534.2.2 используется подключение типа 2, вышеуказанные требования также распространяются на суммарный уровень защиты между линейными проводниками и проводником РЕ.
Если требуемый уровень защиты не может быть достигнут при помощи одного комплекта устройств защиты от перенапряжений, то для его обеспечения следует использовать дополнительные согласованные устройства.
534.2.3.2 Выбор в зависимости от длительного рабочего напряжения
т
Максимальное длительное рабочее напряжение Uc устройств защиты от перенапряжений должны быть равным или более высоким, чем указанное в следующей ниже таблице 53С.
15
ГОСТ Р 50571.5.53 — 2013
Предисловие
Цели и принципы стандартизации в Российской Федерации установлены Федеральным законом от 27 декабря 2002 г.№ 184-ФЗ «О техническом регулировании»
Сведения о стандарте
1 ПОДГОТОВЛЕН Московским институтом энерго без опасности и энергосбережения на основе аутентичного перевода на русский язык стандарта, указанного в пункте 4
2 ВНЕСЕН Техническим комитетом по стандартизации ТК 337 «Электрические установки зданий»
3 УТВЕРЖДЕН И ВВЕДЕН В ДЕЙСТВИЕ Приказом Федерального агентства по техническому регулированию и метрологии от 6 сентября 2013 г. № 9 73-ст.
4 Настоящий стандарт является идентичным по отношению к международному стандарту МЭК 60364-5-53:2002 «Электроустановки зданий Часть 5-53. Выбор и установка электрооборудования Изоляция, коммутационная аппаратура и управление» (IEC 60364-5-53:2002 Electrical installations of buildings. Part 5-53: Selection and erection of electrical equipment. Isolation, switching and control).
Наименование настоящего стандарта изменено относительно наименования указанного международного стандарта для приведения его в соответствие с вновь принятым наименованием серии стандартов МЭК 60364.
При применении настоящего стандарта рекомендуется использовать вместо ссылочных международных стандартов соответствующие им национальные стандарты Российской Федерации (и действующим в этом качестве межгосударственные стандарты), сведения о которых приведены в приложении ДА
ВЗАМЕН ГОСТ Р 50571.7-94(МЭК 364-4-46-1981), ГОСТ Р 50571.26-2002 (МЭК 60364-5-534-1997)
Правила применения настоящего стандсрта установлены в ГОСТ Р 1.0-2012 (pas-дел 8). Информация об изменениях к настоящему стандарту публикуется в ежегодном (по состоянию на 1 января текущего года) информационном указателе «Нахрюнальные стандарты». а текст изменений и поправок — в ежемесячном указатели «гНациональные стандартыж В случае пересмоуухра (замены) или опилены настоящего стандаруха cooyyieeyyicyyiey-ющее уведомленххе будет огубликовано в ближайшем выпуске ежемесячного информационного указауухеля «Национальные суухандарпхы». Сосяухвеуухсуухвующая ххнформахрхя.. уведомленххе и текспхы размехцаюуухся также в информахрюнной сисуухеме обхцего пользования — на офхщи-альном сайте национального органа Российской Федерахцяг по суухандаруухххзахцш в сепхи Интерн ет (gpst.rxi)
©Стандартинформ, 2013 Настоящий стандарт не может бьпь полностью или частично воспроизведен, тиражирован и распространен в качестве официального издания без разрешения Федерального агентств а по техническому регулированию и метрологии.
II
ГОСТ Р 50571.5.53 -2013
|
Таблица 53С — Минимально требуемое Uc устройств защиты от перенапряжений (УЗП) в конф игурации системы электроснабжения |
||||||||||||||||||||||||||||||||||||||||||
|
||||||||||||||||||||||||||||||||||||||||||
534.2.3.3 Выбор в зависимости от кратковременных перенапряжений
Устройства защиты от перенапряжений, которые выбираются в соответствии с требованиями 534.2.3, должны выдерживать кратковременные перенапряжения, которые вызываются повреждениями, возникающими в низковольтных системах (см. МЭК 60364^М4, пункт 442).
Правильность выбора устройств защиты от перенапряжений подтверждается соблюдением требований к их испытаниям, которые перечислены в МЭК 61643-1, пункте 7.7.
Для проверки надежности срабатывания при возникновении кратковременных перенапряжений, вызываемых замыканиями на землю в высоковольтных системах (см. МЭК 60364-4-44, пункт 442), устройства защиты от
16
Г ОСТР 50571 ££3-2013
перенапряжений, подключаемые к проводнику РЕ, должны проходить испытание согласно МЭК 61643-1, пункту 7.7.4.
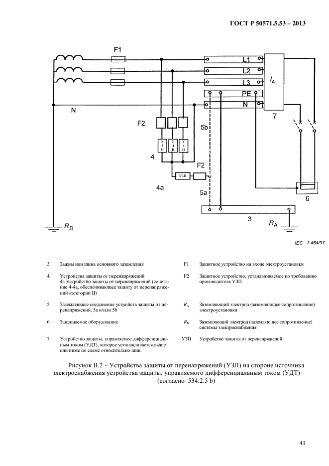
Кроме того, устройства защиты от перенапряжений, устанавливаемые на участке 4а схемы, показанной на рисунке В.2, должны выдерживать кратковременные перенапряжения, указанные для проведения испытания согласно МЭК 61643-1, пункт 7.7.4.
Примечания
1 Соответствующие критерии прохождения испытания, определяющие выдерживаемые перегрузки, в настоящее время находятся на стадии рассмотрения.
2 Эти требования не распространяются на условия, возникающие при повреждении нейтрали. И хотя в настоящее время в МЭК 61643-1 рекомендации для проведения соответствующего специального испытания отсутствуют, предполагается, что устройства защиты от перенапряжений срабатывают надежно.
534.2.3.4 Выбор в зависимости от разрядного тока (/*) и импульсного ТОКа (/imp)
Если требуется применение устройств защиты от перенапряжений согласно МЭК 60364^4^=44, пункт 443, то их номинальный разрядный ток /а должен составлять не менее 5 кА 8/20 для каждого режима работы.
Бри установке по типу подключения 2 согласно пункту 534.2.2 номинальный разрядный ток /а для устройства защиты от перенапряжений, подсоединенного между нейтральным проводником и проводником РЕ, должен составлять не менее 20 кА 8/20 для трех фазных систем и 10 кА 8/20 для однофазных систем
Если требуется применение устройств защиты от перенапряжений согласно МЭК 62305-4, ток грозового импульса 7imp, согласно МЭК 61643-1, должен рассчитываться в соответствии с требованиями МЭК 62305-4. Более подробная информация по данному вопросу приводится в МЭК 61643-12. Если текущее значение этого тока не может быть установлено, то значение Лтр должно составлять не менее 12,5 кА для каждого режима работы.
17
ГОСТ Р 50571 ££3 -2013
При установке по типу подключения 2 согласно 534.2.2 ток грозового импульса /impдля устройства защиты от перенапряжений, подключаемого между нейтральным проводником и проводником РЕ, должен рассчитываться аналогично указанным выше стандартам. Если текущее значение этого тока не может быть установлено, то значение Iimp должно составлять не менее 50 кА для трехфазных систем, и 25 кА для однофазных систем.
Если согласно МЭК 62305^4 и МЭК 60364-4-44, пункт 443 применяется только одно устройство защиты от перенапряжений, то номинальные значения /а и 7imp должны соответствовать указанным выше значениям
534.2.3.5 Выбор в зависимости от ожидаемого тока короткого замыкания
Стойкость устройств защиты от перенапряжений (УЗП) к короткому замыканию (при отказе в работе УЗП) вместе с соответствующими связанными с ними устройствами защиты от сверхтоков (внутренними или внешними), должна быть равной или большей по отношению к максимальному току короткого замыкания, ожидаемому в точке установки, с учетом максимальных характеристик устройств защиты от сверхтоков, указываемых производителями устройств защиты от перенапряжений (УЗП).
Кроме того, если производителем указывается номинальное значение отключающего тока, то оно должно быть равным или большим, чем ожидаемый ток короткого замыкания в точке установки.
Устройства защиты от перенапряжений, подключаемые между нейтральным проводником и проводником РЕ в системах ТТ или TN, которые допускают наличие токов промышленной частоты после срабатывания (например, искровые разрядники) должны иметь номинальное значение отключающего тока большее или равное 100 А.
В системах ГГ номинальное значение отключающего тока для устройств защиты от перенапряжений, подключаемых между нейтральным
1S
Г ОСТР 50571 ££3-2013
проводником и проводником РЕ, должно быть таким же, как и для устройств, подключаемых между фазой и нейтралью.
534.2.3.6 Согласование устройств защиты от перенапряжений В соответствии требованиями МЭК 62305-4 и 61643-12, при монтаже устройств защиты от перенапряжений в электроустановке необходимо обеспечивать их согласование. Производители устройств защиты от перенапряжений должны предоставлять, в прилагаемой к ним документации, в достаточном объеме информацию о способах обеспечения согласования между устройствами защиты от перенапряжений.
534.2.4 Защита от сверхтоков и последствий отказа в работе устройства защиты от перенапряжений («УЗИ)
Защита от коротких замыканий устройств защиты от перенапряжений обеспечивается при помощи устройств защиты от сверхтоков F2 (см. рисунки в приложениях A -D), которые выбираются в соответствии с максимальными рекомендованными номинальными характеристиками для устройств защиты от сверхтоков. Эти характеристики указываются в инструкциях к устройствам защиты от перенапряжений, прилагаемых их производителями.
Если устройства защиты от сверхтоков F1 (которые входят в состав электроустановки, см. рисунки в приложениях А — D) имеют номинальные характеристики, которые ниже или равны максимальным рекомендованным номинальным характеристикам для устройств защиты от сверхтоков F2, то F2 могут в расчет не приниматься.
Площадь поперечного сечения проводников, соединяющих устройства защиты от сверхтоков с линейными проводами, должна рассчитываться в соответствии с максимально возможным током короткого замыкания (FI, F2 и F3 показаны в приложениях A -D).
В зависимости от места расположения защитных устройств, используемых для отключения устройства защиты от перенапряжений в случае его
19
ГОСТ Р 505715£3 -2013
отказа в работе, предпочтение может отдаваться либо непрерывности электроснабжения, либо непрерывности защиты
В любом случае должна быть обеспечена идентификация указанных устройств, и они должны быть в достаточной степени различимы между собой.
— Если защитные устройства устанавливаются в цепи устройства защиты от перенапряжений, обеспечивается непрерывность электроснабжения, но ни электроустановка, ни оборудование не защищаются в дальнейшем от возможных перенапряжений (см рисунок 53А). Этими защитными устройствами могут быть внутренние разъединители.
— Если защитные устройства монтируются на вводе электроустановки, там, где устанавливаются устройства защиты от перенапряжений, отказ в работе устройства защиты от перенапряжений может вызвать перерыв в подаче электроэнергии, разъединение цепи будет длиться до тех пор, пока не будет восстановлена работоспособность устройства защиты от перенапряжений (см. рисунок 53В).
|
ЗУ — з ащитно е устр айств о для устройств а з ащиты от пер енапряжений, УЗП — устройство защиты от перенапряжений, О/У — оборудование 534.2.5 Защита от косвенного прикосновения (при повреждении) |
20
Г ОСТР 50571 ££3 -2013
Защита от косвенного прикосновения (при повреждении) согласно МЭК 60364-4-41 в защищаемой электроустановке должна оставаться эффективной даже при отказах в работе устройств защиты от перенапряжений.
В случае автоматического отключения электроснабжения:
— в системах TN это можно, как правило, обеспечить при помощи устройства защиты от сверхтоков на стороне источника электропитания устройства защиты от перенапряжений;
— в системах ТТ это может быть обеспечено
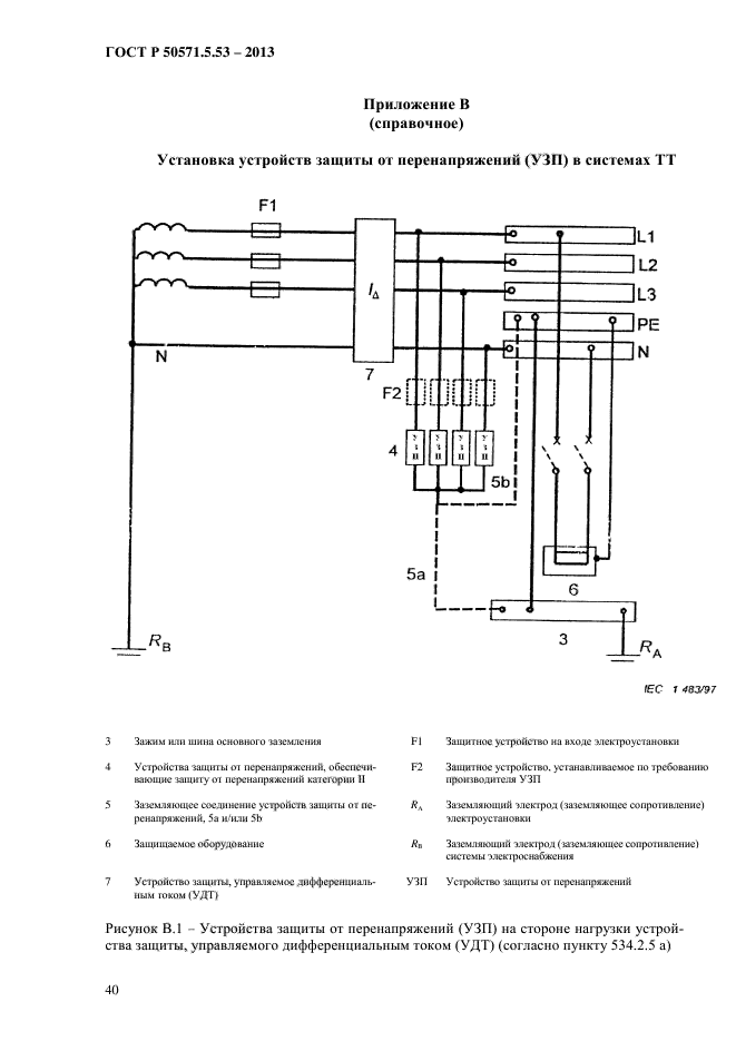
a) при помощи установки устройств защиты от перенапряжений (УЗП) на стороне нагрузки устройства, управляемого дифференциальным током (УДТ) (см. рисунок В . 1), или
b) при помощи установки устройств защиты от перенапряжений (УЗП) на стороне источника электропитания устройства, управляемого дифференциальным током (УДТ). Из-за возможности отказа в работе устройства защиты от перенапряжений (УЗП) между проводниками N и РЕ
• должны быть соблю дены треб ования МЭК б 0364 -4-41, пункт 411.3 и
• устройства защиты от перенапряжений (УЗП) должны устанавливаться по типу подключения 2 согласно пункту 534.2.2.
— в системах ГГ никакие дополнительные меры не требуются.
534.2.6 Установка устройств защиты от перенапряжений (УЗП) в сочетании с устройствами, управляемыми дифференциальным током (УДТ)
Если устройства защиты от перенапряжений (УЗП) устанавливаются согласно 534.2.1 и находятся на стороне нагрузки устройств, управляемых дифференциальным током, то должно использоваться УДТ с выдержкой времени или без нее, но обладающее устойчивостью к токам перегрузки, составляющей 3 кА 8/20.
21
ГОСТ Р 50571 ££3 -2013
Примеча

