ЕСКД. Документация, отправляемая за границу
На нашем сайте можно бесплатно скачать ГОСТ Р 2.901-99 в удобном формате. Узнать актуальный статус ГОСТА «ЕСКД. Документация, отправляемая за границу» на 2016 год.
Скрыть дополнительную информацию
Страница 1

Страница 2

Страница 3

Страница 4

Страница 5

Страница 6

Страница 7

Страница 8

Страница 9
ГОСТ Р 2.901-99
УДК 62.002:006.354 Группа Т52
ГОСУДАРСТВЕННЫЙ СТАНДАРТ РОССИЙСКОЙ ФЕДЕРАЦИИ
Единая система конструкторской документации
ДОКУМЕНТАЦИЯ, ОТПРАВЛЯЕМАЯ ЗА ГРАНИЦУ
Общие требования
Unified system for design documentation.
Documentation to be sent abroad.
General requirements
ОКС 01.100.10
ОКСТУ 0002
Дата введения 2000—07—01
Предисловие
1 РАЗРАБОТАН Всероссийским научно-исследовательским институтом стандартизации и сертификации в машиностроении (ВНИИНМАШ) Госстандарта России
ВНЕСЕН Научно-техническим управлением Госстандарта России
2 ПРИНЯТ И ВВЕДЕН В ДЕЙСТВИЕ Постановлением Госстандарта России от 18 августа 1999 г. № 255-ст
3 ВВЕДЕН ВПЕРВЫЕ
1 Область применения
Настоящий стандарт распространяется на конструкторскую документацию (далее — документы) изделий всех отраслей промышленности, отправляемых за границу РФ (другим государствам), и устанавливает общие требования к оформлению.
На основании настоящего стандарта допускается, при необходимости, разрабатывать стандарты на изделия конкретных видов техники с учетом специфики изделия и (или) фирмы, и (или) государства, куда отправляют документы.
Допускается в контракте (договоре) на поставку документов устанавливать дополнительные требования к стандарту.
Допускается изготовление и поставка продукции на экспорт в соответствии с требованиями международных, региональных и национальных стандартов других стран и стандартов зарубежных стран по предложению потребителя (заказчика) этих стран на договорной (контрактной) основе (ГОСТ Р 1.0).
Требования настоящего стандарта выполняются расположенными на территории РФ предприятиями, организациями и объединениями предприятий, в том числе союзами, ассоциациями, концернами, акционерными обществами, межотраслевыми, региональными и другими объединениями (далее — предприятия) независимо от форм собственности и подчинения, а также органами управления в РФ.
Требования настоящего стандарта не распространяются на конструкторскую документацию на изделия, разработанные и (или) поставляемые по заказу Министерства обороны РФ.
2 Нормативные ссылки
В настоящем стандарте использованы ссылки на следующие стандарты:
ГОСТ 2.004-88 Единая система конструкторской документации. Общие требования к выполнению конструкторских и технологических документов на печатающих и графических устройствах вывода ЭВМ
ГОСТ 2.102-68 Единая система конструкторской документации. Виды и комплектность конструкторских документов
ГОСТ 2.104-68 Единая система конструкторской документации. Основные надписи ГОСТ 2.105-95 Единая система конструкторской документации. Общие требования к текстовым документам
ГОСТ 2.114-95 Единая система конструкторской документации. Технические условия
ГОСТ 2.501-68 Единая система конструкторской документации. Правила учета и хранения
ГОСТ 2.503-90 Единая система конструкторской документации. Правила внесения изменений
ГОСТ 2.601-95 Единая система конструкторской документации. Эксплуатационные документы
ГОСТ 2.602-95 Единая система конструкторской документации. Ремонтные документы
ГОСТ 2.603-68 Единая система конструкторской документации. Внесение изменений в эксплуатационную и ремонтную документацию
ГОСТ 28388-89 Системы обработки информации. Документы на магнитных носителях данных. Порядок выполнения и обращения
3 Определения
В настоящем стандарте применяют следующие термины с соответствующими определениями:
заказчик документов (ЗД): Предприятие или орган управления РФ, выдавший заказ или
заключивший контракт (договор) на поставку документации за границу;
поставщик документов (ПД): Предприятие, осуществляющее поставку документации за границу;
предприятие-держатель подлинников документов (ПДП): Предприятие, осуществляющее учет, хранение, ведение подлинников документов и имеющее право вносить в них изменения, а также поставлять копии и (или) дубликаты документов своим абонентам;
предприятие-изготовитель (ПИ): Предприятие, осуществляющее изготовление изделий.
4 Общие требования
4.1 Документы отправляют на бумажных носителях информации, на печатающих и графических устройствах вывода ЭВМ, на магнитных носителях.
4.2 Документы, отправляемые за границу, предназначены для:
— эксплуатации изделий,
— организации производства и (или) ремонта изделий.
При этом отправляемые документы должны быть разработаны с учетом требований настоящего стандарта или подготовлены копии по требованиям настоящего стандарта, сели подлинника пыли разработаны ранее.
Документы не должны содержать сведения ограниченного распространения. Объем документов оговаривают в контракте (договоре) на поставку документов.
4.3 Основанием для поставки документов в общем случае служит контракт, который составляют по решению (постановлению) органа управления РФ или в порядке инициативы.
Условием поставки документов является наличие у ПД лицензии на право внешнеэкономической деятельности в соответствии с правовыми актами и нормативными документами РФ в этой области.
4.4 Поставку документов производит ПД, который является ПДП, или сторонняя организация, осуществляющая эту поставку на основании контракта.
4.5 Документы по техническому содержанию должны соответствовать документам на изделия, предназначенным для внутренних поставок. При необходимости, документы, разрабатываемые для отправки, могут содержать дополнительные требования, предъявляемые ЗД (при наличии) и согласованные с ПДП.
4.6 Документы (изменения к ним) выполняют на русском языке. По согласованию с ПД документы (изменения к ним) выполняют на русском и иностранных языках.
Допускается к документам (изменениям), выполненным на русском языке, прилагать аутентичный текст на иностранном языке, удостоверенный в соответствующем порядке. При этом документы на русском языке являются основными. Все это должно быть оговорено в контракте на поставку.
4.7 При оформлении документа (изменения к нему) на двух языках и более русский текст располагают первым при построчном расположении текста или при расположении его на чертежах, схемах, в основной надписи документа, спецификациях, таблицах, на иллюстрациях, например:
Таблица 1
|
Позиция Position |
Обозначение Designation |
Наименование Name |
|
1 |
АБВГ.307141.317 |
Бак масляный Oil tank |
|
2 |
ТЛБВ.406123.515 |
Манометр Pressure gauge |
|
3 |
АБВГ.492211.201 |
Вентиль запорный Stop valve |
в левой колонке на странице при расположении текста колонками, например:
|
НАЗНАЧЕНИЕ Контроллеры переменного тока серии ККТ-100 предназначены для пуска, регулирования скорости и реверсирования |
PURPOSE ККТ-100 type а.с. controllers are intended for starting-up, speed controlling and reversing |
4.8 Иллюстрации, поясняющие содержание текста на русском и иностранных языках, должны быть общими, например:
|
… в первую очередь необходимо поджать провода от контрольного прибора 3 под головки винтов 1 испытательных клемм и только после этого вывинтить штекер 2 (рисунок 1) |
… primarily, stud 2 can be unscrewed only after the wires running from instrument 3 to terminal screws 1 have been tightened (Figure 1) |
Рисунок 1 — Пример применения клеммы тина КИ-4М
Figure 1. An example of using КИ-4М type terminals
Иллюстрации следует выполнять по ГОСТ 2.105.
4.9 Цифровые данные и буквенные обозначения в документах при построчном расположении текста указывают один раз для русского и иностранного текста.
Буквенные обозначения на русском языке на иностранный язык не переводят.
4.10 Буквы, входящие в обозначение документов, указывают только на русском языке
4.11 Документы (изменения к ним) отправляют в копиях, их комплектность и количество экземпляров определяются контрактом.
Документы на покупные изделия, применяемые в изделии, оформляют ПДП этих документов или по его разрешению другие организации и передает их ПД в соответствии с контрактом.
4.12 Изменения в документы вносят в соответствии с требованиями ГОСТ 2.503 и ГОСТ 2.603. Изменения досылают, как правило, в тех случаях, если без них могут возникнуть затруднения при эксплуатации, ремонте или изготовлении изделий либо могут возникнуть дефекты в поставленных, изготовленных и ремонтируемых изделиях.
4.13 Изменения в отправляемые документы вносит предприятие, определенное контрактом на поставку, как правило, ПДП.
4.14 Изменения в копии вносят заменой копий новыми, снятыми с подлинников, исправленных по извещению. В случае нецелесообразности замены копий допускается исправлять их черными тушью, чернилами или пастой по правилам, установленным для подлинников. Внесение изменений в копии подчисткой не допускается. О необходимости исправления копий указывают в графе «Содержание изменений» извещения: «Копии исправить» (ГОСТ 2.503).
4.15 Документы не должны содержать сведений, не имеющих прямого отношения к назначению этих документов, за исключением случаев, установленных законодательством и нормативными документами РФ. Перечень таких сведений определяется документом ЗД в соответствии с установленным порядком.
4.16 Необходимость применения нормативных документов по стандартизации в отношении продукции, производимой на территории РФ с целью вывоза ее с территории или организации ее производства за границей, а также порядок передачи этих документов за границу определяется контрактом (4.3), за исключением случаев, установленных законодательством и нормативными документами РФ.
4.17 При наличии в документах сокращенных слов и условных обозначений, не установленных в стандартах, пояснения к ним помещают в виде перечня непосредственно в документе либо оформленного в виде приложения.
4.18 Подлинники документов на русском и иностранном языках или на иностранном языке должны иметь одинаковое обозначение с подлинниками документов, выполненными на русском языке. Им присваивают самостоятельные инвентарные номера и на каждый подлинник составляют карточку учета, в которой в графе «Наименование» указывают в скобках, на каком языке выполнен документ, например: «(на русском и французском языках)» или «(на английском языке)».
На карточках учета подлинника, выполненного на русском языке, в графе «Наименование» указывают в скобках, на каких иностранных или русском и иностранных языках выполнен данный подлинник и соответствующие инвентарные номера этих подлинников, например; «(на русском и французском языках — подл. инв. № 536)» или «(на английском языке — подл. инв. № 237)».
Подлинники документов, выполненных для отправки, подлежат учету и хранению в соответствии с требованиями ГОСТ 2.501. Как правило, их хранят в папках или футлярах отдельно от документов, выполненных для использования на территории РФ. Форма, размеры, материал и другие требования к оформлению папок и футляров настоящим стандартом не устанавливаются.
4.19 Основную надпись в отправляемых документах выполняют по ГОСТ 2.104 со следующими изменениями:
— в графе 9 указывают наименование или аббревиатуру ПД или ПДП. По согласованию с ЗД графу разрешается не заполнять;
— в графе 10 указывают характер работы, выполняемой лицом, подписывающим документ. При выполнении документа на двух языках и более в одном издании помещают не более трех подписей: разработчика, нормоконтролера и лица, утвердившего документ;
— в графе 24 указывают, на каком иностранном языке выполнен документ;
— графы 11, 25, 27, 28, 29 и 30 не заполняют или исключают содержащийся в них текст.
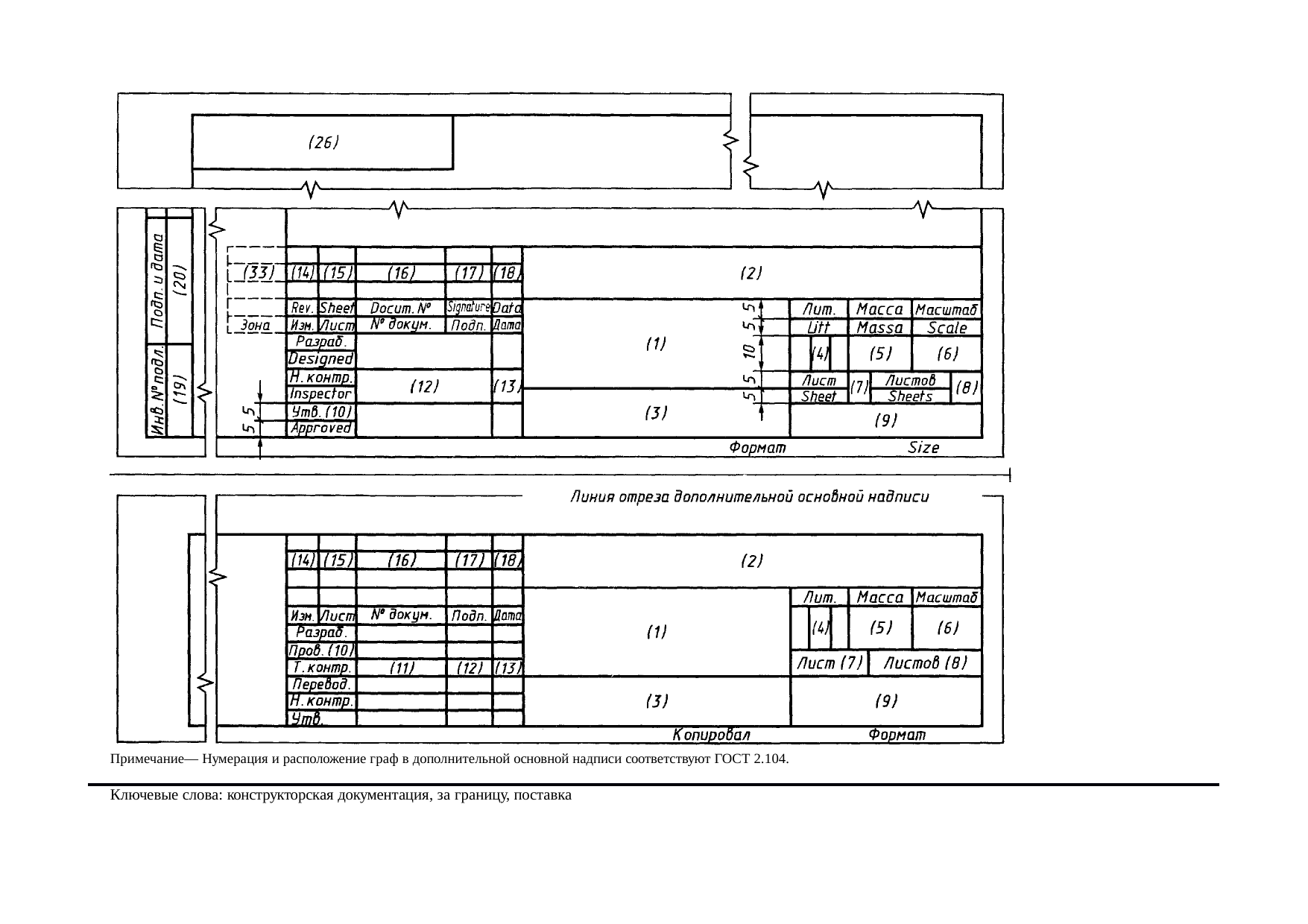
4.20 В отправляемых документах допускается за внешней рамкой формата по короткой стороне листа помещать дополнительные графы основной надписи (формы 2—4 приложения А), заполняемые в соответствии с требованиями ГОСТ 2.104.
4.21 На свободном поле за пределами дополнительных граф основной надписи помещают сведения о согласовании документа и другие служебные отметки.
При отправке документов дополнительные графы основной надписи и сведения о согласовании документа должны быть изъяты.
4.22 Документы, выполненные на печатающих и графических устройствах ЭВМ, оформляют в соответствии с требованиями ГОСТ 2.004 и настоящего стандарта.
4.23 Документы, выполненные на магнитных носителях данных, оформляют в соответствии с требованиями ГОСТ 28388 и настоящего стандарта.
5 Требования к документам, отправляемым для эксплуатации
поставляемых изделий
5.1 Эксплуатационные документы (ЭД) комплектуют в соответствии с требованиями ГОСТ 2.601 или другими нормативными документами в этой области, условиями контракта с исключением «Ведомости эксплуатационных документов».
5.2 Из документов исключают сведения о гарантиях изготовителя (поставщика), рекламациях, цене, кодах продукции и другие, если наличие этих сведений не оговорено в контракте на поставку изделия.
5.3 ЭД к моменту их отправки должны отражать фактическое состояние поставляемого изделия.
5.4 Формат документов, способ издания, материал издания и обложки должны быть определены в контракте на поставку изделия.
5.5 Документы издают:
— раздельными изданиями на русском и иностранных языках;
— одним изданием на русском и на одном или нескольких иностранных языках.
5.6 При издании документов типографским способом обложку выполняют однокрасочной или многокрасочной. На обложке указывают:
— наименование и обозначение изделия;
— наименование и обозначение документа;
— наименование и местонахождение ПД, если это оговорено в контракте.
6 Требования к документам, отправляемым для организации
производства и (или) ремонта изделий
6.1 Для организации производства изделий отправляют рабочую конструкторскую документацию. Ее комплектуют в соответствии с требованиями ГОСТ 2.102, за исключением «Ведомости покупных изделий».
Технические условия отправляют, если это оговорено в контракте на поставку. При этом они должны быть составлены с учетом требований ГОСТ 2.114 и настоящего стандарта.
Примечание — Допускается отправка документов технического предложения, эскизного или технического проектов, если это оговорено в контракте на поставку документации.
6.2 Для организации ремонта изделий за границу отправляют рабочую конструкторскую документацию. Ее комплектуют в соответствии с требованиями ГОСТ 2.602, за исключением «Ведомости покупных изделий».
6.3 В документах должны быть отражены все изменения, внедренные в производство и утвержденные к моменту отправки документации.
Примечания
1 При необходимости допускается прикладывать к отправляемым документам «Извещения об изменении», выпущенные во время оформления документов к отправке.
2 Если документы отправляют в качестве справочного материала, то они могут быть переданы без внесения изменений.
6.4 При снятии копий с подлинников, в которых указаны недействующие нормативные документы, технические условия и т.п., к отправляемой документации прикладывают таблицы замены на действующие нормативные документы, технические условия, составленные по форме 1 приложения А.
Примечание — При наличии в комплекте документов «Ведомости ссылочных документов» таблицы не составляют. В этом случае корректируется «Ведомость ссылочных документов».
6.5 Как правило, сведения из негосударственных нормативных документов (отраслевые стандарты, стандарты предприятий и т.п.), на которые имеются ссылки в документах, оформляют в виде графических и (или) текстовых документов, включаемых в комплект отправляемых документов.
6.6 Основные надписи документов заполняют в соответствии с требованиями 4.20 настоящего стандарта.
6.7 Примеры форм спецификации и основной надписи в случае выполнения документа на нескольких языках приведены в формах 2—4 приложения А.
ПРИЛОЖЕНИЕ А
(рекомендуемое)
Формы документов
Форма 1 — Таблица замены нормативных документов (стандартов) и технических условий
|
Обозначение и наименование стандарта и технических условий, указанных в конструкторском документе |
Обозначение и наименование заменяющего стандарта и технических условии (на момент передачи) |
|
1 |
2 |
Форма 2— Спецификация и основная надпись для текстовых документов (первый и заглавный листы)
