Система проектной документации для строительства. Правила выполнения архитектурно-строительных рабочих чертежей
Действие завершено 01.09.1994
Заменяет

Страница 1

Страница 2

Страница 3

Страница 4

Страница 5

Страница 6

Страница 7

Страница 8

Страница 9

Страница 10

Страница 11

Страница 12

Страница 13

Страница 14

Страница 15

Страница 16

Страница 17

Страница 18

Страница 19

Страница 20

Страница 21

Страница 22

Страница 23

Страница 24

Страница 25

Страница 26

Страница 27

Страница 28

Страница 29

Страница 30

Страница 31

Страница 32

Страница 33

Страница 34

Страница 35

Страница 36

Страница 37

Страница 38

Страница 39

Страница 40

Страница 41

Страница 42
ГОСУДАРСТВЕННЫЙ СТАНДАРТ РОССИЙСКОЙ ФЕДЕРАЦИИ
СИСТЕМА ПРОЕКТНОЙ ДОКУМЕНТАЦИИ ДЛЯ СТРОИТЕЛЬСТВА
ПРАВИЛА ВЫПОЛНЕНИЯ АРХИТЕКТУРНО-СТРОИТЕЛЬНЫХ РАБОЧИХ ЧЕРТЕЖЕЙ
Земен Гости
НУС.
зМ£.
г
Издание официальное
МИНСТРОЙ РОССИИ Москва
ГОСУДАРСТВЕННЫЙ СТАНДАРТ РОССИЙСКОЙ ФЕДЕРАЦИИ
Система проектной документации для строительства ПРАВИЛА ВЫПОЛНЕНИЯ АРХИТЕКТУРНО-СТРОИТЕЛЬНЫХ РАБОЧИХ ЧЕРТЕЖЕЙ
System о! design documents for construction.
Rules for execution of architectural and construction working drawings
ГОСТ P 21.1501—92
ОКСТУ 0021
Дата введения 01.07.1993
Настоящий стандарт устанавливает состав и правила оформления архитектурно-строительных рабочих чертежей (архитектурных решений и строительных конструкций*, включая рабочую документацию на строительные изделия**) зданий и сооружений различного назначения.
1. ОБЩИЕ ТРЕБОВАНИЯ
1.1. Архитектурно-строительные рабочие чертежи выполняют в соответствии с требованиями ГОСТ Р 21.1101, а также настоящего стандарта.
При выполнении рабочих чертежей металлических конструкций следует руководствоваться соответствующими стандартами Системы проектной документации для строительства (СПДС).
1.2. Рабочие чертежи архитектурных решений и строительных конструкций, предназначенные для производства строительных и монтажных работ, выполняют в составе основных комплектов, которым присваивают марки в соответствии с ГОСТ Р 21.1101.
По рабочим чертежам марки АР, при необходимости, составляют спецификацию оборудования по ГОСТ 21.110.
1.3. Условные графические изображения строительных конструкций и их элементов приведены в приложении 1.
1.4. На архитектурно-строительных чертежах указывают характеристики точности геометрических параметров зданий, сооружений, конструкций и их элементов по ГОСТ 21.113.
Требования к точности функциональных геометрических параметров зданий, сооружений и конструкций должны быть увязаны с требованиями к точности изготовления изделий (элементов конструкций), разбивки осей и установки элементов конструкций путем расчета точности по ГОСТ 21780.
1.5. На архитектурно-строительных рабочих чертежах (на изображениях фундаментов, стен, перегородок, перекрытий) указывают проемы, борозды, ниши, гнезда и отверстия с
необходимыми размерами и привязками.
* Под строительной конструкцией понимают часть здания, сооружения определенного функционального назначения (каркас здания, покрытие, перекрытие и др.), состоящую из элементов, взаимно связанных в процессе выполнения строительных работ.
** Под строительным изделием понимают элемент строительной конструкции (колонна, ферма, ригель, плита перекрытия, панель стены, арматурный каркас и др.), изготовляемый вне места его установки.
Издание официальное (6) Издательство стандартов, 1993
Настоящий стандарт не может быть полностью кли частично воспроизведен, тиражирован и распространен
без разрешения Минстроя России
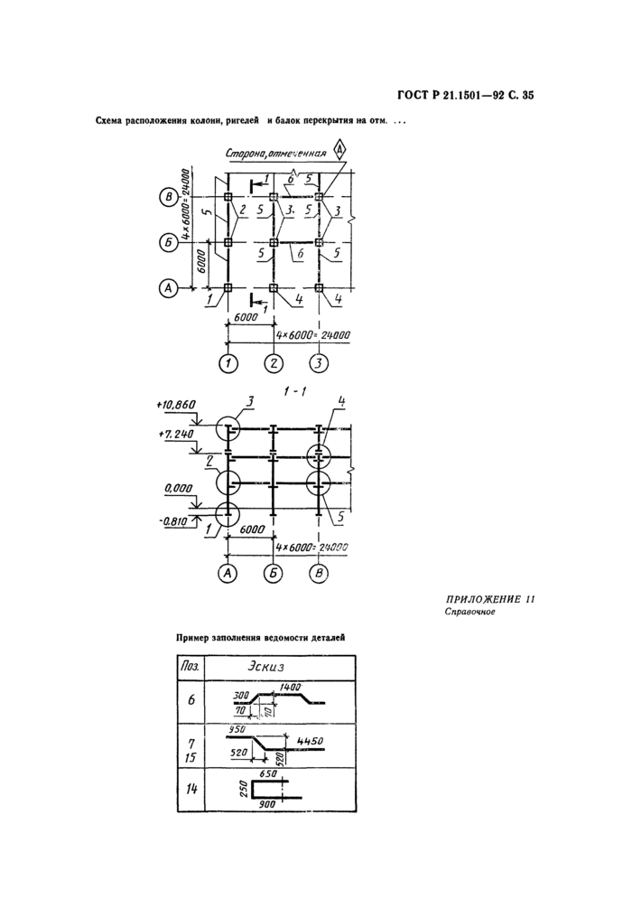
3.3.14. Допускается чертежи на простые детали, непосредственно входящие в состав монолитной железобетонной конструкции, не выполнять, а все необходимые данные для их изготовления приводить в спецификации и, при необходимости, помещать изображения этих деталей на чертеже монолитной конструкции. При большом количестве деталей данные, необходимые для их изготовления, приводят в ведомости по форме 6,
Пример заполнения ведомости приведен в приложении 11.
Ведомость деталей
форма 6
|
Поз. |
Эскиз |
||
|
Л |
|||
|
го |
‘ V 70 |
||
|
* |
А |
SO |
|
3.4. Спецификации к схемам расположения элементов конструкций
3.4.1. Спецификацию к схеме расположения элементов конструкций составляют по форме 7 или 8 приложения 7 ГОСТ Р 21.1101.
3.4.2. Спецификацию к схеме расположения сборных конструкций заполняют по разделам:
1) элементы сборных конструкций;
2) монолитные участки;
3) стальные и другие изделия.
3.4.3. Спецификацию монолитной конструкции, состоящей из нескольких элементов, на каждый из которых выполняют отдельную схему армирования, составляют по разделам на каждый элемент.
3.4.4. Наименование каждого раздела спецификации монолитной конструкции указывают в виде заголовка в графе «Наименование»и подчеркивают. В наименования разделов включают марку элемента и через тире — количество элементов на монолитную конструкцию.
Примеры: 1. Балки Бм1 — шт. 2.
2. Плита Пм1 — шт. 1.
2. ОСНОВНОЙ КОМПЛЕКТ РАБОЧИХ ЧЕРТЕЖЕЙ АРХИТЕКТУРНЫХ РЕШЕНИЙ
2.1. В состав основного комплекта рабочих чертежей архитектурных решений включают:
1) общие данные по рабочим чертежам;
2) планы этажей, в т. ч. подвала, технического подролья, технического этажа и чердака;
3) разрезы;
4) фасады;
5) планы полов (при необходимости);
6) план кровли (крыши);
7) схемы расположения элементов сборных перегородок*;
схемы расположения элементов заполнения оконных и других проемов*;
9) выносные элементы (узлы, фрагменты);
10) спецификации к схемам расположения в соответствии с ГОСТ Р 21.1101.
2.2. Общие данные по рабочим чертежам
2.2.1. В состав общих данных по рабочим чертежам, кроме сведений предусмотренных ГОСТ Р 21.1101, включают ведомость отделки помещений по форме 1 (при отсутствии основного комплекта рабочих чертежей интерьеров).
Форма 1
Ведомость отделки помещений
Площадь, мг
|
Jr->к-% |
Наименование или номер помещения |
Вид отделяй элементов интерьеров |
к |
Примечание |
|||||||
|
Потолок |
Пло щадь |
Стены или перегородки |
Пло щадь |
Колонны |
Пло щадь |
Пло щадь |
|||||
|
> |
|||||||||||
|
-V-I |
|||||||||||
Примечания:
1. Количество граф определяется наличием элементов интерьера, подлежащих отделке.
2. Площади отделки помещений рассчитывают по соответствующим нормативным документам.
2.2.2. В общих указаниях в дополнение к сведениям, предусмотренным ГОСТ Р 21.1101, указывают:
1) класс ответственности здания (сооружения);
2) категорию здания (сооружения) по взрывопожарной и пожарной опасности;
3) степень огнестойкости здания (сооружения);
4) характеристику стеновых и изоляционных материалов **;
5) указания по устройству гидроизоляции и отмостки **;
6) указания по наружной отделке здания (сооружения) **;
7) указания о мероприятиях при производстве работ в зимнее время.
2.3. Планы этажей
2.3.1. При выполнении плана этажа положение мнимой горизонтальной секущей плоскости разреза принимают на уровне оконных проемов или на 7з высоты изображаемого этажа.
В случаях, когда оконные проемы расположены выше секущей плоскости, по периметру плана располагают сечения соответствующих стен на уровне оконных проемов.
* Схемы расположения металлических элементов сборных перегородок и заполнения оконных проемов выполняют в составе рабочих чертежей металлических конструкций. Схемы расположения элементов сборных железобетонных перегородок выполняют, как правило, в составе основного комплекта рабочих чертежей железобетонных конструкций.
** Приводят, если нет соответствующих указаний на чертежах.
ГОСТ Р 21.1501-92 С. 3
2.3.2. На планы этажей наносят:
1) координационные оси здания (сооружения);
2) размеры, определяющие расстояния между координационными осями и проемами, толщину стен и перегородок, другие необходимые размеры, отметки участков, расположенных на разных уровнях;
3) линии разрезов. Линии разрезов проводят, как правило, с таким расчетом, чтобы в разрез попадали проемы окон, наружных ворот и дверей;
4) позиции (марки) элементов здания (сооружения), заполнения проемов ворот и дверей (кроме входящих в состав щитовых перегородок), перемычек, лестниц и др.
Допускается позиционное обозначение проемов ворот и дверей указывать в кружйах диаметром 5 мм;
5) обозначения узлов и фрагментов планов;
6) наименования помещений (технологических участков), их площади, категории по взрывопожарной и пожарной опасности (кроме жилых зданий).
Площади проставляют в нижнем правом углу помещения (технологического участка) и подчеркивают. Категории помещений (технологических участков) проставляют под их наименованием в прямоугольнике размером 5×8 (h) мм.
Для жилых зданий, при необходимости, на планах указывают тип и площадь квартир. При этом площадь проставляют в виде дроби, в числителе которой указывают жилую площадь, в знаменателе — полезную.
Допускается наименования помещений (технологических участков), их площади и категории приводить в экспликации по форме 2. В этом случае на планах вместо наименований помещений (технологических участков) проставляют их номера.
Для жилых зданий экспликацию помещений, как правило, не выполняют;
7) границы зон передвижения технологических кранов (при необходимости).
Форма 2
Экспликация помещений
|
Номер поме щения |
Наименование |
Площадь м? |
Кат* помещения |
|
|
\ |
||||
|
/5 |
80 |
20 |
W |
|
|
•9 |
125 |
— Ч 1 |
* Категория по взрывопожарной и пожарной безопасности.
2.3.3. Встроенные помещения и другие участки здания (сооружения), на которые выполняют отдельные чертежи, изображают схематично сплошной тонкой линией с показом несущих конструкций.
2.3.4. Площадки, антресоли и другие конструкции, расположенные выше секущей плоскости, изображают схематично штрихпунктирной тонкой линией с двумя точками.
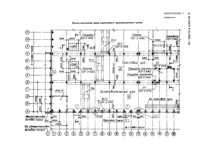
2.3.5. Примеры выполнения планов этажей здания приведены в приложении 2.
2.3.6. К планам этажей выполняют:
1) ведомость перемычек по форме 3.
Примеры заполнения ведомости и спецификации элементов перемычек приведены в приложении 3;
2) спецификации заполнения элементов оконных, дверных и др. проемов, щитовых перегородок, перемычек, замаркированных на планах, разрезах и фасадах — по форме 7 или 8 приложения 7 ГОСТ Р 21 .1101.
Пример выполнения спецификации элементов заполнения проемов приведен в приложении 3.
С. 4 ГОСТ Р 21.1501-92
Форма 3
Ведомость перемычек
2.4. Разрезы и фасады
2.4.1. Линии контуров элементов конструкций в разрезе изображают сплошной толстой основной линией, видимые линии контуров, не попадающие в плоскость сечения, — сплошной тонкой линией.
2.4.2. На разрезы и фасады наносят:
1) координационные оси здания (сооружения), проходящие в характерных местах разреза и фасада (крайние, у деформационных швов, несущих конструкций, в местах перепада высот и т. п.), с размерами, определяющими расстояния между ними (только на разрезах) и общее расстояние между крайними осями;
2) отметки, характеризующие расположение элементов несущих и ограждающих конструкций по высоте;
3) размеры и привязки по высоте проемов, отверстий, ниш и гнезд в стенах и перегородках, изображенных в разрезах;
4) позиции (марки) элементов здания (сооружения), не указанные на планах.
На фасадах указывают также типы заполнения оконных проемов, материал отдельных участков стен, отличающихся от основных материалов.
Допускается типы оконных проемов указывать на планах этажей;
5) обозначения узлов и фрагментов разрезов и фасадов.
Примеры выполнения разрезов приведены в приложении 4, фасадов и их фрагментов — в приложении 5.
2.5. Планы полов и кровли (крыши)
2.5.1. На планы полов наносят:
1) координационные оси: крайние, у деформационных швов, по краям участков с различными конструктивными и другими особенностями и с размерными привязками таких участков;
2) обозначения уклонов полов;
3) тип полов. Ообозначения типов полов проставляют в кружке диаметром 7 мм;
4) отметки в местах перепадов полов.
Стены здания (сооружения) и перегородки на планах полов изображают одной сплошной толстой основной линией.
На планах полов указывают элементы здания (сооружения) и устройства, влияющие на конструкцию пола (проемы ворот и дверей, деформационные швы, каналы, трапы и др.), границы участков с различной конструкцией пола.
Деформационные швы изображают двумя тонкими сплошными линиями, границы участков пола — пунктирными линиями.
2.5.2. Планы полов допускается совмещать с планами этажей.
2.5.3. К планам полов составляют экспликацию полов по форме 4.
Пример выполнения плана полов приведен в приложении 6,
ГОСТ Р 21.1501-92 С. 5
Экспликация полов
Форма 4
|
Номер поме щений |
Тип пола |
Схема пола или тип пола по серии |
Данные элементов пола [наименование, толщина, основание и др.),мм |
Площадь, м2 |
$ |
|
да |
л |
||||
|
, 25 |
SO |
V 75 |
?о |
||
|
ч 1 » 1 ■ |
185 |
—; |
*■ |
* Тип пола по рабочим чертежам.
** При применении типовой конструкции пола приводят только дополнительные данные.
2.5.4. На план кровли (крыши) наносят;
1) координационные оси: крайние, у деформационных швов, по краям участков кровли (крыши) с различными конструктивными и другими особенностями с размерными привязками таких участков;
2) обозначения уклонов кровли;
3) отметки или схематический поперечный профиль кровли;
4) позиции (марки) элементов и устройств кровли (крыши).
На плане кровли (крыши) указывают деформационные швы двумя тонкими линиями, парапетные плиты и другие элементы ограждения кровли (крыши), воронки, дефлекторы, вент-шахты, пожарные лестницы, прочие элементы и устройства, которые указывать и маркировать на других чертежах нецелесообразно.
Пример выполнения плана кровли приведен в приложении 7.
2.6. Схемы расположения элементов сборных перегородок, заполнения оконных и других проемов
2.6.1. Схемы расположения элементов сборных перегородок (кроме панельных железобетонных), заполнения оконных и других проемов выполняют с учетом требований п. 3.3.
2.6.2. Допускается схему расположения элементов сборных перегородок совмещать с планами этажей.
Пример выполнения схемы расположения элементов сборных перегородок приведен в приложении -8.
2.6.3. Схему расположения элементов заполнения оконных проемов составляют на заполнение каждого типа. Сплошное заполнение, между двумя смежными координационными осями учитывают как заполнение одного типа.
При комплектной поставке панелей с заполненными проемами схему расположения элементов заполнения не выполняют.
Пример выполнения схемы расположения элементов заполнения оконных проемов приведен в приложении 9.
3. ОСНОВНОЙ КОМПЛЕКТ РАБОЧИХ ЧЕРТЕЖЕЙ СТРОИТЕЛЬНЫХ КОНСТРУКЦИЙ
3.1. В состав основного комплекта рабочих чертежей строительных конструкций (далее — конструкций) включают:
1) общие данные по рабочим чертежам;
2) схемы расположения элементов конструкций;
3) спецификации к схемам расположения элементов конструкций.
В состав рабочих чертежей монолитных железобетонных конструкций дополнительно включают:
2 Зак. 10(70
1) схемы армирования монолитных железобетонных конструкций;
2) ведомость расхода стали на монолитные конструкции по форме 5.
В ведомость не включают стандартные изделия — дюбели, болты, шайбы и т. и.
Ведомость расхода стали, кг
Форма 5
|
;- Со со * j со j Со |
г- г~ г~ [— г- |
Марка элемента |
Напрягаемая арматура класса |
!ъ. |
Изделия арматурные |
ь». |
|||||||||||||||||||
|
Арматура класса |
Всего |
< |
|||||||||||||||||||||||
|
. . . |
. • . |
> |
Всего |
. . # |
|||||||||||||||||||||
|
ГОСТ .. . |
ГОСТ… ^ |
ГОСТ .. . |
ГОСТ.. . ^ |
||||||||||||||||||||||
|
ф |
итого |
ф \ |
Ф |
итого |
ф |
Итого |
|||||||||||||||||||
|
* |
|||||||||||||||||||||||||
|
_л |
|||||||||||||||||||||||||
|
12min » |
V 1 |
||||||||||||||||||||||||
Продолжение Ведомости
3.2. В состав общих данных по рабочим чертежам кроме сведений, предусмотренных ГОСТ Р 21.1101, включают:
1) сведения о нагрузках и воздействиях, принятых для расчета конструкций здания или сооружения;
2) сведения о грунтах (основаниях), уровне и характере грунтовых вод, глубине промерзания*;
3) указания о мероприятиях по устройству подготовки под фундаменты и об особых условиях производства работ*;
4) сведения о мероприятиях по антикоррозионной защите конструкций (при отсутствии основного комплекта рабочих чертежей марки АЗ);
5) указания о мероприятиях при производстве работ в зимнее время.
3.3.. Схемы расположения элементов конструкций
3.3.1. На схеме расположения элеме’нтов конструкций (далее — схеме расположения) указывают в виде условных или упрощенных графических изображений элементы конструкций и связи между ними.
3.3.2. Схему расположения выполняют для каждой группы элементов конструкций, связанных условиями и последовательностью производства строительных работ.
Примеры:
1. Схема расположения элементов фундаментов и фундаментных балок.
2. Схема расположения блоков стен подвала (развертка блочных стен подвала).
3. Схема расположения колонн, связей по колоннам, подкрановых балок.
* Приводят при отсутствии их в технических требованиях к схемам расположения элементов фундаментов.
ГОСТ Р 21.1501-92 С. 7
4. Схема расположения ферм (балок).
5. Схема расположения панелей стен и перегородок.
3.3.3. Схему расположения выполняют в виде планов, фасадов или разрезов соответствующих конструкций, с упрощенным изображением элементов.
3.3.4. На схему расположения наносят:
1) координационные оси здания (сооружения), размеры, определяющие расстояния между ними и между крайними осями, размерную привязку осей или поверхностей элементов конструкций к координационным осям здания (сооружения) или, в необходимых случаях, к другим элементам конструкций, другие необходимые размеры;
2) отметки наиболее характерных уровней элементов конструкций;
3) позиции (марки) элементов конструкций;
4) обозначения узлов и фрагментов;
5) данные о допустимых монтажных нагрузках.
3.3.5. Одинаковые позиции (марки) последовательно расположенных элементов конструкций на схеме расположения допускается наносить только по концам ряда с указанием количества позиций.
3.3.6. Схему расположения панелей стен при многоярусном расположении панелей в пределах этажа выполняют в плоскости стен на виде, при однорядном расположении — в плане.
3.3.7. В наименовании схем расположения, при необходимости, приводят сведения, определяющие положение конструкции в здании (сооружении). Допускается схемам расположения присваивать порядковые номера.
Пример: Схема расположения элементов перекрытия на отм. 7,200 между осями 1—15,
В—Г (схема 1).
3.3.8. На схеме расположения наносят метки для установки в проектное положение элементов конструкций, имеющих несимметричное расположение закладных изделий и другие от
личительные признаки.
Примеры выполнения схем расположения приложении 10.
3.3.9. Если монолитная железобетонная (балок, плит и др.), на каждый из которых этим элементам присваивают позиционные
элементов сборных конструкций приведены в
конструкция состоит из нескольких элементов выполняют отдельные схемы армирования, то обозначения или марки в соответствии с черт. 1.
3.3.10. В технических требованиях к схеме расположения, при необходимости, приводят указания о порядке монтажа, замоноличивания швов, требования к монтажным соединениям.
3.3.11. Рабочие чертежи арматурных и закладных изделий, разработанные для монолитных железобетонных конструкций в качестве самостоятельных документов, в состав основного комплекта рабочих чертежей не включают, а записывают в ведомость ссылочных и прилагаемых документов в раздел «Прилагаемые документы».
0#
С. 8 ГОСТ Р 21.1501-92
3.3.12. На схему армирования монолитной железобетонной конструкции наносят;
1) координационные оси здания (сооружения);
2) контуры конструкций — сплошной толстой основной линией;
3) размеры, определяющие положение арматурных и закладных изделий и толщину защитного слоя бетона.
Арматурные и закладные изделия на схеме изображают очень толстой сплошной линией.
При необходимости на схеме указывают фиксаторы для обеспечения проектного положения арматуры.
3.3.13. На схеме армирования применяют следующие упрощения:
1) каркасы и сетки изображают контуром в соответствии с черт. 2;
2) для обеспечения правильной установки в проектное положение несимметричных каркасов и сеток указывают только их характерные особенности, (диаметр отличающихся по диаметрам, стержней и др.) в соответствии с черт. 3;
3) если железобетонная конструкция имеет несколько участков с равномерно расположенными одинаковыми каркасами или сетками, то их контуры наносят на одном из участков, указывая номера позиций и в скобках — число изделий этой позиции. На остальных участках проставляют только позиции и в скобках — число изделий этой позиции в соответствий с черт. 4;
25
Черт. 3
I
Я
I
4
1(шт. 5)
1(шт. 4)
г
1(шт. 5)
Черт. 4
4) на участках с отдельными стержнями, расположенными на равных расстояниях, изображают один стержень с указанием на полке-линии выноски его позиции, а под полкой линии-выноски — шаг стержней в соответствии с черт. 5.
Если шаг стержней не нормируется, то рядом с обозначением стержней указывают в скобках число стержней в соответствии с черт, б;
ГОСТ Р 21.1501-92 С. 9
5) арматуру элементов, пересекающих изображаемый элемент, как правило, не указывают (черт. 8);
6) при изображении каркаса или сетки одинаковые стержни, расположенные на равных расстояниях, наносят только по концам каркаса или сетки, а также в местах изменения шага стержней. При этом под полкой линии-выноски с обозначением позиции стержня указывают их шаг в соответствии с черт. 7;
7) в сложной схеме армирования допускается позиции указывать у обоих концов одного и того же арматурного изделия или отдельного стержня в соответствии с черт. 8;
размеры гнутых стержней указывают по наружным, а хомутов — по внутренним граням в соответствии с черт. 9.
|
€Н |
h 1 Ч -г |
h 6 |
|
|
Г \шаг250 \шаг15о 1 |
Г \ша? 250 |
||
|
€ih- |
I i |
г#Н 1_ Г . 1 |
Hri ‘Ша?250 > |
|
Г~з~% Г] 1 та? 150 L—-А |
|||
|
L |
г==-‘— |
||
|
G |
ST А Ушо? 150 V |
0 |
|
Черт. 5
Распределительную арматуру (поз. 6) укладывать в пределах поз. 1 и 2 понизу, в пределах поз. 3—5 — поверху
1У
L/
го
|
2 2 |
||
|
/шаг гоо шаг iso \ |
(SI -! |
|
|
1 |
||
|
>\госттдв~9г m-tii |
CsJ |
|
|
2000 |
750 |
w |
Черт. 7
Черт. 8




