Машины и оборудование строительные. Машины для торкретирования бетонной смеси. Терминология и технические условия
На нашем сайте можно бесплатно скачать ГОСТ ISO 21592-2013 в удобном формате. Узнать актуальный статус ГОСТА «Машины и оборудование строительные. Машины для торкретирования бетонной смеси. Терминология и технические условия» на 2016 год.
Скрыть дополнительную информацию
Выберите формат отображения документа:

Страница 1

Страница 2

Страница 3

Страница 4

Страница 5

Страница 6

Страница 7

Страница 8

Страница 9

Страница 10

Страница 11

Страница 12

Страница 13

Страница 14

Страница 15

Страница 16

Страница 17

Страница 18

Страница 19

Страница 20
межгосударственный совет по стандартизации, метрологии и сертификации
(МГС)
INTERSTATE COUNCIL FOR STANDARDIZATION, METROLOGY AND CERTIFICATION _(ISO_
МЕЖГ О С УДАР CT ВЕННЫЙ СТАНДАРТ
ГОСТ ISO 21592-2013
Машины и оборудование строительные
МАШИНЫ ДЛЯ ТОРКРЕТИРОВАНИЯ БЕТОННОЙ СМЕСИ
Терминология и технические условия
(ISO 21592:2006, IDT)
Издание официальное
Москва Стандар тинформ 2014
Предисловие
Цели, основные принципы и основной порядок проведения работ по межгосударственной стандартизации установлены ГОСТ 1.0-92 «Межгосударственная система стандартизации Основные положения» и ГОСТ 1.2-2009 «Межгосударственная система стандартизации Стандарты межгосударственные, правила и рекомендации по межгосударственной стандартизации Правила разработки, принятия, применения, обновления и отмены»
Сведения о стандарте
1 ПОДГОТОВЛЕН Обществом с ограниченной ответственностью «ИЦ «ЦНИП С ДМ» (ООО «ИЦ «ЦНИП С ДМ») на основе собственного аутентичного перевода на русский язык международного стандарта, указанного в пункте 4
2 ВНЕСЕН Техническим комитетом по стандартизации ТК 267 «Строительно-дорожные машины и оборудование»
3 ПРИНЯТ Межго суд арственным советом по стандартизации, метрологии и сертификации по переписке (протокол № 63-П от 27 декабря 2013 г.)
За принятие проголосовали:
|
Краткое наименование страны по Ж (ИСО 3166) 004-97 |
Код страны по МК (ИСО 3166) 004-97 |
Сокращенное наименование национального органа по стандартизации |
|
Азербайджан |
AZ |
Аз стандарт |
|
Армения |
AM |
Минэкономики Республики Армения |
|
Беларусь |
BY |
Госстандарт Республики Беларусь |
|
Кыргыз стан |
KG |
Кыргыз ст анд арг |
|
Молдова |
MD |
М олд ов а-С т анд арт |
|
Российская Ф едерация |
RU |
Рос стандарт |
|
Узбекистан |
UZ |
Уз стандарт |
4 Настоящий стандарт идентичен международному стандарту ISO 21592:2006 Building construction machinery and equipment — Concrete sprayingmaclunes — Terminology and commercial specifications (Машины и оборудование строительные Машины для торкретирования бетонной смеси. Терминолсгия и технические условия)
Международный стандарт разработан Техническим комитетом по стандартизации ISO/TC 127 «Машины землеройные» Международной организации по стандартизации (ISO) и утвержден Европейским комитетом по стандартизации CEN в качестве европейского стандарта без внесения изменений.
Перевод с английского языка (ei^.
Степень с о от в етствия — идентичная (IDT).
Разработанный стандарт может бьпь использован при ежегодной актуализации перечня стандартов, содержащих правила и методы исследований (испытании), а так же стандартов, в результате применения которых недобровольной основе обеспечивается соблюдение требований технического регламента Т аможенного союза «О без опасности машин и оборуд ов ания»
ГОСТ ISO 21592-2013
5 Приказом Федерального агентства по техническому регулированию и метрологии от 19 марта 2014 г № 183-ст межгосударстзенный стандарт ГОСТ ISO 21592-2013 введен в действие в качестве национального стандарта Российской Федерации с 1 января 2015 г.
6 ВВЕДЕН ВПЕРВЫЕ
Информагция об изменениях к настоящему стандарту публикуется в ежегодно)л информационном указателе *Национальные стандарпы» (по состоянию на 1 января текущего года), а текст изменений и поправок — в ежемесячном информационном указателе ^Национальные стандарты». В cry чае пересмотра (зсилены) или опилены настоящего стандарта сосгтвет-ствующее уведомление будет опубтковано в ежемесячном информсирюнном указателе «гНациональные стандарты». Соответствующая информация »•ведомление и тексты разме-щаются также в информарюнной системе общего пользования — на офигциальном сайте Федерального агентства по техническому регулированию и метрологии в сети Интернет
© Стандартинфори 2014
В Российской Федерации настоящий стандарт не может быть полностью или частично воспроизведен. тиражирован и распространен в качестве официального издания без разрешения Федерального агентства по техническому регулированию и метрологии
III
Содержание
1 Область применения………………………………………………………………
2 Термины и определения………………………………………………………….
3 Классификация……………………………………………………………………
3.1 Основная основная………………………………………………………
3.2 Типы процессов торкретирования, для которых предназначена
установка…………………………………………………………………………..
3.3 Принцип работы установки для торкретирования………………………….
3.4 Управление устройством распределения (соплсУкрыльчатка)……………..
3.5 Тип шасси………………………………………………………………………
З.бТип двигателя…………………………………………………………………
4 Технические характеристики……………………………………………………..
4.1 Основные характеристики установки для торкретирования……………….
4.2 Дополнительные данные по отдельным типам установок для
торкретирования…………………………………………………………………..
4.2.1 Установка для торкретирования роторного типа…………………..
4.2.2 Установка для торкретирования б ето но насосного типа…………..
4.3 Характеристики основных частей установки для торкретирования………
Приложение А(с прав очное) Примеры типов установок для
торкретирования, их работа, структура и габаритные размеры
IV
ГОСТ ISO 21592-2013 МЕЖГОСУДАРСТВЕННЫЙ СТАНДАРТ
Машины и оборудование строительные
МАШИНЫ ДЛЯ ТОРКРЕТИРОВАНИЯ БЕТОННОЙ СМЕСИ
Т ер мин о л от ия и технические условия
Building construction machinery and equipment. Concrete spraying machines. Terminology and commercial specifications
Дата введения — 2015-01-01
1 Область применения
Настоящий стандарт устанавливает термины и определения к машинам для торкретирования бетонной смеси, используемых для футеровки, укрепления бетонных конструкций, каменных поверхностей (шахты, тоннели), кирпичных стен, стальных конструкций и деревянных опалубок. На рисунках, приведенных в приложении А, показаны примеры типов машин для торкретирования, их конструкции и геометрические характеристики
2 Термины и определения
В настоящем стандарте применены следующие термины и определения:
2.1 установка для торкретирования бетонной смеси; установка для торкретирования цементно-песчаного раствора (concrete mixture sprayer, concrete sprayer): Машина для торкретирования бетонной смеси на строительные и другие конструкции.
2.2 торкретирование бетонной смеси (concrete mix spraying) Операция по нанесению бетонного слоя с помощью набрызга под давлением.
Издание официальное
ГОСТ I SO 21592-2013
Примечани e -Процесс торкретирования бетонной смеси разделяется на два
типа:
— сухойнабрызг,
— влажныйнабрызг
2.3 установка для влажного торкретирования смеси; влажное торкретирование (wet mixture sprayer, wet sprayer): Машина предназначена для торкретирования с использованием готовой бетонной смеси.
Пример — Установка для торкретирования бетононасосного тина, установка для торкрет нрования рот орного тн на.
Примечание —Штукатурные установки поршневого и винтового типа также могут бьпъ использованы для небольших объемов работ влажным набрызгом
2.4 установка для сухого торкретирования смеси; сухое торкретирование (dry mixture sprayer, dry sprayer): Машина, предназначенная для торкретирования бетонной смеси, которая с помощью сжатого воздуха подает цемент и заполнитель в шланг, и под определенным давлением в сопло форсунки поступает вода и происходит смешивание компонентов.
Примечание — Основной рабочий орган машины для сухого торкретирования — ротор чья роль заключается в подаче сухих компонентов из зоны атмосферного давления в камеру повышенного давления.
Примечание -В зависимости от выполняемых работ определяются следующие типы роторов:
— для сухого набрызга,
— для влажного набрызга;
— для подачи бетонной смеси и набрызга огнеупорных материалов.
2.5 установка для влажного и сухого торкр етир ования смеси;
влажное и сухое торкретирование (wet and dry mixture sprayer, wet and dry sprayer): Машина предназначена для выполнения мокрого и сухого торкретирования, в качестве альтернативы и после ее модификации.
2 6 установка для торкретирования роторного типа (rotor type sprayer ): Машина, в которой материал загружается из приемного бункера в роторную камеру, затем под давлением воздуха подается в шланг и разбрызгивается через форсунку.
Примечание-У станавку для торкретирования роторного типа используют для влажного и сухого торкретирования смеси.
2
ГОСТ ISO 21592-2013
Примечание — Например, см приложение А.
2.7 установка для торкретирования бетононасосного типа (concrete pump type sprayer ): Машина, в которой бетонная смесь поступает в бетононасос, затем под давлением воздуха разбрызгивается через форсунку.
Примечание — Например, см приложение А.
2.8 лопастное колесо (impeller type sprayer ): Машина, в которой бетонная смесь, поступая из бетононасоса, смешивается с ускорителем твердения и разбрызгивается по вращающемуся лопастному колесу.
Примечание — Например, см приложение А.
2.9 распределительная стрела (spraying boom ): Сложенная и/или разложенная стрела, крепящаяся к несущей опоре и снабженная соплом, чья роль заключается в набрызге бетонной смеси в пределах досягаемости
Примечание — Например, см приложение А
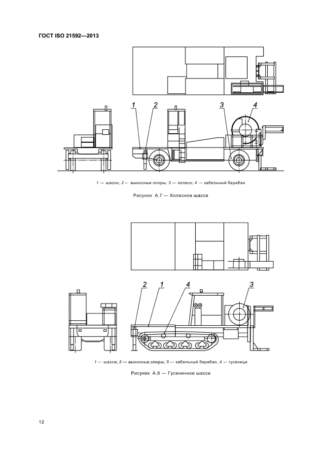
2.10 шасси (sprayer earner ): шасси, на котором смонтирована установка для торкретирования, и обеспечивающее ее передвижение.
Примечание — Для монтажа установки для торкретирования, как правило, используются колесные, гусеничные и железнодорожные шасси.
2.11 очистительное устройство (cleaning device ): Устройство, используемое для очистки смесителя, торкрет-форсунки, трубопровода и сопла.
2.12 кабельный барабан (cable reel): Устройство, используемое для фиксации электрических кабелей, по которым осуществляется электропитание бетононасоса, воздушного компрессора и других элементов машины.
2.13 ускоритель твердения (quick-setting admixture ): Добавка, вводимая в бетонную смесь до форсунки для ускорения процесса твердения
2.14 рабочая масса (operating mass): Масса, которая включает в себя основные единицы в рабочем состоянии, распределительную стрелу (если таковая имеется), шасси (если таковое имеется), балласт (если таковой имеется), гидравлическую, охлаждающую жидкость для очистки, заполненные баки, ручные инструменты и крепления, предусмотренные изготовителем
3 Классификация
3.1 Основная классификация
ГОСТ I SO 21592-2013
Конструкцию установки для торкретирования определяют по следующим критериям:
— процесс торкретирования, для которого предназначена установка (см
3.2);
— принцип работы (см. 3.3);
-управление устройством распределения (сопло/крыльчатка) (см. 3.4); -типшасси (см. 3.5),
— тип двигателя (см. 3.6).
Примеры представлены на рисунках с А. 1 по А. 14.
Ъ2 Тилы процессов торкретирования, для которых предназначена установка
У становк и для торкр етир ования кл ас с иф иц ируют по пр о це с су:
— влажное торкр етир ование/установка для влажного торкретирования смеси (см. рисунок А1);
— сухое торкр етир ование/установка для сухого торкретирования смеси,
— влажное и сухое торкретирование/установка для влажного и сухого торкретирования смеси.
33 Принцип работы установки для торкр етир ования Торкрет установки классифицируют по типу работы:
— установка для торкретирования роторного типа/роторная установка,
— установка для торкретирования бетононасосного типа/бетононасос
3.4 Управление устройством распределения (соп-
л о крыль чатка)
Установки для торкретирования классифицируют по управлению устройством распределения,
— ручное управление;
— механическое управление устройствами распределения бетонной смеси, установленными на стреле.
ГОСТ ISO 21592-2013
35 Тип шасси
Торкрет установки классифицируют по типу транспортного средства:
— на самоходном, колесном или гусеничном шасси,
— буксируемый на собственном шасси,
— на рельсовом ходу,
— транспортируемый
3.6 Тип двигателя
Установки для торкретирования классифицируют по типу двигателя:
— электрические,
-внутреннего сгорания с искровым зажиганием,
-внутреннего сгорания с воспламенением от сжатия,
— комбинированные.
4. Технические характеристики
4.1 Основные характеристики установки для торкретирования
Указывают следующее
a) модель и тип,
b) наименование производителя,
c) применение (влажное или сухое или влажное/сухое торкретирование),
d) производительность установки для торкретирования:
1) бетон, который будет использован:
— максимальный размер заполнителя, в миллиметрах (мм),
— минимальная осадка конуса, в сантиметрах (см),
2) производительность установки для торкретирования, в кубических метрах в час (м3/ч),
e) рабочая зона (см рис. А. 13 и А 14), в миллиметрах (мм),
£) максимальное расстояние подачи:
— влажной смеси, в метрах (м).
ГОСТ I SO 21592-2013
— сухой смеси, в метрах (м);
g) мощность установки, в киловаттах (кВт);
h) напряжение и частота электропитания, в вольтах (В) и герцах (Гц);
i) габаритные размеры:
— длина, в миллиметрах (мм),
-ширина,в миллиметрах (мм),
— высота, в миллиметрах (мм),
j) рабочая масса, в килограммах (кг).
42 Дополнительные данные по отдельным типам установок для торкретирования
4.2.1 Установка для торкретирования роторного типа (см. рисунок А.2, А.4 и А.9)
Указывается следующее:
a) метод управления,
b) рабочее давление воздуха, в мегапаскалях (мПа) или барах, бар,
c) расход воздуха, в кубических метрах в минуту (м3/мин);
d) внутренний диаметр шланга, в миллиметрах (мм),
e) емкость бункера, в кубических метрах (м3),
£) высота загрузки, в миллиметрах (мм),
g) основной электродвигатель:
-тип,
— мощность и обороты, в киловаттах (кВт) и мин’1,
— напряжение и частота, в вольтах (В) и герцах (Гц),
h) вибрационный двигатель:
— тип,
— мощность и обороты, в киловаттах (кВт) и мин’1,
— напряжение и частота, в вольтах (В) и герцах (Гц).
4.2.2 Установка для торкретирования бетононасосного типа (см. рисунок А.ЗиАЮ)
б
ГОСТ ISO 21592-2013
Указывается следующее:
a) метод управления,
b) диаметр рабочего цилиндра, в миллиметрах (мм),
c) ход рабочего цилиндра, в миллиметрах (мм),
d) количество цилиндров;
e) давление бетона, в мегапаскалях (мПа) или барах, бар,
£) давление воздуха, в мегапаскалях (мПа) или барах, бар,
g) потребление воздуха, в кубических метрах в минуту (м3/мин);
h) емкость бункера, в кубических метрах (м3),
i) высота загрузки, в миллиметрах (мм),
j) тип смешивающей/активационной установки (агрегата),
k) гидравлический привод,
l) гидравлический насос:
— модель,
— максимальный объем на выходе, литры в минуту (л/мин);
— давление на выходе, в мегапаскалях (мПа) или барах, бар,
2) объем масляного бака, в литрах (л),
3) двигатель:
— тип,
— мощность и обороты, в киловаттах (кВт) и мин1,
— напряжение и частота, в вольтах (В) и герцах (Гц).
43 Характеристики основных частей установки для торкретирования
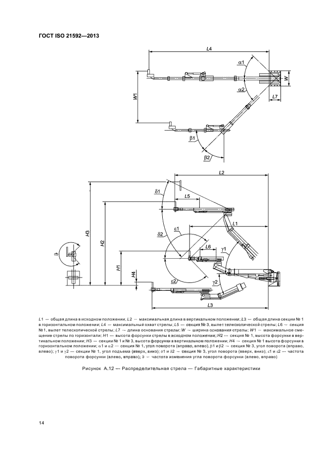
4.3.1 Распределительная стрела (см. рисунок А.6)
Укапывается следующее:
a) модель,
b) изготовитель,
c) принцип работы (складывающаяся или телескопическая);
d) поворотный механизм, угол поворота, в градусах.
7
ГОСТ I SO 21592-2013
e) первая секция:
— угол наклона вверх/вниз, в градусах,
— вылет, в миллиметрах (мм);
f) вторая секция:
— угол наклона вверх/вниз, в градусах,
— вылет, в миллиметрах (мм),
g) третья секция:
— угол наклона вверх/вниз, в градусах,
— вылет, в миллиметрах (мм),
h) форсунка:
— принцип работы,
— диаметр форсунки, в миллиметрах (мм),
i) гидравлический привод,
1) гидравлический насос:
— модель,
— максимальный объем на выходе, литры в минуту (л/мин), -давление на выходе, в мегапаскалях (мПа) или барах, бар,
2) объем масляного бака, в литрах (л);
3) электродвигатель:
— тип,
— мощность и обороты, в киловаттах (кВт) и мин’1,
— напряжение и частота, в вольтах (В) и герцах (Гц),
j) габаритные размеры в транспортном положении:
— длина, в миллиметрах (мм),
-ширина,в миллиметрах (мм),
— высота, в миллиметрах (мм),
k) масса, в килограммах (кг).
4.3.2 Шасси (см. рисунок АЛ и А.8)
Указывают следующее:
S
ГОСТ ISO 21592-2013
a) модель,
b) изготовитель,
c) скорость движения, в километрах в час (км/ч);
d) рабочая скорость передвижения при торкретировании, в метрах в минуту (м/мин),
e) максимальный уклон рабочей площадки, в процентах (Уо);
f) метод управления (механический, гидравлический, другой);
g) минимальный радиус поворота, в миллиметрах (мм);
h) характеристики шин или траков:
— передних колес (марка, давление), в мегапаскалях (МПа) или барах, бар,
-заднихколес (марка, давление),в мегапаскалях (МПа) или барах, бар,
— ширина гусениц, в миллиметрах (мм),
— шаг звена гусеницы, в миллиметрах (мм);
i) номер сертификата соответствия требованиям к выбросам двигателями вредных (загрязняющих) веществ,
j) устройство очистки отработанных газов двигателя:
— модель,
— изготовитель,
— серийный номер,
k) характеристики основного двигателя:
— модель,
— изготовитель,
— мощность, в киловаттах (кВт);
— номинальный крутящий момент, в ньютонах на метр (Нм),
— объем,в кубических сантиметрах (см3),
— обороты, в мин’1,
— номера цилиндров.
9
— система охлаждения.
ГОСТ I SO 21592-2013
1) осветительные приборы:
— передние,
-задние,
-рабочие фары,
т) выносные опоры,
— модель,
— передние,
-задние.
4.3.3 Очистительное устройство
Указывают следующее:
a) модель,
b) расход жидкости, в литрах в минуту (л/мин);
c) давление на выходе, в мегапаскалях (МПа) или барах, бар,
d) емкость бака, в литрах (л);
e) электродвигатель:
-тип;
— мощность и обороты, в киловаттах (кВт) и мин’1,
— напряжение и частота, в вольтах (В) и герцах (Гц);
£) габаритные размеры:
— длина, в миллиметрах (мм);
-ширина,в миллиметрах (мм);
— высота, в миллиметрах (мм); g) масса, в килограммах (кг).
4.3.4 Кабельный барабан Указывают следующее:
a) модель,
b) длина кабеля, в метрах (м);
c) тип кабеля,
d) метод управления
10
ГОСТ ISO 21592-2013
4.3.5 Воздушный компрессор(ы)
Указывают следующее:
a) для блока№1:
— объем на выходе, в кубических метрах в минуту (м3/мин); -давление на выходе, в мегапаскалях (МПа) или барах, бар,
b) для блок а №2 (если это требуется для большой емкости установки для торкретирования):
— объем на выходе, в кубических метрах в минуту (м3/мин), -давление на выходе, в мегапаскалях (МПа) или барах, бар.
4.3.6 Система введения ускорителя твердения бетонной смеси Указывают следующее:
a) тип,
b) управление:
— механическое,
— электронное.
11
ГОСТ ISO 21592-3013
Приложение А (справочное)
Пример ы типов установок для торкр етирования, их работа, структур а и
габаритные размеры
единицы измерения в метрах
Альтернативный тип сопла
1 — влажная смесь, 2 — воздух под давлением, 3 — установка роторного типа,
4 — пневматическая передача (тонкой струйкой); 5 — воздух, 6 — блок дозировки ускорителя, 7 — жидкий ускоритель, 8 — ускоритель + воздух, 9 — сопло, 10-ускоритель твердения, 11 — бетон.
Рисунок А 1 -Работа установки для влажного торкретирования смеси —
Установка для торкретирования роторного типа
ГОСТ ISO 21592-2013
1 2
L — длина*5, W— ширина*5, H- высота*5,1 — корпус двигателя, 2 — бункер,
2 — регулятор скорости, 4 — перепускной клапан; 5 — вибратор, 6 — монтажная плита, 7- электропривод, 8 — коробка передач, 9 — плита ротора; 10 -ротор, 11 — воздушная камера ** Габаритные размеры
Рисунок А. 2 — Установка для торкретирования роторного типа
13
1 5 2 6 3 U
L — длина4*, \V — ширина4*, Н- высота4*, 1 — рама, 2 — промывочная камера, 2 -внешний вибратор, 4 — сито бункера, 5 — гидроцилиндр; 6 — рабочий цилиндр, 7 — активатор, 8 — точка разгрузки бетонной смеси; 9 — бункер; 10 — нижний клапан 4* Габаритные размеры
Рисунок А. 3 — Установка для торкретирования б ето но насосного типа
14
ГОСТ ISO 21592-2013
5 2 4 6 3 8 7 11
1
L — длина*5, W- ширина*5, H- высота*5; 1 — корпус двигателя, 2 — бункер;
3 — регулятор скорости, 4 — вращающийся затвор, 5 — перистальтический шланг; 6 — вал; 7 — электропривод, 8 — коробка передач; 9 — ротор, 10 — выходное отверстие; 11 — воздухоприемник *5 Габаритные размеры.
Рисунок А.4 — Роторная установка для торкретирования
ГОСТ I SO 21592-2013
L — длина*5, W- ширина*5, H — высота*5; 1 — опорная плита, 2 — гидравлический мотор, 3 — верхний корпус, 4 — нижний корпус; 5 — порт загрузки бетона, 0′ — крыльчатка, 7 — порт разгрузки; 8 — форсунка ускорителя твердения,
*5 Габаритные размеры.
Рисунок А. 5 — Рабочий орган форсунки
16




