Ящики из гофрированного картона. Общие технические условия
Заменяет

Страница 1

Страница 2

Страница 3

Страница 4

Страница 5

Страница 6

Страница 7

Страница 8

Страница 9

Страница 10

Страница 11

Страница 12

Страница 13

Страница 14

Страница 15

Страница 16

Страница 17

Страница 18

Страница 19

Страница 20

Страница 21

Страница 22

Страница 23

Страница 24

Страница 25

Страница 26

Страница 27
ГОСТ 9142-90 Ящики из гофрированного картона. Общие технические условия Стр. 1 из 27.
ГОСТ 9142-90
МЕЖГОСУДАРСТВЕННЫЙ СТАНДАРТ
ЯЩИКИ ИЗ ГОФРИРОВАННОГО КАРТОНА
ОБЩИЕ ТЕХНИЧЕСКИЕ УСЛОВИЯ
Издание официальное
ИПК ИЗДАТЕЛЬСТВО СТАНДАРТОВ Москва
к ГОСТ 9142-90 Ящики из гофрированного картона. Общие технические условия
|
В каком месте |
Напечатано |
Дм™ быть |
|
Пункт 6.1. Второй абзац |
см. приложение 5 |
см. приложение б |
|
См, Изменение № 3, ИУС 6- |
-2005 |
|
|
Пункт 2,5.1. Последний абзац |
допускается на ящики наносить другую информацию |
допускается не наносить маркировку на ящики или наносить другую информацию |
(ИУС №10 2005 г.)
УДК 621.798.1:676.846-408.8:006.354
МЕЖГОСУДАРСТВЕННЫЙ стандарт
Группа Д74
ЯЩИКИ ИЗ ГОФРИРОВАННОГО КАРТОНА
гост
9142-90
Общие технические условия
Boxes of corrugated board. General specifications
MKC 55.160 ОКП 54 7110
Дата введения 01.01.92
la. ОБЛАСТЬ ПРИМЕНЕНИЯ
Настоящий стандарт распространяется на ящики из гофрированного картона, предназначенные для упаковывания пищевой и промышленной продукции.
Обязательные требования к качеству ящиков изложены в пп. 2.2.3 и 4.7. Дополнительные требования, контролируемые при проведении сертификационных испытаний, устанавливают в НД на ящики для конкретных видов продукции, контрактах или договорах на поставку продукции с учетом особенностей упаковываемой продукции.
(Введен дополнительно, Изм. № 2).
1. ОСНОВНЫЕ ПАРАМЕТРЫ И РАЗМЕРЫ
1.1. Ящики должны изготовляться с четырехклапанными дном и крышкой исполнений, указанных в табл. 1.
Развертка ящика исполнения А приведена в приложении 1.
Допускается изготовлять ящики с комбинацией различных исполнений.
Допускается изготовлять ящики с другим исполнением клапанов, с учетом особенностей упаковываемой продукции.
Допускается изготовлять ящики других типов, приведенных в приложении 2.
(Измененная редакция, Изм. № 1).
1.2. Внутренние и наружные размеры ящиков устанавливают в НД на конкретные виды ящиков с учетом массы, габаритов, особенностей упаковываемой продукции, с учетом требований ГОСТ
21140.
1.3. Отношение длины ящика к его ширине рекомендуется принимать не более 2,5 : 1; отноше
ние высоты к ширине — не более 2 : 1 и не менее 0,5 : 1. Изготовление ящиков высотой менее 100 мм или с другим соотношением сторон допускается для изделий, конструкция, размеры, а также требования к упаковке которых не позволяют выполнить указанные выше требования.
1.4. Допускаемые отклонения внутренних размеров ящиков не должны превышать:
3 мм — для ящиков, изготовленных из гофрированного картона типа Т по ГОСТ 7376 и гофрированного картона с дублированным гофрированным слоем марки ДГС по НД;
5 мм — для ящиков, изготовленных из картона типа П по ГОСТ 7376.
(Измененная редакция, Изм. № 2).
Издание официальное Перепечатка воспрещена
© Издательство стандартов, 1990 © ИПК Издательство стандартов, 2004
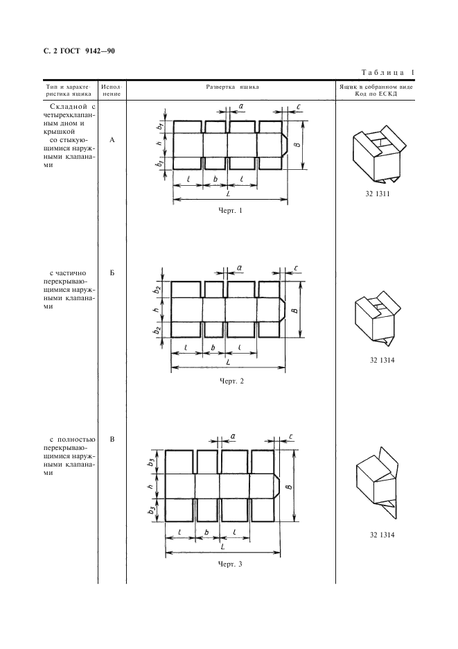
Таблица 1
Ящик в собранном виде Код по ЕСКД
Тип и характеристика ящика
Испол
нение
Развертка ящика
|
|||||||||||||||||||||||||||||||
|
Черт. 1 |
|||||||||||||||||||||||||||||||
а
Складной с четырехклапанным дном и крышкой со стыкующимися наружными клапанами
|
32 1311 |
с частично перекрывающимися наружными клапанами
|
32 1314 |
<1
Черт. 2
а
В
|
32 1314 |
со
-o’
с полностью перекрывающимися наружными клапанами
Черт. 3
Тип и характеристика ящика
Испол
нение
Развертка ящика
Ящик в собранном виде Код по ЕСКД
СО стыкующимися внутренними клапанами и частично перекрывающимися наружными клапанами
|
32 1316 |
-с?
СО
ПЛ
о
Черт. 4
Д
со стыкующимися наружными и внутренними клапанами
32 1312
Черт. 5
|
1 |
1 |
n |
a — |
L -*=- |
||
|
4t- Q |
1 |
ii |
CQ V |
|||
|
1 С |
t |
\ / |
||||
|
ts. c> |
||||||
|
L |
b |
L |
-* |
|||
|
— |
L |
|||||
Черт. 6
с укороченными наружными и внутренними клапанами на крышке и со стыкующимися наружными клапанами на дне
|
32 1313 |
1.5. Зазор в стыке наружных или внутренних клапанов при сборке ящиков исполнений А, Г, Д, Е, Ж, 3 (табл. 1), изготовленных из картона типа Т и гофрированного картона с дублированным гофрированным слоем марки ДГС, должен быть не более 5 мм, типа П — не более 10 мм.
С. 4 ГОСТ 9142-90
Допускается зазор в стыке наружных или внутренних клапанов до 20 мм для ящиков с продукцией, упакованной в потребительскую тару и ящиков, укомплектованных обечайками, прокладками (см. черт. 21, 28 приложения 5).
(Измененная редакция, Изм. № 1).
1.6. Ящики применяют со вспомогательными упаковочными средствами: обечайками, вкладышами, перегородками, решетками, прокладками, амортизаторами (приложение 5).
Допускаются другие конструкции вспомогательных упаковочных средств.
Конструкции и размеры вспомогательных упаковочных средств устанавливают в НД или чертежах на ящики для конкретных видов продукции.
ГОСТ 9142-90 С. 5
Условные обозначения размеров, применяемые в чертежах
L — длина развертки, мм; В — ширина развертки, мм;
I — длина ящика, мм; b — ширина ящика, мм;
h — высота ящика, мм; Ь] = 0,5b (исполнения А, Д, Е, Ж, 3);
/— величина перекрытия клапанов, определяе- Ь2 = 0,5b + /(исполнения Б, Г);
мая конструктивно; Ьъ = b (исполнение В);
Ь4 = (0,1 — 0,5) b (исполнение Е);
Ь5 = 0,51 (исполнения Г, Д);
а — ширина просечки 4—8 мм;
с — ширина соединительного клапана 35—45 мм.
Примечание. В ящике исполнения Ж размеры I, b корпуса 1 увеличивают с учетом толщины картона корпуса 2.
(Измененная редакция, Изм. № 1, 2).
2. ТЕХНИЧЕСКИЕ ТРЕБОВАНИЯ
2.1. Ящики должны изготовляться в соответствии с требованиями настоящего стандарта по НД или чертежам на ящики для конкретных видов продукции, утвержденным в установленном порядке.
(Измененная редакция, Изм. № 2).
2.2. Характеристики
2.2.1. Показатели механической прочности ящиков: сопротивление сжатию или прочность при штабелировании, сопротивление ударам при свободном падении, горизонтальному удару устанавливают в НД на ящики для конкретных видов продукции, в зависимости от способности продукции воспринимать или не воспринимать нагрузку при штабелировании.
2.2.2. Способность продукции воспринимать нагрузку при штабелировании устанавливают в НД на упаковываемую продукцию с учетом требований, предъявляемых к ее упаковке, хранению и транспортированию.
2.2.3. Для ящиков в зависимости от вида упаковываемой продукции предусматривают показатели механической прочности, указанные в табл. 2.
|
Таблица 2 |
||||||||||||||||||||||||||||||||||||||||||||||||
|
||||||||||||||||||||||||||||||||||||||||||||||||
|
* Для ящиков с грузом массой до 25 кг включительно. |
||||||||||||||||||||||||||||||||||||||||||||||||
Примечание. (+) испытание проводят; (—) испытание не проводят.
Допускается в НД на ящики для конкретных видов продукции устанавливать другие показатели с их нормами.
С. 6 ГОСТ 9142-90
2.2.4. Усилие сопротивления ящиков сжатию (Р), в ньютонах (Н) должно быть не ниже вычисленного по формуле
Р = 9,81 • К • т ■ Н ~ ^ ,
‘hi
где К — коэффициент запаса прочности, учитывающий нагрузки, возникающие при транспортировании и хранении и равный:
1,6 — при хранении продукции до 30 дней;
1,65 — при хранении продукции от 31 до 100 дней;
1,85 — если срок хранения продукции в НД не оговорен; т — предельная масса груза в ящике, кг;
Н — высота штабеля, см;
hu — наружная высота ящика, см.
Высоту штабеля (Н) устанавливают в НД на ящики для конкретных видов продукции с учетом свойств упаковываемой продукции полной вместимости или грузоподъемности транспортных средств.
Если высота штабеля не установлена, то при определении расчетного усилия сопротивления сжатию ее принимают равной не менее 250 см. Наружную высоту ящика (hu) принимают равной внутренней его высоте плюс 1,0 см для ящика, изготовленного из картона типа Т и марки ДГС; 2,0 см — из картона типа П.
2.2.1—2.2.4. (Измененная редакция, Изм. № 2).
2.2.5. Массу груза (М), в килограммах, которую должны выдерживать ящики, при определении сопротивления сжатию при штабелировании в Н вычисляют по формуле
М= 0,1 К-Р,
где К — коэффициент 0,82, учитывающий условия нагрузки ящиков в штабеле;
Ь — усилие сопротивления ящика сжатию, Н, рассчитанное по формуле п. 2.2.4.
При определении прочности при штабелировании время выдержки ящика под нагрузкой 30 мин. (Измененная редакция, Изм. № 1).
2.2.6. Показатель сопротивления ящиков горизонтальному удару устанавливают в НД на ящики для конкретных видов продукции. При этом расстояние, проходимое тележкой, должно быть равно
0,6 м.
Если в НД нет других указаний, то последовательность и количество ударов устанавливают по ГОСТ 25064, при этом скорость соударения принимают не менее 1,4 м/с.
2.2.7. Высота сбрасывания ящиков при определении числа ударов при свободном падении должна соответствовать указанной в табл. 3. Число и последовательность сбрасываний устанавливают в НД на ящики для конкретных видов продукции.
|
Таблица 3 |
||||||||||||||||||||||||
|
||||||||||||||||||||||||
2.2.8. Ящики изготовляют из одного листа картона.
Допускается изготовлять ящики из двух и более листов картона при условии обеспечения норм показателей механической прочности, устанавливаемых в НД на ящики для конкретных видов продукции.
2.2.7, 2.2.8. (Измененная редакция, Изм. № 2).
2.2.9. Направление гофров картона должно быть параллельно высоте ящика.
Ящики для продукции, воспринимающей нагрузку при штабелировании, могут иметь другое направление гофров.
ГОСТ 9142-90 С. 7
2.2.10. На развертке ящиков наносят линии рилевки (сгиба). Линии рилевки наносят равномерно и четко по всей длине. Они должны быть взаимно перпендикулярными и обеспечивать формирование ящиков с заданными внутренними размерами.
Величина отклонения от перпендикулярности линий рилевки не должна превышать 10 мм на 1 м длины линии.
2.2.11. Ящики по соединительному клапану сшивают или склеивают, или сшивают и склеивают.
2.2.12. Вид скрепления ящика и исполнение соединительного клапана устанавливают в НД или рабочих чертежах на ящики для конкретных видов продукции (приложение 4).
2.2.13.Скобы располагают под любым углом, параллельно или перпендикулярно высоте ящика.
Расстояние от крайних скоб до поперечных кромок соединительного клапана должно быть не
более 25 мм, до продольных кромок — не менее 5 мм.
Расстояние между скобами в миллиметрах должно быть не более:
60 — при массе упаковываемой продукции до 10 кг;
45 » » » » » 20 кг;
35 » » » » св. 20 кг.
При комбинированном шве (сшивка и склейка) расстояние между скобами устанавливают в НД или чертежах на конкретные виды ящиков.
2.2.12, 2.2.13. (Измененная редакция, Изм. № 2).
2.2.14. В ящиках не допускаются:
смещение высечки клапанов по высоте ящиков более 10 мм;
задиры поверхностного слоя с наружной стороны ящика площадью более 100 см2 на 1 м2 площади;
расклейка картона более 50 см2 на 1 м2 площади;
разрывы, разрезы, расслоение кромок клапана более 10 мм от края кромки, пятна размером более 20 мм в наибольшем измерении.
На поверхности ящика допускаются вмятины, образующиеся от транспортных ремней, при сшивке, склейке или упаковывании ящиков в кипы.
2.2.15. Клапаны ящиков должны выдерживать не менее 10-ти двойных перегибов на 180° без образования трещин.
Допускаются трещины длиной не более 25 мм с внутренней стороны поверхности ящика без обнажения гофрированного слоя по линии сгиба клапана.
(Измененная редакция, Изм. № 2).
2.2.16. На наружную поверхность ящиков допускается наносить художественное оформление в соответствии с образцом-эталоном.
2.3. Требования к сырью, материалам и вспомогательным упаковочным средствам.
2.3.1. Для изготовления ящиков и вспомогательных упаковочных средств (черт. 21—29, приложение 5) применяют гофрированный картон типов Т и П по ГОСТ 7376 или гофрированный картон с дублированным гофрированным слоем марки ДГС по нормативной документации.
Показатели качества картона марки ДГС приведены в табл. 8 приложения 3.
Допускается применять вспомогательные упаковочные средства из других материалов и видов картона.
Для вкладышей и обечаек (черт. 21, 22) руководствуются требованиями пп. 2.2.9—2.2.11; 2.3.6; 2.3.7; 4.4.
2.3.2. Ящики с вкладышами, решетками, перегородками (черт. 22—27, приложение 5) или без них, применяемые для продукции, не воспринимающей нагрузку при штабелировании, изготовляют из гофрированного картона по ГОСТ 7376 или картона с дублированным гофрированным слоем с сопротивлением торцовому сжатию вдоль гофров, указанному в табл. 6 приложения 3.
2.3.3. Ящики, применяемые для продукции, воспринимающей нагрузку при штабелировании, изготовляют из гофрированного картона по ГОСТ 7376 или гофрированного картона с дублированным гофрированным слоем марки ДГС с сопротивлением продавливанию (удельным сопротивлением разрыву по линии рилевки) указанному в табл. 7 приложения 3.
2.3— 2.3.3. (Измененная редакция, Изм. № 2).
2.3.4. Ящики, предназначенные для продукции, не воспринимающей нагрузку при штабелировании, в которых предусматривается применение вкладышей, решеток, перегородок (приложение 5, черт. 22—27) изготовляют из гофрированного картона по ГОСТ 7376 с сопротивлением торцовому сжатию вдоль гофров указанному в табл. 6 приложения 3.
С. 8 ГОСТ 9142-90
2.3.5. Марку картона для изготовления ящиков и комплектующих изделий предусматривают в НД или рабочих чертежах на ящики для конкретных видов продукции.
(Измененная редакция, Изм. № 2).
2.3.6. Для сшивки ящиков применяют проволоку диаметром 0,7—1,0 мм по ГОСТ 3282 или стальную плющеную ленту шириной 2,5 мм и толщиной 0,4—0,6 мм по ГОСТ 10234.
2.3.7. Для склейки ящиков применяют поливинилацетатную дисперсию по ГОСТ 18992.
Допускаются другие материалы, обеспечивающие качество склейки и сшивки ящика.
2.3.8. Материалы, применяемые для изготовления ящиков и вспомогательных упаковочных средств, предназначенных для упаковывания пищевой продукции, должны быть допущены органами санитарно-эпидемиологического надзора.
(Введен дополнительно, Изм. № 2).
2.4. Комплектность
2.4.1. В комплект ящика входят вспомогательные упаковочные средства.
Допускается по согласованию с потребителем поставлять ящики без вспомогательных упаковочных средств.
2.5. Маркировка
2.5.1. На ящики должна быть нанесена маркировка, характеризующая тару по ГОСТ 14192.
2.5.2. Транспортная маркировка — по ГОСТ 14192.
2.5.3. В нормативной документации на ящики для конкретных видов продукции указывают место нанесения знака соответствия (для сертифицированной продукции) или номер сертификата — в товаросопроводительной документации.
(Введен дополнительно, Изм. № 2).
2.6. Упаковка
2.6.1. Ящики и вспомогательные упаковочные средства упаковывают в кипы и транспортные пакеты.
Допускается по согласованию с потребителем при формировании транспортных пакетов ящики и вспомогательные упаковочные средства в кипы не упаковывать.
В каждой кипе должны быть ящики или вспомогательные упаковочные средства одного размера.
2.6.2. Кипы обвязывают полипропиленовым шнуром или лентой по НД.
Допускается обвязывать кипы другими обвязочными материалами при условии соблюдения качества обвязки.
Кипу обвязывают по одной из сторон одним или двумя поясами. Допускается обвязывать кипы крестообразно.
(Измененная редакция, Изм. № 2).
3. ПРИЕМКА
3.1. Ящики принимают партиями. Партией считают количество ящиков одного исполнения и размера, оформленное одним документом о качестве.
Документ о качестве должен содержать:
товарный знак и наименование предприятия-изготовителя;
исполнение и размеры ящика;
обозначение НД на ящики для конкретного вида продукции;
штамп отдела технического контроля.
(Измененная редакция, Изм. № 2).
3.2. При контроле качества ящиков проводят приемо-сдаточные испытания.
При приемо-сдаточных испытаниях проводят контроль внешнего вида ящиков, качества склейки и сшивки, размеров, числа двойных перегибов по линии рилевки (сгиба) клапанов.
Для контроля ящиков из разных мест партии отбирают выборку в объемах, указанных в табл. 4.
(Измененная редакция, Изм. № 1).
3.3. Партию принимают по результатам контроля первой выборки, если количество ящиков, не соответствующих требованиям настоящего стандарта, в первой выборке меньше или равно приемочному числу, указанному в табл. 4, и бракуют, если это количество больше или равно браковочному числу, указанному в табл. 4.
ГОСТ 9142-90 С. 9
|
Таблица 4 шт. |
||||||||||||||||||||||||||||||||||||||||||||||||||||||
|
Если количество ящиков, не соответствующих требованиям настоящего стандарта, в выборке больше приемочного, но меньше браковочного числа, указанных в табл. 4, то отбирают вторую выборку.
Партию принимают по результатам контроля второй выборки, если количество ящиков, не соответствующих требованиям настоящего стандарта, в двух выборках меньше или равно приемочному числу, указанному в табл. 4, и бракуют, если это количество больше или равно браковочному числу, указанному в табл. 4.
3.4. При разногласиях в оценке механической прочности ящиков производят контрольные испытания в соответствии с табл. 2.
(Измененная редакция, Изм. № 1).
3.5. Допускается в НД на ящики для конкретных видов продукции устанавливать другие планы и порядок проведения приемочного статистического контроля качества ящиков по ГОСТ 182421, а также устанавливать показатели и порядок проведения периодических испытаний.
(Измененная редакция, Изм. № 2).
3.6. (Исключен, Изм. № 1).
4. МЕТОДЫ КОНТРОЛЯ
4.1. Если в НД на ящики для конкретных видов продукции нет других указаний, то кондиционирование проводят по режиму 6 ГОСТ 21798 в течение 24 ч.
4.2. Количество образцов для контроля должно соответствовать указанному в НД на ящики для конкретных видов продукции.
(Измененная редакция, Изм. № 2).
4.3. Внешний вид, качество склейки и сшивки ящиков контролируют визуально.
4.4. Внутренние размеры ящиков, обечаек, вкладышей, смещение высечки клапанов ящиков контролируют измерением расстояния между ближайшими параллельными осями рилевок развертки ящика (приложение 1) за вычетом припусков по линии рилевки.
4.5. Для определения числа двойных перегибов по линии рилевки (сгиба) клапанов ящики в сложенном виде кладут на плоскую поверхность и 10 раз перегибают клапаны по ширине ящика на 180°.
4.6. Соответствие ящиков пп. 1.3; 1.4; 1.5; 2.2.13; 2.2.14; 2.2.15 контролируют измерением линейкой по ГОСТ 427 или рулеткой по ГОСТ 7502 с погрешностью не более 1,0 мм.
4.7. Контроль механической прочности ящиков проводят:
определением сопротивления сжатию по ГОСТ 18211 с приложением сжимающих нагрузок перпендикулярно к дну и крышке;
определением прочности при штабелировании по ГОСТ 25014.
Прочность при штабелировании проверяют при отсутствии пресса для испытания ящиков на определение показателя сопротивления сжатию;
определение сопротивления ударам при свободном падении — по ГОСТ 18425;
определение сопротивления горизонтальному удару — по ГОСТ 25064.
С. 10 ГОСТ 9142-90
5. ТРАНСПОРТИРОВАНИЕ И ХРАНЕНИЕ
5.1. Ящики и вспомогательные упаковочные средства транспортируют всеми видами транспорта в чистых, сухих, крытых транспортных средствах в соответствии с правилами перевозки грузов, действующими на соответствующем виде транспорта.
5.2. Допускается по согласованию с потребителем транспортирование кип без формирования в транспортные пакеты.
5.3. Ящики и вспомогательные упаковочные средства хранят в закрытых помещениях. Условия хранения — 2, 3 по ГОСТ 15150.
6. УКАЗАНИЯ ПО ЭКСПЛУАТАЦИИ
6.1. Ящики с упакованной продукцией должны быть укупорены.
Укупоривание ящиков производят оклеиванием клеевой лентой, обтягиванием металлической или полимерной лентой, склеиванием или сшивкой скобами между собой клапанов ящика (см. приложение 5).
Допускаются другие виды укупоривания ящиков с продукцией.
6.2. Ящики с упакованной продукцией укладывают в штабели без смещений.
7. ТРЕБОВАНИЯ РЕСУРСОСБЕРЕЖЕНИЯ И ЭКОЛОГИИ
7.1. В целях ресурсосбережения и исключения загрязнения окружающей среды отходы, образующиеся при изготовлении ящиков, и ящики, бывшие в употреблении, должны быть использованы для переработки в качестве макулатуры.
Раздел 7. (Введен дополнительно, Изм. № 2).
ГОСТ 9142-90 С. 11
ПРИЛОЖЕНИЕ 1 Справочное
РАЗВЕРТКА ЯЩИКА ИСПОЛНЕНИЯ А
Условные обозначения внутренних размеров ящика
L — длина развертки, мм; В — ширина развертки, мм; I — длина ящика, мм; b — ширина ящика, мм; h — высота ящика, мм; а — 4—8 мм; с — 35—45 мм; а — не более 55°; S — ширина картона, мм
Черт. 9
ПРИЛОЖЕНИЕ 1. (Измененная редакция, Изм. № 1).
С. 12 ГОСТ 9142-90
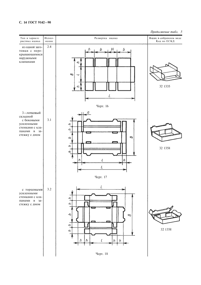
ПРИЛОЖЕНИЕ 2 Справочное
Таблица 5
Ящик в собранном виде Код по ЕСКД
Тип и характеристика ящика
Испол
нение
Развертка ящика
1 — телескопический со съемной крышкой, со сплошным дном
В’
|
32 1324 |
1.1
Черт. 10 L
1.2
из двух корпусов, склеенных, сшитых
L Ь L
inn not
32 1321 32 1322
ОI
L’
t!
Черт. 11
L
со съемными крышкой и дном, с цельным корпусом
|
32 1326 |
L’
Черт. 12
1.3
о
a
•О
L‘
Тип и характеристика ящика
Испол
нение
Развертка ящика
Ящик в собранном виде Код по ЕСКД
2—оберточный складной из одной заготовки со стыкующимися наружными и внутренними клапанами
2.1
■ |<\,
|
32 1323 |
‘|<\|
Черт. 13
_b_
h 2
Ь_
2 h
2.2
из двух заготовок со стыкующимися наружными и внутренними клапанами
В
32 1332
Черт. 14
Ь
2 h
Ь
h Т
2.3
из трех прямоугольных заготовок со стыкующимися наружными клапанами
|
32 1331 |
Черт. 15
Тип и характеристика ящика
Испол
нение
Развертка ящика
Ящик в собранном виде Код по ЕСКД
из одной заготовки с перекрывающимися наружными клапанами
2.4
h b Н b
CQ
|
32 1335 |
Черт. 16
а
3.1
-Г\.
|
32 1358 |
3—лотковый складной с боковыми усиленными стенками с клапанами в застежку с дном
Л—С
Черт. 17
3.2
с торцовыми усиленными стенками с клапанами в застежку с дном
со
|
32 1358 |
«W V-
L
;
Черт. 18
Тип и характеристика ящика
Испол
нение
Развертка ящика
Ящик в собранном виде Код по ЕСКД
с клапанами без застежки с дном с отверстиями для ручек
3.3
|
32 1351 |
4. Пенал из двух сшитых (склеенных) разверток
4.1
Черт. 20
С. 16 ГОСТ 9142-90
ПРИЛОЖЕНИЕ 3 Рекомендуемое
|
Таблица 6 |
|||||||||||||||||||||||||||||||||||||||||||||||||||||||||||||||||||||||||||||||||||||||||||||||||||||||||||||||||||||||||||||||||||||||||||||||||||||||||||||||||||||||||||||||||||||||||||||||||||||||||||||||||||||||||||||||||||||||||||||||||||||||||||||||||||||||||||||||||||||||
| |||||||||||||||||||||||||||||||||||||||||||||||||||||||||||||||||||||||||||||||||||||||||||||||||||||||||||||||||||||||||||||||||||||||||||||||||||||||||||||||||||||||||||||||||||||||||||||||||||||||||||||||||||||||||||||||||||||||||||||||||||||||||||||||||||||||||||||||||||||||





