Единая система защиты от коррозии и старения. Покрытия лакокрасочные. Метод испытаний на стойкость в атмосферных условиях
Заменяет

Страница 1

Страница 2

Страница 3

Страница 4

Страница 5

Страница 6

Страница 7

Страница 8

Страница 9

Страница 10
ГОСТ 6992-68
МЕЖГОСУДАРСТВЕННЫЙ СТАНДАРТ
ЕДИНАЯ СИСТЕМА ЗАЩИТЫ ОТ КОРРОЗИИ И СТАРЕНИЯ
ПОКРЫТИЯ ЛАКОКРАСОЧНЫЕ
МЕТОД ИСПЫТАНИЙ НА СТОЙКОСТЬ В АТМОСФЕРНЫХ УСЛОВИЯХ
Издание официальное
И ПК ИЗДАТЕЛЬСТВО СТАНДАРТОВ Москва
|
УДК 620.197.6.001:006.354 МЕЖГОСУДАРСТВЕННЫЙ |
Группа Л19 СТАНДАРТ |
Кдиная система дещиты or корро ши и старсния
ПОКРЫТИЯ ЛАКОКРАСОЧНЫЕ ГОСТ
6992-68
Метод испытаний на стойкость в атмосферных условиях
, . Взамен
Unified system of corrosion and ageing protection lYVT AOQ? Ml
paint coatings. Test method of corrosion resistance in —
atmospheric conditions
N1 КС 87.020
ОКСТУ 0009_
Утвержден Комитетом стандартов, мер и и «мерительных приборов при Совете Министров СССР 14 февраля 1968 г. Дата введения установлена
01.07.68
Ограничение срока действия снято Постановлением Госстандарта СССР от 09.06.87 № 1920
Настоящий стандарт распространяется на лакокрасочные покрытия (далее — покрытия) на металлической поверхности и устанавливает метод испытаний на стойкость в атмосферных условиях.
Стандарт соответствует СТ СЭВ 4201—83 в части требований к климатическим испытательным станциям, СТ СЭВ 1767—79 — в части требований к образцам, подготовке и проведению испытаний.
Метод заключается в выдерживании образцов с лакокрасочным покрытием (далее — образцов) в атмосферных условиях с последующей количественной оценкой стойкости покрытия по изменению декоративных и (или) защитных свойств.
1. ТРЕБОВАНИЯ К ОБРАЗЦАМ
1.1. Образцами для испытаний являются окрашенные металлические пластины размером 150 350 мм из стали марок ОХкп или 08 по ГОСТ 16523-97, толщиной 0,8—0,9 мм.
Допускается применять пластины из других материалов и других размеров, а также образцы, учитывающие конструкцию изделий (сварные швы, неразъемные соединения и т. п.), узлы и детали изделий, если это предусмотрено программой испытаний, при этом площадь и размеры сторон должны быть не менее 0,015 м- и 100 мм соответственно.
1.2. Для проведения испытаний готовят не менее трех образцов и один контрольный. Контрольный образец готовят по той же технологии, что и испытуемый.
Ятя определения распространения подпленочной коррозии от надреза покрытия один из трех образцов размером 150 350 мм заменяют пятью образцами размером 70 150 мм, на которые стальным остроконечным инструментом наносят надрезы в виде двух взаимно перпендикулярных линий длиной не менее 30 мм на расстоянии не менее 20 мм от края образца.
Если программой испытаний предусмотрено определение физико-механических свойств покрытий, к образцам размером 150 350 мм добавляют образцы размером 70 150 мм в количестве, необходимом для определения показателей физико-механических свойств в соответствии с программой.
Издание официальное Перепечатка воспрешена
★
Издание (октябрь 2003 г.) с Изменениями № J, 2, утвержденными в октябре 1980 г., июле 1986 г.
(ИУС12-80, Н—86).
И ПК Издательство стандартов, 2003
2-2293
С. 2 ГОСТ 6992-68
2. АППАРАТУРА
2.1. Испытания проводят па климатических испытательных станциях по ГОСТ 9.906 —83 или на атмосферных площадках.
Атмосферные площадки располагают на открытом воздухе на земле или на крыше здания.
Климатические испытательные станции и атмосферные площадки должны быть оборудованы испытательными стендами.
При проведении испытаний на атмосферных площадках используют данные метеорологических наблюдений близлежащих гидрометеорологических станций.
2.2. Стенды должны быть изготовлены из материала, не оказывающего воздействия на испытуемые покрытия, и установлены так, чтобы тень от одного стенда не падала на другой.
Конструкция стенда должна обеспечивать такое расположение образцов, чтобы лицевая и обратная стороны подвергались воздействию климатических факторов и вода стекала с образцов.
3. ПОДГОТОВКА К ИСПЫТАНИЮ
3.1. Лакокрасочный материал наносят на обе стороны и кромки пластины по ГОСТ 8832-76 или в соответствии со стандартами или техническими условиями на лакокрасочный материал.
Края пластины на расстоянии 3—5 м дополнительно защищают испытуемым лакокрасочным материалом, если покрытие естественной сушки, или эпоксидной шпатлевкой ЭП-0010, если покрытие горячей сушки.
Допускается окрашивать обратную сторону и кромки образца другим лакокрасочным материалом. обеспечивающим защиту в течение испытаний.
3.2. Образцы маркируют так. чтобы маркировка не влияла на свойства покрытия в процессе испытаний.
Маркировку наносят на лицевую сторону образца. В левом верхнем углу образца ставят регистрационный номер, в правом верхнем углу — дату начала испытаний (год, месяц, число), в левом нижнем углу — индекс станции, в правом нижнем — условия размещения образца (Т — на открытом воздухе, Н — под навесом) или маркировку наносят в соответствии с программой испытаний.
3.3. Перед испытаниями образцы с покрытиями естественной сушки выдерживают не менее 7 сут, а с покрытиями горячей сушки — не менее I сут при температуре (25± 10) *С и относительной влажности воздуха не более 80 %.
3.4. Контрольные образцы перекладывают бумагой и хранят при температуре (25±10) “С и относительной влажности воздуха не более 80 % без доступа света.
3.5. Перед испытаниями измеряют толщину покрытия и другие параметры в соответствии с программой испытаний (приложение 1) и картой испытаний (приложение 3).
3.6. При установке и креплении образцов на стенде необходимо соблюдать следующие условия:
не допускается соприкосновение образцов и металла с металлом;
материалы дета!ей крепления должны быть устойчивы к атмосферной коррозии:
отсутствие точек концентрации механической нагрузки:
отсутствие на образцах следов от прикосновения рук.
3.7. Образцы устанавливают на стендах под углом 45″ к горизонту, лицевой стороной на юг, стороной, длина которой 350 мм, по вертикали.
Образны крепят к стенду с помощью неметаллических приспособлений, площадь соприкосновения которых с образцами должна быть минимальной.
Расстояние между образцами по горизонтали должно быть не менее 20. по вертикали — не менее 10 мм.
Одинаковые образцы размешают на одной высоте от земли.
Образны на нижних рядах стендов крепят на высоте не менее 0,5 м над крышей и не менее I м над землей.
Установка образцов других размеров должна оговариваться в программе испытаний.
3.8. Начало испытаний образцов на атмосферных площадках а умеренном макроклиматическом районе — март-апрель. Допускается другое время начала испытаний, если это оговорено программой испытаний.
ГОСТ 6992-68 С. 3
В тропическом, холодном, умеренно-холодном, морском и тропическом морском макроклнмати-ческих районах начало испытаний в любое время года.
На образцы заполняют карту испытаний.
4. ПРОВЕДЕНИЕ ИСПЫТАНИЙ
4.1. Порядок осмотра образцов
4.1.1. При отсутствии особых указаний в программе испытаний осмотр проводят в течение первых 3 мес один раз в месяц, в течение последующих месяцев (до двух лет) — один раз в 3 мес. после 2 лет испытаний — два раза в год.
Образны осматривают в помещении с окнами, обращенными на север, при температуре (25± 10) *С и относительной влажности воздуха не более 80 %.
При осмотре состояние покрытия определяют на лицевой стороне образца.
4.1.2. Перед осмотром правую половину поверхности образца промывают с помощью мягкой губки водой при температуре 15—30 *С до полного удаления загрязнений и сушат на воздухе.
При последующих осмотрах промывают ту же поверхность образца.
При опенке подпленочной коррозии лакокрасочные покрытия удаляют, помещая образец в растворитель (например, ацетон) или состав, способствующий размягчению покрытия и не вызывающий коррозии металла.
Дополнительную обработку поверхности образца (например, промывку 3 %-ным раствором мыла, полирование и другую) проводят, если это предусмотрено программой испытаний.
4.1.3. Виды разрушения, кроме грязеудержания. оценивают на поверхности, с которой удалены загрязнения.
Виды разрушения лакокрасочных покрытий приведены в приложении 2.
Дтя характеристики декоративных свойств покрытий фиксируют изменение блеска, цвета, гря-зеудержание, мелен не; для характеристики защитных свойств — растрескивание, выветривание, отслаивание, наличие пузырей, коррозию металла.
4.2. Оценка декоративных и защитных свойств покрытий и обработка результатов испытаний — по ГОСТ 9.407-84.
Оценка физико-механических свойств покрытий — по стандартам на методы определения соответствующих показателей.
Оценка грибостойкоетн — по ГОСГ 9.050—75.
Результаты осмотров покрытий записывают в карту испытаний.
Разд. 1—4. (Измененная редакция, Изм. № 2).
ПРИЛОЖЕНИЕ I Справочное
11РО! РАММА ИСПЫТА11И Й
1. Цель испыганий
2. .Место испытаний (расположение атмосферной площадки с указанием макроклиматического района).
3. Условия испытаний (на открытом воздухе, под навесом и др.).
4. Количество образцов и их размеры.
5. Технология нанесения, применения систем покрытий.
6. Время начала испытаний.
7. Способ крепления образцов.
8. Периодичность осмотра образцов.
9. Способ обработки образцов перед осмотром.
10. Контролируемые виды разрушения.
11. Определение распространения коррозии от надрсиа и средство удаления покрытия.
12. Определение грнбостойкости.
13. Определение физико-механических свойств покрытий (приборы и методы определения).
14. Осматриваемые поверхности образца (лицевая, обратная, кромки).
15. Намечаемые сроки количественной оценки покрытия.
16. Продолжительность испытаний или допустимая степень разрушения покрытия.
17. Метод оценки (балльная, количественная).
ПРИЛОЖЕНИЕ I. (Измененная редакция, Изм. № 2).
2*
С. 4 ГОСТ 6992-68
ПРИЛОЖЕНИЕ 2 Справочное
ВИДЫ РАЗРУШЕНИЙ ЛАКОКРАСОЧНОГО ПОКРЫТИЯ
Потеря блеска (поматовеиие) является одним из показателей начальной сталии разрушения поверхностного слоя покрытия в результате фотохимического процесса. В начальной сталии потеря блеска может быть устранена полировкой или протиркой.
Изменение цвета покрытия (повеление, потемнение, пожелтение, бронзировка и другие) происходит в результате фотохимических процессов или миграции пигмента.
Грязсудержание. Гряэеудержанием называется способность лакокрасочного покрытия удерживать на своей поверхности механические загрязнения, не удаляемые при промывке водой.
Меление — появление на поверхности покрытия тонкого слоя легкоеннмаемого порошка вследствие деструкции одного или более компонентов (черт. 1—4). Глубокая стадия меления при атмосферном воздействии может привести к эрозии (выветриванию) покрытия — разрушению, в результате которого обнажается подложка (черт. 5, 6).
Черт. 3
Черт. 4
|
ГОСТ 6992-68 С. 5 |
Чсрг. 6
|
Черт. 5 |
Растрескивание покрытия (чсрг. 7—10) характеризуется появлением разрывов в покрытии. Различают основные виды трещин: волосяные — мелкие; хаотически расположенные в верхнем слое покрытия; поверхностные — мелкие; покрывающие сплошь в виде узора поверхностный слой покрытия: магистральные — глубокие, которые проникают сквозь слой покрытия и могут привести к полному его разрушению; «крокодиловая кожа* — глубокие крупные трешины. образующие рисунок в виде кожи крокодила: «следы птиц» — трешины. образующие рисунок в виде птичьих следов.
С. 6 ГОСТ 6992-68
Отслаивание покрытия (черт. 11—14) — отделение участков одного или более слоев системы от нижележащих или всей системы покрытия от окрашиваемой поверхности.
Черт. 13 Черт. 14
Пузыри (черт. 15— 18). Пузыри образуются на поверхности покрытия главным образом от воздействия влаги и ее проникновения под покрытие.
|
Черт. 15 Черт. 16 |
ГОСТ 6992-68 С. 7
Чсрг. 17 Черт. 1S
Коррозия (черт. 19—22). Появление коррозии на поверхности покрытия свидетельствует о разрушении окрашенного металла. Наличие или отсутствие подпленочнои коррозии определяется снятием покрытия в нескольких местах только по окончании экспозиции или по истечении гарантийного срока агмосфс ростом кости покрытия.
* • 1
^ т — * Щ „
Черт. 19 Черт. 20
|
Черт. 22 |
— .
V
■А’.
•V .fj -г ■’ —
Черт. 21
ПРИЛОЖЕНИЕ 2. (Измененная редакция, Изм. S« 2).
С. 8 ГОСТ 6992-68
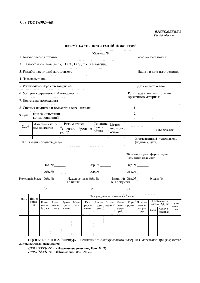
ПРИЛОЖЕНИЕ J Рекомендуемое
ФОРМА КАРТЫ ИСПЫТАНИЙ ПОКРЫТИЯ
Образцы №
I. Климатическая станция
Условия испытания
2. Наименование материала, ГОСТ. ОСТ, ТУ. назначение
3. Разработчик и (или) изготовитель
Партия и дата изготовления
4. Цель испытания
|
5. Изготовитель образцов покрытий Дата окрашивания |
||||||||||||||||||||||||||||||||||||||||||||||||
|
||||||||||||||||||||||||||||||||||||||||||||||||
Обратная сторона формы карты испытания покрытия
|
06р. №. Обр.МЬ Исходный блеск Обр. № Ср |
Обр. УЬ Обр. >6 Исходный цвет Обр. Ns _ Толщина Ср. |
Обр. №. Обр. № _ Внешний Обр. № вил покрытия Эталон № Ср. |
|
Дата |
Номер обра j- 1Ы |
Вил разрушения и оценка в баллах |
||||||||||||
|
Ишс иепие блеска |
Иие MCIIHC цвета |
[рже удер жание |
Меле пне |
Рас- ■рески- вание |
Вывет- рива- ние |
Отеля-ивам не |
Нали чие пум- рей |
Кир* рошя |
Пациент пая корро- 1К0 |
Обношенная оценка АД, АЗ |
При- |
|||
|
Бал.» |
Количе ствсиная |
кие |
||||||||||||
Г1 р и м с ч а н и с. Рецептуру испытуемого лакокрасочного материала указывают при разработке лакокрасочных материалов.
ПРИЛОЖЕНИЕ J. (Измененная редакция, Изм. № 2). ПРИЛОЖЕНИЕ 4. (Исключено. Изм. № 2).
Редактор Р. С. Федорова Технический редактор Л. А. Гусева Корректор С. И. Фирсова Компьютерная верстка Т. В. Александровой
Им. лиц. И 02354 от 14.07.2000. Слано п набор 24.09.2003. Подписано в печать 29.10.2003. Уел. печ. л. 1.40. Уч.-им. л. 1.10.
Тираж 110 экз. С 12S40. Зак. 2293.
ИПК Итлатсльство стандартов. 107076 Москва. Кололезтшй пер.. 14. http://www.standar Набрано в Калужской типографии стандартов на ПЭВМ. Отпечатано в Калужском tHiiaipai|iUH стандартов. 24X021 Калуга, ул. Московская. 256 ПЛР № 040138







