Петли для оконных и дверных блоков. Технические условия
Заменяет ГОСТ 5088-94: Технические условия
На нашем сайте можно бесплатно скачать ГОСТ 5088-2005 в удобном формате. Узнать актуальный статус ГОСТА «Петли для оконных и дверных блоков. Технические условия» на 2016 год.
Скрыть дополнительную информацию
Страница 1

Страница 2

Страница 3

Страница 4

Страница 5

Страница 6

Страница 7

Страница 8

Страница 9

Страница 10

Страница 11

Страница 12

Страница 13

Страница 14

Страница 15

Страница 16

Страница 17

Страница 18

Страница 19

Страница 20

Страница 21

Страница 22

Страница 23

Страница 24

Страница 25

Страница 26

Страница 27

Страница 28

Страница 29

Страница 30

Страница 31

Страница 32

Страница 33

Страница 34

Страница 35
МЕЖГОСУДАРСТВЕННЫЙ СОВЕТ ПО СТАНДАРТИЗАЦИИ, МЕТРОЛОГИИ И СЕРТИФИКАЦИИ
(МГС)
INTERSTATE COUNCIL FOR STANDARDIZATION, METROLOGY AND CERTIFICATION
(ISC)
ГОСТ
МЕЖГОСУДАРСТВЕННЫЙ 5088—
СТАНДАРТ 2005
ПЕТЛИ ДЛЯ ОКОННЫХ И ДВЕРНЫХ БЛОКОВ
Технические условия
Издание официальное
МЕЖГОСУДАРСТВЕННАЯ НАУЧНО-ТЕХНИЧЕСКАЯ КОМИССИЯ ПО СТАНДАРТИЗАЦИИ. ТЕХНИЧЕСКОМУ НОРМИРОВАНИЮ И СЕРТИФИКАЦИИ В СТРОИТЕЛЬСТВЕ (МНТКС)
ГОСТ 5088-2005
Предисловие
Цели, основные принципы и основной порядок проведения работ по межгосударственной стандартизации установлены ГОСТ 1.0-92 «Межгосударственная система стандартизации. Основные положения» и МСН1.01-01—96 «Система межгосударственных нормативных документов в строительстве. Основные положения»
Сведения о стандарте
1 РАЗРАБОТАН учреждением «Центр по сертификации оконной и дверной техники» с участием ФГУП «Центральное проектно-конструкторское и технологическое бюро» Госстроя России, фирмой «Fiskars». Финляндия и фирмой «Dr. Hahn», Германия, ЗАО «ТБМ»
2 ВНЕСЕН Техническим комитетом по стандартизации ТК 465 «Строительство»
3 ПРИНЯТ Межгосударственной научно-технической комиссией по стандартизации, техническому нормированию и сертификации в строительстве (МНТКС) (протокол No 28 от 13 октября 2005 г.)
За принятие проголосовали:
|
Краткое наименование страны по МК (ИСО 31661 004—97 |
Кол страны по МК (ИСО 31вв> 004-97 |
Сокращенное наименование органа государственного управления строительством |
|
Армения |
AM |
Министерство градостроительства |
|
Беларусь |
BY |
Минсгройархитектуры |
|
Казахстан |
KZ |
Казстройкомитет |
|
Киргизия |
KG |
Государственное Агентство по архитектуре и строи |
|
тельству |
||
|
Молдова |
MD |
Агентство регионального развития |
|
Российская Федерация |
RU |
Минрегион России |
|
Узбекистан |
uz |
Госархитектстрой |
4 Приказом Федерального агентства по техническому регулированию и метрологии от 24 апреля 2006 г. No 76-ст межгосударственный стандарт ГОСТ 5088-2005 введен в действие в качестве национального стандарта Российской Федерации с 1 января 2007 г.
5 ВЗАМЕН ГОСТ 5088-94
6 ПЕРЕИЗДАНИЕ. Апрель 2007 г.
Информация о введении в действие (прекращении действия) настоящего стандарта публикуется в указателе «Национальные стандарты».
Информация об изменениях к настоящему стандарту публикуется в указателе «Национальные стандарты», а текст изменений — в информационных указателях «Национальные стандарты». В случав пересмотра или отмены настоящего стандарта соответствующая информация будет опубликована в информационном указателе «Национальные стандарты»
© Стандартинформ. 2006 © Стандартинформ. 2007
В Российской Федерации настоящий стандарт не может быть полностью или частично воспроизведен, тиражирован и распространен в качестве официального издания без разрешения Федерального агентства по техническому регулированию и метрологии
ГОСТ 5088-2005
Содержание
1 Область применения……………………………………………1
2 Нормативные ссылки…………………………………………..1
3 Термины и определения…………………………………………2
4 Типы, размеры и условные обозначения………………………………..2
5 Технические требования…………………………………………4
5.1 Общие положения…………………………………………..4
5.2 Размеры и предельные отклонения…………………………………4
5.3 Требования к конструкции………………………………………4
5.4 Требования к надежности и сопротивлению нагрузкам………………………5
5.5 Требования к материалам и комплектующим……………………………5
5.6 Комплектность…………………………………………….6
5.7 Маркировка и упаковка………………………………………..6
6 Правила приемки……………………………………………..6
7 Методы контроля……………………………………………..7
8 Транспортирование и хранение……………………………………..8
9 Указания по монтажу и эксплуатации………………………………….8
10 Гарантии изготовителя………………………………………….8
Приложение А (рекомендуемое) Основные детали петель………………………9
Приложение Б (рекомендуемое) Примеры петель и их комплектующих………………10
Приложение В (справочное) Пример расчета и выбора типа ввертных петепь дпя оконного
бпока из древесины…………………………………..31
in
ГОСТ 5088-2005
МЕЖГОСУДАРСТВЕННЫЙ СТАНДАРТ
ПЕТЛИ ДЛЯ ОКОННЫХ И ДВЕРНЫХ БЛОКОВ Технические условия
Hinges for windows and doors. Specifications
Дата введения — 2007—01—01
1 Область применения
Настоящий стандарт распространяется на металлические петли (далее — петли), применяемые в оконных и дверных блоках из различных материалов.
Стандарт не распространяется на петли, устанавливаемые на оконные и дверные блоки специального назначения, в части дополнительных требований к пожаробезопасности и взломоустойчивости.
2 Нормативные ссылки
В настоящем стандарте использованы ссылки на следующие стандарты:
ГОСТ 2.601-2006 Единая система конструкторской документации. Эксплуатационные документы ГОСТ 9.308-85 Единая система защиты от коррозии и старения. Покрытия металлические и неметаллические неорганические. Методы ускоренных коррозионных испытаний
ГОСТ 9.401-91 Единая система защиты от коррозии и старения. Покрытия лакокрасочные. Общие требования и методы ускоренных испытаний на стойкость к воздействию климатических факторов
ГОСТ 397-79 Шплинты. Технические условия
ГОСТ 538-2001 Изделия замочные и скобяные. Общие технические условия ГОСТ 1145-80 Шурупы с потайной головкой. Конструкция и размеры ГОСТ 11648-75 Шайбы упорные быстросъемные. Технические условия ГОСТ 15140-78 Материалы лакокрасочные. Методы определения адгезии ГОСТ 15150-69 Машины, приборы и другие технические изделия. Исполнения для различных климатических районов. Категории, условия эксплуатации, хранения и транспортирования — в части воздействия климатических факторов внешней среды
ГОСТ 15878-79 Контактная сварка. Соединения сварные. Конструктивные элементы и размеры ГОСТ 24705-2004 (ИСО 724:1993) Основные нормы взаимозаменяемости. Резьба метрическая. Основные размеры
ГОСТ 30777-2001 Устройства поворотные, откидные и поворотно-откидные для оконных и балконных дверных блоков. Технические условия
Примечание — При пользовании настоящим стандартом целесообразно проверить действие ссылоч-ныхстандартов по указателю «Национальные стандарты», составленному по состоянию на 1 января текущего года, и по соответствующим информационным указателям, опубликованным в текущем году. Если ссылочный стандарт заменен (изменен), то при пользовании настоящим стандартом следует руководствоваться замененным (измененным) стандартом. Если ссылочный стандарт отменен без замены, то положение, в котором дана ссылка на него, применяется в части, не затрагивающей эту ссылку.
Издание официальное
1
ГОСТ 5088-2005
3 Термины и определения
В настоящем стандарте применены термины по ГОСТ 538, а также следующие термины с соответствующими определениями:
петля: Изделие, служащее для соединения створки, форточки, фрамуги (полотна) с оконной (дверной) коробкой, а также для соединения спаренных створок (полотен) оконных (балконных дверных) блоков и обеспечивающее открывание—закрывание створки, форточки, фрамуги (полотна) оконного (дверного) блока.
правая петля: Петля, устанавливаемая на оконном (дверном) блоке, створка (полотно) которого закрывается против хода часовой стрелки.
левая петля: Петля, устанавливаемая на оконном (дверном) блоке, створка (попотно) которого закрывается по ходу часовой стрелки.
универсальная петля: Петля, устанавливаемая на оконном (дверном) блоке, створка (полотно) которого закрывается как по ходу, так и против хода часовой стрелки.
4 Типы, размеры и условные обозначения
4.1 По назначению петли подраздепяют для установки на:
— оконные и балконные дверные блоки;
— дверные блоки.
4.1.1 В зависимости от массы открывающейся створки (полотна):
* для оконных блоков:
до 50 кг, от 51 до 80 кг, от 81 до 130 кг.
— для дверных блоков:
до 60 кг, от 61 до 120 кг. от 121 до 250 кг.
Примечание — Петли для оконных блоков массой более 130 кгидлядверныхблоковболее250кготно-сятся к изделиям специального назначения.
4.1.2 По вариантам конструктивного исполнения (типы) петпи подразделяют:
— по способу установки на оконный (дверной) блок:
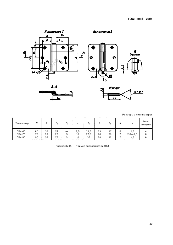
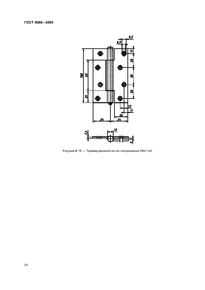
петли накладные — ПН, петли врезные — ПВ, петли ввертные — ПВв, петли комбинированные — ПК.
• по варианту открывания оконной створки (дверного полотна):
петля левая — Л. петля правая — П. петпя универсальная.
4.2 Основные детали петель представлены на рисунках А.1, А.2 приложения А.
4.3 Условные обозначения типов петель и рекомендуемая область их применения приведены в таблице 1. Примеры петель и их комплектующих приведены в приложении Б.
|
Таблица 1 |
|||||||||||||
|
2
ГОСТ 5088-2005
|
Окончание таблицы 1 |
||||||||||||||||||||||||||||||||||||||||||||||||
|
Устанавливают следующую структуру условного обозначения петель:
Условное обозначение типа петли (по таблице 1)
Высота петли, мм Исполнение петли: 1, 2
Буквы, обозначающие: Л — левая петля, П — правая петля
Обозначение настоящего стандарта Пример условного обозначения петли накладной типа ПН1. высотой 110 мм. пра-
вой:
ПН1-110-П ГОСТ 5088-2005
То же. врезной типа ПВ4, высотой 90 мм. универсальной, исполнения 1:
ПВ4-90-1 ГОСТ 5088-2005
В условное обозначение петель допускается включать буквенные и цифровые обозначения в соответствии с конструкторской документацией (далее — КД) на петли.
ГОСТ 5088-2005
При экспортно-импортных поставках допускается применять обозначения петель, принятые у поставщика и оговоренные в договоре (контракте).
5 Технические требования
5.1 Общие положения
5.1.1 Петли должны соответствовать требованиям ГОСТ 538, настоящего стандарта и изготавливаться по конструкторской и технологической документации на петли конкретного типа.
Внешний вид изделий: цвет, допустимые дефекты поверхности (риски, царапины и др.) должен соответствовать образцам-эталонам, утвержденным в установленном порядке.
Разность цвета и дефекты поверхности, различимые невооруженным глазом с расстояния (0.6—0.8) м при естественном освещении не менее 300 лк, не допускаются.
5.1.2 Петли должны быть безопасными в эксплуатации и рассчитаны на эксплуатационные нагрузки в соответствии с областью их применения. При производстве и применении петли должны быть рассчитаны на прочность в соответствии с действующей нормативной документацией.
5.2 Размеры и предельные отклонения
5.2.1 Размеры деталей петель устанавливают в КД. а контролируемые размеры в технологической документации предприятия-изготовителя.
Предельные отклонения сопрягаемых и несопрягаемых размеров — по ГОСТ 538.
Форму карт врезных и накладных петель устанавливают в рабочих чертежах на конкретный тип петли.
5.2.2 Овальность осей (полуосей) в местах подвижных соединений с картами петель должна быть не более 0,1, а трубок карт петель — 0.3 мм.
5.2.3 Зазор между осью или полуосью и трубкой петли в местах подвижных соединений должен быть не менее 0,1 и не более 0.5 мм.
5.2.4 Отклонение от перпендикулярности опорных поверхностей осей петель типов ПН1—ПН4 и ПВ1 относительно осей вращения должно быть не более 0,25 мм.
5.2.5 Зазор между трубкой и плоскостью карты петли — не более 0,5 мм.
5.2.6 Продольный и поперечный люфты в шарнирах петель типов ПН8 и ПН9 должны быть не более 0,3 мм.
5.2.7 Зазор между плоскостью карты петли и ее изогнутым концом (трубкой) должен быть не более 0,5 мм при толщине карты петли до 2,2 мм и 1.0 мм — при толщине более 2,2 мм.
5.3 Требования к конструкции
5.3.1 Конструкция петель должна быть прочной и надежной и обеспечивать возможность их ремонта и замены.
5.3.2 В конструкциях накладных петель рекомендуется предусматривать регулировочные винты для их регулировки в разных плоскостях.
При этом конструкция стальных регулируемых петель должна обеспечивать регулировку петли i 2 мм в горизонтальной и вертикальной плоскостях: для конструкции петель из алюминиевого профиля — 15 мм.
Регулировочные винты должны располагаться в местах, доступных для осуществления регулировки.
5.3.3 Конструкция петель должна обеспечивать надежное крепление к створкам (полотнам) и коробкам. Расположение и размеры отверстий для установки петель указывают в рабочих чертежах на конкретные виды оконных (дверных) блоков.
Пример расчета и выбора типа ввертных петель для оконного блока из древесины приведен в приложении В.
5.3.4 Вращение карт накладных, врезных петель и стержней ввертных петель должно быть без заедания вокруг осей и полуосей.
Для обеспечения вращения без заедания карт вокруг осей и полуосей петель рекомендуется применять подшипники.
5.3.5 Крепление полупетель к створке (полотну) и коробке осуществляется через конструкционные отверстия, крепежные пластины или сваркой.
5.3.6 Для повышения безопасности и охранных свойств дверных блоков в карте петли могут быть предусмотрены дополнительные противосъемные элементы (рисунок Б.З приложения Б).
5.3.7 Накладные петли, предназначенные для установки на стеклянные элементы дверных блоков. должны устанавливаться через прокладки, исключающие возможность соприкосновения металлических деталей петель и стекла.
4
ГОСТ 5088-2005
5.3.8 Метрическая резьба на стержнях ввертных петель должна быть полной, без вмятин и срывов ниток и соответствовать требованиям ГОСТ 24705.
5.3.9 Конструкция петель типов ПН8 и ПН9 должна предусматривать возможность регулировки усилия закрывания полотна дверного блока, при этом сила открывания дверного блока должна быть не менее 2 и не более 4 кгс на расстоянии 700 мм от оси петли.
5.3.10 Гоповка оси или полуоси петель должна иметь сферическую форму или форму усеченного конуса.
Фаска на торце оси петепь типов ПН1 — ПН4. ПН6 — ПН9 и ПВв1 — ПВвЗ должна быть (2—3) х 30е.
5.3.11 Петли типов ПН7. ПВ2 — ПВ4 комплектуют шплинтами 2 х 16 по ГОСТ 397 или быстросъемными упорными шайбами 5-080 по ГОСТ 11648.
5.3.12 Петли типов ПН1 — ПН4.ПН6иПВ1 изготовляют правыми и певыми (на рисунках Б. 1, Б.4. Б.5, Б.7. Б.9. Б. 15 приложения Б приведены правые петли).
5.3.13 Соединения карт петепь с осями и полуосями в накладных петлях типа ПН7 и врезной петпе типа ПВ1 должны быть неразъемными.
5.3.14 Соединение деталей петпи допускается производить контактной сваркой по ГОСТ 15878. Сварные швы допжны быть зачищены и не должны иметь непроваренных участков и прожогов. Допускается другой вид соединения деталей петпи, обеспечивающий ее прочность.
5.3.15 Требования к конструкциям петель, предназначенным для установки на оконных блоках с поворотно-откидными, поворотными и откидными устройствами, — по ГОСТ 30777.
5.4 Требования к надежности и сопротивлению нагрузкам
5.4.1 При испытании на безотказность петли должны выдерживать число циклов «открывание — закрывание» в соответствии с таблицей 2.
|
Таблица 2 |
|||||||||||||||||||||||||
|
5.4.2 Соединение стержней с втулками или скобами во ввертных петлях должно выдерживать усилие отрыва не менее 800 Н.
5.4.3 Сопротивление статическим и динамическим нагрузкам петепь определяют в готовых оконных (дверных) блоках с учетом их конструкции и материала, а также применяемых крепежных издепий.
5.5 Требования к материалам и комплектующим
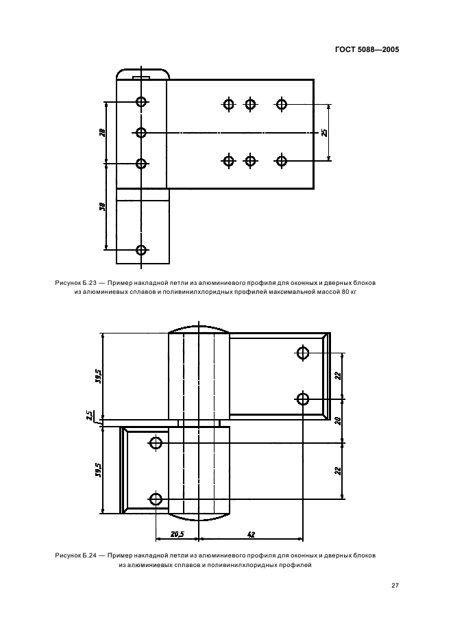
5.5.1 Для изготовления петель следует применять следующие материалы: сталь, латунь, пластмассу и специальный алюминиевый профиль по действующей нормативной документации.
Прокладки, применяемые в петлях для дверных блоков из закаленного стекла, должны изготавливаться из атмосфероморозостойких эластичных полимерных материалов.
5.5.2 Материалы и комплектующие детали, применяемые для изготовления петель, должны быть стойкими к климатическим воздействиям.
ГОСТ 5088-2005
Полимерные и синтетические материалы должны иметь санитарно-эпидемиологическое заключение. оформленное в установленном порядке.
5.5.3 Детали петель, изготовленные из некоррозионно-стойких материалов, должны иметь защитное. защитно-декоративное антикоррозионное покрытие. Требования к покрытиям и коррозионной стойкости — по ГОСТ 538.
5.5.4 Петли к створкам (полотнам) и коробкам крепят шурупами, винтами, самонарезающими шурупами (винтами) с антикоррозионным покрытием либо сваркой. Петли из алюминиевых профилей крепят винтами, вворачиваемыми в специальные закладные элементы.
5.5.5 Сварные соединения петель должны быть прочными и соответствовать следующим требованиям (контролируемым визуально):
— металл шва и граничной зоны не должен иметь трещин. Кратеры швов в местах остановки (окончания) сварки должны быть переварены (заварены);
— поверхность швов должна быть гладкой или равномерно-чешуйчатой без резких переходов к основному металлу;
— швы должны быть плотными по всей длине и не иметь прожогов, сужений, наплавов, непроваров. шлаковых включений и пр.
Временное сопротивление разрыву металла сварного соединения петель должно быть не ниже требований, предъявляемых к основному металлу.
5.6 Комплектность
5.6.1 Петли должны поставляться комплектно в соответствии с ГОСТ 538. Комплект поставки должен включать в себя полный набор элементов, необходимых для установки и эксплуатации петель на оконном или дверном блоке.
Рекомендуется включать в комплект поставки шаблоны для установки петель.
К каждой партии петель, а также при реализации петель через розничную торговую сеть должна прикладываться этикетка по ГОСТ 2.601. Один экземпляр инструкции по монтажу и техническому обслуживанию должен быть вложен в каждый ящик с петлями.
5.6.2 По согласованию с заказчиком допускается поставка петель без крепежных издепий.
5.7 Маркировка и упаковка
5.7.1 Маркировка петель — по ГОСТ 538.
На петли наносят буквы П или Л — для правых и левых петепь, на универсальные петли обозначение не наносят.
5.7.2 Требования к упаковке петель — по ГОСТ 538.
Дополнительные требования к упаковке, при необходимости, могут быть установлены в договоре на поставку.
6 Правила приемки
6.1 Приемку петель осуществляют в соответствии с требованиями настоящего стандарта и ГОСТ 538.
Петли принимают партиями. При приемке петель на предприятии-изготовителе партией считают число петель одного наименования, изготовленных в пределах одной смены и оформленных одним документом о качестве. Партией считают также число петель одного конструктивного испопнения. изготовленных по одному заказу.
6.2 Качество петель на соответствие требованиям настоящего стандарта подтверждают;
— входным контролем материалов и комплектующих деталей;
— операционным производственным контролем;
— приемочным контролем готовых петель;
— периодическими и сертификационными испытаниями;
— типовыми испытаниями;
— квалификационными испытаниями.
6.3 Порядок проведения входного и операционного производственного контроля на рабочих местах устанавливают в технологической документации на петли.
6.4 Приемочный контроль качества готовой продукции и периодические испытания проводят в соответствии с таблицей 3. План контроля и порядок проведения приемочного контроля—по Г ОСТ 538.
6
ГОСТ 5088-2005
|
Таблица 3 |
||||||||||||||||||||||||||||||||||||||||||||||
|
||||||||||||||||||||||||||||||||||||||||||||||
6.5 Периодические испытания изделий проводят один раз в два года. Испытания проводят на образцах, прошедших приемочный контроль.
6.6 Сертификационные испытания изделий рекомендуется проводить в объеме периодических испытаний.
6.7 Типовые испытания изделий проводят поспе внесения изменений в конструкцию, материалы или технологию изготовления для оценки эффективности и целесообразности внесения изменений.
Объем типовых испытаний опредепяют характером внесенных изменений.
Типовым испытаниям подвергают издепия. прошедшие приемочный контропь.
6.8 Квалификационные испытания издепий проводят по всем показатепям при постановке продукции на производство.
6.9 Сертификационные и периодические испытания проводят в испытательных центрах (лабораториях), аккредитованных на право проведения испытаний указанных издепий.
6.10 Каждая партия издепий допжна сопровождаться документом о качестве.
6.11 Приемка изделий потребителем не освобождает изготовителя от ответственности при обнаружении скрытых дефектов, приведших к нарушению эксплуатационных характеристик изделий в течение гарантийного срока службы.
7 Методы контроля
7.1 Соответствие материалов и комплектующих изделий требованиям нормативных документов устанавливают сравнением показатепей сопроводительных документов с требованиями НД на материалы и комплектующие изделия.
7.2 Размеры петель и предельные отклонения определяют универсальным инструментом, а также используют программные методы контроля технологического процесса предприятий-изготовитепей.
7.3 Внешний вид изделий, сварных швов, комплектность, наличие маркировки, упаковку проверяют визуапьно на соответствие требованиям настоящего стандарта, КД и образцу-этапону.
7.4 Качество покрытий проверяют по ГОСТ 538; адгезию — ГОСТ 15140: коррозионную стойкость покрытий — ГОСТ 9.308, ГОСТ 9.401.
7
ГОСТ 5088-2005
7.5 Работу подвижных деталей петли проверяют вручную, повторяя не менее пяти раз цикл работы петли.
7.6 Испытания изделий на безотказность, сопротивление статическим и динамическим нагрузкам проводят на специальном оборудовании (стендах) по согласованным и утвержденным программам и методикам.
После проведения испытаний петли должны сохранять работоспособность.
8 Транспортирование и хранение
8.1 Петли перевозят всеми видами транспорта в соответствии с правилами перевозки грузов, действующими на данном виде транспорта.
8.2 При хранении и транспортировании петли защищают от воздействия атмосферных осадков и предохраняют от механических повреждений.
8.3 Условия хранения изделий — по группе 2 ГОСТ 15150.
9 Указания по монтажу и эксплуатации
9.1 Выбор конструкции петель, необходимое число для установки на оконном (дверном) блоке и монтаж следует проводить в соответствии с рекомендациями и расчетными программами предприя-тий-изготовителей.
9.2 Монтаж петель следует производить в соответствии с инструкцией по монтажу, входящей в комплект поставки.
Монтаж изделий следует производить с применением специальных шаблонов.
9.3 Смазку и регулировку петель в процессе эксплуатации производят в соответствии с инструкцией по эксплуатации, входящей в комплект поставки.
10 Гарантии изготовителя
10.1 Предприятие-изготовитель гарантирует соответствие петель требованиям настоящего стандарта при условии соблюдения потребителем правил транспортирования, хранения, монтажа, эксплуатации, а также области применения, установленной в нормативной и проектной документации.
10.2 Гарантийный срок эксплуатации петель не менее 24 мес со дня ввода в эксплуатацию оконных (дверных) блоков или со дня продажи петель через торговую сеть.
8
ГОСТ 5088-2005
Приложение А (рекомендуемое)
Основные детали потель
Неразъемное |4-| гарт
. Л^Л сасьт{паяуоалJ
1^-
К
Н
1— карта с трубкой; 2 — ось: 3 — полуось Рисунок А.1 — Основные детали накладных и врезных петель
|
Рисунок А.2 — Основные детали ваертных петель |
9
|
Типоразмеры ПН1-70. ПН1-85 Типоразмеры ПН1-110. ПН1-130. ПН1-150 |
|
В миллиметрах |
||||||||||||||||||||||||||||||||||||||||||||||||||||||||||||||||||||||||||||||||
|
||||||||||||||||||||||||||||||||||||||||||||||||||||||||||||||||||||||||||||||||
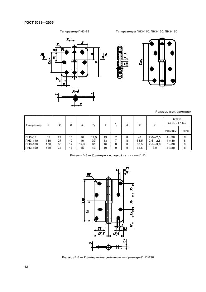
Рисунок Б.1 — Пример накладной петли типа ПН1
ГОСТ 5088-2005
Приложение Б (рекомендуемое)
Примеры петель и их комплектующих
10
ГОСТ 5088-2005
Рисунок Б.2 — Пример накладной петли типоразмера Рисунок Б.З — Пример протиеосьемной накладной
ПН1-110 петли типоразмера ПН1-110
Типоразмеры ПН2-70. ПН2-85 Типоразмеры ПН2-110.ПН2-130.ПН2-150
|
Размеры в миллиметрах |
||||||||||||||||||||||||||||||||||||||||||||||||||||
| ||||||||||||||||||||||||||||||||||||||||||||||||||||





