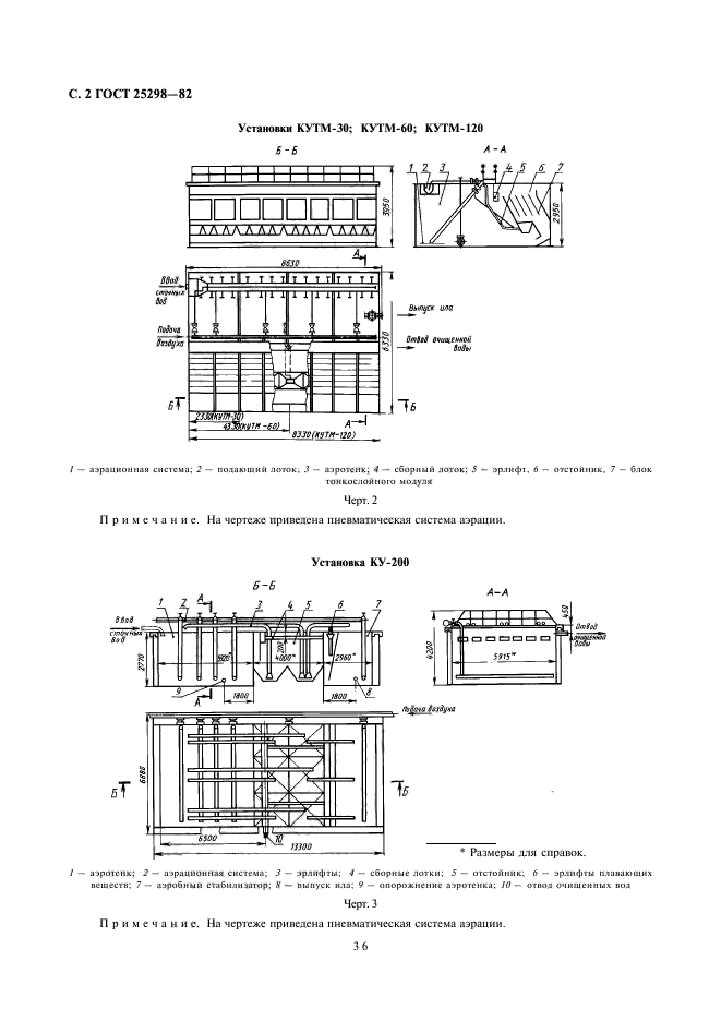
Установки компактные для очистки бытовых сточных вод. Типы, основные параметры и размеры
На нашем сайте можно бесплатно скачать ГОСТ 25298-82 в удобном формате. Узнать актуальный статус ГОСТА «Установки компактные для очистки бытовых сточных вод. Типы, основные параметры и размеры» на 2016 год.
Скрыть дополнительную информацию
Страница 1

Страница 2

Страница 3

Страница 4
