Система проектной документации для строительства. Пути железнодорожные. Рабочие чертежи
Действие завершено 01.01.1997
Утратил силу в РФ
Заменяет СН 460-74: Генеральный план и транспорт
Документ завершил свое действие. Вы можете скачать Руководящий документ ГОСТ 21.510-83 в удобном формате.
Скрыть дополнительную информацию
Страница 1

Страница 2

Страница 3

Страница 4

Страница 5

Страница 6

Страница 7

Страница 8

Страница 9

Страница 10

Страница 11

Страница 12

Страница 13

Страница 14

Страница 15

Страница 16

Страница 17

Страница 18

Страница 19

Страница 20

Страница 21

Страница 22

Страница 23

Страница 24

Страница 25
ГОСУДАРСТВЕННЫЙ СТАНДАРТ
СОЮЗА ССР
СИСТЕМА ПРОЕКТНОЙ ДОКУМЕНТАЦИИ ДЛЯ СТРОИТЕЛЬСТВА
ПУТИ ЖЕЛЕЗНОДОРОЖНЫЕ
РАБОЧИЕ ЧЕРТЕЖИ
ГОСТ 21.510-83
ГОСУДАРСТВЕННЫЙ КОМИТЕТ СССР
ПО ДЕЛАМ СТРОИТЕЛЬСТВА
Москва
РАЗРАБОТАН
Ленинградским государственным проектно-изыскательским институтом «Ленгипротранс» Минтрансстроя
Всесоюзным проектным и научно-исследовательским институтом «Промтрансниипроект» Госстроя СССР
Проектным институтом № 2 Госстроя СССР
ИСПОЛНИТЕЛИ
С.Ф. Тархов, П.И. Зарубин (руководители темы), А.В. Баранов, В.А. Решетников, Б.М. Розенберг
ВНЕСЕН Министерством транспортного строительства
Зам. министра Н.И. Литвин
УТВЕРЖДЕН И ВВЕДЕН В ДЕЙСТВИЕ Постановлением Государственного комитета СССР по делам строительства от 16 февраля 1983 г. № 26
ГОСУДАРСТВЕННЫЙ СТАНДАРТ СОЮЗА ССР
|
Система проектной документации для строительства ПУТИ ЖЕЛЕЗНОДОРОЖНЫЕ РАБОЧИЕ ЧЕРТЕЖИ System of design for construction. Railway tracks. Working |
ГОСТ |
Постановлением Государственного комитета СССР по делам строительства от 16 февраля 1983 г. № 26 срок введения установлен
с 01.01.84
Несоблюдение стандарта преследуется по закону
Настоящий стандарт устанавливает состав и правила оформления рабочих чертежей новых и реконструируемых железнодорожных путей.
1. ОБЩИЕ ПОЛОЖЕНИЯ
1.1. Рабочие чертежи новых и реконструируемых железнодорожных путей выполняют в соответствии с требованиями настоящего стандарта, других стандартов системы проектной документации для строительства и норм проектирования железных дорог.
1.2. В состав рабочих чертежей железнодорожных путей (основной комплект рабочих чертежей марки ПЖ) включают:
общие данные по рабочим чертежам;
план железнодорожных путей;
продольные профили железнодорожных путей. Для внутриплощадочных железнодорожных путей продольные профили выполняют, как правило, для участков, где не предусмотрена вертикальная планировка*;
_____________
* В качестве внутриплощадочных железнодорожных путей, здесь и далее рассматриваются железнодорожные пути, расположенные на территории предприятия в пределах ограждения или условной границы, а также веер железнодорожных путей за пределами территории предприятия.
поперечные профили земляного полотна железнодорожных путей, а для внутриплощадочных железнодорожных путей — поперечные профили земляного полотна и верхнего строения;
продольные профили водоотводных и нагорных канав;
планы путевого развития станций, разъездов и обгонных пунктов.
1.3. Масштабы изображений на чертежах принимают по таблице.
|
Наименование изображения |
Масштаб изображения |
|
|
основной |
допускаемый при обосновании |
|
|
План железнодорожных путей (кроме внутриплощадочных) |
1:2000 |
1:5000; 1:1000 |
|
План внутриплощадочных железнодорожных путей |
1:1000 |
1:2000; 1:500 |
|
Продольные профили железнодорожных путей (кроме внутриплощадочных) |
По горизонтали 1:10000 |
По горизонтали 1:5000; 1:2000 |
|
По вертикали 1:200 |
По вертикали 1:500 |
|
|
Продольные профили внутриплощадочных железнодорожных путей |
По горизонтали 1:5000 |
По горизонтали 1:2000 |
|
По вертикали 1:500 |
По вертикали 1:200 |
|
|
Поперечные профили земляного полотна железнодорожных путей (кроме внутриплощадочных) |
1:200 |
1:100 |
|
Поперечные профили земляного полотна и верхнего строения внутриплощадочных железнодорожных путей |
1:50 |
1:100 |
|
Продольные профили водоотводных и нагорных канав |
По горизонтали 1:5000 |
По горизонтали 1:2000 |
|
По вертикали 1:200 |
По вертикали 1:200 |
|
|
Планы путевого развития станций, разъездов и обгонных пунктов |
1:1000 |
1:2000; 1:500 |
1.4. Рабочие чертежи основного комплекта марки ПЖ выполняют на листах шириной 297 мм, или, при необходимости, 594 мм, и длиной, кратной 210 мм, или шириной 420 мм и длиной, кратной 297 мм, ограничивая длину листа длиной перегона или путевого развития станции, разъезда или обгонного пункта в масштабе чертежа.
1.5. Допускается размещать на одном листе планы железнодорожных путей, продольные и поперечные профили, указанные в таблице.
1.6. Размеры на изображениях указывают в метрах без десятичных знаков или с точностью до сантиметра.
Высоты и отметки уровней указывают в метрах с точностью до сантиметра, за исключением отметок реперов, указываемых с точностью до миллиметра
1.7. Величину углов указывают в градусах с точностью до одной минуты, а при необходимости — до одной секунды.
1.8. Величину уклона указывают в промилле без обозначения единицы измерения.
Крутизну откосов указывают в виде дроби, например, 1:1,5; 1:2.
1.9. Масштаб изображения указывают в основной надписи после наименования изображения (кроме масштабов на изображении продольного профиля).
Если на листе помещено несколько изображений в разных масштабах, то масштабы указывают на поле чертежа под наименованием каждого изображения
Масштабы изображения продольного профиля указывают в левом верхнем углу листа.
1.10. Изображения на чертежах основного комплекта марки ПЖ выполняют линиями по ГОСТ 2.303-68:
сплошной толстой основной:
на планах — проектируемые железнодорожные пути, контуры проектируемых зданий и сооружений, проектируемые инженерные сети;
на продольных профилях — проектную линию, линии ординат от точек переломов проектной линии, прямые и кривые в плане, развернутый план пути;
на поперечных профилях — проектные контуры, линии ординат от точек переломов проектных контуров;
сплошной тонкой:
на планах — строительную геодезическую сетку, существующие железнодорожные пути, контуры существующих зданий и сооружений;
на продольных и поперечных профилях — линию фактической поверхности земли и линии ординат от точек ее переломов, подошвы слоев грунта.
1.11. Ориентация продольного профиля железнодорожных путей должна соответствовать их ориентации, принятой на плане железнодорожных путей.
При выполнении поперечных профилей железнодорожных путей направление взгляда принимают в сторону возрастания километров или пикетов для внутриплощадочных путей.
1.12. Система координат и высотных отметок, принимаемая в рабочих чертежах внутриплощадочных железнодорожных путей, должна соответствовать системе координат и высотных отметок, принятой в рабочих чертежах генерального плана предприятия.
1.13. На планах и продольных профилях наносят расстояния от пикетов до элементов железнодорожных путей, например, указателей километров, начал и концов кривых с одной стороны линии ординат.
При совпадении линии ординат с пикетом, привязки до указанных элементов железнодорожных путей на линии ординат не наносят.
1.14. На листах планов, продольных и поперечных профилей над основной надписью помещают технические требования и текстовые пояснения к рабочим чертежам.
2. ОБЩИЕ ДАННЫЕ ПО РАБОЧИМ ЧЕРТЕЖАМ
2.1. Общие данные по рабочим чертежам, входящим в основной комплект марки ПЖ, выполняют по ГОСТ 21.102-79 с учетом следующих изменений и дополнений:
ведомость спецификаций не приводится;
дополнительно приводят сведения о принятой при топографической съемке системе высот, а также указывают номер, отметку и местоположение исходного репера.
3. ПЛАН ЖЕЛЕЗНОДОРОЖНЫХ ПУТЕЙ
3.1. На плане железнодорожных путей наносят и указывают:
ситуацию местности (на плане внутриплощадочных железнодорожных путей ситуацию местности наносят, как правило, за пределами ограждения или условной границы территории предприятия);
рельеф местности (при необходимости);
Ведомость координат и элементов плана внутриплощадочных железнодорожных путей
Форма 1
Черт. 1
вершины углов поворота железнодорожных путей, пикеты, знаки и линии тангенсов, указатели километров;
числовые значения элементов кривых: углов поворота, радиусов, тангенсов, суммарных длин круговых и переходных кривых, длин переходных кривых;
здания и сооружения без координационных осей;
переезды;
инженерные сети;
геодезические знаки, например, реперы, пункты геодезических сетей местного значения;
станции, разъезды, обгонные пункты и их названия;
указатель направления на север стрелкой с буквой «С» у острия (в левом верхнем углу листа).
На плане железнодорожных путей (за исключением плана внутриплощадочных железнодорожных путей), кроме того, наносят и указывают:
границу отвода земель для строительства железнодорожных путей с применением условных знаков для топографических планов масштаба 1:5000, 1:2000, 1:1000, 1:500, утвержденных Главным управлением геодезии и картографии при Совете Министров СССР;
привязку к пикетам существующих железнодорожных путей, автомобильных дорог и инженерных сетей в местах их пересечений с проектируемыми железнодорожными путями.
На плане внутриплощадочных железнодорожных путей также наносят и указывают:
строительную геодезическую сетку;
проектные горизонтали через 0,10 — 0,20 м, а в случае выполнения проекта организации рельефа в проектных отметках — проектные отметки в характерных точках рельефа;
номера путей;
привязку к пикетам пересекаемых инженерных сетей, начал и концов кривых, координаты точек (вершин) углов поворота и их номера по главным путям. При насыщенном плане привязку к пикетам, координаты точек (вершин) углов поворота, а также числовые значения элементов кривых помещают в таблице (форма 1) на листе чертежа, а на плане указывают только числовые значения углов поворота и радиусов;
стрелочные переводы, привязку центров стрелочных переводов к пикетам, а при их отсутствии — координаты центров;
уклоноуказатели;
расстояния между осями путей, а при необходимости — между осями путей и зданиями (сооружениями);
упоры;
откосы насыпей и выемок:
Черт. 2
водоотводные сооружения, например, кюветы, лотки с отметками дна в местах переломов продольного профиля и величиной уклонов дна сооружений.
3.2. На плане внутриплощадочных железнодорожных путей допускается для станций, разъездов и постов дополнительно к строительной геодезической сетке применять станционную систему координат (см. разд. 8). Станционная система координат должна иметь привязку к строительной геодезической сетке, а при ее отсутствии к сети местной полигонометрии.
3.3. Ориентация плана внутриплощадочных железнодорожных путей должна соответствовать, как правило, ориентации, принятой на чертежах генерального плана предприятия. Допускается план внутриплощадочных железнодорожных путей изображать с поворотом до 90° по отношению к их расположению на чертеже генерального плана.
Пример оформления плана железнодорожных путей приведен на черт. 1.
Допускается план железнодорожных путей (кроме внутриплощадочных) выполнять с угловыми рассечками, позволяющими с помощью фальцовки по линии рассечек воспроизводить полное масштабное изображение плана железнодорожных путей (черт. 2).
Пример оформления плана внутриплощадочных железнодорожных путей с таблицей по форме 11 приведен на черт. 3.
3.4. На листах планов железнодорожных путей помещают спецификации элементов сборных конструкций по ГОСТ 21.104-79, а на листе плана внутриплощадочных железнодорожных путей, кроме того, помещают:
экспликацию зданий и сооружений, примыкающих к путям, по форме, установленной для генерального плана предприятия;
ведомость координат и элементов плана внутриплощадочных железнодорожных путей;
ведомость железнодорожных путей;
ведомость стрелочных переводов.
3.5. Ведомость координат и элементов плана внутриплощадочных железнодорожных путей выполняют по форме 1.
В графах ведомости указывают:
в графе «Обозначение» — номер или наименование координируемой точки;
в графах «Координата точки»: А — координата точки по горизонтальной оси строительной геодезической сетки, Б — по вертикальной оси.
Остальные графы ведомости заполняют в соответствии с их наименованием.
Пример оформления ведомости координат и элементов плана внутриплощадочных железнодорожных путей приведен в справочном приложении 1.
3.6. Ведомость железнодорожных путей выполняют по форме 2.
Ведомость железнодорожных путей
Форма 2
В графах ведомости указывают:
в графе «№ пути» — номер железнодорожного пути, принятый на его плане;
в графе «Наименование» — наименование железнодорожного пути, например, главный, приемо-отправочный.
Для внутриплощадочных железнодорожных путей графа не приводится;
в графе «Граница пути от стрелки» — номер стрелки, от которой исчисляется полная длина железнодорожного пути;
Черт. 3
в графе «Граница пути через стрелки» — номера стрелок, расположенных на протяжении железнодорожного пути, длина которого исчисляется;
в графе «Граница пути до стрелки (упора)» — номер стрелки или упора, на которых оканчивается исчисление длины железнодорожного пути;
в графе «Длина пути полная» — длина железнодорожного пути между его границами (от стрелки до стрелки или упора), включая длину стрелочных переводов;
в графе «Длина пути полезная» — длина железнодорожного пути, в пределах которой допускается стоянка поезда или железнодорожного состава.
Для внутриплощадочных железнодорожных путей графа не приводится;
в графе «Тип поперечного профиля» — номер типа поперечного профиля земляного полотна и верхнего строения внутриплощадочных железнодорожных путей.
Пример оформления ведомости железнодорожных путей приведен в справочном приложении 2.
3.7. Ведомость стрелочных переводов выполняют по форме 3.
Ведомость стрелочных переводов
Форме 3
В графах ведомости указывают:
в графе «Сторонность» — сторонность стрелки в зависимости от направления отклонения железнодорожного пути — правый или левый стрелочные переводы;
в графе «Тип стрелочного перевода» — наименование стрелочного перевода, например, обыкновенный, симметричный, сдвоенный.
Остальные графы ведомости заполняют в соответствии с их наименованием.
Пример оформления ведомости стрелочных переводов приведен в справочном приложении 3.
4. ПРОДОЛЬНЫЕ ПРОФИЛИ ЖЕЛЕЗНОДОРОЖНЫХ ПУТЕЙ
4.1. На продольном профиле железнодорожного пути наносят линию фактической поверхности земли по оси железнодорожного пути и линию проектируемой бровки земляного полотна.
На продольном профиле внутриплощадочного железнодорожного пути вместо линии проектируемой бровки земляного полотна наносят линию проектируемой головки рельса, а при необходимости — верха земляного полотна.
На продольном профиле реконструируемого железнодорожного пути наносят линию фактической поверхности земли по подошве насыпи или бровке выемки существующего земляного полотна со стороны второго пути, линии существующей и проектируемой головки рельса и низа существующего балластного слоя.
4.2. На продольном профиле железнодорожного пути наносят и указывают:
разведочные геологические выработки, влажность и консистенцию слоев грунта (условным обозначением), отметки уровня грунтовых вод с датой замера;
подошвы слоев грунта;
наименования слоев грунта и номера их групп (например, суглинок 31а, песок 25б) в соответствии с классификацией грунта по трудности разработки.
Выше проектной линии, кроме того, наносят и указывают:
станции, разъезды, обгонные пункты, их названия и расстояния между ними;
реперы, переезды, водораздельные дамбы, наименования проектируемых искусственных сооружений, надземные и наземные инженерные сети;
примыкания железнодорожных путей;
водоотводные канавы, сбросы воды;
рабочие отметки насыпи;
величины досыпки земляного полотна при реконструкции железнодорожных путей.
Ниже проектной линии также наносят и указывают:
линии ординат от точек переломов проектной линии, а на продольных профилях внутриплощадочных железнодорожных путей, кроме того, — линии ординат от точек переломов линии фактической поверхности земли.
На продольном профиле внутриплощадочных железнодорожных путей вдоль линий ординат наносят наименования пересекаемых железнодорожным путем водоотводных сооружений, инженерных сетей, автомобильных дорог и железнодорожных путей;
рабочие отметки выемок;
обозначение искусственных сооружений и наименование существующих искусственных сооружений;
подземные инженерные сети;
величины срезки земляного полотна при реконструкции железнодорожных путей.
4.3. При отходе проектируемого железнодорожного пути от существующей станции проектную линию в месте перехода от отметки головки рельса к отметке бровки земляного полотна изображают ступенькой.
Форма 4
Форма 5
Отметки уровня земли между пикетами и плюсовыми точками, вычисленные методом интерполяции, приводят в скобках.
4.4. Под продольным профилем помещают таблицу (сетку):
для вновь проектируемых железнодорожных путей (кроме внутриплощадочных) — по форме 4;
для реконструируемых железнодорожных путей (кроме внутриплощадочных) — по форме 5;
для вновь проектируемых внутриплощадочных железнодорожных путей — по форме 6;
для реконструируемых внутриплощадочных железнодорожных путей — по форме 7.
Форма 6
Форма 7
В графах таблиц указывают и изображают:
в графе «отметка головки рельса» — отметку головки любого рельса железнодорожного пути на прямых участках, внутреннего — на кривых;
в графе «уклон, длина» — над чертой — величину уклона земляного полотна по его бровке и привязку к пикетам, под чертой — длину участка земляного полотна с принятым уклоном;
в графе «уклон» — величину уклона железнодорожного пути;
в графе «Развернутый план пути» — проектируемый железнодорожный путь по его оси, ситуацию местности (например, угодья и их границы, водотоки, инженерные сети), разведочные геологические выработки, раздельные пункты, а при реконструкции, кроме того, существующие железнодорожные пути;
в графе «Инженерно-геологическая характеристика» — краткое описание физико-механических свойств слоев грунта, являющихся основанием насыпей или балластного слоя в выемках;
в графе «тип поперечного профиля» — на участках железнодорожного пути, на которых земляное полотно проектируется по типовым поперечным профилям, — номера типов поперечных профилей; на участках железнодорожного пути, на которых земляное полотно проектируется по индивидуальным поперечным профилям, — номера основных комплектов рабочих чертежей где изображены эти профили.
Для внутриплощадочных железнодорожных путей в графе, кроме того, указывают привязку к пикетам
в графе «отметка земли» — фактические отметки поверхности земли по оси железнодорожного пути, а для реконструируемого железнодорожного пути (кроме внутриплощадочного) — по подошве насыпи или бровке выемки существующего земляного полотна со стороны второго пути;
в графе «расстояние» — неправильные пикеты, а при наличии плюсовых точек, кроме того, расстояния между указанными точками, а также между плюсовыми точками и пикетами.
При строительстве второго железнодорожного пути (кроме внутриплощадочного) неправильные пикеты указывают в графе «Пикеты неправильные»;
в графе «Прямые и кривые в плане» — числовые значения длин прямых и элементов кривых-углов поворота, радиусов, тангенсов, суммарных длин круговых и переходных кривых длину переходной кривой.
Поворот железнодорожного пути вправо (по ходу километров) изображают кривой направленной вверх по отношению к прямому участку железнодорожного пути, а влево — направленной вниз;
в графе «Толщина балластного слоя под шпалой существующего пути» при однослойном балласте — толщину балластного слоя одним числом; при двухслойном — в виде дроби, над чертой которой указывают толщину верхнего слоя, под чертой — нижнего;
в графе «укрепление» — мероприятия по укреплению кюветов.
Остальные графы таблиц заполняются в соответствии с их наименованием, при этом графы «Категория просадочности и относительная осадка торфа» и «Категория просадочности и относительная осадка минеральных слоев грунта в основании земляного полотна» приводятся при наличии на участке строительства железнодорожных путей вечной мерзлоты.
4.5. При большом количестве плюсовых точек на отдельных пикетах на листе продольного профиля помещают таблицу выноски отметок и расстояний (форма 8).
В графах таблицы указывают:
в графе «Пикет, плюс» — номер пикета и расстояния от него до точки перелома местности;
в графе «Расстояние» — расстояния между точками перелома местности;
в графе «Отметка фактическая» — фактическую отметку поверхности земли в точке перелома местности;
в графе «Отметка проектная» — проектную отметку бровки (оси) земляного полотна в точке перелома проектной линии и местности;
в графе «Рабочая отметка насыпи» — отметку, показывающую разность между проектной и фактической отметками земли в насыпи;
в графе «Рабочая отметка выемки» — отметку, показывающую разность между фактической и проектной отметками земли в выемке.
Допускается отдельные пикеты продольного профиля с большим количеством плюсовых точек или пересекаемых инженерных сетей изображать в более крупном масштабе, чем это принято для профиля в целом.
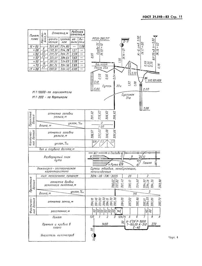
Пример оформления продольного профиля проектируемого железнодорожного пути (кроме внутриплощадочного) форма 4 и 8 с отходом указанного пути от существующей железнодорожной станции приведен на черт. 4.
Пример оформления продольного профиля реконструируемого железнодорожного пути (кроме внутриплощадочного) с таблицей по форме 5 приведен на черт. 5
Пример оформления продольного профиля проектируемого внутриплощадочного железнодорожного пути с таблицей по форме 6 приведен на черт. 6.
Форма 8
|
Пикет, плюс |
Расстоянием |
Отметка, м |
Рабочая отметка, м |
|||
|
фактическая |
проектная |
насыпи |
выемки |
|||
|
16 + 00 |
395,88 |
394,80 |
— |
1,08 |
||
|
8 |
||||||
|
+08 |
393,51 |
394,78 |
1,27 |
— |
||
|
22 |
||||||
|
+30 |
391,72 |
394,71 |
2,99 |
— |
||
|
22 |
||||||
|
+52 |
391,01 |
394,64 |
3,63 |
— |
||
|
3 |
||||||
|
+55 |
391,55 |
394,63 |
3,08 |
— |
||
|
18 |
||||||
|
+73 |
391,75 |
394,58 |
2,83 |
— |
||
|
27 |
||||||
|
17 + 00 |
393,51 |
394,50 |
0,99 |
— |
||
Черт. 4
Черт. 5
Черт. 6
5. ПОПЕРЕЧНЫЕ ПРОФИЛИ ЗЕМЛЯНОГО ПОЛОТНА ЖЕЛЕЗНОДОРОЖНЫХ ПУТЕЙ (КРОМЕ ВНУТРИПЛОЩАДОЧНЫХ)
5.1. На поперечном профиле земляного полотна железнодорожного пути наносят и указывают:
линию фактической поверхности земли, линии ординат от точек перелома линии фактической поверхности земли, инженерные сети. При реконструкции, кроме того, — контур существующего земляного полотна с балластной призмой, оси существующих железнодорожных путей, отметки головки рельса существующего пути (СГР);
подошвы слоев грунта;
разведочные геологические выработки (при их наличии), влажность и консистенцию слоев грунта (условным обозначением), отметки уровня грунтовых вод с датой замера (при необходимости);
наименования слоев грунта и номера их групп (например, суглинок 31а, песок 25б) в соответствии с классификацией грунта по трудности разработки;
оси и номера проектируемых железнодорожных путей;
контур проектируемого земляного полотна, линии ординат от точек перелома указанного контура, крутизну откосов;
контуры срезки плодородного слоя грунта, удаления торфа и замены непригодного грунта;
расстояния между осями путей;
отметки головки рельса проектируемого пути (ПГР);
номера разбираемых путей и существующих, которым присваивают новые номера (указывают в скобках);
привязку поперечного профиля к пикетам.
5.2. Над каждым поперечным профилем земляного полотна, изображенным на листе, слева помещают числовые значения площадей поперечных сечений, например, насыпей (Ан.), выемок (Ав.), канав (Акан.), кюветов (Ак.) с указанием номеров групп слоев грунта в соответствии с классификацией грунта по трудности разработки.
5.3. Поперечные профили земляного полотна, различающиеся конфигурацией и конструкцией земляного полотна, подразделяют на типы и обозначают арабскими цифрами после слова «Тип». Например, «Тип 1», «Тип 2».
Типы поперечных профилей земляного полотна указывают на изображении продольного профиля.
5.4. Под поперечным профилем земляного полотна помещают таблицу (сетку) по форме 9.
В графах таблицы указывают:
в графе «Проектные данные» — отметки точек переломов проектного контура проектируемого (реконструируемого) земляного полотна и расстояния между этими точками (по горизонтали);
в графе «Фактические данные» — отметки линии фактической поверхности земли в точках перелома линии поверхности земли и расстояния между этими точками (по горизонтали).
5.5. При размещении на листе двух и более поперечных профилей земляного полотна боковик таблицы показывают только у первого поперечного профиля.
Пример оформления поперечного профиля земляного полотна с таблицей по форме 9 проектируемого железнодорожного пути приведен на черт. 7, а реконструируемого — на черт. 8.
Форма 9
Черт. 7
Черт. 8
6. ПОПЕРЕЧНЫЕ ПРОФИЛИ ЗЕМЛЯНОГО ПОЛОТНА И ВЕРХНЕГО СТРОЕНИЯ ВНУТРИПЛОЩАДОЧНЫХ ЖЕЛЕЗНОДОРОЖНЫХ ПУТЕЙ
6.1. На поперечном профиле земляного полотна и верхнего строения внутриплощадочных железнодорожных путей (черт. 9) наносят и указывают:
ось пути;
контур проектируемого земляного полотна, а при реконструкции, кроме того, — существующего;
водоотводные устройства (например, кюветы, лотки, дренажи) и их размеры,
крутизну откосов и направление уклонов прилегающей территории;
конструкцию верхнего строения пути с указанием толщины балластного слоя;
тип рельсов, число шпал на 1 км железнодорожного пути, тип шпал.
Черт. 9
6.2. Поперечные профили земляного полотна и верхнего строения внутриплощадочных железнодорожных путей, различающиеся конфигурацией, вертикальной планировкой прилегающей территории, способом отвода воды, подразделяют на типы и обозначают арабскими цифрами после слова «Тип», например, «Тип 1», «Тип 2».
При применении различных типов верхнего строения внутриплощадочных железнодорожных путей, различающихся типом рельсов, числом шпал на 1 км железнодорожного пути, толщиной и родом балласта, типы поперечного профиля подразделяют на подтипы, с дополнительным обозначением их буквенными индексами, например, «Тип 1а», «Тип 1б».
Типы поперечных профилей земляного полотна и верхнего строения внутриплощадочных железнодорожных путей указывают на изображении продольного профиля внутриплощадочных железнодорожных путей и в ведомости железнодорожных путей (см. форму 2).
7. ПРОДОЛЬНЫЕ ПРОФИЛИ ВОДООТВОДНЫХ И НАГОРНЫХ КАНАВ
7.1. На продольном профиле водоотводных и нагорных канав наносят и указывают:
линию фактической поверхности земли по осям канав, линии ординат от точек перелома линии фактической поверхности земли;
проектную линию дна канав, линии ординат от точек перелома проектной линии дна канав;
искусственные сооружения для пропуска воды с отметками дна входных и выходных лотков, дамбы;
линию проектируемой бровки земляного полотна;
линию дна проектируемого кювета;
инженерные сети;
рабочие отметки канав;
места выпусков канав.
7.2. Под продольным профилем водоотводных и нагорных канав помещают таблицу (сетку) по форме 10.
Форма 10
В графах таблицы указывают:
в графе «Грунт» — номер слоя грунта, в соответствии с классификацией слоев грунта по трудности разработки;
в графе «уклон, длина» — величину уклона дна канавы и привязку к пикетам, длину участка дна канавы с принятым уклоном;
в графе «отметка земли» — отметки линии фактической поверхности земли по оси канавы;
в графе «расстояние» — расстояние между точками перелома поверхности земли (по горизонтали) по оси железнодорожного пути.
Остальные графы таблицы заполняются в соответствии с их наименованием.
Пример оформления продольного профиля водоотводных и нагорных канав с таблицей по форме 10 приведен на черт. 10.
Черт. 10
8. ПЛАНЫ ПУТЕВОГО РАЗВИТИЯ СТАНЦИЙ, РАЗЪЕЗДОВ И ОБГОННЫХ ПУНКТОВ
8.1. На плане путевого развития станции, разъезда или обгонного пункта наносят и указывают:
съемочное обоснование;
ситуацию и рельеф местности;
железнодорожные пути (по осям) и их номера;
пикеты и указатели километров по оси главного пути;
вершины углов поворота и их номера, знаки тангенсов;
центры, номера и марки стрелочных переводов. Марки стрелочных переводов 1/9 допускается не указывать;
расстояния между осями путей;
полезную длину путей;
расчетные расстояния между основными элементами проектируемых железнодорожных путей, например, центрами стрелочных переводов и ближайшими тангенсами кривых;
здания и сооружения, без координационных осей, с привязкой их к осям координат станционной системы.
В качестве осей координат станционной системы принимают, как правило, ось пассажирского или иного станционного здания, проведенную под углом 90° к главному пути станции, разъезда или обгонного пункта и ось главного пути, а при реконструкции — базис, совпадающий с осью главного пути или параллельный ей;
искусственные сооружения;
сигналы и





















