Система проектной документации для строительства. Архитектурные решения. Рабочие чертежи

Страница 1

Страница 2

Страница 3

Страница 4

Страница 5

Страница 6

Страница 7

Страница 8

Страница 9

Страница 10

Страница 11

Страница 12

Страница 13

Страница 14

Страница 15

Страница 16

Страница 17

Страница 18

Страница 19
Цена 10 коп.
ГОСУДАРСТВЕННЫЙ СТАНДАРТ СОЮЗА ССР
СИСТЕМА ПРОЕКТНОЙ ДОКУМЕНТАЦИИ ДЛЯ СТРОИТЕЛЬСТВА
АРХИТЕКТУРНЫЕ РЕШЕНИЯ. РАБОЧИЕ ЧЕРТЕЖИ
ГОСТ 21.501-80
Издание официальное
ГОСУДАРСТВЕННЫЙ КОМИТЕТ СССР ПО ДЕЛАМ СТРОИТЕЛЬСТВА Москва
РАЗРАБОТАН
Центральным институтом типового проектирования (ЦИТП) Госстроя СССР Проектным институтом № 2 Госстроя СССР
Государственным ордена Трудового Красного Знамени проектным институтом «Промстройпроект» Госстроя СССР
ИСПОЛНИТЕЛИ
Зюзин С. И. (руководитель темы), В. П. Абарыков, А. В. Баранов, Л. В. Леонова, Л. М. Мещанов, В. А. Рябова, Н. В. Терентьева, П. И. Тумаркин
ВНЕСЕН Центральным институтом типового проектирования (ЦИТП) Госстроя СССР
УТВЕРЖДЕН И ВВЕДЕН В ДЕЙСТВИЕ Постановлением Государственного комитета СССР по делам строительства от 22 октября 1980 г. № 167
ГОСТ 21.501-80 Стр. 9
проемы ворот;
железнодорожные и технологические напольные рельсовые пути; границы участков помещений с полами различной конструкции;
привязку к координационным осям здания (сооружения) границ участков с полами разного типа, не ограниченных стенами, перегородками или координационными осями;
типы полов. Обозначения типов полов проставляют в кружке диаметром 5 мм; ссылки на узлы сопряжения полов с конструкциями здания (сооружения) и на узлы устройства полов в местах сопряжения различных конструкций пола (например, в местах деформационных швов, утолщений подстилающих слоев).
7.2. В выносных надписях на плане полов приводят ссылки на планы или фрагменты планов этажей, на которых показаны уклоны полов, расположение каналов, лотков, трапов, устраиваемых в конструкции пола.
Пример выполнения плана полов приведен на черт. 7.
План полов на отм. 0,000
Черт. 7
7.3. На листах с изображением планов полов помещают экспликацию полов по форме Пример выполнения экспликации приведен в справочном приложении 7.
Допускается экспликацию полов совмещать с ведомостью отделки помещений.
Экспликация полов
Форма 5
5.
|
Наименование или номер помещении по проекту |
Тип пола ПО проек ту |
Схема пела или номер узла по серии |
Элементы пола и их толщина |
Площадь пола , м2 |
->5 |
|
|
С ••sj £ СО с |
||||||
|
лл |
А Л |
|||||
|
V 25 |
15 |
• |
V 85 с— — —- |
20 Г— — |
||
|
-} |
185 |
с |
||||
|
•? |
||||||
УДК 744.4:69:006.354
ГОСУДАРСТВЕННЫЙ
С ТАНДАРТ
СОЮЗА
Группа Ж01 ССР
Система проектной документации дла строительства
АРХИТЕКТУРНЫЕ РЕШЕНИЯ. РАБОЧИЕ ЧЕРТЕЖИ
System of design documents for construction. Architectural solutions.
Working drawings
ГОСТ
21.501-80
Постановлением Государственного комитета СССР по делам строительства от 22 октября 1980 г. № 167 срок введе. ния установлен
с 01.07 1981 г.
Несоблюдение стандарта преследуется по закону
Настоящий стандарт устанавливает состав и правила оформления рабочих чертежей архитектурных решений зданий и сооружений всех отраслей промышленности и народного хозяйства.
1. ОБЩИЕ ПОЛОЖЕНИЯ
1.1. Рабочие чертежи архитектурных решений зданий и сооружений выполняют в соответствии с требованиями настоящего стандарта и других стандартов системы проектной документации для строительства.
1.2. В состав рабочих чертежей архитектурных решений включают:
рабочие чертежи, предназначенные для производства строительно-монтажных работ (основной комплект рабочих чертежей марки АР);
рабочие чертежи элементов сборных конструкций*, на которые приводятся ссылки в основном комплекте рабочих чертежей марки АР; ведомость потребности в материалах.
1.3. В состав основного комплекта рабочих чертежей марки АР включают: общие данные по рабочим чертежам;
планы этажей, в том числе подвала и технического подполья;
разрезы;
фасады;
план кровли (крыши);
планы полов (при необходимости);
схемы расположения элементов сборных конструкций и элементов заполнения оконных проемов. При наличии основного комплекта рабочих чертежей марок КМ или КМД схемы расположения металлических элементов конструкций и элементов заполнения оконных проемов приводят в основном комплекте указанных марок.
Объем замаркированных на рабочих чертежах основного комплекта марки АР сборных бетонных и железобетонных элементов конструкций включают в ведомость объемов сборных бетонных и железобетонных конструкций в составе рабочих чертежей основного комплекта марки КЖ.
1.4. Масштабы изображений на чертежах принимают по таблице.
|
Наименование |
Масштабы изображения |
|
|
Основной |
Допускаемый при большой насыщенности изображения |
|
|
1. Планы этажей (кроме технических), разрезы, фасады 2. Планы кровли, полов, технических этажей 3. Фрагменты планов, фасадов 4. Узлы |
1:200; 1:500 1:500; 1:1000 1:100 1:10; 1:20 |
1:100; 1:50 1:200 1:50 1:5 |
* В качестве элементов сборных конструкций здесь и далее рассматриваются изделия (например, щиты перегородок, ограждение лестниц), заранее изготовленные, как правило, в заводских условиях и примененные в этих конструкциях.
Издание официальное
Перепечатка воспрещена
© Издательство стандартов, 1982
Стр. 2 ГОСТ 21.501-80
2. ОБЩИЕ ДАННЫЕ ПО РАБОЧИМ ЧЕРТЕЖАМ
2.1. В состав общих данных основного комплекта рабочих чертежей марки АР, в дополнение к данным, предусмотренным ГОСТ 21.102-79, включают ведомость отделки помещений (допускается размещать ведомость на планах этажей).
2.2. Ведомость отделки помещений (форма 1) выполняют при отсутствии основного комплекта рабочих чертежей марки АИ.
Пример выполнения ведомости приведен в справочном приложении 1.
Ведомость отделки помещений
Форма 1
Площадь м2
|
Наименование или номер помещения |
Потолок |
Стены или перегородки |
Низ стен или перегородок (панель) |
Примечание |
* -ь |
5—* |
ч |
|||||||
|
Пло щадь |
Вид отделки |
Пло щадь |
Вид отделки |
Пло щадь |
Вид отделки |
Высо та, мм |
_ь |
|||||||
|
»• |
8 пип |
|||||||||||||
|
А |
||||||||||||||
|
ча |
15 |
г—W 30 |
15 |
, 30 |
,15 |
30 |
15 |
V V п X |
(15+30) |
■ ^ -Н |
У |
|||
|
I 1 |
||||||||||||||
Примечание. Количество граф определяется наличием элементов интерьера, подлежащих отделке.
2.3. В общих указаниях, в дополнение к сведениям, предусмотренным ГОСТ 21.102-79, приводят:
степень огнестойкости здания (сооружения); характеристику стеновых и изоляционных материалов; указания по устройству гидроизоляции и отмостки; указания о мероприятиях при производстве работ в зимнее время; указания по наружной отделке здания (сооружения);
указания о мероприятиях по ограничению шума, вибрации, по кондиционированию и герметизации помещений.
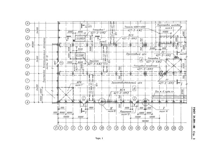
3. ПЛАНЫ ЭТАЖЕЙ
3.1. При выполнении плана этажа здания (сооружения) положение мнимой горизонтальной плоскости разреза принимают, как правило, на уровне 7з высоты изображаемого этажа или 1 м над изображаемым уровнем.
В случаях, когда оконные проемы расположены выше мнимой горизонтальной плоскости разреза по периметру плана следует располагать сечения соответствующих стен на уровне оконных проемов.
3.2. Встроенные помещения и другие участки здания (сооружения), на которые выполняют отдельные чертежи, на планах изображают схематично тонкой штриховой линией в виде перекрещенного контура с показом опорных конструкций.
3.3. Пристроенные части здания (сооружения), если на них разрабатывают отдельные чертежи, на плане этажа допускается полностью не показывать, ограничиваясь нанесением линии обрыва и наименования этих частей.
3.4. На планах этажей наносят и указывают:
координационные оси здания (сооружения), расстояния между ними и крайними осями, оси у деформационных швов;
отметки участков, расположенных на разных уровнях;
направление и величину уклона полов;
толщину стен и перегородок и их привязку;
все (независимо от размеров) проемы, отверстия, борозды, ниши и гнезда в стенах и перегородках с необходимыми размерами и привязками, за исключением предусмотренных в чертежах изделий или в рабочих чертежах марок КЖ, КМ и КМД. Для проемов с четвертями размеры показывают по наименьшей величине проема. Размеры дверных проемов в перегородках на планах не показывают.
Черт.
£ do 08— МГЦ 1DOJ
Стр. 4 ГОСТ 21.501-80
Допускается, при необходимости, отверстия, борозды, ниши и гнезда, а также встроенное оборудование, открывание и маркировку дверей изображать на отдельных планах расположения; размеры и привязку каналов, лотков и трапов, устраиваемых в конструкции пола; условные изображения подъемно-транспортного оборудования по ГОСТ 21.107-78 и привязку осей крановых путей к координационным осям здания (сооружения). В случае необходимости указывают зону действия кранов;
наименование помещений или технологических участков с указанием размещаемых в них производств по взрывной, взрыво-пожарной и пожарной опасности (категории производства);
площади помещений. Площади помещений приводят в нижнем правом углу плана и подчеркивают сплошной толстой линией;
тип заполнения проемов ворот и дверей, за исключением входящих в состав сборных стен и перегородок (в кружках диаметром 5 мм); тип перемычек;
марки элементов зданий (сооружений), например, лестниц;
ссылки на фрагменты и узлы, а также на чертежи элементов зданий (сооружений), замаркированных на планах этажей (например, на схемы расположения сборных перегородок).
Конструкции (например, площадки, антресоли), расположенные выше секущей плоскости, изображают схематично штрихпунктирной линией с двумя точками.
Тоннели изображают схематично тонкой штриховой линией.
3.5. Категории производств указывают под наименованием помещений в прямоугольнике размером 5×8 мм. Допуокается наименование помещений, их площади и категории размещаемых в них производств приводить в экспликации помещений (форма 2) с нумерацией помещений на плане. Номера помещений или технологических участков на планах проставляют в кружках диаметром 7—8 мм или овалах.
Нумерация помещений или технологических участков, принятая в различных основных комплектах,, должна совпадать с нумерацией помещений принятой по рабочим чертежам марки АР. Пример выполнения плана здания приведен на черт. 1.
Экспликация помещений
Форма 2
|
Номер по плану |
Наименование |
Площадь , М2 |
Категория производства по взрывной* ззрыво-пожарной и пожарной опасности |
|
|
с |
||||
|
ЛА |
||||
|
10 |
V 80 |
20 1 30 |
||
|
с- С_ |
Л 1 14-0 — —-—……………- —— «7 |
к |
||
Примечание. Для жилых и общественных зданий графу «Категория производства по взрывной, взрыво-пожарной и пожарной опасности» исключают.
3.6. На чертежах планов этажей помещают: ведомость проемов ворот и дверей (форма 3); ведомость перемычек (форма 4); спецификацию элементов заполнения проемов; спецификацию перемычек; спецификацию гардеробного оборудования.
Спецификации выполняют по форме 1 или 2 ГОСТ 21.104-79.
Примеры выполнения ведомости проемов ворот и дверей, ведомости перемычек, спецификации элементов заполнения проемов, спецификации перемычек, спецификации гардеробного оборудования приведены соответственно в справочных приложениях 2—6. Допускается ведомости и спецификации выполнять на отдельных листах, а также объединять указанные спецификации в одну, подразделяя ее подзаголовками.
ГОСТ 21.501-80 Стр. 5
Форма 3 Ведомость проемов ворот и дверей
|
Марка, поз. |
Размер проема ■ кладке |
|
АЛ |
|
|
20 |
V 70 |
|
1—7 |
90 |
Форма 4 Ведомость перемычек
|
Марка, поз. |
Схема сечения |
||
|
£; со |
|||
|
_лд |
|||
|
20 |
//7 |
||
|
90 |
С |
4. РАЗРЕЗЫ
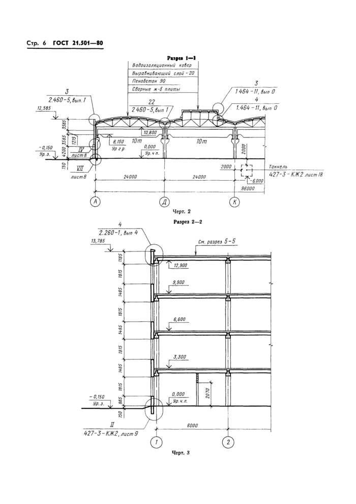
4.1. При выполнении разреза здания (сооружения) положение мнимой вертикальной плоскости разреза принимают, как правило, с таким расчетом, чтобы в изображение попадали проемы окон, наружных ворот и дверей. По участкам, особенности которых не выявлены в основных разрезах, приводят местные (частичные) разрезы.
4.2. Из видимых элементов на разрезах изображают только элементы конструкций здания (сооружения), подъемно-транспортное оборудование, открытые лестницы и площадки, находящиеся непосредственно за мнимой плоскостью разреза.
На разрезах здания (сооружения) без подвалов грунт и элементы конструкций, расположенные ниже фундаментных балок и верхней части ленточных фундаментов, не изображают. Тоннели показывают схематически тонкой штриховой линией.
4.3. Пол на грунте изображают одной сплошной толстой линией, пол на перекрытии и кровлю изображают одной сплошной тонкой линией независимо от числа слоев в их конструкции.
4.4. Состав и толщину слоев покрытия указывают в выносной надписи. Если в нескольких разрезах изображены покрытия, не отличающиеся по составу, выносную надпись приводят только на одном из разрезов, в других приводят ссылку на разрез, содержащий полную выносную надпись.
4.5. На разрезах наносят и указывают:
координационные оси здания (сооружения) и расстояния между ними и крайними осями, оси у деформационных швов;
отметки уровня земли, чистого пола этажей и площадок;
отметки низа несущих конструкций покрытия одноэтажных зданий (сооружений) и низа плит покрытия верхнего этажа многоэтажных зданий (сооружений);
отметку низа опорной части заделываемых в стены элементов конструкций; отметку верха стен, карнизов, уступов стен, головки рельсов крановых путей; размеры и привязку (по высоте) проемов, отверстий, ниш и гнезд в стенах и перегородках, изображаемых в сечении;
для проемов с четвертями размеры указывают по наименьшей величине проема; толщину стен и их привязку к координационным осям здания или сооружения (при необходимости) ;
марки элементов здания (сооружения), не замаркированных на планах и фасадах; ссылки на узлы, а также на чертежи элементов здания (сооружения), замаркированных на разрезах.
Примеры выполнения разрезов приведены на черт. 2 и 3.
5. ФАСАДЫ
5.1. На фасадах наносят и указывают:
координационные оси здания (сооружения), проходящие в характерных местах фасадов (например, крайние, у деформационных швов, в местах уступов в плане и перепада высот);
отметки уровня земли, входных площадок, верха стен, низа и верха проемов и расположенных на разных уровнях элементов фасадов (например, козырьков, выносных тамбуров). Допускается отметки низа и верха проемов указывать на разрезах;
отметки, размеры и привязки проемов и отверстий, не указанные на планах и разрезах; типы заполнения оконных проемор, если они не входят в состав элементов сборных конструкций стен;
Стр. 6 ГОСТ 21.501-80
Ptspet 1—1
Разрез 2—2
ГОСТ 21.501-80 Стр. 7
вид отделки отдельных участков стен, отличающихся от остальных (преобладающих); ссылки на фрагменты и узлы, а также на чертежи элементов здания (сооружения), не замаркированные на планах и разрезах;
наружные пожарные и эвакуационные лестницы, примыкание галерей.
5.2. Фасады зданий (сооружений) допускается использовать в качестве схем расположения элементов конструкций, заделываемых в кладку стен (например, перемычек).
Примеры выполнения фасада и его фрагмента приведены на черт. 4 и 5.
Фасад 1—22
Стр. 8 ГОСТ 21.501-80
6. ПЛАН КРОВЛИ (КРЫШИ)
6.1. На плане кровли (крыши) наносят:
крайние координационные оси с указанием расстояния между ними, оси у деформационных швов, в местах уступов в плане и перепадов высот, у водосточных воронок и торцов фонарей;
размеры участков с различной конструкцией и материалом кровли (крыши) (например, с лег-косбрасываемой кровлей);
марки парапетных плит, элементов металлических ограждений кровли (крыши) и пожарных лестниц и других (при необходимости) устройств и элементов. Допускается выполнять отдельные схемы расположения парапетных плит и элементов металлических ограждений кровли (крыши);
схематический поперечный профиль кровли (крыши) с указанием направления и величины уклонов покрытия;
ссылки на узлы, не замаркированные на разрезах и фасадах; обозначения местных уклонов.
Пример выполнения плана кровли приведен на черт. 6.
План кровли
6.2. Площадки, градирни и другие устройства, расположенные на кровле (крыше) здания (сооружения), на которые выполняют отдельные чертежи, изображают схематично со ссылкой на соответствующий чертеж.
7. ПЛАНЫ ПОЛОВ
7.1. На планах полов наносят и изображают:
координационные оси здания или сооружения (крайние, у деформационных швов и у границ участков с полами разного типа), расстояния между крайними осями;
стены здания (сооружения) и перегородки (кроме сборно-разборных, устанавливаемых на покрытие пола);



