Система проектной документации для строительства. Правила внесения изменений в рабочую документацию

стр.1

стр.2

стр.3

стр.4

стр.5

стр.6

стр.7

стр.8

стр.9

стр.10

стр.11

стр.12

стр.13

стр.14

стр.15

Страница 1

Страница 2

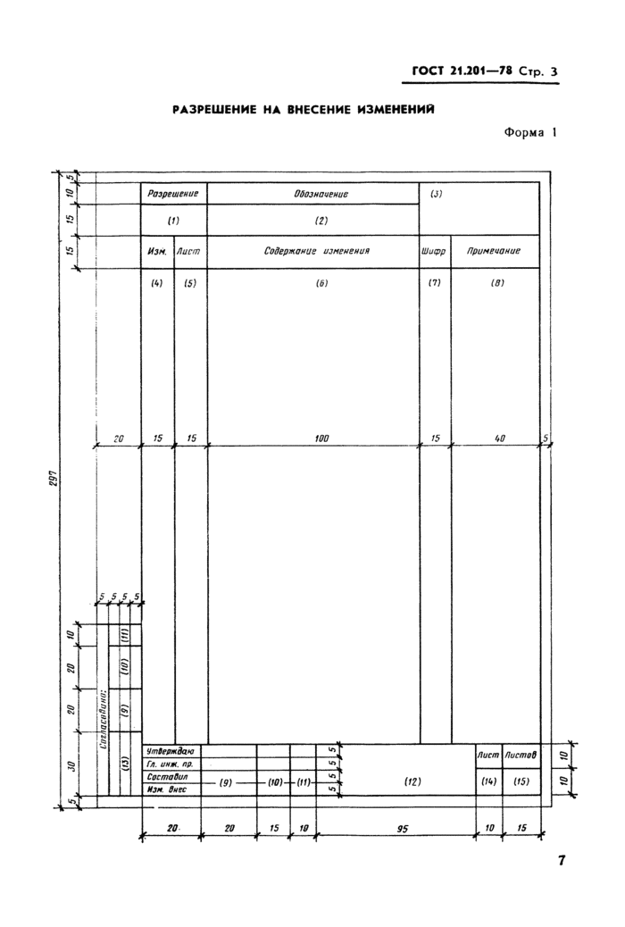
Страница 3

Страница 4

Страница 5

Страница 6

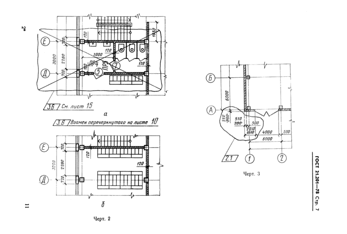
Страница 7

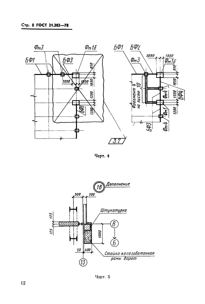
Страница 8

Страница 9

Страница 10

Страница 11

Страница 12

Страница 13

Страница 14

Страница 15
