Система проектной документации для строительства. Правила выполнения эскизных чертежей общих видов нетиповых изделий
Заменяет

Страница 1

Страница 2

Страница 3

Страница 4

Страница 5

Страница 6

Страница 7

Страница 8

Страница 9

Страница 10

Страница 11
межгосударственный совет по стандартизации, метрологии и сертификации
(МГС)
INTERSTATE COUNCIL FOR STANDARDIZATION, METROLOGY AND CERTIFICATION
(ISC)
ГОСТ
МЕЖГОСУДАРСТВЕННЫЙ СТАНДАРТ 21.114_
2013
Система проектной документации для строительства
ПРАВИЛА ВЫПОЛНЕНИЯ ЭСКИЗНЫХ ЧЕРТЕЖЕЙ ОБЩИХ ВИДОВ НЕТИПОВЫХ ИЗДЕЛИЙ
Издание официальное
Москва
Стандартинформ
2014
Предисловие
Цели, основные принципы и основной порядок проведения работ по межгосударственной стандартизации установлены ГОСТ 1.0-92 «Межгосударственная система стандартизации. Основные положения» и ГОСТ 1.2-2009 «Стандарты межгосударственные. Правила и рекомендации по межгосударственной стандартизации. Правила разработки, принятия, применения, обновления и отмены»
Сведения о стандарте
1 РАЗРАБОТАН Открытым акционерным обществом «Центр методологии нормирования и стандартизации в строительстве» (ОАО «ЦНС»)
2 ВНЕСЕН Техническим комитетом по стандартизации ТК 465 «Строительство»
3 ПРИНЯТ Межгосударственным Советом по стандартизации, метрологии и сертификации (МГС) (протокол Ne 44-2013 от 14 ноября 2013 г.)
За принятие проголосовали:
|
Краткое наименование страны no МК (ИСО 3166) 004—97 |
Код страны no МК (ИСО 3166) 004— 97 |
Сокращенное наименование органа государственного управления строительством |
|
Азербайджан |
А 2 |
Азстандарт |
|
Армения |
AM |
Минэкономики Республики Армения |
|
Беларусь |
BY |
Госстандарт Республики Беларусь |
|
Казахстан |
KZ |
Госстандарт Республики Казахстан |
|
Киргизия |
KG |
Кыргызстандарт |
|
Молдова |
MD |
Молдоеа-Стандарт |
|
Россия |
RU |
Росстандарт |
|
Таджикистан |
TJ |
Таджикстаидарт |
|
Узбекистан |
UZ |
Узстандарт |
4 Приказом Федерального агентства по техническому регулированию и метрологии от 17 декабря 2013 г. № 2308-ст межгосударственный стандарт ГОСТ 21.001-2013 введен в действие в качестве национального стандарта Российской Федерации с 01 января 2015 г.
5 ВЗАМЕН ГОСТ 21.114-95
Информация об изменениях к настоящему стандарту публикуется в ежегодном информационном указателе «Национальные стандарты», а текст изменений и поправок — в ежемесячном информационном указателе «Национальные стандарты». В случае пересмотра (замены) или отмены настоящего стандарта соответствующее уведомление будет опубликовано в ежемесячном информационном указателе «Националы<ыв стандарты». Соответствующая информация, уведомление и тексты размещаются такжо в информационной системе общего пользования - на официальном сайте Федерального агентства по техническому регулированию и метрологии в сети Интернет.
© Стандартинформ. 2014
В Российской Федерации настоящий стандарт не может быть полностью или частично воспроизведён, тиражирован и распространён в качестве официального издания без разрешения Федерального агентства по техническому регулированию и метрологии
МЕЖГОСУДАРСТВЕННЫЙ
ГОСТ 21.114-2013 СТАНДАРТ
Система проектной документации для строительства
ПРАВИЛА ВЫПОЛНЕНИЯ ЭСКИЗНЫХ ЧЕРТЕЖЕЙ ОБЩИХ ВИДОВ НЕТИПОВЫХ ИЗДЕЛИЙ
System of design documents for construction.
Rules for execution of sketch drawings of general views of non-standard products
Дата введения — 2015—01—01
1 Область применения
Настоящий стандарт устанавливает основные требования к разработке эскизных чертежей общих видов нетиповых изделий (конструкций, устройств, монтажных блоков), выполняемых к основным комплектам рабочих чертежей для строительства объектов различного назначения.
2 Нормативные ссылки
В настоящем стандарте использованы ссылки на следующие межгосударственные стандарты:
ГОСТ 2.301-68 Единая система конструкторской документации. Форматы
ГОСТ 21.101-97* Система проектной документации для строительства. Основные требования к проектной и рабочей документации
Примечание — При пользовании настоящим стандартом целесообразно проверить действие ссылочных стандартов в информационной системе общего пользования — на официальном сайте Федерального агентства по техническому регулированию и метрологии в сети Интернет или по ежегодному информационному указателю «Национальные стандарты», который опубликован по состоянию на 1 января текущего года, и по выпускам ежемесячного информационного указателя «Национальные стандарты» за текущий год. Если ссылочный стандарт заменен (изменен), то при пользовании настоящим стандартом следует руководствоваться заменяющим (измененным) стандартом. Если ссылочный стандарт отменен без замены, то положение, в котором дана ссылка на него, применяется в части, не затрагивающей эту ссылку.
3 Термины и определения
В настоящем стандарте применены следующие термины с соответствующими определениями:
3.1 эскизный чертеж общего вида нетипового изделия: Проектный документ, определяющий исходную конструкцию нетипового изделия, содержащий упрощенное изображение, основные параметры и технические требования к изделию в объеме исходных данных (задания), необходимых для разработки конструкторской документации.
3.2 групповой эскизный чертож общего вида нетипового изделия: Проектный документ, содержащий постоянные и переменные данные исполнений двух и более нетиповых изделий.
3.3 нетиповое изделие: Изделие (конструкция, устройство, монтажный блок) технологических систем, внутренних и наружных систем и сетей инженерно-технического обеспечения зданий и сооружений. впервые разработанное и изготовленное, как правило, на месте монтажа (в заготовительной мастерской монтажной организации).
* На территории Российской Федерации действует ГОСТ Р 21.1101-2013.
Издание официальное
ГОСТ 21.114-2013
4 Общие требования
4.1 Эскизные чертежи общих видов нетиповых изделий, конструкций, устройств, монтажных блоков (далее — эскизные чертежи) выполняют в соответствии с настоящим стандартом, а также с другими стандартами Системы проектной документации для строительства (СГ1ДС), в которых установлены особенности выполнения эскизных чертежей для различных марок основных комплектов рабочих чертежей.
4.2 Эскизные чертежи разрабатывают на несложные в изготовлении нетиповые изделия (кроме оборудования индивидуального изготовления), предусмотренные соответствующими основными комплектами рабочих чертежей, при отсутствии их серийного производства, типовых чертежей (документации массового применения), стандартов или других документов на эти изделия.
К таким нетиповым изделиям могут относиться элементы трубопроводов, опорные конструкции и конструкции креплений трубопроводов, воздуховодов, электропроводок, технологического и другого оборудования и связанных с ними обслуживающих площадок, средства автоматизации, щиты и пульты.
4.3 На каждое нетиповое изделие выполняют отдельный эскизный чертеж. Исключение составляет группа изделий, обладающих общими конструктивными признаками, на которые допускается выполнять групповой эскизный чертеж.
4.4 Эскизному чертежу присваивают самостоятельное обозначение, состоящее из обозначения соответствующего основного комплекта рабочих чертежей по ГОСТ 21.101, через точку шифра «Н» и порядкового номера эскизного чертежа в пределах данного основного комплекта.
Пример—2345-1-ОВ.Н1, 234S-11-OB.H2
4.5 Наименование нетипового изделия в основной надписи эскизного чертежа должно соответствовать принятой терминологии и быть по возможности кратким. В наименовании нетипового изделия указывают условное обозначение (код) в пределах каждого вида нетипового изделия и. при необходимости, в скобках позиционное обозначение, предусмотренное соответствующим основным комплектом рабочих чертежей.
Пример — Люк Л1, Люк Л2
В наименование изделия, как правило, не включают сведения о назначении изделия и его местоположении.
4.6 При выполнении к соответствующему основному комплекту рабочих чертежей более трех эскизных чертежей их рекомендуется комплектовать в виде отдельного выпуска.
Отдельному выпуску «Эскизные чертежи общих видов нетиповых изделий» присваивают обозначение, состоящее из обозначения соответствующего основного комплекта рабочих чертежей и через точку шифра «Н».
Пример — 2345-11-ОВ.Н
Первым листом выпуска эскизных чертежей является титульный лист, который выполняют по форме 15* ГОСТ 21.101 на листе формата А4 по ГОСТ 2.301.
4.7 После титульного листа выпуска эскизных чертежей помещают содержание, которое выполняют в соответствии с ГОСТ 21.101.
Содержанию присваивают обозначение, состоящее из обозначения выпуска эскизных чертежей и через дефис шифра «С».
Пример — 2345-ОВ.Н-С
4.8 Первый лист каждого из эскизных чертежей, комплектуемых в виде выпуска эскизных чертежей (см. 4.6). оформляют основной надписью по форме 5 ГОСТ 21.101. последующие листы — по форме 6 ГОСТ 21.101. Первые листы эскизных чертежей, не комплектуемых в виде выпуска, оформляют основной надписью по форме 3 ГОСТ 21.101.
4.9 Изменения в эскизные чертежи вносят в соответствии с ГОСТ 21.101 с учетом требований настоящего стандарта.
Изменения в эскизные чертежи вносят самостоятельно в пределах каждого эскизного чертежа независимо от их комплектации.
Сведения об изменениях, вносимых в эскизные чертежи, приводят:
— в графе «Примечание» ведомости ссылочных и прилагаемых документов, входящей в общие данные по рабочим чертежам, при включении в указанную ведомость отдельных эскизных чертежей;
— в графе «Примечание» содержания выпуска эскизных чертежей при их комплектации в виде отдельного выпуска «Эскизные чертежи общих видов нетиповых изделий».
В таблице изменений в основной надписи содержания выпуска эскизных чертежей не учитывают исправлений, внесенных в содержание в связи с внесением изменений в эскизные чертежи данного выпуска.
•»форма 13 ГОСТ Р 21.1101-2013.
2
ГОСТ 21.114-2013
При внесении изменений в эскизные чертежи выпуска эскизных чертежей таблицу регистрации изменений на титульном листе не выполняют.
4.10 Каждый эскизный чертеж или выпуск эскизных чертежей (при их комплектации в виде отдельного выпуска) записывают в разделе «Прилагаемые документы» ведомости ссылочных и прилагаемых документов, входящей в общие данные по рабочим чертежам соответствующего основного комплекта.
4.11 Форма представления эскизных чертежей (бумажная или/и электронная) определяется разработчиком по согласованию с заказчиком.
4.12 В случае повторного применения эскизных чертежей организацией, осуществившей разработку и утверждение этих чертежей, их записывают в раздел «Прилагаемые документы» без изменения обозначения.
5 Разработка эскизных чертежей
5.1 Объем исходных данных, необходимых для разработки конструкторской документации нетипового изделия, устанавливает разработчик эскизного чертежа в соответствии с требованиями настоящего стандарта.
5.2 Эскизные чертежи выполняют, как правило, в масштабах 1:5, 1:10. 1:20 и 1:50. Допускается выполнять эскизные чертежи без точного соблюдения масштаба, если это не искажает наглядности изображения и не затрудняет чтения чертежа.
5.3 На эскизном чертеже нетипового изделия приводят:
— изображения изделия (виды, разрезы, сечения, узлы);
— технические требования и надписи, необходимые для понимания устройства изделия;
— наименования или номера позиций составных частей нетипового изделия;
— установочные, присоединительные, габаритные и другие необходимые размеры:
— размеры, определяющие специфические требования к размещению нетипового изделия и влияющие на его конструкцию (например, минимальное расстояние до элемента строительной конструкции, системы агрегата) и другие данные, наносимые на изображении нетипового изделия;
— схемы (при необходимости);
• спецификацию и таблицы (при необходимости).
5.4 Количество видов на эскизном чертеже должно быть минимальным, но достаточным для того, чтобы дать исчерпывающее представление о нетиповом изделии.
5.5 При разработке эскизных чертежей рекомендуется максимально использовать упрощения, принятые в стандартах СПДС и Единой системы конструкторской документации (ЕСКД).
Подробнее показывают элементы нетипового изделия, которые необходимы для правильного монтажа изделия, соединения с элементами строительных конструкций, оборудования, других изделий.
Изображения нетипового изделия на эскизном чертеже выполняют толстыми основными линиями.
5.6 На эскизном чертеже, при необходимости, помещают изображения пограничных (соседних) элементов проектируемых систем или строительных конструкций, к которым крепится нетиповое изделие.
Пограничные (соседние) элементы изображают упрощенно тонкими линиями, показывая только те их части, которые необходимы для правильного определения места и способа крепления нетипового изделия.
Наименование пограничного (соседнего) элемента системы, строительной конструкции, оборудования указывают на полке линии-выноски, проведенной от соответствующего изображения.
5.7 На поле эскизного чертежа допускается помещать отдельные изображения частей нетипового изделия, дополнительные схематические изображения соединения и расположения составных частей нетипового изделия, изображать, при необходимости, перемещающиеся части нетипового изделия в крайнем положении с соответствующими размерами.
5.8 Сортамент материала и другие аналогичные сведения приводят на эскизном чертеже только в том случае, если это необходимо для принятия окончательного проектного решения.
5.9 Надписи, поясняющие принципиальное конструктивное устройство нетипового изделия, помещают на полках линий-выносок.
5.10 Наименования составных частей нетипового изделия на эскизном чертеже указывают одним из следующих способов:
— на полках линий-выносою
3
ГОСТ 21.114-2013
— о спецификации, размещаемой, как правило, на первом листе эскизного чертежа нетипового изделия. В этом случае на полках линий-выносок указывают номера позиций составных частей нетипового изделия, включенных в спецификацию.
5.11 Спецификацию выполняют по форме 7 ГОСТ 21.101. Графу «Масса ед. кг», как правило, не заполняют. Ориентировочную массу нетипового изделия приводят в конце спецификации.
В случае, когда наименования составных частей нетипового изделия указывают на полках линий-выносок, ориентировочную массу изделия приводят в технических требованиях к эскизному чертежу.
5.12 Технические требования к нетиповому изделию помещают на свободном поле эскизного чертежа и по возможности над основной надписью.
Объем сведений, приводимых в технических требованиях к эскизному чертежу, должен обеспечивать правильное понимание устройства нетипового изделия.
В технических требованиях приводят:
— назначение, область применения и параметры, характеризующие условия эксплуатации нетипового изделия;
— технические данные, конструктивные требования и характеристики, необходимые для разработки нетипового изделия (конструкции, устройства, монтажного блока);
— краткое описание устройства нетипового изделия и. при необходимости, принципа действия. При наличии составных частей изделия описание проводят последовательно для каждой составной части нетипового изделия;
— требования к технологии изготовления, если они являются единственными, гарантирующими необходимое качество нетипового изделия, и требования к защитным покрытиям;
— требования к условиям крепления (установки) нетипового изделия (конструкции, устройства, монтажного блока) к фундаментам и другим строительным конструкциям;
— особые требования к нетиповому изделию — взрывобезопасность. кислотостойкость и
другие;
— требования к качеству, которым должно соответствовать нвтиповое изделие (например, износоустойчивость, теплостойкость, прочность);
• исходные данные о нагрузке на нетиповую конструкцию, рабочей среде и другие данные;
— указания о выполнении неразъемных соединений (например, сварных);
— специальные требования к условиям хранения нетипового изделия и другие необходимые требования.
Пункты технических требований должны иметь сквозную нумерацию. Каждый пункт технических требований записывают с новой строки.
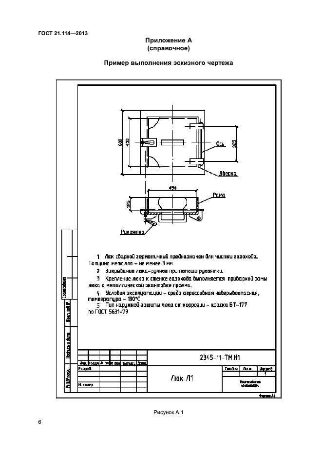
5.13 Пример выполнения эскизного чертежа приведен на рисунке А.1 (приложение А).
5.14 При разработке эскизных чертежей на группу нетиповых изделий, обладающих общими конструктивными признаками, допускается выполнять один групповой эскизный чертеж вместо нескольких единичных.
Наименование изделий в основной надписи группового эскизного чертежа следует записывать в именительном падеже единственного числа.
Если разным исполнениям присвоены разные условные обозначения (коды), например ГТ1, ГТ2 и др.. то в основной надписи группового эскизного чертежа наименование изделий, как правило, дополняют общей частью условных обозначений.
Все сведения о переменных данных (изображениях, размерах и др.), которые подлежат включению в эскизный чертеж, приводят в таблице исполнений. Таблицу исполнений помещают на поле эскизного чертежа, как правило, на первом листе. Пример выполнения таблицы исполнений приведен на рисунке Б.1 (приложение Б).
На чертеже должно быть изображено основное исполнение. Количество изображений (видов, разрезов, сечений) основного исполнения и степень их упрощения должны быть выбраны аналогично исполнению единичного эскизного чертежа.
На групповой схеме полностью следует изображать схему, относящуюся к основному исполнению.
Исполнения, отличия которых от основного исполнения должны быть показаны на изображениях, становятся переменными. Эти исполнения дополнительно должны быть изображены на том же чертеже (схеме). При этом выполняют частично или полностью только те изображения, которые необходимы для показа отличия от изображений основного исполнения.
В таблицу исполнений вносят обозначения всех исполнений, на которые распространяется эскизный чертеж и. при необходимости, позиционные обозначения, предусмотренные соответствующим основным комплектом рабочих чертежей.
Обозначения исполнений следует записывать в первую графу слева с заголовком «Обозначение». Запись производят в порядке возрастания обозначений.
4
ГОСТ 21.114-2013
В обозначение исполнения включают общее обозначение типовых изделий, оформленных одним групповым эскизным чертежом, и номер исполнения.
Исполнению, принятому условно за основное, присваивают только общее обозначение без порядкового номера исполнения в соответствии с 4.5.
Порядковый номер исполнения устанавливают в пределах общего обозначения, начиная с 01. и отделяют от общего обозначения через дефис.
Пример — 2345-11-ВК.Н1-01
При записи группы исполнений с одинаковыми базовыми обозначениями полное обозначение следует записывать только для одного исполнения, а в последующих строках — дефис и порядковый номер исполнения (см. приложение Б).
5
Приложение А (справочное)
Пример выполнения эскизного чертежа
1 Лек l&lpmoO герибичнный преОниэничен Оля чииики гиэакоЗо. Толщина металла — не менее 3 мм
2 Закрывание лика-ручное при помощи рукоятки.
3 Крепление лека к стенке гаэоюва Ьыполкяется приОаркоЗ рани
люка к *шшалиичв1лой экинпиЗкв прсечи..
4 Услэбия эксплуатации — среда агрессибная небзрыЬоопасная, температура — 190*С
5 Tun наружной защити люка шг корразии — краска БТ-177 по ГОСТ 5631-79
|
гт^ |
ЦТ |
||
|
____ |
|||
|
ЕЗ ЕТЗЕЖЛ HSliM-H Л tJJ |
|||
|
PaxuS. |
|||
|
Я КИНГЗ |
|||
234-5-11 ТМ.Н1
Люк /II
СШиа I Лид
, | ftMBL
№и«К«и
Рисунок А. 1
ГОСТ 21.114-2013
Приложение Б (справочное)
Пример выполнения таблицы исполнений
|
Обозначение |
Код |
Рис. |
Размеры, мм |
Масса. |
||||
|
L |
d |
d, |
dj |
d3 |
кг |
|||
|
2345-11-ВК.Н1 |
ГТ1 |
2000 |
67.0 |
|||||
|
-01 |
ГТ 2 |
1 |
3000 |
100.0 |
||||
|
-02 |
ГТЗ |
3500 |
108 х 4.0 |
45 х 3.0 |
25 х 2,5 |
32 x 2.8 |
115.0 |
|
|
-03 |
ГТ4 |
о |
2500 |
110.0 |
||||
|
-04 |
ГТ5 |
С |
4500 |
197.0 |
||||
Рисунок Б.1
7
УДК 691:002:006.354 МКС 01.100.30
Ключевые слова: правила выполнения, эскизные чертежи , общие виды, нетиповые изделия,
основной комплект рабочих чертежей, прилагаемые документы
8
Подписано в печать 01.04.2014. Формат 60×84’/s.
Уел. печ. л. 1.40. Тираж 31 экз. Зак. 1399.
Подготовлено на основе электронной версии, предоставленной разработчиком стандарта
ФГУП «СТАНДАРТИНФОРМ»
123995 Москва. Гранатный пер.. 4. www.gostinfo.rn info@gostinfo.ru
