Единая система конструкторской документации. Общие требования к текстовым документам

стр.1

стр.2

стр.3

стр.4

стр.5

стр.6

стр.7

стр.8

стр.9

стр.10

стр.11

стр.12

стр.13

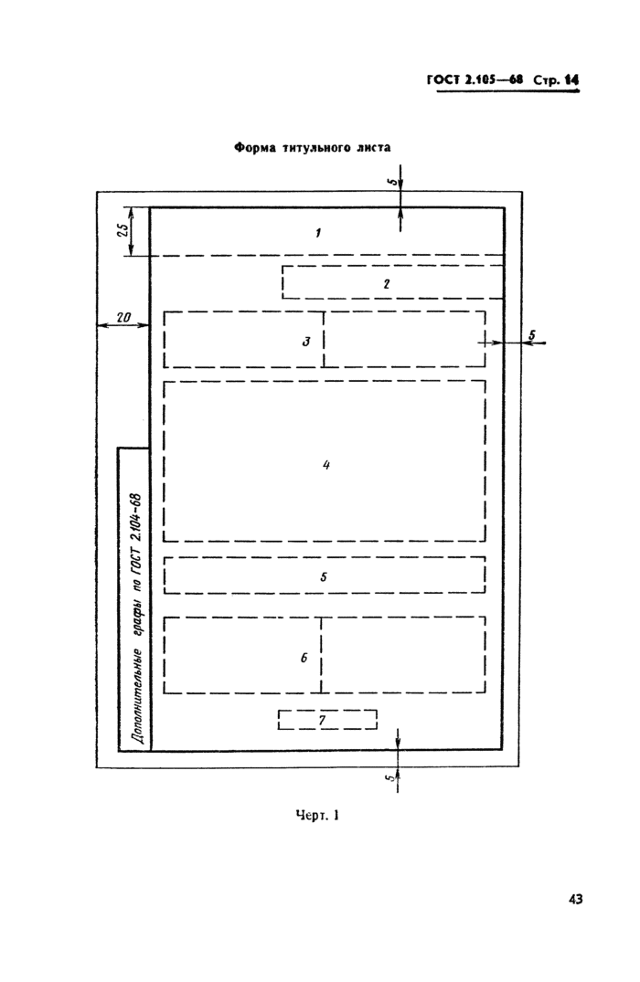
стр.14

стр.15

стр.16

стр.17

стр.18

стр.19

стр.20

стр.21

Страница 1

Страница 2

Страница 3

Страница 4

Страница 5

Страница 6

Страница 7

Страница 8

Страница 9

Страница 10

Страница 11

Страница 12

Страница 13

Страница 14

Страница 15

Страница 16

Страница 17

Страница 18

Страница 19

Страница 20

Страница 21
