Клей костный. Технические условия
Заменяет ГОСТ Р 50197-92
На нашем сайте можно бесплатно скачать Руководящий документ ГОСТ 2067-93 в удобном формате. Узнать актуальный статус документа «Клей костный. Технические условия» на 2016 год.
Скрыть дополнительную информацию
Страница 1

Страница 2

Страница 3

Страница 4

Страница 5

Страница 6

Страница 7

Страница 8

Страница 9

Страница 10

Страница 11

Страница 12

Страница 13

Страница 14

Страница 15

Страница 16

Страница 17

Страница 18

Страница 19

Страница 20

Страница 21

Страница 22

Страница 23

Страница 24
МЕЖГОСУДАРСТВЕННЫЙ
ГОСТ 2067-93 Т А Н Д А Р Т
КЛЕЙ КОСТНЫЙ Технические условия
Издание официальное
МЕЖГОСУДАРСТВЕННЫЙ СОВЕТ ПО СТАНДАРТИЗАЦИИ, МЕТРОЛОГИИ И СЕРТИФИКАЦИИ Минск
ГОСТ 2067-93
Предисловие
1 РАЗРАБОТАН Госстандартом России
ВНЕСЕН Техническим секретариатом Межгосударственного совета по стандартизации, метрологии и сертификации
2 ПРИНЯТ Межгосударственным советом по стандартизация, метрологии и сертификации 21 октября 1993 г.
|
За принятие проголосовали: |
||||
|
3 Постановлением Комитета Российской Федерации по стандартизации, метрологии и сертификации от 02.06.94 № 160 межгосударственный стандарт ГОСТ 2067-93 введен в действие непосредственно в качестве государственного стандарта Российской Федерации с 01.01.95
4 ВЗАМЕН ГОСТ 2067-80
5 ИЗДАНИЕ (декабрь 2003 г.) с Поправкой (ИУС 11-2003)
© И ПК Издательство стандартов, 1995 © ИГ1К Издательство стандартов, 2004
Настоящий стандарт не может быть полностью или частично воспроизведен, тиражирован и распространен в качестве официального издания на территории Российской Федерации без разрешения Госстандарта России
II
УДК 637.525.001.4:006.354 Группа 1198
МЕЖГОСУДАРСТВЕННЫЙ СТАНДАРТ
КЛЕЙ КОСТНЫЙ
Технические условия
ГОСТ
2067-93
Bone glue. Specifications
МКС 67.120.99 ОКГ1 92 1941
Дата введения 1995 —01—01
Настоящий стандарт распространяется на костный клей, предназначенный для применения п народном хозяйстве.
1 Технические требования
1.1 Костный клей должен вырабатываться в соответствии с требованиями настоящего стандарта по технологической инструкции, утвержденной в установленном порядке.
1.2 Виды
1.2.1 Костный клей вырабатывают следующих видов:
гранулированный;
дробленый;
чешуйчатый;
плиточный;
галерта (клеевой студень).
1.2.2 В зависимости от органолептических и физико-химических показателей костный клей подразделяют на марки: K3>J; К5.0: К2.$; К, 2; К2>0; К,
1.2.3 Коды ОКП представлены в приложении I.
1.3 Характеристики
1.3.1 Для выработки костного клея марок Kj 5 и KJ 0 применяют кость по ГОСТ 16147 и натриевую соль карбоксиметилиеллюлозы по ТУ 6—55—40; для марок К2 s; К, 2• К: 0 иКц — кость по ГОСТ 16147.
1.3.2 По органолептическим и физико-химическим показателям клей должен соответствовать требованиям, указанным в таблице 1.
|
Таблица 1 |
||||||||||||||
|
||||||||||||||
|
И iданис официальное |
||||||||||||||
ГОСТ 2067-93
|
Окончание таблицы I |
|||||||||||||||||||||||||||||||||||||||||||||||||||||||||||||||||||||||||||||||||||||||||||||||||||||||||||||||||||||||||||||||||||||||||||||||||||||||||||||||||||||||||||||||||||||||||||||||||||||||||||||||||||||||||||||||||||||||||||||||||||||||||||||||||||||||||||||||||||||||
|
|||||||||||||||||||||||||||||||||||||||||||||||||||||||||||||||||||||||||||||||||||||||||||||||||||||||||||||||||||||||||||||||||||||||||||||||||||||||||||||||||||||||||||||||||||||||||||||||||||||||||||||||||||||||||||||||||||||||||||||||||||||||||||||||||||||||||||||||||||||||
1.3.3 Требования безопасности
Костный клей пожаро- и взрывобезопасен.
При производстве клея на предприятиях соблюдаются требования безопасности, указанные в ОСТ 49 219.
1.4 Упаковка
1.4.1 Плиточный клей упаковывают в льно-джуго-кенафные мешки по ГОСТ 30090.
Гранулированный, дробленый, чешуйчатый клей упаковывают в бумажные трехслойные или четырехслойные мешки по ГОСТ 2226, марок НМ, 11 М. ВМ, с открытой или закрытой горловиной или в льно-джуто-кенафные мешки по ГОСТ 30090 массой нетто 20 кг. по согласованию с потребителем — массой нетто 50 кг.
Отклонение массы нетто в меньшую сторону не должно превышать 0,5 %.
Мешки зашивают или завязывают.
2
ГОСТ 2067-93
1.4.2 Гранулированный, дробленый, чешуйчатый клей для розничной то pro ал и упаковывают в пакеты из полиэтиленовой пленки по ГОСТ 10354 массой нетто 0,50; 0,25 кг. Отклонение массы нетто в меньшую сторону не должно превышать 1 %.
Полиэтиленовые пакеты с клеем упаковывают в бумажные трехслойные или четырехслойные мешки по ГОСТ 2226. с открытой горловиной или яшики из гофрированного картона по ГОСТ 13512 или ГОСТ 13516. массой нетто 10 кг.
По согласованию с потребителем допускается масса нетто мешка ящика 20 кг.
Отклонение массы нетто одного мешка, яшика в меньшую сторону не должно превышать 0,5 %. По согласованию с потребителем допускается упаковывание полиэтиленовых пакетов в льно-джуто-кенафные мешки по ГОСТ 30090.
1.4.3 Клей галерту упаковывают в деревянные заливные бочки по ГОСТ 8777 массой нетто не более 250 кг или в картонные навивные барабаны по ГОСТ 17065 с пленочным мешком-вкладышем по ГОСТ 19360.
По согласованию с потребителем допускается отгрузка галерты в бочках многоразового использования, а также в автоцистернах.
1.4.4 Клей, предназначенный для районов Крайнего Севера и приравненных к ним местностей, упаковывают по ГОСТ 15846.
1.5 Маркировка
1.5.1 На потребительскую упаковку (пакет) типографским способом наносят маркировку с указанием:
наименования и местонахождения предприятия-изготовителя и (или) его товарного знака;
наименования продукции;
назначения продукции;
вида, марки клея;
номера партии;
массы нетто;
даты выработки и срока хранения; способа применения клея (см. приложение 2); обозначения настоящего стандарта.
1.5.2 Транспортная маркировка — по ГОСТ 14192 с указанием:
наименования и местонахождения предприятия-изготовителя и (или) его товарного знака;
наименования продукции:
назначения продукции;
вида, марки клея;
номера партии;
массы нетто и брутто:
количества пакетов в мешке пли ящике;
даты выработки и срока хранения;
способа применения клея (см. приложение 2);
обозначения настоящего стандарта и нанесением манипуляционного знака «Беречь от aiarn*. 2 Приемка
2.1 Костный клей принимают партиями.
Партией считают любое количество костного клея одного вида, одной марки, оформленное одним документом о качестве установленной формы.
При отгрузке продукции в автоцистернах каждую автоцистерну принимают за партию.
2.2 Для проверки соответствия клея требованиям стандарта по упаковке и маркировке проверке подвергают каждую упаковочную единицу.
2.3 Оптовый потребитель принимает клей по расчетной массе (///) в килограммах, которую вычисляют по формуле
т„(КЮ- 1УЬ)
100 — Hi •
где тр — фактическая масса нетто партии, кг;
1^1, — фактическая массовая доля влаги в клее, %;
ГОСТ 2067-93
IVU — нормированная массовая доля влаги в клее (гранулированном, дробленом, плиточном, чешуйчатом — 17, галерте — 59), %.
Клей для розничной торговли принимают по фактической массе без пересчета на норм кропанную массовую долю влаги.
(Поправка).
2.4 Для проверки соответствия качества клея требованиям настоящего стандарта проводят выборку методом случайного отбора. Объем выборки в зависимости от размера партии в соответствии с требованиями таблицы 2.
|
Таблица2 |
||||||||||||
|
2.5 Показатели массовой доли влаги, золы, условной вязкости, жира (в клее для производства спичек) изготовитель определяет на каждой партии клея.
При получении неудовлетворительных результатов хотя бы по одному показателю по нему проводят повторные испытания па удвоенной выборке, отобранной от той же партии.
2.6 Показатели внешнего вида и цвета, массовой доли жира, стойкости клея против загнивания, пенообразования, активности водородных ионов и прочности склеивания древесины изготовитель определяет периодически, не реже одного раза в квартал, а также по требованию потребителя.
При получении неудовлетворительных результатов испытания переводят в приемосдаточные до получения положительных результатов на трех партиях.
3 Методы анализа
3.1 Методы отбора проб
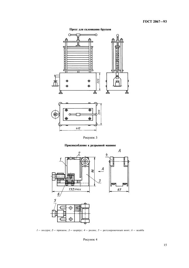
3.1.1 Для контроля качества клея, упакованного в мешки, бочки, барабаны, из разных мест и слоев каждой упаковочной единицы выборки, отобранной по 2.4, отбирают точечные пробы пробоотборником (см. рисунок 1) или металлической трубкой.
|
Специальный металлический щуп |
|
I — лоток, 2 — ручка Рисунок 1 |
4
ГОСТ 2067-93
Пробы плиточного клея отбирают вручную.
Пробы клея галерты из автоцистерны отбирают пробоотборником (см. рисунок 1). металлической трубкой, черпаком или кружкой.
3.1.2 Отбор проб и состаыенне объединенной пробы — в соответствии с таблицей 3.
|
Т а б л » и а 3 |
||||||||||||||||||||||||||||||
|
3.1.3 Объединенную пробу составляют соединением, перемешиванием и квартованием точечных проб, точечные пробы плиточного клея предварительно измельчают, клея галерты — расплавляют на водяной бане.
3.2 Определение внешнего вида и цвета
3.2.1 Аппаратура и материалы
Весы лабораторные общего назначения по ГОСТ 241041, 2-го класса точности с наибольшим пределом взвешивания 200 г.
Термометр ртутный стеклянный по ГОСТ 28498, с диапазоном измерений от 0 до 100 ‘С. йеной деления 1 ‘С.
Бумага писчая по ГОСТ 18510, № 0 и № I.
Стакан стеклянный В-1—50 ТС по ГОСТ 25336.
Допускается применение других средств измерений с метрологическими характеристиками не ниже указанных.
3.2.2 Проведение анализа
Внешний вид и цвет клея определяют визуально.
Из объединенной пробы отбирают навеску дробленого, чешуйчатого, гранулированного клея массой 20,0 г, рассыпают тонким слоем на листе бумаги и перемешивают стеклянной палочкой.
Для определения внешнего вида и цвета клея галерты из объединенной пробы отбирают навеску массой 20,0 г, выдерживают ее в стеклянном стакане на водяной бане до достижения температуры клея (25 ± 2) “С.
Для определения внешнего вида и цвета плиточного клея осматривают не менее пяти плиток.
3.3 Определение размера частиц гранулированного, дробленого и чешуйчатого клея
Метод определения размеров частиц основан на ситовом анализе.
3.3.1 Аппаратура
Весы лабораторные общего назначения по ГОСТ 24104. 2-го класса точности с наибольшим пределом взвешивания 200 г.
Секундомер или часы песочные по ОСТ 25 1138 на 5 мин.
Допускается применять другие сродства измерений с метрологическими характеристиками не ниже указанных.
Прибор для встряхивания.
Сито лабораторное с металлической сеткой № 10 и 20 с круглыми отверстиями по ГОСТ 3826.
1
С I июля 2002 г. иисдсн и действие ГОСТ 24104-2001 (:шссь и далее).
ГОСТ 2067-93
3.3.2 Проведение анализа
Для определения размера частиц гранулированного, дробленого и чешуйчатого клея от объединенной пробы отбирают 100.0 г клея, просеивают с помощью встряхивающего прибора или вручную в течение 5 мин на двух параллельных ситах с поддоном. Верхнее сито с сеткой № 20, нижнее — с сеткой № 10. Остаток клея на сите с сеткой № 10 взвешивают.
3.3.3 Обработка результатов
Массовую долю частиц клея (.V) размером от 10 до 20 мм в процентах вычисляют по формуле
v_ юо
т ‘
где /л, — масса клея на сите с сеткой М> 10, г; т — масса навески клея, г;
ИЮ — коэффициент пересчета.
3.4 Определение массовой доли влаги
Метод основан на способности исследуемого продукта отдавать влагу при определенной температуре.
3.4.1 Определение массовой доли влаги высушивания при температуре (130 + 2) *С
3.4.1.1 Аппаратура, материалы, реактивы
Весы лабораторные общего назначения по ГОСТ 24104. 2-го класса точности с наибольшим пределом взвешивания 200 г.
Ультратермостат марки УГ-15 или других аналогичных марок или баня водяная электрическая.
Шкаф сушильный лабораторный электрический с терморегулятором.
Цилиндр сушильный лабораторный электрический с терморегулятором.
Цилиндр 1-10 по ГОСТ 1770.
Эксикаторы по ГОСТ 25336.
Стаканчики для взвешивания стеклянные СН-60/14 или CH-85/I5 по ГОСТ 25336.
Бюксы алюминиевые с крышками диаметром 50—60 мм, высотой 30—50 мм.
Кальций хлористый кристаллический по ТУ 6—09—4711.
Вода дистиллированная по ГОСТ 6709.
Допускается применять другие средства измерений с метрологическими характеристиками не ниже указанных.
3.4.1.2 Проведение анализа
Бюксу с крышкой высушивают в сушильном шкафу при температуре (130 ± 2) ’С до постоянной массы, охлаждают в эксикаторе и взвешивают с погрешностью не более 0,0001 г.
Навеску массой 2,5—3 г клея или 8—10 г клея галерты помешают в бюксу и взвешивают с погрешностью не более 0.0001 г.
К навеске гранулированного, плиточного, дробленого или чешуйчатого клея приливают 10 см’ дистиллированной воды и оставляют клей для набухания в течение 2—3 ч, после чего бюксу с набухшим клеем помешают в водяную баню температурой 60—70 «С до полного растворения клея.
Бюксу с раствором клея помещают в сушильный шкаф и высушивают до постоянной массы при температуре (130 ± 2) “С.
Продолжительность первой сушки — 18 ч. последующих — 30 мин.
3.4.1.3 Обработка результатов
Массовую долю влаги (W) в процентах вычисляют по формуле
(м — т2) — 100 т ‘
где т — масса навески клея до высушивания, г; пи — масса навески клея после высушивания, г;
100 — коэффициент пересчета граммов в проценты.
Вычисления проводят до второго десятичного знака.
За результат анализа принимают среднеарифметическое результатов двух параллельных определений в одной или двух разных лабораториях, допускаемое расхождение между которыми при Р ~ 0.95 не должно превышать 0.2 абс. %.
6
ГОСТ 2067-93
Окончательный результат округляют до первого десятичного знака.
3.4.2 Определение массовой доли влаги высушиванием при температуре (185 ± 5)’С (экспресс-метод)
3.4.2.1 Аппаратура, материалы, реактивы — по 3.4.1.1.
3.4.2.2 Проведение анализа
Бюксу с крышкой выдерживают в сушильном шкафу при температуре (185 ± 5) «С в течение 5 мин. Регулятор температуры сушильного шкафа устанавливают на 200 «С. Бюксу с крышкой охлаждают в эксикаторе и взвешивают с погрешностью не более 0,0001 г.
Навеску массой 2.5—3 г клея или 8—10 г клея галерты помешают в бюксу и взвешивают с погрешностью не более 0.0001 г.
Бюксу с навеской помешают в сушильный шкаф, после чего регулятор температуры шкафа переводят на 190 ‘С, чтобы обеспечить температуру в зоне сушки (185 ± 5) ‘С. Навеску дробленого или плиточного клея высушивают в течение 40 мин. гранулированного — 45 мин. чешуйчатого — 25 мин, галерты — 35 мин.
По окончании сушки бюксу с навеской охлаждают в эксикаторе и взвешивают с погрешностью не более 0,0001 г.
3.4.2.3 Обработка результатов — по 3.4.1.3.
Вычисление проводят до второго десятичного знака. За результат анализа принимают среднеарифметическое результатов двух параллельных определений в одной или в двух разных лабораториях. допускаемое расхождение между которыми при Р = 0,95 не должно превышать 0.6 абс. % для плиточного и дробленого клея и 0,3 абс. % — для гранулированного, чешуйчатого и галерты.
3.5 Определение массовой доли золы
Метод основан на сухой минерализации навески клея при температуре (725 ± 25) “С.
3.5.1 Аппаратура, материалы, реактивы
Весы лабораторные общего назначения по ГОСТ 24104. 2-го класса точности с наибольшим пределом взвешивания 200 г.
Печь муфельная электрическая.
Тигли фарфоровые по ГОСТ 9147. высокие, диаметром 56—64 мм или тигли из прозрачного квариевого стекла В-100 по ГОСТ 19908.
Эксикаторы по ГОСТ 25336.
Плитка электрическая по ГОСТ 14919.
Кальций хлористый кристаллический по ТУ 6—09—4711.
Допускается применять другие средства измерений с метрологическими характеристиками не ниже указанных.
3.5.2 Проведение анализа
Тигли фарфоровые прокаливают в муфельной печи при (725 ± 25) “С в течение 30 мин, охлаждают в эксикаторе и взвешивают с погрешностью не более 0,0001 г.
Навеску массой 4,5—5 г плиточного, гранулированного, чешуйчатого, дробленого клея или 8—10 г клея галерты или обезвоженную навеску клея после определения массовой доли влаги помешают в тигель и взвешивают с погрешностью не более 0.0001 г. Тигель ставят на электрическую плитку и проводят обугливание до прекращения выделения дыма, помещают в муфельную печь при температуре 250 ‘С и постепенно повышают температуру до (725 ± 25) *С.
Продолжительность первого озоления — (7 ± 1) ч. последующих — 30 мин.
Минерализацию считают законченной в том случае, когда зола станет белой или слегка окрашенного цвета, без обугленных частиц. Тигель с навеской охлаждают в эксикаторе и взвешивают с погрешностью не более 0,0001 г.
Навеску сжигают до постоянной массы.
3.5.3 Обработка результатов
Массовую долю золы (А*,) в процентах вычисляют по формуле
„ _ 1И4 ■ 100 — 100
«(МО-Щ’
где т — масса навески клея, г; т} — масса полученной залы, г;
W — фактическая массовая доля влаги, %;
100 — коэффициент пересчета.
7
ГОСТ 2067-93
При определении массовой доли золы в обезвоженной навеске клея, полученной после определения массовой доли влаги, массовую долю золы (/V,) в процентах вычисляют по формуле
/н, — 100
где /л3 — масса навески высушенного клея, г; т3 — масса полученной золы, г;
100 — коэффициент пересчета.
Вычисления проводят до второго десятичного знака.
За результат анализа принимают среднеарифметическое результатов двух параллельных определений в одной или двух разных лабораториях, расхождение между которыми при Р = 0,95 не должно превышать 0,2 абс. %.
Окончательный результат округляют до первого десятичного знака.
3.6 Определение обшей массовой дачи жира
3.6.1 Определение обшей массовой дат жира в аппарате Сокслета
Метод основан на нагревании раствора клея с соляной кислотой для выделения окклюдированных и связанных липидных фракций, экстрагировании жира петролейным эфиром.
3.6.1.1 Аппаратура, материалы, реактивы
Весы лабораторные общего назначения по ГОСТ 24104. 2-го класса точности с наибольшим пределом взвешивания 200 г.
Термометр ртутный стеклянный по ГОСТ 2849S. с диапазоном измерений 0—100 «С. ценой деления I ’С.
Часы настольные или настенные по ГОСТ 3309.
Аппарат Сокслета.
Шкаф сушильный с терморегулятором.
Эксикатор по ГОСТ 25336.
Холодильник Либиха.
Электроплитка по ГОСТ 14919.
Ультратермостат марки УТ-15 или других аналогичных марок или баня водяная электрическая.
Печь муфельная электрическая с устойчивой температурой до 1000 ‘С.
Колбы Кн-2—250 по ГОСТ 25336.
Воронка делительная.
Цилиндр 1-25 по ГОСТ 1770.
Ступка фарфоровая с пестиком по ГОСТ 9147.
Чашки фарфоровые по ГОСТ 9147 № 3, 4 или 5.
Стекло часовое.
Вата медицинская гигроскопическая по ГОСТ 5556.
Бумага фильтровальная лабораторная по ГОСТ 12026. марки ФОБ.
Кислота соляная по ГОСТ 3118, х. ч., плотностью 1190 кг/м3.
Кислота серная по ГОСТ 21X4. х. ч.
Эфир петролейный по ТУ 6—02—1244, температурой кипения 40— 70 ‘С.
Кальций сернокислый по ТУ 6—09—706, ч. д. а., безводный.
Натрий сернокислый безводный по ТУ 6—09—5077, ч. д. а.
Калия пират окиси по ОСТ 6—01—301, ч. д. а.
Фенолфталеин по ТУ 6—09—5360.
Вода дистиллированная по ГОСТ 6709.
Допускается применять другие средства измерений с метрологическими характеристиками не ниже указанных.
3.6.1.2 Проведение анализа
Навеску массой 10.0 г клея или 20,0 г клея галерты. взвешенную с погрешностью не более 0.01 г. помещают в фарфоровую чашку, добавляют 20 см’ (к галерте 10 см ) дистиллированной воды температурой (17,5 ± 2,5) ‘С и выдерживают для набухания плиточный, дробленый, гранулированный клей 1.5 ч, чешуйчатый — 30 мин. К раствору клея добавляют 10 см3 соляной кислоты и нагревают в ультратермостате или на водяной бане при температуре (75 ± 5) «С при перемешивании в течение 0,5 ч до приобретения раствором темно-коричневой окраски. Затем добавляют 30—50 г
ГОСТ 2067-93
сернокислого кальция и перемешивают до получения однородной рассыпчатой массы. Полученную массу подсушивают в той же чашке в сушильном шкафу 2—3 ч при температуре (103 ± 2) *С.
Сухую массу переносят в ступку, растирают и помешают в гильзу из фильтровальной бумаги.
Чашку, ступку и пестик тщательно протирают обезжиренной ватой, смоченной в эфире, которую помешают на дно гильзы.
Гильзу с навеской закрывают и помешают в экстрактор Сокслета.
Приемную колбу аппарата наполняют на 2/., объема петролейным эфиром, присоединяют к экстрактору и нагревают, предварительно пустив воду в обратный холодильник экстрактора. Кипение эфира не должно быть бурным. Длительность экстрагирования 5—6 ч при условии 8—10 сливов в час. Для определения полноты обезжиривания на часовое стекло или на фильтровальную бумагу наносят каплю эфира, стекающую из экстрактора.
После испарения растворителя не должно оставаться жирных следов на стекле или бумаге.
Раствор после экстрагирования фильтруют и сливают в колбу, взвешенную с погрешностью не более 0.0001 г. Затем колбу с эфирной вытяжкой присоединяют к холодильнику Либиха и отгоняют растворитель, нагревая колбу на водяной бане до 70 *С. Для удаления оставшегося эфира колбу помешают на 15—30 мин в тепловое проветриваемое место, а затем переносят в сушильный шкаф для просушки жира до постоянной массы при температуре (103 ± 2) «С. Продолжительность первой сушки I ч, последующих — 15 мин.
Колбу с жиром после ее охлаждения в эксикаторе взвешивают с погрешностью не более 0.0001 г.
3.6.1.3 Очистка петролейного эфира
Петролейный эфир после отгонки подвергают очистке.
К I дм3 эфира добавляют 100—150 cmj концентрированной серной кислоты, взбатгывают в делительной воронке 15—20 мин, дают отстояться 5 мин и кислоту сливают. Обработку эфира серной кислотой проводят три—четыре раза, пока кислота не станет прозрачной.
К оставшемуся в делительной воронке эфиру приливают 15 %-ный водный раствор пирата окиси катя из расчета 12.5 см’ на 1 дм1 эфира и после взбалтывания в течение 20 мин раствор гидрата окиси калия сливают.
Петролейный эфир промывают дистиллированной водой до тех пор. пока вода не будет давать реакцию на 1 %-ный раствор фенолфталеина (розовый цвет).
К эфиру добаатяют 200 г безводного сернокислого натрия и проводят его сушку, периодически взбалтывая, в течение 1 ч. Затем эфир фильтруют через бумажный фильтр в отгонную колбу. Колбу присоединяют к холодильнику Либиха и перегоняют эфир, нагревая колбу на водяной бане до 70 «С.
Процесс перегонки прекращают при наличии в отгонной колбе петролейного эфира в количестве 10—15 % первоначального обьема.
3.6.1.4 Обработка результатов
Массовую долю жира (А^) в процентах на абсолютно сухое вещество вычисляют по формуле
„ _ т, . 100 • 100 — т ■ < 100 - W) ’
где т — масса навески клея, г; т4 — масса полученного жира, г;
W — фактическая массовая доля влаги в клее, %;
ИЮ — коэффициенты пересчета.
Вычисления проводят до второго десятичного знака.
За результат анализа принимают среднеарифметическое результатов двух параллельных определений в одной или в двух разных лабораториях, допускаемое расхождение между которыми при Р = 0.95 не должно превышать 0.1 %.
Окончательный результат округляют до первого десятичного знака.
3.6.2 Определение обшей массовой доли жира флуоресцентным жиромером
Метод основан на образовании люмннеспнруюшего соединения при взаимодействии жиров костного клея с красителем фосфнном 3 R-гидрохлорндом.
3.6.2.1 Аппаратура, реактивы, материалы
Жиромер флуоресцентный ФЖМ-8.
Весы лабораторные общего назначения по ГОСТ 24104. 2-го класса точности с наибольшим пределом взвешивания 200 г.
9
ГОСТ 2067-93
Ультратермостат УТ-15 или других аналогичных марок или баня водяная.
Стакан химический В-1— 50ТС по ГОСТ 25336.
Стакан фарфоровый по ГОСТ 9147.
Цилиндры 1-100 и 1-1000 по ГОСТ 1770.
Пробирки 111-16-150 ХС или П1-21-200 ХС по ГОСТ 25336.
Пипетки лабораторные стеклянные вместимостью 0,05 см3.
Стеклянная банка из темного стекла.
Колба 2-100-2 по ГОСТ 1770.
Колбы Кн-2-100 ТС и Кн-2—1000 ТС по ГОСТ 25336.
Натрия гидроокись по ГОСТ 4328.
Фосфин 3 R-гидрохлорид |3-амино-9-(П-аминофенил) акрилиний хлористый), ч. д. а., краситель для флуоресцентной микроскопии по нормативно-технической документации.
Вода дистиллированная по ГОСТ 6709.
Допускается применять другие средства измерений с метрологическими характеристиками не ниже указанных.
3.6.2.2 Подготовка к анализу
3.6.2.2.1 Приготовление 0.05 %-ного раствора фосфина ЗК-гидрохлорида.
0,05 г фосфина ЗЯ-гидрохлорида, взвешенного в стеклянном сухом стакане вместимостью 50 см1 с погрешностью не более 0.0001 г. растворяют в дистиллированной воде при помешивании. Раствор переливают в мерную колбу вместимостью 100 см’ и доводят объем до метки дистиллированной водой.
Раствор фосфина 3К-гидрохлорида следует хранить в стеклянной банке из темного стекла в течение 20 дней.
3.6.2.2.2 Приготовление 0.45 %-ного раствора гидрата окиси натрия
4.5 г гидрата окиси натрия, взвешенного с погрешностью не более 0.01 г, растворяют в фарфоровом стакане в 300 см3 дистиллированной воды. После остывания раствор переносят в колбу вместимостью 1000 см’ и доводят ее содержимое водой до метки.
3.6.2.2.3 Приготовление раствора с массовой долей клея 5 % (в пересчете на абсолютно сухое вещество)
Для приготовления 100 г раствора с массовой долей клея 5 % вычисляют массу навески клея (т5) в граммах по формуле
5- 100 т* 1<ю - w '
где 5 — массовая доля абсолютно сухого вешества в растворе, %\
И»‘— фактическая массовая доля влаги в клее, %\
1 (К) — коэффициент пересчета граммов в проценты.
Количество дистиллированной воды для приготовления раствора с массовой долей клея 5 % вычисляют как разность между 100 г и массой навески испытуемого клея (100 — ///«,).
Навеску клея массой ms, взвешенную с погрешностью не более 0,01 г, помешают в колбу с притертой пробкой вместимостью 100 см3, приливают необходимое количество дистиллированной воды и плотно закрывают колбу пробкой.
Колбу с клеем помешают в ультратермостат или на водяную баню. Растворяют клей при температуре 60—70 ‘С. Для ускорения растворения колбу периодически встряхивают.
3.6.2.2.4 Построение градуировочного графика
При градуировке флуоресцентного жиромера ФЖМ-8 в единицах флуоресценции строят градуировочный график зависимости интенсивности флуоресценции от массовой доли жира в клее.
Отбирают образцы костного клея с массовой долей жира (в пересчете на абсолютно сухое вещество) в следующих пределах: 0,2—0.4; 0,5—1.0; 1,1 —1,5; 1,6—2,2; 2,3—2,5 %. В каждом образце определяют массовую долю жира в аппарате Сокслета. Из тех же образцов клея готовят растворы с массовой долей клея 5 %. Образец клея, содержащий жир в пределах 0.02—0.2 %, готовят путем растворения в воде аликв
