Стойки железобетонные для опор контактной сети железных дорог. Технические условия
Действие завершено 01.09.2011
Утратил силу в РФ
Заменяет ГОСТ 19330-91: Технические условия
Документ завершил свое действие. Вы можете скачать ГОСТ 19330-99 в удобном формате.
Скрыть дополнительную информацию
Страница 1

Страница 2

Страница 3

Страница 4

Страница 5

Страница 6

Страница 7

Страница 8

Страница 9

Страница 10

Страница 11

Страница 12

Страница 13

Страница 14

Страница 15
ГОСТ 19330-99
МЕЖГОСУДАРСТВЕННЫЙ СТАНДАРТ
СТОЙКИ ЖЕЛЕЗОБЕТОННЫЕ ДЛЯ ОПОР
КОНТАКТНОЙ СЕТИ ЖЕЛЕЗНЫХ ДОРОГ
Технические условия
МЕЖГОСУДАРСТВЕННАЯ НАУЧНО-ТЕХНИЧЕСКАЯ КОМИССИЯ
ПО СТАНДАРТИЗАЦИИ, ТЕХНИЧЕСКОМУ НОРМИРОВАНИЮ
И СЕРТИФИКАЦИИ В СТРОИТЕЛЬСТВЕ
(МНТКС)
Предисловие
1 РАЗРАБОТАН Всероссийским научно-исследовательским институтом железнодорожного транспорта (ВНИИЖТ МПС) при участии Научно-исследовательского института транспортного строительства (ЦНИИС) Российской Федерации
ВНЕСЕН Госстроем России
2 ПРИНЯТ Межгосударственной научно-технической комиссией по стандартизации, техническому нормированию и сертификации в строительстве 20 мая 1999г.
За принятие проголосовали:
|
Наименование государства |
Наименование органа государственного управления строительством |
|
Республика Армения |
Министерство по координации, территориальному управлению и градостроительной деятельности Республики Армения |
|
Республика Беларусь |
Министерство архитектуры и строительства Республики Беларусь |
|
Республика Казахстан |
Комитет по делам строительства Министерства энергетики, индустрии и торговли Республики Казахстан |
|
Кыргызская Республика |
Государственная инспекция по архитектуре и строительству при Правительстве Кыргызской Республики |
|
Республика Молдова |
Министерство окружающей среды и благоустройства территорий Республики Молдова |
|
Российская Федерация |
Госстрой России |
|
Республика Таджикистан |
Комитет по делам архитектуры и строительства при Правительстве Республики Таджикистан |
|
Украина |
Государственный комитет строительства, архитектуры и жилищной политики Украины |
3 ВЗАМЕН ГОСТ 19330-91
4 ВВЕДЕН В ДЕЙСТВИЕ с 1 сентября 2000г. в качестве государственного стандарта Российской Федерации постановлением Госстроя России от 19.05.2000 № 49
СОДЕРЖАНИЕ
|
ГОСТ 19330-99 1 МЕЖГОСУДАРСТВЕННЫЙ СТАНДАРТ 1 СТОЙКИ ЖЕЛЕЗОБЕТОННЫЕ ДЛЯ ОПОР КОНТАКТНОЙ СЕТИ ЖЕЛЕЗНЫХ ДОРОГ 1 Технические условия 1 МЕЖГОСУДАРСТВЕННАЯ НАУЧНО-ТЕХНИЧЕСКАЯ КОМИССИЯ ПО СТАНДАРТИЗАЦИИ, ТЕХНИЧЕСКОМУ НОРМИРОВАНИЮ И СЕРТИФИКАЦИИ В СТРОИТЕЛЬСТВЕ (МНТКС) 1 Предисловие 1 Введение 2 ГОСТ 19330-99 2 МЕЖГОСУДАРСТВЕННЫ СТАНДАРТ 2 Технические условия 2 1 Область применения 3 2 Нормативные ссылки 3 3 Основные параметры и размеры 3 СС длинной 4 ССА длинной 5 Рисунок 1 6 4 Технические требования 7 5 Правила приемки 10 6 Методы контроля и испытаний 12 Рисунок 2 — Схема испытаний стойки 13 7 Транспортирование и хранение 16 8 Требования к эксплуатации 17 ПРИЛОЖЕНИЕ А (рекомендуемое) 17 Перечень нормативных документов, на которые имеются ссылки в настоящем стандарте 17 ПРИЛОЖЕНИЕ Б (рекомендуемое) 18 Примеры маркировки стоек 18 ПРИЛОЖЕНИЕ В (обязательное) 19 Ступени приложения нагрузки при испытании, стоек опор контактной сети 19 |
Введение
При эксплуатации стоек по ГОСТ 19330-91 на электрифицированных железных дорогах выявилась их недостаточная долговечность, являющаяся следствием электрокоррозии арматуры из-за недостаточной электрической изоляции между закладными деталями контактной подвески и арматурой.
Настоящий стандарт, разработанный взамен ГОСТ 19330-91, распространяется на стойки, конструкция которых предусматривает надежную изоляцию закладных деталей, что позволяет повысить их долговечность по сравнению со стойками по ГОСТ 19330-91. Кроме того, эта конструкция более технологична в изготовлении, чем стойки по ГОСТ 19330-91.
ГОСТ 19330-99
МЕЖГОСУДАРСТВЕННЫ СТАНДАРТ
|
СТОЙКИ ЖЕЛЕЗОБЕТОННЫЕ ДЛЯ ОПОР КОНТАКТНОЙ СЕТИ ЖЕЛЕЗНЫХ ДОРОГ Технические условия CENTRIFUGAL REINFORCED CONCRETE POSTS FOR RAILWAY OVERHEAD LINE EQUIPMENT Specifications |
Дата введения 2000-09-01
1 Область применения
Настоящий стандарт распространяется на железобетонные предварительно напряженные конические стойки кольцевого сечения, изготовленные из тяжелого бетона методом центрифугирования и предназначенные для опор контактной сети, сооружаемых на общей сети железных дорог и на железнодорожных подъездных путях предприятий в любых климатических условиях.
2 Нормативные ссылки
В настоящем стандарте использованы ссылки на межгосударственные стандарты, перечень которых приведен в приложении А.
3 Основные параметры и размеры
3.1 Стойки следует изготавливать по рабочей и технологической документации, соответствующей требованиям настоящего стандарта.
Допускается по согласованию между заказчиком и изготовителем изготавливать стойки, отличающиеся габаритами и размерами отдельных деталей стоек от приведенных в настоящем стандарте, при соблюдении остальных технических требований этого стандарта.
3.2 Стойки подразделяют на типы:
СС — устанавливаемые в фундаменты стаканного типа или закапываемые непосредственно в грунт (нераздельные);
ССА — с болтовым креплением к фундаменту (раздельные).
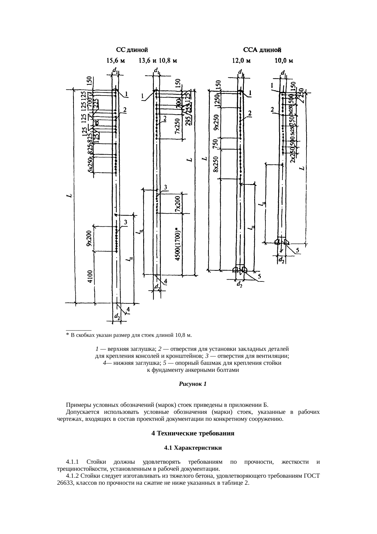
3.3 Форма и основные размеры стоек должны соответствовать указанным на рисунке 1 и в таблице 1.
Таблица 1
Размеры в миллиметрах
|
Типоразмер стойки |
L |
d1 |
d2 |
t |
lц |
|
СС 108.6 |
10800 |
290 |
450 |
60 |
5000 |
|
СС 108.7 |
10800 |
290 |
450 |
75 |
5000 |
|
СС 136.6 |
13600 |
290 |
492 |
60 |
5800 |
|
СС 136.7 |
13600 |
290 |
492 |
75 |
5800 |
|
СС 156.6 |
15600 |
290 |
524 |
60 |
7100 |
|
СС 156.7 |
15600 |
290 |
524 |
75 |
7100 |
|
ССА 100.6 |
10000 |
290 |
435 |
60 |
4600 |
|
ССА 100.7 |
10000 |
290 |
435 |
75 |
4600 |
|
ССА 120.6 |
12000 |
290 |
465 |
60 |
5400 |
|
ССА 120.7 |
12000 |
290 |
465 |
75 |
5400 |
|
Примечания 1 Размер L может изменяться в зависимости от конструкции заглушек. 2 В таблице: t — толщина стенки стойки; lц — высота центра тяжести стойки. |
|||||
3.4 Основные показатели стоек указаны в таблице 2.
Таблица 2
|
Марка стойки |
Нормативный изгибающий момент, кН×м (тс×м) |
Класс бетона по прочности на сжатие |
Масса стойки, т |
|
СС 108.6-2 |
59 (6,0) |
В30 |
1,58 |
|
СС 108.6-3 |
79 (8,0) |
В40 |
|
|
СС 108.7-4 |
98 (10,0) |
В40 |
1,88 |
|
СС 136.6-2 |
59 (6,0) |
В30 |
2,13 |
|
СС 136.6-3 |
79 (8,0) |
В40 |
|
|
СС 136.7-4 |
98 (10,0) |
В40 |
2,53 |
|
СС 156.6-5 |
49 (5,0) |
В30 |
2,75 |
|
СС 156.6-6 |
66 (6,7) |
В30 |
|
|
СС 156.6-7 |
88 (9,0) |
В40 |
|
|
СС 156.7-8 |
111 (11,3) |
В40 |
3,08 |
|
ССА 100.6-3 |
79 (8,0) |
В40 |
1,44 |
|
ССА 100.7-4 |
98 (10,0) |
В40 |
1,71 |
|
ССА 120.6-3 |
79 (8,0) |
В40 |
1,81 |
|
ССА 120.7-4 |
98 (10,0) |
В40 |
2,16 |
|
Примечание — Нормативный изгибающий момент относится к сечению стойки в уровне условного обреза фундамента, расположенному для стоек длиной 13600 мм и 10800 мм на расстоянии 9,6 м от вершины, для стоек длиной 15600 мм — на расстоянии 11,6 м от вершины, а для стоек длиной 10000 и 12000 мм — в нижнем сечении стойки. |
|||
3.5 Стойки типа СС для использования на участках контактной сети постоянного тока изготавливаются с установленным диагностическим проводником — металлическим стержнем, предназначенным для присоединения аппаратуры диагностики состояния подземной части стоек в процессе их эксплуатации. Диагностический проводник устанавливается в нижней части стоек в зоне вентиляционных отверстий.
3.6 На стойках длиной 13600 и 15600 мм должен быть установлен репер (металлический стержень, выступающий за внешнюю поверхность стойки, обозначающий положение условного обреза фундамента).
Допускается совмещение репера и диагностического проводника.
3.7 На все стойки наносятся риски, определяющие положение их центра тяжести.
3.8 Стойки поставляют с установленными деталями для крепления консолей и кронштейнов:
стойки, предназначенные для эксплуатации на участках контактной сети постоянного тока, — с несъемными изолирующими втулками, а также съемными втулками-прокладками и закладными болтами, установленными в отверстия при изготовлении стоек;
стойки, предназначенные для эксплуатации на участках контактной сети переменного тока, — со съемными втулками-прокладками и закладными болтами.
СС длинной
