Болты, винты, шпильки, гайки и шурупы. Допуски. Методы контроля размеров и отклонений формы и расположения поверхностей
Действие завершено 01.01.2011
Утратил силу в РФ
Заменяет

Страница 1

Страница 2

Страница 3

Страница 4

Страница 5

Страница 6

Страница 7

Страница 8

Страница 9

Страница 10

Страница 11

Страница 12

Страница 13

Страница 14

Страница 15

Страница 16

Страница 17

Страница 18
ГОСТ 1759.1-82
МЕЖГОСУДАРСТВЕННЫЙ СТАНДАРТ
БОЛТЫ, ВИНТЫ, ШПИЛЬКИ, ГАЙКИ И ШУРУПЫ
ДОПУСКИ
МЕТОДЫ КОНТРОЛЯ РАЗМЕРОВ И ОТКЛОНЕНИЙ ФОРМЫ
И РАСПОЛОЖЕНИЯ ПОВЕРХНОСТЕЙ
ИПК ИЗДАТЕЛЬСТВО СТАНДАРТОВ
Москва
ИНФОРМАЦИОННЫЕ ДАННЫЕ
1. РАЗРАБОТАН И ВНЕСЕН Министерством черной металлургии СССР
2. УТВЕРЖДЕН И ВВЕДЕН В ДЕЙСТВИЕ Постановлением Государственного комитета СССР по стандартам от 29.07.82 № 2954
3. Стандарт полностью соответствует СТ СЭВ 2651-80
4. ВЗАМЕН ГОСТ 1759-70 в части допусков и методов контроля размеров и отклонений формы и расположения поверхностей
5. ССЫЛОЧНЫЕ НОРМАТИВНО-ТЕХНИЧЕСКИЕ ДОКУМЕНТЫ
|
Обозначение НТД, на который дана ссылка |
Номер пункта |
|
ГОСТ 8.010-90 |
3.1 |
|
ГОСТ 10753-86 |
3.6 |
|
ГОСТ 11284-75 |
3.4; 3.12 |
|
ГОСТ 12414-94 |
2.1 |
|
ГОСТ 19256-73 |
2.1 |
|
ГОСТ 24997-81 |
3.2 |
|
ГОСТ 25069-81 |
2.3 |
|
ГОСТ 25670-83 |
2.2 |
6. ИЗДАНИЕ (май 2001 г.) с Изменением № 1, утвержденным в сентябре 1988 г. (ИУС 12-88)
МЕЖГОСУДАРСТВЕННЫЙ СТАНДАРТ
|
Болты, винты, шпильки, гайки и шурупы ДОПУСКИ Методы контроля размеров и отклонений формы и расположения поверхностей Bolts, screws, studs and nuts. Tolerances. Control methods |
ГОСТ |
Дата введения 01.01.83
Настоящий стандарт распространяется на болты, винты, шпильки и гайки общемашиностроительного применения с резьбой от M1 до М48, а также на шурупы и самонарезающие винты (кроме размеров их резьбы), и устанавливает для них три класса точности — А, В, С и методы контроля размеров и отклонений формы и расположения поверхностей.
Стандарт полностью соответствует СТ СЭВ 2651-80.
1. ПОЛЯ ДОПУСКОВ РЕЗЬБЫ
1.1. Поля допусков наружных и внутренних резьб должны соответствовать указанным в табл. 1.
До 1 января 1990 г. для изделий классов точности А и В первой категории качества допускались поля допусков резьбы, соответствующие классу точности С.
1.2. Под нанесение металлических покрытий повышенной толщины допускается применять поля допусков резьб, не приведенные в табл. 1.
Таблица 1
мм
|
Резьба |
Поле допуска резьбы для крепежных изделий класса точности |
Примечания |
|||
|
А |
В |
С |
|||
|
Наружная |
6g |
6g |
8g |
— |
|
|
Внутренняя |
6Н |
6Н |
7Н |
1. Для гаек от МЗ высотой m ³ 0,8d допуски внутреннего диаметра должны быть выдержаны на участке т1 ³ 0,5т 2. Для гаек высотой 0,5d £ m < 0,8d допуски внутреннего диаметра должны быть выдержаны на участке т2 ³ 0,35т 3. У самоконтрящихся гаек внутренний диаметр может превышать допустимые значения на участке т3 £ 0,35т от нагруженного торца |
|
2. ДОПУСКИ РАЗМЕРОВ, ФОРМЫ И РАСПОЛОЖЕНИЯ ПОВЕРХНОСТЕЙ
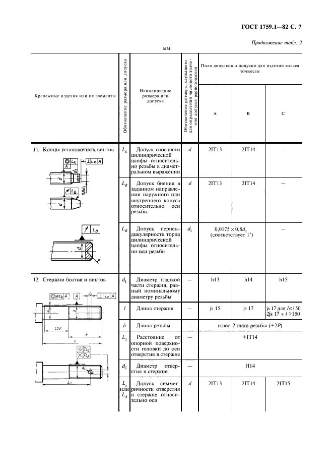
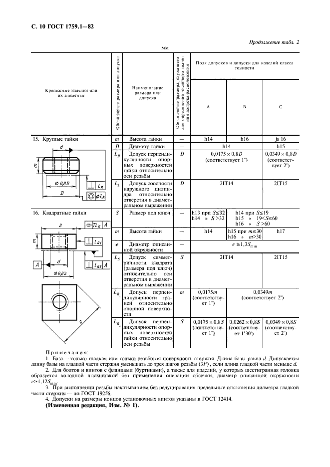
2.1. Допуски размеров, допуски расположения и суммарные допуски формы и расположения поверхностей должны соответствовать указанным в табл. 2.
Таблица 2
мм
|
Крепежные изделия или их элементы |
Обозначение размера или допуска |
Наименование размера или допуска |
Обозначение размера, служащего для определения числового значения допуска расположения |
Поля допусков и допуски для изделий класса точности |
|||
|
А |
В |
С |
|||||
|
1. Шестигранные головки |
s |
Размер под ключ |
— |
h13 при S £ 32 h14 » S > 32 |
h14 при S £ 19 h15 » 19 < S £ 60 h16 » S > 60 |
||
|
k |
Высота головки |
— |
js14 |
js15 |
js16 при k < 10 js17 » k ³ 10 |
||
|
е |
Диаметр описанной окружности |
— |
е ³ 1,13Smin |
||||
|
Ls |
Допуск симметричности головки относительно оси стержня в диаметральном выражении |
S |
2IT13 |
2IT14 |
2IT15 |
||
|
Lp |
Допуск параллельности граней относительно оси стержня |
k |
0,0175k (соответствует 1°) |
0,0349k (соответствует 2°) |
|||
|
LR |
Допуск перпендикулярности опорной поверхности головки относительно оси стержня |
S |
Для болтов с d £ М30 |
||||
|
0,0175 ´ 0,85S (соответствует 1°) Для болтов с d > N |
0,0349 ´ 0,8S (соответствует 2°) |
||||||
|
Для болтов с d > М30 |
|||||||
|
0,0087 ´ 0,8S (соответствует 0°30¢) |
0,0175 ´ 0,8S (соответствует 1°) |
||||||
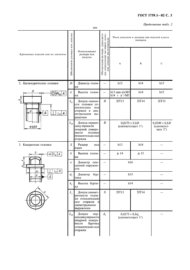
|
2. Цилиндрические головки |
D |
Диаметр головки |
— |
h12 |
h14 |
h15 |
|
|
k |
Высота головки |
— |
h13 при d £ М5 h14 при d > М5 |
h14 |
h15 |
||
|
Lk |
Допуск соосности головки относительно оси стержня в диаметральном выражении |
D |
2IT13 |
2IT14 |
2IT15 |
||
|
LR |
Допуск перпендикулярности опорной поверхности головки относительно оси стержня |
D |
0,0175 ´ 0,8D (соответствует 1°) |
0,0349 ´ 0,8D (соответствует 2°) |
|||
|
3. Квадратные головки | |||||||
