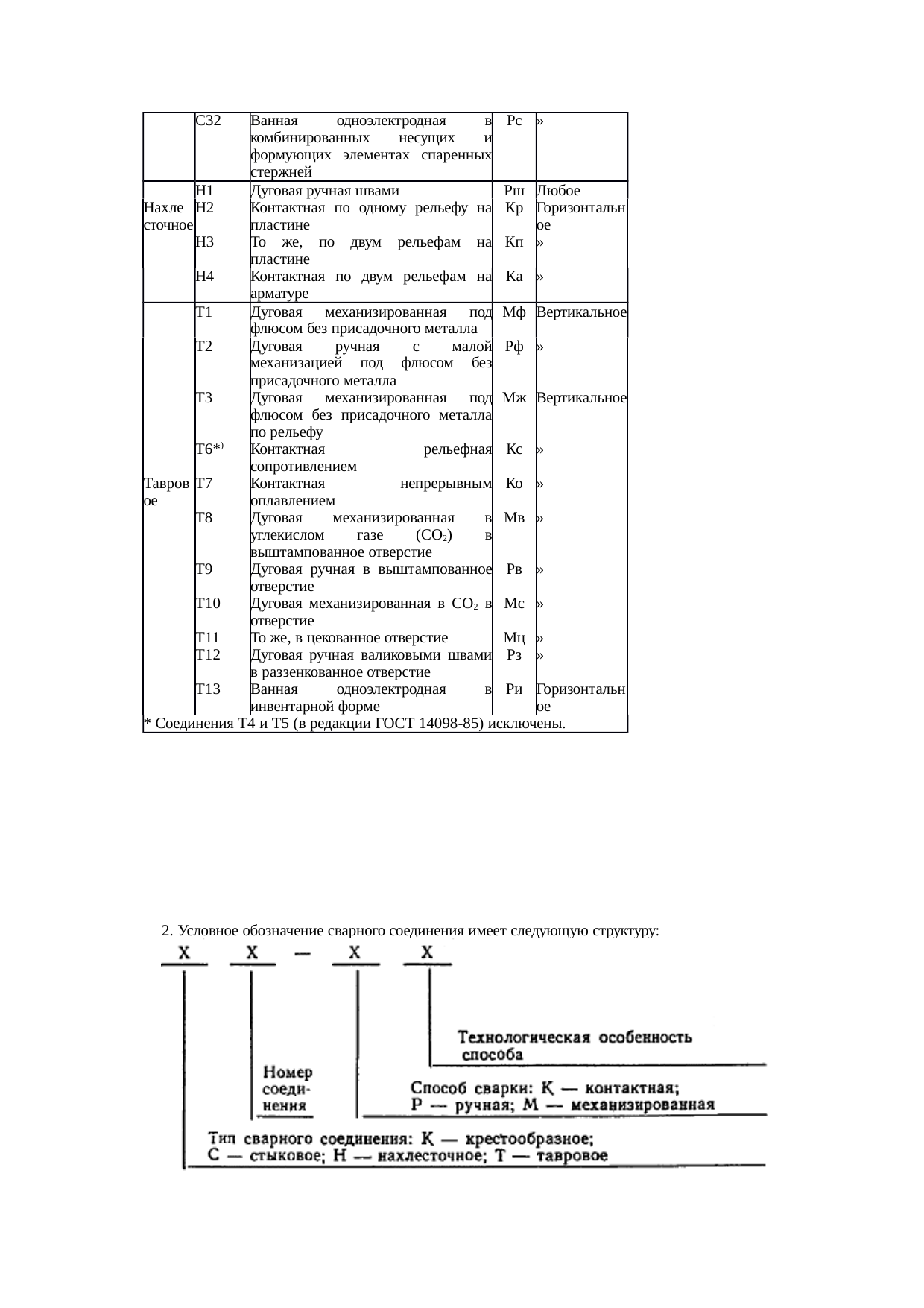
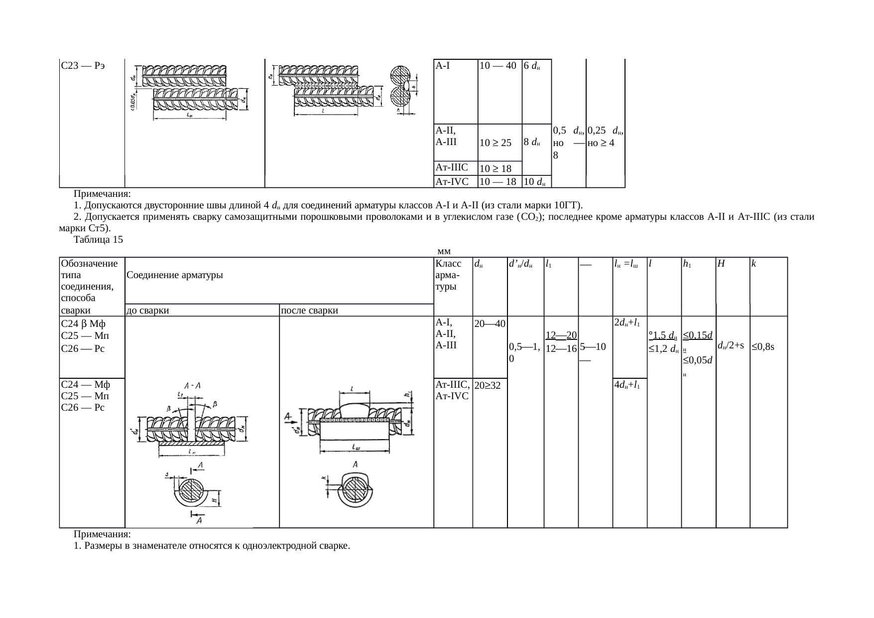
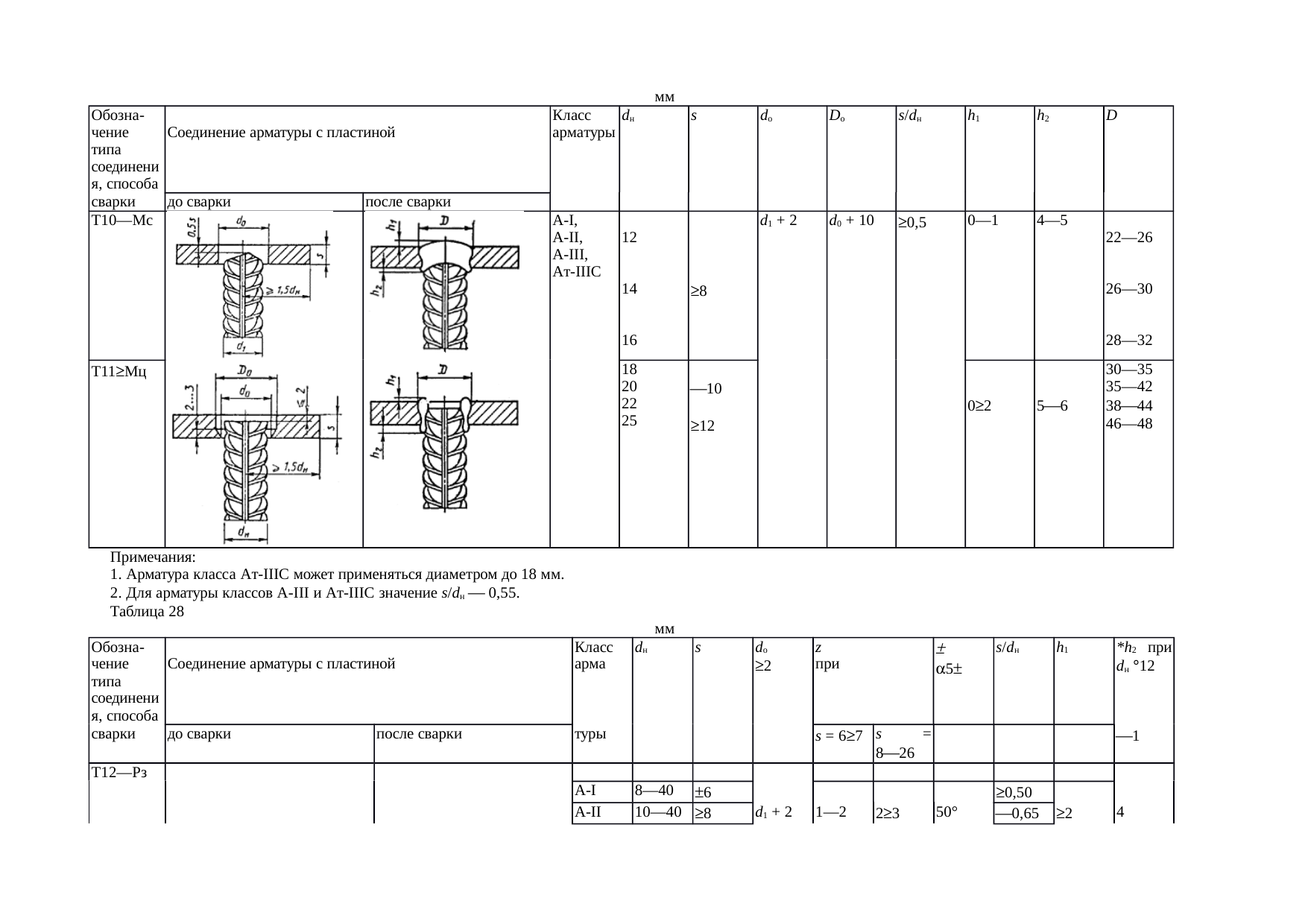
Соединения сварные арматуры и закладных изделий железобетонных конструкций. Типы, конструкции и размеры
На нашем сайте можно бесплатно скачать ГОСТ 14098-91 в удобном формате. Узнать актуальный статус ГОСТА «Соединения сварные арматуры и закладных изделий железобетонных конструкций. Типы, конструкции и размеры» на 2016 год.
Скрыть дополнительную информацию

Страница 1

Страница 2

Страница 3

Страница 4

Страница 5

Страница 6

Страница 7

Страница 8

Страница 9

Страница 10

Страница 11

Страница 12

Страница 13

Страница 14

Страница 15

Страница 16

Страница 17

Страница 18

Страница 19

Страница 20

Страница 21

Страница 22

Страница 23

Страница 24

Страница 25

Страница 26

Страница 27

Страница 28

Страница 29

Страница 30

Страница 31

Страница 32
