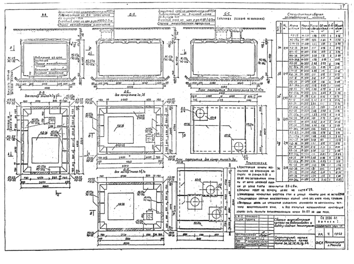
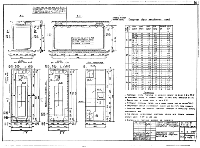
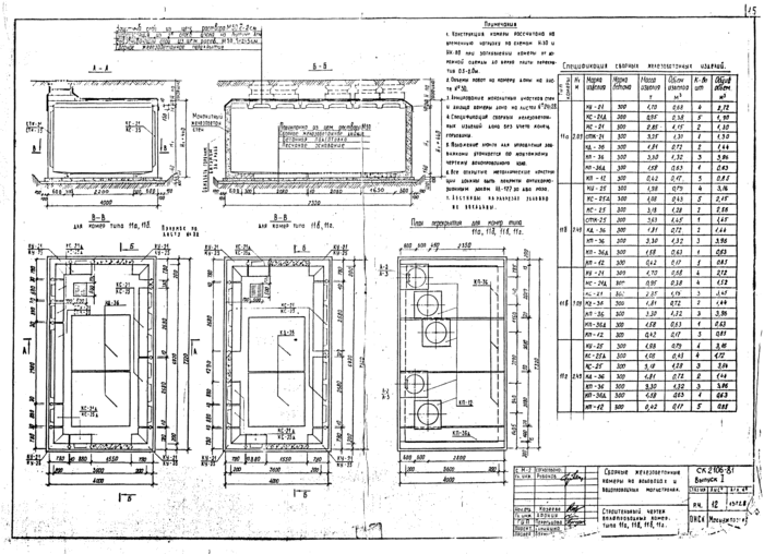
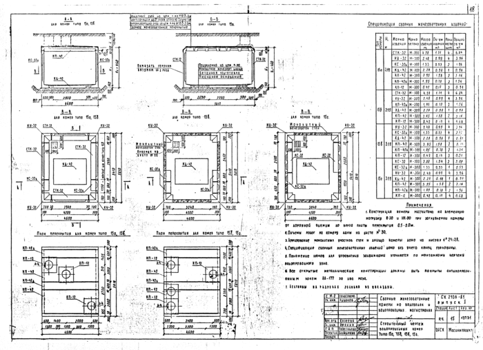
Сборные железобетонные камеры на водоводах и водопроводных магистралях. Строительная часть
На нашем сайте можно бесплатно скачать Руководящий документ Альбом СК 2106-81 в удобном формате. Узнать актуальный статус документа «Сборные железобетонные камеры на водоводах и водопроводных магистралях. Строительная часть» на 2016 год.
Скрыть дополнительную информацию
Страница 1

Страница 2

Страница 3

Страница 4

Страница 5

Страница 6

Страница 7

Страница 8

Страница 9

Страница 10

Страница 11

Страница 12

Страница 13

Страница 14

Страница 15

Страница 16

Страница 17

Страница 18

Страница 19

Страница 20

Страница 21

Страница 22

Страница 23

Страница 24

Страница 25

Страница 26

Страница 27

Страница 28

Страница 29

Страница 30

Страница 31

Страница 32

Страница 33

Страница 34

Страница 35

Страница 36

Страница 37

Страница 38

Страница 39

Страница 40

Страница 41

Страница 42

Страница 43

Страница 44
|
ш КД1110Г ?1|Ф1|(ЯГ0МПМ1 НЯАГСТЩАЯк«МХ I3IIHI дм 01Г0НТШСГМ 1 t M0CUC |
СК 2106 -S1 |
|
СБОРНЫЕ ЖЕЛЕЗОБЕТОННЫЕ КАМЕРЫ |
НА ВОДОВОДАХ И ВОДОПРОВОДНЫХ МАГИСТРАЛЯХ
СТРОИТЕЛЬНАЯ ЧАСТЬ
t и п s i и I
«шпили in ношиопш
МОСП* — 1 >81
МОСГОРИСЛОЛКОМ
Гш ЛИ) ШСИШПРОЕКТ
СК 2’30S-g’J
СБОРНЫЕ ЖЕЛЕЗОБЕТОННЫЕ КАМЕРЫ ИА ВОДОВОДАХ 11 ВОДОПРОВОДНЫХ МАГИСТРАЛЯХ
СТРОИТЕЛЬНАЯ НАСТЬ
S И Л J л к I
МАТЕРИАЛЫ ДЛИ ЛЮЕЛТЛЮ1АЛИЛ
[mini iH*[Hir*#ci*ntTsw^o6cuioiMfol /lAuiuii 01 С
MOCUA — 19 81
l?|l*•»••!
irftllU •’
П*’Н **|’» «ИМИ HMMtHOnvi >»1H| lit • »•»»
|
4*t| i |
|А||1»ОЮ|1И1 |
• ИИ» |
|
|
.’•U’lMM’l |
•Itnt |
ll*|t |
|
|
ИМЦ |
Ю|01»€чо»»» i |
и И» |
|
|
ИМИ |
КЧОИМ(НМ*1 |
• 1*1» |
t«|f *,ц
ч.чч.м чип Ц|0««1Г|*1 < пи» f i !• в| *€
‘Ь***|1М ••»’•« WiOKMHM ни* •••• М ##
Г**% .*»•*.г* •!•’!» K|6M«KMi 1ИМ ‘И» »• » 14 **
« •|*мI Ю|0«*о«си i «|*|* ‘•*»
м « *« 11
.!«: *!•»•• •И*14 К|ПЧ»&МИ и»|» •!*» •* » w 11
,и*1 ^»^иин ми» in» ч. *:< <• <1
#1И|1 *«0**ЭК*»и, 1|»«* 1М» К|, <И, 4*(1
.1 Щ «1# «и
«VII
ими icic^ieitfi ••••• ,|в4
.» *.
ч| « •«»«•« Ю|91*МС|1И
j :l I«»n, и*» I icica/MHM’i
ГМ»
|
с« |
Ml И |
||||
|
а |
10ПМНМ» «»от» »М1 1 4,1441 l4Mf • ‘•Hill |
(•III |
•1 |
от |
|
|
tt |
ir»o»c** ною» 1 «»■•••# |
а |
ИИ |
||
|
и |
||ЦЦ11 1 Iilllll Ml 1И1М11Н ИИ1И11» MIMlO |
ч |
ми |
||
|
о |
B*U|#»Mllll»Ot И»»01МЮ. l«t»C4<*»0 *С«»0111И • ином»* |
1«» |
к |
о#* |
|
|
И |
ПОМ ЮН III «141 ЮННСМО. *С’»ОИМО ‘ОМОМИ » к»»о»«тю IUIIIUII С ММ•* »Ot»l llUUHUHHMI |
III |
»• |
оп» |
|
|
И |
kfiiliiiiii мин нот • ичиим имм«с| |
II |
4И>1 |
||
|
1% |
iiiiHin«(tiiuii ис»т. ••»•»•» 1 ritiiiii* |
о |
«МИ |
||
|
V |
|i«kl|II.H и*|*1*и>1 I.IIMII «II.. |
о |
ни |
||
|
а |
И.1..1.М ними ни. !.’«*» • («U.KH.I |
a |
НИ |
||
|
а |
|>НММ|»н( СЧМ1»1 »*•«•» ••■и |
№ |
•мм |
||
|
V |
№••.(•11 иннпм …»……… и.-т 01» • !••«» 1 МММ! |
мни |
о |
4VM |
|
|
V |
(И||»Ж|Н ММ’М •• ••••••• ••• *’14. ММнИМ »•••! IMilmaiiMl •••• • lit»» |
II |
«ни |
||
|
V |
Э|Н«» »»IOf И |1»0»ЦП1М0 ШИ ги> 1 *Т |
II |
•ми •в* |
||
|
И |
1т«и то» м nmuiKU» ни» ‘••» 1-4 _ |
)• |
«ИМ |
||
|
• 1 — — |
|||||
» ИМИ ||.|VH4 ;*»VI 1»МИ> •» **£*0|»l • »»1 nrntHMi
Сонни» i
ИИО»»
1
f-L=
|
#>•4 |
Um |
|
|
A |
Ш |
3 |
|
• |
3 |
9 |
Hni ‘ич\ У|Я‘“МИ
7 3
|
l | i |
Mbt* |
:sx |
** |
‘Я |
| |
iM |
•0* |
r-i!5 |
• |
|||
|
1 | • |
• |
**13 |
•>.v |
/V |
Jli |
*.0 |
Vr.-A |
|||||
|
i Li |
r |
MHO |
xw |
;я- |
(44 |
X’/’ |
V |
*•> |
‘J^v |
|||
|
L |
^je |
:aj |
Я4 |
•« |
XV |
>y> |
/<1Я |
И *? |
& 6 |
|||
|
•XV |
..*ti |
XV |
*54 |
XV |
ifi |
ЗПМ |
c *1 |
|||||
|
JL LL |
AC-/53 |
wo |
4P |
4*; |
J.4J |
XV |
•V |
А»1 |
X*tf |
|||
|
дз-v* |
} |
414? |
/44 |
w |
(‘> |
«?> |
о |
|||||
|
Г»» f |
(M1 |
•ЗП |
.•» |
:p |
1A5 |
Л» |
1 |
w» • |
•Д4 |
|||
|
i |
vJ-V^ |
*:з |
*V |
.w |
15 |
. .v? |
•M* |
|||||
|
_ 10 |
if.’W |
J«i |
f.v |
-c |
J.v |
) « |
•V» |
41 |
r? |
Г |
||
|
Ф» |
t# Q |
ел |
Tji |
••J |
JC |
«» |
** |
5Й |
*3 |
:.2 |
* * |
|
|
• |
6 * |
•* |
?J |
AW.V |
Й |
|||||||
|
: |
3-4 |
*v |
Ю |
37 |
.?/* |
ЯЛ1 |
*» |
с* 5 |
||||
|
* |
• |
£v-: |
/49 |
У* |
454 |
(P |
ДДЗ |
H>.A |
*» |
‘• •* I? |
? * |
|
|
_J_ Г. ^ |
!*a |
|||||||||||
|
5 |
° |
***4 |
ьх |
•XV |
•» |
U> |
>W |
W |
r; •.; |
A* |
5 * *? |
•» « Vf |
MfcitfB
w 1 ю? I |з* *:.< I -• I * •* I ar
— ■ I л It I * 1 » I * I» 1 » IP. 1 * I * fo
C** (Sr /елЯ*Л* 755fW *4 90 К* яг ;м мЦ<ц# <11 >* i.’i «С-* ;c4^ sv № с« Ж XI4 ЯЛ .wfw UK VJ & •л- [•С*ДЗ||« |5«V изо оя ззе :н Г)\з\й •w |xv :»н ом ш 4/.V |«Ц*г К-** 1W 1 e-ro V# м яо м«|«* Ис-34* « ГК ы XV и» оЗчрРТ :r»:t /w 6Л’ ;?» :>» ззо V5 •IV’ ’Уе СТАЛ MV :ю ».Р 3*3 W ::• J 5.V CIJN4 >.4J XV 3339 1» яс ‘Л ^д|.*ул: 5СД?*| .o •00 3300 1* XV 1.33 ± i I С^ОО^-Уbe** yUo£* к и я ел? • :*Л 4Й Л» {99 <•3 р.р * Г Г %» «373 KV • JiV 4.13 V® tn XV7 И’ •« j */•3/ — • .V» У» *<р «г; 4 &*jiua W* **» .«V 4 ел XV я;> •л зз •5Л др ТГ vT С5Г w /ЛЗ tftj 3^7 XV •м ч* ^Т\ ;»rar^ys?irripjamiEigcz s? i я А f : , *г>0 W V *•3 0CS >» 3*» •U1 310 R ЯП КО V 431 0344 JW 37/ /.*4 *1.3 1* «■ г Я-7-V 7«0 ?4 533 А«м XV 7V ♦.5» НО < ЯЛ гм V /V З.ЗХ XV ^•4 Л«* ЗЗ.Н гхз 3/4 « гЯ «л» Ъ| 41 1 U* ♦ 4V-4 И.Н —ixn^ >—)»и. lui ИМ«Ш»М «>• • ••»• uu i«,lf ___in*__ «(И)ИПМПИ Dlllll. n 4 M _J • l»l* illliai …u МЧИ ••ftj • ЧН1 t 1 йав •НИ*» * м ITJ u Li П I»» •Vi* |аии mj «Г »П •t-KA и» е 2 24 • •-2« ‘^44* 2 •»]« #> а • «4 u- a — V.» 40 It а • VI II1 14* 111* ЕЙ а *1 ги 4 вс-^Г **9> • а» «»> • « 1И1 ГЗ 2 а» 1*1 а !♦> а** и *-W • •2 • п 4 а 44 II 2* __ 41-1» U© «44 4 IT2 «М«А ? i мГ • 44 1 %н -W« 2 Я 1 И « 1«1 HU МЛН • О •О т »н *1 on • м 4П 4 на «£ЯГ 4 */Н 14| • О т • и » ** Л” Г’ ■»> и* a *»» • •1 [•* Лиегпч* iO«w*« мт •• вмч imi 4 itni iTrt. liiMKtOl.f M>l**raiu vHftaM («« ч ii.^1 u -J M(f«i i* 14 *U \ Ким*«10ц|# г»эа«и> »т»«гчм111 шгмм u*a mj •«era «»AtH rariaivHM. liaHMiM ••«#» hi imii/kwi гачкгги !• ■0»U»»»*y NPfMJ IHWMM4’9 |)H • iiV I’llWH MluviKMl и«С’Ж4»И MiMli »||f| Ml#»» п» ММИНЫН.^ М««м 11-09 M III MM t litia •%» ai hhiiii мши M IIIIUIN la 4 • lIMiitiTM |ll ••«•»• «Ill U,l| Страница 7 juj. M «и ,%ЦН |V4d’o4 »Н v* »_•* *Л Иг» ■•• ,г^* •#•’• ц— г- • • ЛУЛ»; ? tfv * — * Г.» V-M * чрг »»W»ММ* гг; тл»« л rw */7, , xw HiOe пипит» III «phi tooe -«.VOJ.JI/c » Itl t*mi»nuus ci?hvi гг»прн«сипу! tngtuu ii i! •SSi •C-.*A Ими*» • •»«••• • j»aia _ 1 -\ ** Ж1А1 Г*^ 1Г—У И’*** tW (►•V-ft »!•» HMI r**- им ‘i.i. j 4‘r я в-в III ae»rt »•*• To, 7171 If. S-B III •$•#! ItfM 7l.ll 1-J- , ill ИЧГ» типе U VfWL BJL/ W lMK ч rq _ ?* я i v 2 ** JL L a J “Ч аП 5 ? Ё 3 5 \w If fun >0-f** M. M weiu *Я»И If»но •*(‘i jHtt’A П9’#« ‘if*» • •» KH* r. ». u« It 04 0| »и •* c»*:i » ЗС1 УП * Я U!L iy 1» и ЗЯ9 ( ГО f II » U!!_ • ( «. ‘ * ип r*1 0)1 1 ;# 7* :• fl If f:? ( i.; n in -75 : и r ft 1 V’l cn -Я| hi nf » Llil ■ n -rj ‘ «»yio 0*7- on 1 C « C»* -13 я VII 3*3 • 1) J in *W*73 JL-‘II _L_U p II • Л’4 «C*73i * >ГП •!» !M • f»/ /5 •1 15 *-!С) 1 II t If • 1 M «»•*} и-vf 1 »s I I* 1 IV •19 • T*f Г ЯП -11 Я-МЯ 0 Я1 0(1 ; f 3- .ттчн. jL?:r 1 71 f If I J.S * * •/ У-51 *М0 1 %l Oil I 1 я it .^.51» ялм] I 33 1J? i jT w «АЛ SS 1 If Li iL • JL 1 ЯП -Ц Я«И0| } IS 0/* f Ui«- • П-Л» tsi 1 10 « • п.о_ !M i •• ; Л1Х iL5. 5ли] . и JL^ 1 .LI^. «С-Да JU2J ‘ C* n %> * • 7* «1-1» Zal • II 0 1) I jjjI it 7Я <- :5 « ИО t a A i и ««•»* » ?:о * w 09 • # и” • IJ7 * ’*• РЧ HI / з)Г ■¥0.7 -КО 1 •! • я .5J*. яС-311 JL2SL 1 n • V. * ±У. 13 J* •А » ZEE 1II 9 A?- -!iP. ЯП-и 1 0 «II 1 D7 Ш1КЛВГТМХШКШ « о со 1 1П-11 1 OM _J_ P n КШИШ1П71ПУ1 1 UL. ВЯЛИ ЕЕЗЭПП ПИ 1 U ;* I ч-п j «-ЗС1 I 1 Lil*_ » • ^7 •П-15 ГТПГ roir 1 • »7 ■шсопяшл — ПД _ 1 «*•«? [•■УК I—L!J_ Ш и (ИМЯ I И41 «М ЯМШ it ижци пеня и МНЯ ••*** иптям li*ll« Ц Ян I ( I I I И I . rS К IiidMMii mmn И1ня»н« н »•»•!»•»• —■ т тм и»ц гмаянни- | lortllilt яи« UI мяи*«1 Я**«*»я* |Н«Я««С1 м ■#•*•••• И У «*1М1 ИЯМИМ*ОП ОМ ||МЯМ юн* «Nifff ми •« |«я i*a I *c# IIIMIM ягнмиипио тгттци ими ии ;1 Imimihm MMixtyi HffMi сия в мни н-нм —шш итиМуимн »•«« Uefn * ‘м »“ НО м IMHI **7WI .г Aiiimii в* М1ИМ1 мши и ипци \щ (MtU*vMV< ПИ1М1 МИЯМГМ1М вмгки нм LCIZZ^l ■vi ■■ 1 (ИШМ ■■ ■MM !■■■ ‘■■I HI ■■■ IP*S ■■ PH РГЯ ЩШ /ГППКЛьЗТВ imicna W/4T s . ><тш ... » ^.■•aLskrBCi.4^ — ClfM МИИМГНПГ UH*H •• lllllllll • IliffllMilVl МГ|( ТИП I СК W И |» У • о с ■ I CTMlViini »гнм IlillllllllMI IIHI чм ип.пи.и.и M CHCt 3 ftt* »J-i w W»l 1МГ« 0J*i.e*. NMt M n-(>| ШЫ И HTtl’M. llMMliW «И1ШМ KdIM rn« • |*«Ц| •l«(»v НИ * mm t*0 t М МИ)МИ«ЙИ •»•« М» ИЧ *t*i> ГМ1М llMifMi aim ni |«ммм ийоин ^иию чй«м»«|»( «>• tt*| MIMHNII4 ИМ. 1 Iff *Г«*»*»« *(4W*W(M **** N•***“» MMMMliiia «•*« 14-/П M 1M »•!« 1мим «I птпгто kv* 4+21 ** i*4* •»РМ^-Л 1M 4t*%* » « II И1 ч !• :# Ьтттшt ft—ti цщ, I i I iit_y*0*’w AM.»fy. riAjt I ft GJLJQTZ. М2ШШ1Л CB^nrr.mmn ■HUjrrjillUL] гаи::)гпшши IftIMNIIMil M«l Д KUk -Ь± r~1 П.;. j.. \ n*h •!•»*»>•»» Ml IMN t*fl| fl C»»vi»i»nn r*y.»« » >:;?»# м»и i ям mi к *r к я им«: ми* ней WO :•’• т Jt гм *1 •яг* *• ?»’• • * Mi • И 1 Н •J •* u [,eM * >w * .1 • 1# • » »• •CWi ■ »; • УУ 93} » III u 14 •» 31 * м; 7 «1 «и • J n MM * lit Ml •Л •J if •* ИМ » м: 1 • ! Ml » • If • 1 V >* • Ml #•* • m:i CM * » ?!r * If •• • •• .r H| * .VI • )> • и jL им • мс X*1 999 1 и *r )*» и ?1 ч У ) *1 • Л О им « Ж Ml Ш 1 «if 11 * JU3 1 •! • r •’! IIiiniuwi | IUMM «4 И^»«ч МТИИ «пи-1- «ПО tf Mf t| гм мг»*м мм П«ОУ Я И»м *«**.»<■ ШШ &| MIU •M#TV r**C**Wlul t **ь»т «Л дм >1 tW1| ИМ V Ь~*ы*«л H>ci-nvi uw’T^ii mu • 1Н<1 •им дио umti И 1 Снии»я»ш ri»Vl V|tHlil*l»n ПД11М jut if» miu mu поим»! i«ni itiiMkimm иуланнр ямттг» *t ядомо*»* «••чя! im C Set r«»vTH HctiMUHCiuf тг«чпя ди>п* IWT» ‘I.M’W U-JH 41-ITf U Ш VIM t 1К1ИМ1Ы M NMIVI KUM) «I I0U)M| г t WtHI%N ••»** wrwn a INWMIl WM»t *e (!««(• *» «■I»* r AlMJ’W (UliN il иа ЫЪ •мп»»»и fPiWw» MM* M l|«4»l If* a MfWJ1/) I iMm’IM MflH riNfNriM *•*»« • !*»• «*M*V UMih’mIUIKM. fliMM *м»и н.« : i i *ШЕЕВВ0!Е&Е1ЕВЕ1ЕЕВгВЕ1еьЕВВЕЁ U®EEGBEEEEBECEEEEEEEDSEEEEGEEEEE ИНЯЗИРВПНРЯРРЯЕПРЕПааппПЕГ RBEEEEEEEEbOEEiiEEEEEEIEiEEOEEES [Ш6УУУУБ1УШУУУ№УУУЬУВУ ШШЁШРЕЕЕЁеШ 1;!- Ill : J i | III 11! is* Hi TI -1| Е*—Я \ \Л * г £ laSi* £ *!ц* is s!*«5 h fг;3- 2» 1= = li 35 if ’ £ * S r= * flip 1= ш ЧГ-Щц г» \-1-Sxm У 5НК ^.414. iw-| hi^sem * (Mttuml •tmem •KMCI4 И «•*•»»•• И ItfH* Ml w • H ¥1 >»*•••■«••» IM*V И 0 1*4* ftNu tf IHH *44 NNI4 **• f 5 | N. Cr>fnj0wf»*yl (I***! Itif’IMtlNII wJlf*l£ i *i5 ■ i -4? v>»*j4<4 7 It» • I bSi .• s i ■ 1 , fa ra…… ЧГ— ‘J*- VГГ.74 M -^»Л ^ —=? z~\ gLrj^L.——— X ~ 1 МИД _A_1 3 • • ? ■fes ■Hi 4Г1Н1М14# ГИЛМ .MjMfW I 1м*1нГ 1ФЧ •»• 0Mt>^ MB « ЙГИ4-1 lift ro»’»l tW* IM mm и •?? m »m ***• II11MIM ИНИ1И1 IIIIIII • i iiiitim Й • * I И 1 Sb /tew A*** » 4v* М» *> *• Ж ■» ••a :ir i-N XV * Ш 1 1.* E53 AM fvl / Ю «•* X» /if 44f 4 4 if Я* Л VC l>f <» / 414 *» Mf 414 cn ‘ t /14 и- M X» Ю a: A JX B0-JM A* ‘ft 411 4 40 Cl •« >» CM 3 М/ «1 *W N *w fM 4 Л* If-ffi \00 1* 4*1 s /.if IfW A* 14 411 1 //4 on»« AW Mf 4*1 • <" и M Л» 4// 1 /44 UK AW AH 1 1M »** V» ‘ft 01) 1 4″ AT etf М/ «I •rt О -N AM <» •M I V’ •C-NA r- g* CM « 4/1 ч-i» u. mi£^. i* 3 JB> »_ A.jt VC 1 -.*♦ At M -•A.* U2 1 АЛ « XJ » 4/1 Ct) 4 /41 *••41 JC? vr J Qtf ## a ir X» <•# 4 Ke *» <« 40 4 47 c-if Jcr V* J 1Л M-K Mf ‘•// sn 1 4*4 UK X4 * 5tt S90 / 411 4 «П «*•// w? _ii£_ 4// Ли П»е» «nmnm >u ч*мт «мне Я|,4( №
Страница 6
↑ Наверх
в 1нп»мч«1 IIKIN Nf(W4*a rn N’ryj% «
* • 11 M •*• >r*»«»#»
↑ Наверх
-ЕЛ*_iU9
Ч-—S-У
Jhajit*/.




Страница 6







